Projecten
Producten
Bedrijven
Vacatures
Agenda
Awards
Podcasts
more_horiz
Videos
Magazine
Favorieten
Profiel
Uitloggen
Abonneer je nu op onze nieuwsbrieven!
Abonneren
Nee, bedankt
Ja, denk met me mee rond de
materialisering van mijn project
Producten
Copyright: BINT architecten
Copyright: BINT architecten
Copyright: BINT architecten
Copyright: BINT architecten
Copyright: BINT architecten
Copyright: BINT architecten
Copyright: BINT architecten
Copyright: BINT architecten
Producttags
AAN
UIT
Strandpaviljoen Ocean Oasis, Bonaire
3 juni 2025
0
0
0
0
De gedroomde opdracht: ontwerp strandpaviljoen Ocean Oasis op Bonaire! Het klimaat op Bonaire is aangenaam dankzij de verkoelende passaatwind. Het idee voor het paviljoen is om schaduw te maken voor de bezoeker en de wind vrij spel te geven.
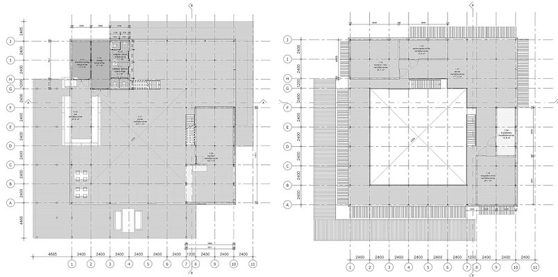
Als basis is een vierkant als plattegrond genomen om effectieve looplijnen te waarborgen met een gunstige verhouding gevel inhoud. Als totaal werkt het paviljoen als een grote parasol. Een groot vierkant stretchdoek wordt aan twee punten omhooggetrokken en aan de andere twee punten omlaag. Hierdoor ontstaat een dynamische vorm die zichzelf in stand houdt. Het doek is lichtdoorlatend waardoor het als een overdekt buiten aanvoelt.
Het gebouw bestaat uit twee verdiepingen. Op de begane grond zit het hoofdrestaurant tussen twee kernen. De ene kern is de keuken met koelingen de andere kern bestaat uit de bar, opslag en het sanitair. Op de verdieping bevinden zich een vergaderruimte, kantoor en installaties met aan de west en noordzijde zitplaatsen aan de vide.
De gevel is opgebouwd uit een doorgaande verticale houten structuur die het totaalvolume omschrijft. Tussen de delen, met verschillende breedte en diktes, zit ruimte om de wind vrij spel te geven naar de ‘binnenruimte’. Vanaf het restaurant is er rondom maximaal zicht naar de adembenemende natuur, zee en de natuurlijke lagune.
De open pergolaconstructie vormt de natuurlijke brug naar het felle zonlicht en geeft een rijke schaduwtekening over alles wat zich hier onder bevindt. Het strand rondom is aangelegd en geeft extra comfort aan de locatie. De palmbomen en het groen sluit aan op Caribische gevoel en maken het plaatje compleet .
De inrichting en de materialen zijn geheel natuurlijk en geven rust aan de plek. De kleur komt van de zee de diepblauwe zee, de palmen, de eilandbewoners en zijn bezoekers. Het paviljoen staat op Punt Vierkant, de westzijde van Bonaire. De zon zakt hier iedere dag in de zee, een romantische sunset-diner is hier gegarandeerd!
Stel jezelf kort voor! Dan weet het betreffende bedrijf wie hun model gedownload heeft.
Wil je niet bij elke download jouw gegevens in hoeven voeren?
Klik dan hier om in te loggen
.
Heb je nog geen account?
Maak dan hier een gratis account aan
.
Voornaam
Achternaam
E-mailadres
Downloaden
Wanneer je modellen downloadt op Architectenweb.nl worden relevante gegevens van jou – zoals jouw naam en e-mailadres – met het betreffende bedrijf gedeeld. Meer hierover lees je in ons
privacybeleid
.
Locatie
BINT architecten
Neem contact op
Projectdata
Staat van realisatie
Voltooid
Start ontwerpproces
2018
Start bouw
2019
Oplevering
2020
Bruto m
2
600
Meewerkende partijen
Architect
BINT architecten
Leveranciers
Overig
Bouter
Neem contact op met
BINT architecten
Je bent momenteel niet ingelogd. Hierdoor is het alleen mogelijk om meer informatie per e-mail op te vragen. Wil je liever gebeld worden of documentatie per post ontvangen?
Klik dan hier om in te loggen
.
Heb je nog geen account?
Maak dan hier een gratis account aan
.
Voornaam
Achternaam
E-mailadres
Opmerkingen
Bij iedere aanvraag worden relevante gegevens van jou gedeeld met het betreffende bedrijf. Meer hierover lees je in ons
privacybeleid
.
Ja, denk met me mee rond de
materialisering van mijn project
Meer projecten van BINT architecten
Restaurant Abel, Poortugaal
BINT architecten
Villa Goeree-Overflakkee
BINT architecten
Paviljoen De Watering Katwijk
BINT architecten
Pannenkoeken Restaurant, Cruquius
BINT architecten
Ontvangstgebouw RCN Het Grote Bos, Doorn
BINT architecten
Stadshavengebouw Amstelkwartier
BINT architecten
Centrumgebouw Oesterdam Resort
BINT architecten
Jaarrondpaviljoen Sjoerd
BINT architecten
Aloha Surfschool
BINT architecten
C • T coffee & coconuts
BINT architecten
Restaurant More Itz
BINT architecten
Jaarrondpaviljoen Paal 14
BINT architecten
Paviljoen The Coast
BINT architecten
Visie Ahoy 2030
BINT architecten
Binnenstadplan Apeldoorn
BINT architecten
Strandpaviljoen Tijn Akersloot
BINT architecten
Villa Avenue Aruba
BINT architecten
Camping Duinlust
BINT architecten
Coral Triangle Center
BINT architecten
Restaurant Abel, Poortugaal
BINT architecten
Villa Goeree-Overflakkee
BINT architecten
Paviljoen De Watering Katwijk
BINT architecten
Pannenkoeken Restaurant, Cruquius
BINT architecten
Ontvangstgebouw RCN Het Grote Bos, Doorn
BINT architecten
Stadshavengebouw Amstelkwartier
BINT architecten
Centrumgebouw Oesterdam Resort
BINT architecten
Jaarrondpaviljoen Sjoerd
BINT architecten
Aloha Surfschool
BINT architecten
C • T coffee & coconuts
BINT architecten
Restaurant More Itz
BINT architecten
Jaarrondpaviljoen Paal 14
BINT architecten
Paviljoen The Coast
BINT architecten
Visie Ahoy 2030
BINT architecten
Binnenstadplan Apeldoorn
BINT architecten
Strandpaviljoen Tijn Akersloot
BINT architecten
Villa Avenue Aruba
BINT architecten
Camping Duinlust
BINT architecten
Coral Triangle Center
BINT architecten
Toon alles
Andere Projecten
Nieuwbouwwijk - New Brooklyn
Rodruza B.V.
Tijdloos nieuwbouwproject – Haaksbergen
Joris Ide
JI NatureBlack - Tijdloos design, staalprestaties
Joris Ide
Nieuwbouwcomplex - Elzenhof
Rodruza B.V.
MFC Feanwâlden
KHV Architecten B.V.
Parkeergarage De Caai in Eindhoven
Alucol
Lichtstad Architecten: bouwen aan blijvende ideeën
KUBUS | Specialist in Archicad
Horecapaviljoen Vakantiepark Eigen Wijze
KHV Architecten B.V.
Ontwikkeling Kornputkwartier
KHV Architecten B.V.
IKEA Restaurant, Frankfurt
objectflor
Gevelsteen vormt monumentaal ontwerp
Steenbakkerij Vande Moortel
Nieuw kantoorgebouw
SAPA
Ga naar het projecten-overzicht
Voor een optimale gebruikservaring plaatst Architectenweb functionele cookies. Wat de verschillende cookies precies doen leggen we uit in een
overzicht
. Cookies van social media kun je optioneel
aanzetten
.
Akkoord
Instellingen
Annuleren
OK
Sluiten
Doorgaan
Inloggen
Maak een gratis persoonlijk account aan
Feedback
Feedback
Wij horen graag jouw feedback. Laat je reactie achter en eventueel jouw e-mail adres.
Reactie
Verstuur