Projecten
Producten
Bedrijven
Vacatures
Agenda
Awards
Podcasts
more_horiz
Videos
Magazine
Favorieten
Profiel
Uitloggen
Abonneer je nu op onze nieuwsbrieven!
Abonneren
Nee, bedankt
Ja, denk met me mee rond de
materialisering van mijn project
Producten
Copyright: BINT architecten
Copyright: BINT architecten
Copyright: BINT architecten
Copyright: BINT architecten
Copyright: BINT architecten
Copyright: BINT architecten
Copyright: BINT architecten
Copyright: BINT architecten
Copyright: BINT architecten
Copyright: BINT architecten
Copyright: BINT architecten
Producttags
AAN
UIT
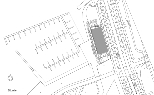
Stadshavengebouw Amstelkwartier
22 januari 2019
0
0
0
0
Het stadshavengebouw staat op unieke locatie direct aan de Amstel en het stadspark Amstelkwartier. Horeca, multifunctionele ruimte, parkeren en een woning worden onder één dak samengebracht.
Het concept voor het paviljoen is gebaseerd op een zwevend volume boven een transparant publiek maaiveld en een rondom uitstraling. Door het gebouw optisch op te tillen en de begane grond zo transparant mogelijk te houden, worden de stadshaven, het park en de terrassen verbonden met de doorgaande routing en de stad.
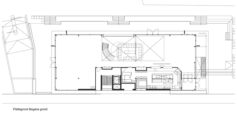
Het programma is opgeschaald waarmee het bouwvlak en de bouwhoogte maximaal benut worden. Hierdoor vindt de massa aansluiting op de schaal van de directe omgeving en is er flexibiliteit gecreëerd binnen de gebouwschil. Een grote vide met in een in het oog springende trap is het voornaamste verbindende element tussen de verdiepingen en verschillende functies. Door niveau verschillen tussen de vloeren toe te passen ontstaan relaties tussen de verdiepingsvloeren en volgt het gebouw het opgaande maaiveld richting de brug.
De houten lamellenstructuur van de voorzetgevel reageert op de open-/ dichtheid en functie van de achterliggende gevel, waardoor een een dynamisch gevelbeeld ontstaat. De houten lamellenstructuur loopt door in het buitenplafond, waardoor er een vloeiende overgang tussen binnen en buiten ontstaat.
Stel jezelf kort voor! Dan weet het betreffende bedrijf wie hun model gedownload heeft.
Wil je niet bij elke download jouw gegevens in hoeven voeren?
Klik dan hier om in te loggen
.
Heb je nog geen account?
Maak dan hier een gratis account aan
.
Voornaam
Achternaam
E-mailadres
Downloaden
Wanneer je modellen downloadt op Architectenweb.nl worden relevante gegevens van jou – zoals jouw naam en e-mailadres – met het betreffende bedrijf gedeeld. Meer hierover lees je in ons
privacybeleid
.
Locatie
Trefwoorden
maaiveld
haven
horeca
amsterdam
amstelkwartier
restaurant
houten lamellen
BINT architecten
Neem contact op
Projectdata
Staat van realisatie
Voltooid
Start bouw
2017
Plaats
Amsterdam
Bruto m
2
1000
Meewerkende partijen
Architect
BINT architecten
Neem contact op met
BINT architecten
Je bent momenteel niet ingelogd. Hierdoor is het alleen mogelijk om meer informatie per e-mail op te vragen. Wil je liever gebeld worden of documentatie per post ontvangen?
Klik dan hier om in te loggen
.
Heb je nog geen account?
Maak dan hier een gratis account aan
.
Voornaam
Achternaam
E-mailadres
Opmerkingen
Bij iedere aanvraag worden relevante gegevens van jou gedeeld met het betreffende bedrijf. Meer hierover lees je in ons
privacybeleid
.
Ja, denk met me mee rond de
materialisering van mijn project
Meer projecten van BINT architecten
Restaurant Abel, Poortugaal
BINT architecten
Strandpaviljoen Ocean Oasis, Bonaire
BINT architecten
Villa Goeree-Overflakkee
BINT architecten
Paviljoen De Watering Katwijk
BINT architecten
Pannenkoeken Restaurant, Cruquius
BINT architecten
Ontvangstgebouw RCN Het Grote Bos, Doorn
BINT architecten
Centrumgebouw Oesterdam Resort
BINT architecten
Jaarrondpaviljoen Sjoerd
BINT architecten
Aloha Surfschool
BINT architecten
C • T coffee & coconuts
BINT architecten
Restaurant More Itz
BINT architecten
Jaarrondpaviljoen Paal 14
BINT architecten
Paviljoen The Coast
BINT architecten
Visie Ahoy 2030
BINT architecten
Binnenstadplan Apeldoorn
BINT architecten
Strandpaviljoen Tijn Akersloot
BINT architecten
Villa Avenue Aruba
BINT architecten
Camping Duinlust
BINT architecten
Coral Triangle Center
BINT architecten
Restaurant Abel, Poortugaal
BINT architecten
Strandpaviljoen Ocean Oasis, Bonaire
BINT architecten
Villa Goeree-Overflakkee
BINT architecten
Paviljoen De Watering Katwijk
BINT architecten
Pannenkoeken Restaurant, Cruquius
BINT architecten
Ontvangstgebouw RCN Het Grote Bos, Doorn
BINT architecten
Centrumgebouw Oesterdam Resort
BINT architecten
Jaarrondpaviljoen Sjoerd
BINT architecten
Aloha Surfschool
BINT architecten
C • T coffee & coconuts
BINT architecten
Restaurant More Itz
BINT architecten
Jaarrondpaviljoen Paal 14
BINT architecten
Paviljoen The Coast
BINT architecten
Visie Ahoy 2030
BINT architecten
Binnenstadplan Apeldoorn
BINT architecten
Strandpaviljoen Tijn Akersloot
BINT architecten
Villa Avenue Aruba
BINT architecten
Camping Duinlust
BINT architecten
Coral Triangle Center
BINT architecten
Toon alles
Andere Projecten
Stadshart van toren tot toren
BoschSlabbers
Schaalbaar honderden modulaire woningen bouwen?
Buro De Haan
Brabants landschap geeft herstel
BoschSlabbers
Eigentijds wonen met concept Ankum
Innoblox
Van Waal tot Waal
BoschSlabbers
Op de plaats rust
BoschSlabbers
Gebouw 50 – Slimme, duurzame geveloptimalisatie
EQUITONE gevelpanelen
Bravis ziekenhuis: landschap niet ver weg
BoschSlabbers
De bos als behandelkamer
BoschSlabbers
Nieuwbouw kantoorpand
Knauf B.V.
woningbouw poortmeesters delft
VYA architectuur en stedenbouw
Onderwijsgebouw Aurora, Wageningen
WEBO
Ga naar het projecten-overzicht
Voor een optimale gebruikservaring plaatst Architectenweb functionele cookies. Wat de verschillende cookies precies doen leggen we uit in een
overzicht
. Cookies van social media kun je optioneel
aanzetten
.
Akkoord
Instellingen
Annuleren
OK
Sluiten
Doorgaan
Inloggen
Maak een gratis persoonlijk account aan
Feedback
Feedback
Wij horen graag jouw feedback. Laat je reactie achter en eventueel jouw e-mail adres.
Reactie
Verstuur