Projecten
Producten
Bedrijven
Vacatures
Agenda
Awards
Podcasts
more_horiz
Videos
Magazine
Favorieten
Profiel
Uitloggen
Abonneer je nu op onze nieuwsbrieven!
Abonneren
Nee, bedankt
Ja, denk met me mee rond de
materialisering van mijn project
Producten
Producttags
AAN
UIT
Restaurant More Itz
18 januari 2017
0
0
0
0
In opdracht van
More Itz
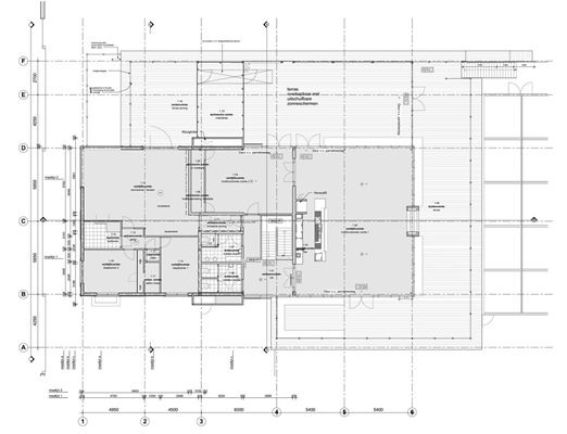
heeft BINT in de jachthaven van Drimmelen een multifunctioneel gebouw gerealiseerd. Het gebouw staat op het uiterste puntje van de havenmond, aan drie zijden omgeven door water. Het programma is over twee lagen uitgewerkt en bevat restaurants, vergaderzalen, feestruimte, terrassen incl. buitenbar, winkel, kantoorruimte, keuken en een bedrijfswoning.
Het concept is gebaseerd op een kruising tussen een zwitsers chalet en een luxe jacht. De grote overstekken en het lijnenspel van het gebouw geven dynamiek aan de buitenzijde en laten zien dat het bedrijf continu in beweging is. De overkapbare buitenterrassen en de buitenbar maken het mogelijk om op ieder weertype in te spelen, er is zelfs een stukje strand met ligbedden en een trouwprieel in de uiterstepunt. De materialisatie kenmerkt zich door de ruwe eerlijke afwerking waarbij veel gebruik van natuurlijke materialen is gemaakt.
De terrassen bevinden zich op de begane grond en eerste verdieping en zijn integraal meeontworpen met het gebouw, een kwinkslag naar de jachtbouw. Rondom het gebouw bevind zich aan drie zijden water waardoor het lijkt alsof het ieder moment kan wegvaren. De omliggende omgeving (de jachthaven, rivier de Amer en de Biesbosch) wordt door de grote glaspartijenen en de ruime overstekken naar binnen getrokken tot de kern. Hierdoor vervagen de grenzen tussen binnen en buiten en wordt het gebouw één met zijn omgeving.De afwerking van het interieur aan de binnenzijde is geheel in harmonie met het gebouw bedacht:
grote doorkijkhaarden met hertegeweien die rechtstreeks uit de overliggende Biesbosch lijken te komen. loungebanken van barnwood met rendiervellen om langdurig te kunnen tafelen. op de eerste verdieping enorme houten spanten met houten dakbeschot in combinatie met gevlinderde betonnen vloeren.
Het interieur is met een uitgekiend verlichtingsplan in iedere gewenste sfeer te brengen. Naar gelang de dag of het seizoen vordert is hierdoor de sfeer geheel aanpasbaar door één simpele druk op de knop. De hoge kwaliteit van de keuken en serviceniveau sluiten volledig aan bij dit unieke project. More-itz heeft overal net iets meer…
Stel jezelf kort voor! Dan weet het betreffende bedrijf wie hun model gedownload heeft.
Wil je niet bij elke download jouw gegevens in hoeven voeren?
Klik dan hier om in te loggen
.
Heb je nog geen account?
Maak dan hier een gratis account aan
.
Voornaam
Achternaam
E-mailadres
Downloaden
Wanneer je modellen downloadt op Architectenweb.nl worden relevante gegevens van jou – zoals jouw naam en e-mailadres – met het betreffende bedrijf gedeeld. Meer hierover lees je in ons
privacybeleid
.
Locatie
Trefwoorden
drimmelen
haven
bint
woning
restaurant
BINT architecten
Neem contact op
Projectdata
Staat van realisatie
Voltooid
Start bouw
2016
Plaats
Drimmelen
Bruto m
2
820
Neem contact op met
BINT architecten
Je bent momenteel niet ingelogd. Hierdoor is het alleen mogelijk om meer informatie per e-mail op te vragen. Wil je liever gebeld worden of documentatie per post ontvangen?
Klik dan hier om in te loggen
.
Heb je nog geen account?
Maak dan hier een gratis account aan
.
Voornaam
Achternaam
E-mailadres
Opmerkingen
Bij iedere aanvraag worden relevante gegevens van jou gedeeld met het betreffende bedrijf. Meer hierover lees je in ons
privacybeleid
.
Ja, denk met me mee rond de
materialisering van mijn project
Meer projecten van BINT architecten
Restaurant Abel, Poortugaal
BINT architecten
Strandpaviljoen Ocean Oasis, Bonaire
BINT architecten
Villa Goeree-Overflakkee
BINT architecten
Paviljoen De Watering Katwijk
BINT architecten
Pannenkoeken Restaurant, Cruquius
BINT architecten
Ontvangstgebouw RCN Het Grote Bos, Doorn
BINT architecten
Stadshavengebouw Amstelkwartier
BINT architecten
Centrumgebouw Oesterdam Resort
BINT architecten
Jaarrondpaviljoen Sjoerd
BINT architecten
Aloha Surfschool
BINT architecten
C • T coffee & coconuts
BINT architecten
Jaarrondpaviljoen Paal 14
BINT architecten
Paviljoen The Coast
BINT architecten
Visie Ahoy 2030
BINT architecten
Binnenstadplan Apeldoorn
BINT architecten
Strandpaviljoen Tijn Akersloot
BINT architecten
Villa Avenue Aruba
BINT architecten
Camping Duinlust
BINT architecten
Coral Triangle Center
BINT architecten
Restaurant Abel, Poortugaal
BINT architecten
Strandpaviljoen Ocean Oasis, Bonaire
BINT architecten
Villa Goeree-Overflakkee
BINT architecten
Paviljoen De Watering Katwijk
BINT architecten
Pannenkoeken Restaurant, Cruquius
BINT architecten
Ontvangstgebouw RCN Het Grote Bos, Doorn
BINT architecten
Stadshavengebouw Amstelkwartier
BINT architecten
Centrumgebouw Oesterdam Resort
BINT architecten
Jaarrondpaviljoen Sjoerd
BINT architecten
Aloha Surfschool
BINT architecten
C • T coffee & coconuts
BINT architecten
Jaarrondpaviljoen Paal 14
BINT architecten
Paviljoen The Coast
BINT architecten
Visie Ahoy 2030
BINT architecten
Binnenstadplan Apeldoorn
BINT architecten
Strandpaviljoen Tijn Akersloot
BINT architecten
Villa Avenue Aruba
BINT architecten
Camping Duinlust
BINT architecten
Coral Triangle Center
BINT architecten
Toon alles
Andere Projecten
Almere De Laren
Schippers Architecten
Open vloergootsysteem voor The CubeHouse Amsterdam
HPL Systems BV
Nieuwe kantoorinrichting BDO Brabant
Kronospan
De Toerist in Breda
DUCO Ventilation & Sun Control
In ontwikkeling: IKC Strandeiland, Amsterdam
WEBO
Gorter op nieuwbouw sociale huurappartementen
Gorter Luiken BV
Prefab villa - Egmond aan Zee
Houthandel van Dam
Nieuwbouw poeliersbedrijf Van Berkel Kip
Ruys Groep
Nieuwbouw 107 appartementen Spoordok
Gorter Luiken BV
Appartementencomplex - Résidence Gooiland
Rodruza B.V.
Nieuwbouwwijk - Oosterparkkwartier
Rodruza B.V.
Nieuwbouwwijk - New Brooklyn
Rodruza B.V.
Ga naar het projecten-overzicht
Voor een optimale gebruikservaring plaatst Architectenweb functionele cookies. Wat de verschillende cookies precies doen leggen we uit in een
overzicht
. Cookies van social media kun je optioneel
aanzetten
.
Akkoord
Instellingen
Annuleren
OK
Sluiten
Doorgaan
Inloggen
Maak een gratis persoonlijk account aan
Feedback
Feedback
Wij horen graag jouw feedback. Laat je reactie achter en eventueel jouw e-mail adres.
Reactie
Verstuur