Projecten
Producten
Bedrijven
Vacatures
Agenda
Awards
Podcasts
more_horiz
Videos
Magazine
Favorieten
Profiel
Uitloggen
Abonneer je nu op onze nieuwsbrieven!
Abonneren
Nee, bedankt
Ja, denk met me mee rond de
materialisering van mijn project
Producten
Copyright: BINT architecten
Copyright: BINT architecten
Copyright: BINT architecten
Copyright: BINT architecten
Copyright: BINT architecten
Copyright: BINT architecten
Copyright: BINT architecten
Copyright: BINT architecten
Copyright: BINT architecten
Copyright: BINT architecten
Copyright: BINT architecten
Copyright: BINT architecten
Copyright: BINT architecten
Copyright: BINT architecten
Copyright: BINT architecten
Producttags
AAN
UIT
Centrumgebouw Oesterdam Resort
16 januari 2019
1
0
0
0
Voor
Oesterdam Resort
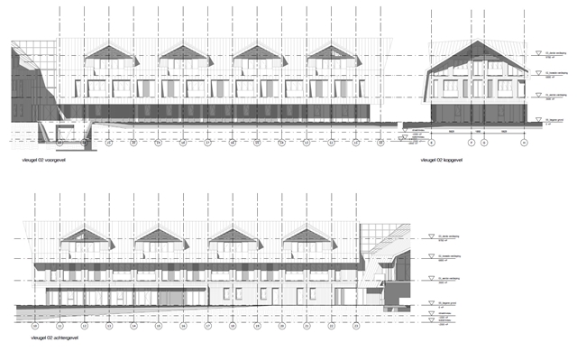
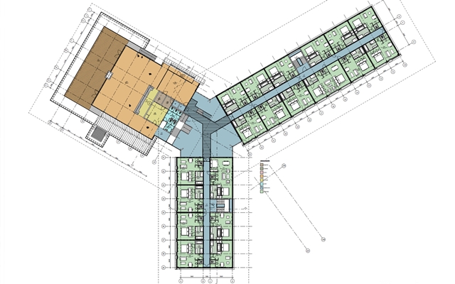
in Tholen heeft BINT het multifunctioneel centrumgebouw ontworpen. De voorzieningen in het centrumgebouw bestaan uit: receptie, hotelappartementen, diverse horeca, detailhandel, multifunctionele ruimten, kantoren, havensanitair en wellnesruimten . De locatie van het park is aan de Oesterdam gelegen midden in de Zeelandse delta en natuur. Rondom het centrumgebouw worden een nieuwe haven, ruime parkeergelegenheid en een ligstrand aangelegd.
Het concept voor het gebouw is gebaseerd op een stervorm met drie punten die letterlijk in het centrum samen komen. Doordat het totale programma over de drie vleugels is verdeelt, valt er altijd een vleugel achter het gebouw. Hoerdoor blijft het in aanzicht een bescheiden volume. De armen ‘vangen’ het omliggende landschap en grijpen naar de horizon de kopgevels geven uitstraling richting de verschillende windstreken en vormen vanaf het water het oriëntatiepunt.
Stel jezelf kort voor! Dan weet het betreffende bedrijf wie hun model gedownload heeft.
Wil je niet bij elke download jouw gegevens in hoeven voeren?
Klik dan hier om in te loggen
.
Heb je nog geen account?
Maak dan hier een gratis account aan
.
Voornaam
Achternaam
E-mailadres
Downloaden
Wanneer je modellen downloadt op Architectenweb.nl worden relevante gegevens van jou – zoals jouw naam en e-mailadres – met het betreffende bedrijf gedeeld. Meer hierover lees je in ons
privacybeleid
.
Locatie
Trefwoorden
haven
vakantiepark
appartementen
horeca
atrium
centrumgebouw
leisure
BINT architecten
Neem contact op
Projectdata
Staat van realisatie
Voltooid
Start ontwerpproces
2017
Start bouw
2018
Oplevering
2019
Plaats
Tholen
Bruto m
2
4500
Meewerkende partijen
Architect
BINT architecten
Opdrachtgever
Waterrijk Oesterdam
Leveranciers
Gevelbekleding
Leegwater Houtbereiding B.V.
Neem contact op met
BINT architecten
Je bent momenteel niet ingelogd. Hierdoor is het alleen mogelijk om meer informatie per e-mail op te vragen. Wil je liever gebeld worden of documentatie per post ontvangen?
Klik dan hier om in te loggen
.
Heb je nog geen account?
Maak dan hier een gratis account aan
.
Voornaam
Achternaam
E-mailadres
Opmerkingen
Bij iedere aanvraag worden relevante gegevens van jou gedeeld met het betreffende bedrijf. Meer hierover lees je in ons
privacybeleid
.
Ja, denk met me mee rond de
materialisering van mijn project
Meer projecten van BINT architecten
Restaurant Abel, Poortugaal
BINT architecten
Strandpaviljoen Ocean Oasis, Bonaire
BINT architecten
Villa Goeree-Overflakkee
BINT architecten
Paviljoen De Watering Katwijk
BINT architecten
Pannenkoeken Restaurant, Cruquius
BINT architecten
Ontvangstgebouw RCN Het Grote Bos, Doorn
BINT architecten
Stadshavengebouw Amstelkwartier
BINT architecten
Jaarrondpaviljoen Sjoerd
BINT architecten
Aloha Surfschool
BINT architecten
C • T coffee & coconuts
BINT architecten
Restaurant More Itz
BINT architecten
Jaarrondpaviljoen Paal 14
BINT architecten
Paviljoen The Coast
BINT architecten
Visie Ahoy 2030
BINT architecten
Binnenstadplan Apeldoorn
BINT architecten
Strandpaviljoen Tijn Akersloot
BINT architecten
Villa Avenue Aruba
BINT architecten
Camping Duinlust
BINT architecten
Coral Triangle Center
BINT architecten
Restaurant Abel, Poortugaal
BINT architecten
Strandpaviljoen Ocean Oasis, Bonaire
BINT architecten
Villa Goeree-Overflakkee
BINT architecten
Paviljoen De Watering Katwijk
BINT architecten
Pannenkoeken Restaurant, Cruquius
BINT architecten
Ontvangstgebouw RCN Het Grote Bos, Doorn
BINT architecten
Stadshavengebouw Amstelkwartier
BINT architecten
Jaarrondpaviljoen Sjoerd
BINT architecten
Aloha Surfschool
BINT architecten
C • T coffee & coconuts
BINT architecten
Restaurant More Itz
BINT architecten
Jaarrondpaviljoen Paal 14
BINT architecten
Paviljoen The Coast
BINT architecten
Visie Ahoy 2030
BINT architecten
Binnenstadplan Apeldoorn
BINT architecten
Strandpaviljoen Tijn Akersloot
BINT architecten
Villa Avenue Aruba
BINT architecten
Camping Duinlust
BINT architecten
Coral Triangle Center
BINT architecten
Toon alles
Gerelateerde producten
Colorseen
Het kleurrijke huismerk van Leegwater
Leegwater Houtbereiding B.V.
Andere Projecten
Meerweide Aafje
Holonite B.V.
De entree als het begin van een culturele ervaring
EMCO Benelux B.V.
Systeemwanden in distributiecentrum Hunkemöller
QbiQ Wall Systems
Slimme afvaloplossing in een duurzaam zorggebouw
Stansz
Canopy House
Malaysian Timber Council
Pol Heeteren BV
Klöber
Akoestische ventilatieroosters woontoren Magnus
Storax
Klimaatinnovatie in houtbouw: Mandemaat 3
Halton Ventilation Systems
Renovatie parkeergarage De Vest
Triflex bv
Kliniek San Juan de Dios in Madrid
ULMA Architectural Solutions
Vliesgevel screens Netceed kantoorgebouw
Renson
Kantoorinterieur Greenflux Amsterdam
Bureau Fraai
Ga naar het projecten-overzicht
Voor een optimale gebruikservaring plaatst Architectenweb functionele cookies. Wat de verschillende cookies precies doen leggen we uit in een
overzicht
. Cookies van social media kun je optioneel
aanzetten
.
Akkoord
Instellingen
Annuleren
OK
Sluiten
Doorgaan
Inloggen
Maak een gratis persoonlijk account aan
Feedback
Feedback
Wij horen graag jouw feedback. Laat je reactie achter en eventueel jouw e-mail adres.
Reactie
Verstuur