Projecten
Producten
Bedrijven
Vacatures
Agenda
Awards
Podcasts
more_horiz
Videos
Magazine
Thema's
Favorieten
Profiel
Uitloggen
Nieuw
Populair
Toon alles
Architectenweb magazine #14
Architectenweb magazine #13
Publieke gebouwen
Architectenweb magazine #12
Kantoren
Architectenweb magazine #11
Scholen
Architectenweb magazine #10
Zorg
Architectenweb magazine #14
Architectenweb magazine #10
Zorg
Architectenweb magazine #12
Kantoren
Architectenweb magazine #13
Publieke gebouwen
Architectenweb magazine #6
Transformatie en Renovatie
Om direct naar je favorieten te kunnen gaan is het nodig om eerst in te loggen.
Nieuw
Architectenweb Awards 2025
Architectenweb Awards 2024
Architectenweb Awards 2023
Architectenweb Awards 2022
Architectenweb Awards 2021
Architectenweb Awards 2020
Architectenweb Awards 2019
Architectenweb Awards 2018
Om direct naar je favorieten te kunnen gaan is het nodig om eerst in te loggen.
Nieuw
Populair
Favorieten
Toon alles
Vakwerk Architecten
Nominatie voor de prijs voor Architect van het Jaar 2025
Sanne van Manen
Nominatie voor de prijs voor Architect van het Jaar 2025
KSA
Nominatie voor de prijs voor Architect van het Jaar 2025
KRFT
Nominatie voor de prijs voor Architect van het Jaar 2025
Joost Ector
Nominatie voor de prijs voor Architect van het Jaar 2025
Prijsuitreiking Architectenweb Awards 2024
Impressie van een feestelijke avond
Martens, Willems & Humblé Architecten
Nominatie voor de prijs voor Architect van het Jaar 2024
Uitreiking van Architectenweb Awards 2020
Impressie van de prijsuitreiking via Zoom
De Zwarte Hond
Nominatie voor de prijs voor Architect van het Jaar 2024
Avond met De Zwarte Hond
Symposium
Om direct naar je favorieten te kunnen gaan is het nodig om eerst in te loggen.
Nieuw
Populair
Categorieën
Favorieten
Toon alles
Brandpreventie Academy BV
Cay Circulaire Keukens
Circulaire keukens en pantry's
Studio Kirsten Reith
Interieurontwerp
Studio175
Interieuradvies in regio Utrecht
Orange Automatic Doors
Indoorwrap
De specialist in Keukenwrappen
Cay Circulaire Keukens
Circulaire keukens en pantry's
Studio Kirsten Reith
Interieurontwerp
Studio175
Interieuradvies in regio Utrecht
Interior & Co
Indoorwrap
De specialist in Keukenwrappen
Orange Automatic Doors
Architecten
Architectuur
Mobiliteit en infrastructuur
Stedenbouw en landschapsarchitectuur
Leveranciers
Gevels
Daken
Ramen en deuren
Trappen, liften en balustrades
Binnenwanden
Vloeren
Plafonds
Verlichting
Sanitair
Projectinrichting
Installaties
Constructies
Buitenruimte
Software
Adviseurs
Bestekschrijvers
Bouwmanagement
Installatie adviseurs E
Bouwfysica
Calculators
Installatie adviseurs G/W
Bouwkundig tekenwerk
Constructeurs
Lichtadviseurs
Adviseur beveiliging
Juristen
Intermediairs, Payrolling
Aannemers
Overig
Presentatie
Instellingen / onderwijs
Overig
Om direct naar je favorieten te kunnen gaan is het nodig om eerst in te loggen.
Nieuw
Populair
Favorieten
Toon alles
Gesprek met Stephan Sliepenbeek over hoogbouw in Amstel III
Gesprek met Ellen van Bueren over gebiedsontwikkeling en hoogbouw
Gesprek met Ma Yansong over ontwerpen die emotie oproepen
Gesprek met Paul de Ruiter over innovatieve en duurzame hoogbouw
Gesprek met Pi de Bruijn over zijn ontwerpen voor de Tweede Kamer toen en nu
Gesprek met Ellen van Bueren over gebiedsontwikkeling en hoogbouw
Gesprek met Oresti Sarafopoulos over het ontwerpen van een kantoorgebouw met bijna geen installaties
Gesprek met Stijn Steenbakkers over verdichting en hoogbouw in Eindhoven
Gesprek met Pi de Bruijn over zijn ontwerpen voor de Tweede Kamer toen en nu
Gesprek met Paul de Ruiter over innovatieve en duurzame hoogbouw
Om direct naar je favorieten te kunnen gaan is het nodig om eerst in te loggen.
Nieuw
Populair
Categorieën
Favorieten
Toon alles
De energiemarkt revolutionair vernieuwen
Festivalterrein als inspiratie van dit kantoor
De antieke Agora als inspiratie voor een kantoor
Renovatieproject Ockenburghstraat
Aluminium kozijnen: de isolerende oplossing
Prinsenpark, Rotterdam
ASML Gebouw 3
IVY, Amsterdam
IKC De Brug
Houthavens, Amsterdam
Architectuur
Woningbouw
Zorg
Hotels
Restaurants en café’s
Winkels
Sportgebouwen
Culturele gebouwen
Overheidsgebouwen
Scholen
Kantoren
Bedrijfsgebouwen
Paviljoens en kunst
Overig
Mobiliteit en infrastructuur
Trein- en metrostations
Luchthavens
Busstations
Parkeergarages
Fietsparkeren
Wegen
Bruggen
Water
Energie
Tankstations en laadstations
Waterzuivering en afvalverwerking
Overig
Stedenbouw en landschapsarchitectuur
Regionale visies
Gebiedsvisies
Plannen stedelijk weefsel
Amusementsparken en dierentuinen
Lichtontwerpen
Openbare ruimte
Pleinen
Parken
Tuinen
Speelplaatsen
Uitkijktorens
Overige (bijv. begraafplaatsen)
Om direct naar je favorieten te kunnen gaan is het nodig om eerst in te loggen.
Nieuw
Populair
Categorieën
Favorieten
Toon alles
Control Track Versa
Langdurige flexibiliteit voor kantoren van de toekomst
Toegankelijkheid in de stad: klanktegels als gids
Een nieuwe dimensie in stadsontwerp: integreren van klank voor een inclusieve ervaring.
Dreentegel
Terug van weggeweest
Flux-totaalaanbod vraaggestuurde Renson WTW-ventilatie
Compacte wand- en plafondmontage voor alle debieten
Wie denkt er aan slopen tijdens bouwen?
Kies voor de toekomst, kies voor circulair isoleren!
Digital Prints
Meer mogelijkheden in gekleurd staal
Element+ H-I
Hout - Aluminium Elementgevel
Vierkante vluchtroutearmaturen voor grote ruimtes
Zichtbare veiligheid van alle kanten
GROHE Cubeo: kranen voor elke badkamer
Stijlvol en duurzaam design voor jarenlang plezier
Schüco Zonweringsysteem Integralmaster in FWS
Bescherming tegen zon, verblinding en privacy – verborgen en volledig geïntegreerd
Gevels
Gevelbekleding
Vliesgevels
Zonwering buiten
Isolatie
Gevelconstructies
Signing
Overig
Daken
Dakafwerkingen
Dakisolatie
Dakconstructies
Dakranden, dakgoten en HWA's
Dakramen
Lichtkoepels
Lichtstraten
Schoorstenen
Overig
Dakluiken
Ramen en deuren
Raam- en deursystemen / kozijnen
Vliesgevels
Hang- en sluitwerk
Beveiliging en luiken
Dorpels en vensterbanken
Lateien
Roosters
Glas
Dakramen
Dakkoepels
Lichtstraten
Zonwering buiten
Zonwering binnen
Buitendeuren
Binnendeuren
Postvakken en brievenbussen
Overig
Dakluiken
Trappen, liften en balustrades
Trappen
Roltrappen
Liften
Balustrades en hekwerken
Galerijen
Binnenwanden
Binnenwanden
Wandafwerking
Vloeren
Constructieve vloeren
Verhoogde vloeren
Vloerafwerkingen
Overig
Plafonds
Tegels
Lineair
Grill
Open en roosters
Naadloos
Eilanden en baffles
Plafondafwerkingen
Ophangsystemen
Overig
Klimaatplafonds
Verlichting
Binnenverlichting
Buitenverlichting
Sanitair
Kranen en douchesets
Wastafels
Douchewanden en douchebakken
Baden
Waterclosets
Accessoires
Overig
Projectinrichting
Stoelen
Banken
Tafels
Kasten
Balies
Vrijstaande wanden
Keukens
Accessoires
Overig
Cabines
Interieurbeplanting
Stoffering
Installaties
Verwarming, koeling en ventilatie
Elektrotechnische installaties
Schakelmateriaal
Domotica
Deurcommunicatie
Beveiliging
Liften
Onderhoudsinstallaties
Overig
Brandbeveiliging
Constructies
Draagconstructies
Funderingen en kelders
Overig
Brandbeveiliging
Buitenruimte
Bestratingen en verhardingen
Afwateringen
Terreinafscheidingen en geluidsschermen
Buitenmeubilair
Fietsparkeren
Terrassen
Terrasoverkappingen
Bruggen
Accessoires
Overig
Beplanting
Sport- en speeltoestellen
Software
Tekenen 2D
Modelleren 3D / BIM
Visualisatie / rendering
Parametrisch ontwerpen
Bouwfysica
Draagconstructie
Overig
Virtual Reality
Cloudoplossingen
Om direct naar je favorieten te kunnen gaan is het nodig om eerst in te loggen.
Nieuw
Populair
Favorieten
Toon alles
Zomerwandelingen Nieuwe Stad op Zondag 2025
Amsterdam
Prefab beurs - 7 t/m 9 oktober 2025
Brabanthallen 's-Hertogenbosch
Boekpresentatie en panelgesprek met Floor Milikows
Prins Hendrikkade 600, 1011 VX Amsterdam
Architects Table ’25: Lunch & Inspiratie in HAUT Amsterdam
ATAG LIVE – HAUT gebouw, Spaklerweg 10F, 1096 BA Amsterdam (tegenover metrostation Spaklerweg)
Inspiratiedag @ Sempergreen – Gevelgroen
Defensieweg 1, 3984 LR Odijk
Architects Table ’25: Lunch & Inspiratie in HAUT Amsterdam
ATAG LIVE – HAUT gebouw, Spaklerweg 10F, 1096 BA Amsterdam (tegenover metrostation Spaklerweg)
Ontdek het seminarieprogramma van Architect@Work Amsterdam
De Kromhouthal, Gedempt Hamerkanaal 231, Amsterdam
LIAG over duurzaamheid centraal in project
Online
1.Lectures HouseEurope! Renovate, don’t speculate
Pakhuis de Zwijger
Zomerwandelingen Nieuwe Stad op Zondag 2025
Amsterdam
Om direct naar je favorieten te kunnen gaan is het nodig om eerst in te loggen.
Nieuw
Toon alles
Design
Duurzaamheid
Gevel
Infrastructuur
Interieur
Kantoren
Leisure
Openbare ruimte
Publieke gebouwen
Scholen
Transformatie en Renovatie
Woningbouw
Zorg
Om direct naar je favorieten te kunnen gaan is het nodig om eerst in te loggen.
Nieuw
Populair
Toon alles
Junior Architect (NL/EN)
De Academie van Bouwkunst Amsterdam zoekt twee onderzoekers voor lectoraat
Site Practice zoekt medior architect met 3-6 jaar ervaring (Amsterdam)
DAT zoekt een BIM Modelleur (Revit)
stagiair bouwkunde Heerenveen
Meewerkend Voorman
Architect
Junior Architect gezocht!
Junior Ontwerper
Studio Nauta zoekt projectleider
wUrck zoekt junior Architect
Project Architect
Om direct naar je favorieten te kunnen gaan is het nodig om eerst in te loggen.
Producten
Duurzaam kantoor met low tech oplossing voor zonwering en maximale inzet hernieuwbare materialen
Copyright: GROUP A
Ferro kantoor gelegen in Rotterdam Makers District M4H
Copyright: GROUP A
Voor: Focus op industrie en verkeer met veel staal en beton
Copyright: GROUP A
Rotterdam Makers District combineert wonen en werken in groene omgeving
Copyright: GROUP A
Duidelijke entree aan en interactie met het Ferro plein
Copyright: GROUP A
Sloop voor een centraal collectief hart en heldere entree
Copyright: GROUP A
Optopping met een extra verdieping vergroot stedenbouwkundige zichtbaarheid
Copyright: GROUP A
Voormalig Ferro kantoor
Copyright: GROUP A
Hergebruik van het casco
Copyright: GROUP A
Copyright: GROUP A
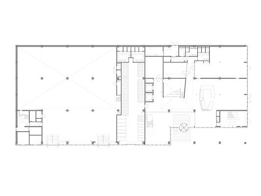
Plattegrond begane grond met enerzijds collectieve ruimte en anderzijds makersruimte
Copyright: GROUP A
Voormalig Ferro kantoor
Copyright: GROUP A
Warme uitstraling met houten gevel en groene buitenruimte
Copyright: GROUP A
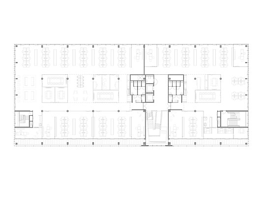
Plattegrond eerste verdieping met flexibele kantoorvloeren
Copyright: GROUP A
Entreegebied
Copyright: GROUP A
Teruggelegde gevel voor aantrekkelijke buitenruimte
Copyright: GROUP A
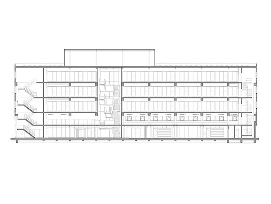
Doorsnede met tribunetrap in publieke plint
Copyright: GROUP A
Dubbelhoge makersruimte
Copyright: GROUP A
Doorsnede met centraal trappenhuis
Copyright: GROUP A
Vide met trappenhuis draagt bij aan ontmoeting
Copyright: GROUP A
Doorsnede sculpturale trap
Copyright: GROUP A
Detail houten gevel
Copyright: GROUP A
Producttags
AAN
UIT
Duurzaam visitekaartje van M4H Rotterdam
23 februari 2024
2
0
0
0
Het ontwerp transformeert het kantoor in een duurzaam verzamelgebouw dat met hergebruik van het bestaande casco, een grotendeels biobased gevel, energielabel A++++ én pv-panelen op het dak recht doet aan de duurzaamheidsambities van de beoogde vastgoedontwikkelingen in het gebied.
Deze transformatie wordt hét visitekaartje van M4H Rotterdam (Merwe-Vierhavens), dat samen met RDM Rotterdam het Rotterdam Makers District vormt. Hier werken gemeente Rotterdam en het Havenbedrijf Rotterdam gezamenlijk aan een geheel nieuw gebiedsconcept, waar straks wonen, onderwijs en werken samengaan. Ferro Offices wordt de plek voor de nieuwe generatie (maritieme) maakbedrijven binnen de thema’s energietransitie, mobiliteit en circulariteit.
Hergebruik casco
Het gebouw is een herbestemming van het voormalige Ferro kantoor uit 1969. Hergebruik van het casco staat centraal in het ontwerp. Hiermee is de CO2-uitstoot met een geschatte 75% verminderd ten opzichte van volledige nieuwbouw. Door gebruik te maken van het draagvermogen van het casco is een extra verdieping toegevoegd aan het bestaande volume. De gevel aan de zuidkant is teruggelegd om buitenruimte te creëren en op een natuurlijke manier de inval van dag- en zonlicht te regelen. Met de houten gevel en begroeiing op de balkons biedt het gebouw een warm contrast met de industriële omgeving.
Inspirerend werklandschap
Een ruim collectief gebied vormt het hart van het multi-tenant kantoor met bedrijfsruimte waar ontmoeting wordt gestimuleerd. Door het gebouw van binnenuit te openen ontstaat een vide die daglicht tot diep in het gebouw brengt en de entree accentueert. Hier verbindt een sculpturale trap de flexibel opgezette kantoorvloeren. Het entreegebied biedt ruimte voor programmering met een houten tribunetrap en koffie- & lunchbar.
Betrokken in het gebied
Voor het ontwerp van Ferro Offices is GROUP A geselecteerd dat gevestigd is in het nabijgelegen Keilepand. Het architectenbureau is nauw betrokken bij de gebiedsontwikkeling van M4H’s Rotterdam Makers District, heeft veel kennis in het verduurzamen van historische panden en speelt een actieve verbindende rol in het gebied. Als onderdeel van het Keilecollectief agendeert GROUP A ruimtelijke vraagstukken, die de ontwikkeling van M4H raken, in tentoonstellingen en debatten.
Duurzaam kantoorgebouw
Het pand conform BREEAM-NL-outstanding ontwerpcertificaat wordt gebouwd volgens de BENG normen (Bijna Energieneutrale Gebouwen) en wordt gasloos opgeleverd. En met een ‘all electric’ bouwplaats wordt ook tijdens de bouw de uitstoot geminimaliseerd. Dura Vermeer Bouw Heyma is verantwoordelijk voor de realisatie van het ontwerp. Ferro Offices wordt naar verwachting in het tweede kwartaal van 2025 opgeleverd.
Stel jezelf kort voor! Dan weet het betreffende bedrijf wie hun model gedownload heeft.
Wil je niet bij elke download jouw gegevens in hoeven voeren?
Klik dan hier om in te loggen
.
Heb je nog geen account?
Maak dan hier een gratis account aan
.
Voornaam
Achternaam
E-mailadres
Downloaden
Wanneer je modellen downloadt op Architectenweb.nl worden relevante gegevens van jou – zoals jouw naam en e-mailadres – met het betreffende bedrijf gedeeld. Meer hierover lees je in ons
privacybeleid
.
Locatie
Trefwoorden
m4h
duurzaam hergebruik
nieuwbouw
duurzaam
GROUP A
Neem contact op
Projectdata
Staat van realisatie
In ontwikkeling
Start ontwerpproces
2018
Start bouw
2024
Oplevering
2025
Plaats
Rotterdam
Bruto m
2
8250
Meewerkende partijen
Architect
GROUP A
Opdrachtgever
Port of Rotterdam
Aannemer
Dura Vermeer Heyma
Constructeur
Lievense | WSP
Adviseurs installaties E & W
DVP B.V., Techniplan Adviseurs
Adviseur bouwfysica
TRAJECT Adviseurs & Managers
Adviseur brandveiligheid
Bureau Veldweg, IOB
Leveranciers
Houten gevel
WVH Gevelprojecten
Neem contact op met
GROUP A
Je bent momenteel niet ingelogd. Hierdoor is het alleen mogelijk om meer informatie per e-mail op te vragen. Wil je liever gebeld worden of documentatie per post ontvangen?
Klik dan hier om in te loggen
.
Heb je nog geen account?
Maak dan hier een gratis account aan
.
Voornaam
Achternaam
E-mailadres
Opmerkingen
Bij iedere aanvraag worden relevante gegevens van jou gedeeld met het betreffende bedrijf. Meer hierover lees je in ons
privacybeleid
.
Ja, denk met me mee rond de
materialisering van mijn project
Meer projecten van GROUP A
Behoud van monument als metro station in Hamburg
GROUP A
BRUIS: van bankgebouw naar cultureel centrum
GROUP A
Karakteristieke bouwblokken voor Utrecht Merwede
GROUP A
Compacte fabriek voor duurzame toekomst
GROUP A
Afwerking Premetro stations Antwerpen
GROUP A
Hybride stadsblok met collectieve daktuinen
GROUP A
Duurzame interieuridentiteit voor Service Apotheek
GROUP A
Interieur Damen Schiedam
GROUP A
TNO Bouwinnovatie lab geeft impuls aan innovatie
GROUP A
Teaching Lab TU Delft
GROUP A
Forum Zuid, stationsgebied Utrecht Centraal
GROUP A
Groene oase voor werken in de skyline van Utrecht
GROUP A
Dynamische transformatie Keilepand M4H
GROUP A
Gortercomplex, herbestemming en nieuwbouw
GROUP A
Stationsgebouw en omgeving station Harderwijk
GROUP A
Hoofdkantoor DOW Benelux
GROUP A
Stationsrenovatie metro Oostlijn
GROUP A
Interieur gemeentekantoor 'De Rotterdam'
GROUP A
Herinrichting kantoorgebouw 'De Schelde'
GROUP A
Herinrichting rijksmonument Nieuwe Kerk
GROUP A
Winkel- en kantoorruimte Central Plaza
GROUP A
Nieuw interieur aannemersbedrijf Cordeel
GROUP A
Werkplaats Steigereiland
GROUP A
Kantoor BP Raffinaderij
GROUP A
Mariendaal Centre of Excellence
GROUP A
Crematorium Zorgvlied
GROUP A
Ontwerp/uitvoering centrum Het Lichtruim
GROUP A
Ontwerp/uitvoering interieur advocatenkantoor
GROUP A
Ontwerp/uitvoering eigentijdse villa
GROUP A
Nieuw interieur voor Aramco Overseas Company
GROUP A
Ontwerp/uitvoering loodsencomplex De Smederij
GROUP A
Ontwerp/uitvoering Blaak 8
GROUP A
Ontwerp/uitvoering Blok 1 Presikhaaf
GROUP A
Ontwerp/uitvoering AkzoNobel Centre & Art Space
GROUP A
Ontwerp/uitvoering hoofdkantoor Sabic Europe
GROUP A
Ontwerp/uitvoering kantoren Caballerofabriek
GROUP A
Ontwerp/uitvoering woonhuis kavel 108
GROUP A
Ontwerp/uitvoering Booster rioolgemaal
GROUP A
Behoud van monument als metro station in Hamburg
GROUP A
BRUIS: van bankgebouw naar cultureel centrum
GROUP A
Karakteristieke bouwblokken voor Utrecht Merwede
GROUP A
Compacte fabriek voor duurzame toekomst
GROUP A
Afwerking Premetro stations Antwerpen
GROUP A
Hybride stadsblok met collectieve daktuinen
GROUP A
Duurzame interieuridentiteit voor Service Apotheek
GROUP A
Interieur Damen Schiedam
GROUP A
TNO Bouwinnovatie lab geeft impuls aan innovatie
GROUP A
Teaching Lab TU Delft
GROUP A
Forum Zuid, stationsgebied Utrecht Centraal
GROUP A
Groene oase voor werken in de skyline van Utrecht
GROUP A
Dynamische transformatie Keilepand M4H
GROUP A
Gortercomplex, herbestemming en nieuwbouw
GROUP A
Stationsgebouw en omgeving station Harderwijk
GROUP A
Hoofdkantoor DOW Benelux
GROUP A
Stationsrenovatie metro Oostlijn
GROUP A
Interieur gemeentekantoor 'De Rotterdam'
GROUP A
Herinrichting kantoorgebouw 'De Schelde'
GROUP A
Herinrichting rijksmonument Nieuwe Kerk
GROUP A
Winkel- en kantoorruimte Central Plaza
GROUP A
Nieuw interieur aannemersbedrijf Cordeel
GROUP A
Werkplaats Steigereiland
GROUP A
Kantoor BP Raffinaderij
GROUP A
Mariendaal Centre of Excellence
GROUP A
Crematorium Zorgvlied
GROUP A
Ontwerp/uitvoering centrum Het Lichtruim
GROUP A
Ontwerp/uitvoering interieur advocatenkantoor
GROUP A
Ontwerp/uitvoering eigentijdse villa
GROUP A
Nieuw interieur voor Aramco Overseas Company
GROUP A
Ontwerp/uitvoering loodsencomplex De Smederij
GROUP A
Ontwerp/uitvoering Blaak 8
GROUP A
Ontwerp/uitvoering Blok 1 Presikhaaf
GROUP A
Ontwerp/uitvoering AkzoNobel Centre & Art Space
GROUP A
Ontwerp/uitvoering hoofdkantoor Sabic Europe
GROUP A
Ontwerp/uitvoering kantoren Caballerofabriek
GROUP A
Ontwerp/uitvoering woonhuis kavel 108
GROUP A
Ontwerp/uitvoering Booster rioolgemaal
GROUP A
Toon alles
Andere Projecten
Festivalterrein als inspiratie van dit kantoor
Tétris Design & Build
De energiemarkt revolutionair vernieuwen
Tétris Design & Build
De antieke Agora als inspiratie voor een kantoor
Tétris Design & Build
Renovatieproject Ockenburghstraat
Caparol
Aluminium kozijnen: de isolerende oplossing
Aliplast Aluminium Systems
Houten huis in de polder - WaxedWood Gold Color
Foreco Houtproducten
FÆnslet
VELUX Commercial Benelux B.V.
Den Hartogh Basecamp
Schüco Nederland BV
Werkplekken met verhoogd risico - Laboratoria
INOTEC Noodverlichting B.V.
Exclusieve wooneenheden
SAPA
Duurzaam afvalmanagement in nieuwbouw van Alrijne
Stansz
Woningen op BEFU terrein Utrecht
SAB-profiel bv
Ga naar het projecten-overzicht
Voor een optimale gebruikservaring plaatst Architectenweb functionele cookies. Wat de verschillende cookies precies doen leggen we uit in een
overzicht
. Cookies van social media kun je optioneel
aanzetten
.
Akkoord
Instellingen
Annuleren
OK
Sluiten
Doorgaan
Inloggen
Maak een gratis persoonlijk account aan
Feedback
Feedback
Wij horen graag jouw feedback. Laat je reactie achter en eventueel jouw e-mail adres.
Reactie
Verstuur