Projecten
Producten
Bedrijven
Vacatures
Agenda
Awards
Podcasts
more_horiz
Videos
Magazine
Thema's
Favorieten
Profiel
Uitloggen
Nieuw
Populair
Toon alles
Architectenweb magazine #14
Architectenweb magazine #13
Publieke gebouwen
Architectenweb magazine #12
Kantoren
Architectenweb magazine #11
Scholen
Architectenweb magazine #10
Zorg
Architectenweb magazine #14
Architectenweb magazine #10
Zorg
Architectenweb magazine #12
Kantoren
Architectenweb magazine #13
Publieke gebouwen
Architectenweb magazine #6
Transformatie en Renovatie
Om direct naar je favorieten te kunnen gaan is het nodig om eerst in te loggen.
Nieuw
Architectenweb Awards 2025
Architectenweb Awards 2024
Architectenweb Awards 2023
Architectenweb Awards 2022
Architectenweb Awards 2021
Architectenweb Awards 2020
Architectenweb Awards 2019
Architectenweb Awards 2018
Om direct naar je favorieten te kunnen gaan is het nodig om eerst in te loggen.
Nieuw
Populair
Favorieten
Toon alles
Vakwerk Architecten
Nominatie voor de prijs voor Architect van het Jaar 2025
Sanne van Manen
Nominatie voor de prijs voor Architect van het Jaar 2025
KSA
Nominatie voor de prijs voor Architect van het Jaar 2025
KRFT
Nominatie voor de prijs voor Architect van het Jaar 2025
Joost Ector
Nominatie voor de prijs voor Architect van het Jaar 2025
Prijsuitreiking Architectenweb Awards 2024
Impressie van een feestelijke avond
Martens, Willems & Humblé Architecten
Nominatie voor de prijs voor Architect van het Jaar 2024
Uitreiking van Architectenweb Awards 2020
Impressie van de prijsuitreiking via Zoom
De Zwarte Hond
Nominatie voor de prijs voor Architect van het Jaar 2024
Avond met De Zwarte Hond
Symposium
Om direct naar je favorieten te kunnen gaan is het nodig om eerst in te loggen.
Nieuw
Populair
Categorieën
Favorieten
Toon alles
Brandpreventie Academy BV
Cay Circulaire Keukens
Circulaire keukens en pantry's
Studio Kirsten Reith
Interieurontwerp
Studio175
Interieuradvies in regio Utrecht
Orange Automatic Doors
Indoorwrap
De specialist in Keukenwrappen
Brandpreventie Academy BV
Interior & Co
Studio175
Interieuradvies in regio Utrecht
Cay Circulaire Keukens
Circulaire keukens en pantry's
Studio Kirsten Reith
Interieurontwerp
Indoorwrap
De specialist in Keukenwrappen
Architecten
Architectuur
Mobiliteit en infrastructuur
Stedenbouw en landschapsarchitectuur
Leveranciers
Gevels
Daken
Ramen en deuren
Trappen, liften en balustrades
Binnenwanden
Vloeren
Plafonds
Verlichting
Sanitair
Projectinrichting
Installaties
Constructies
Buitenruimte
Software
Adviseurs
Bestekschrijvers
Bouwmanagement
Installatie adviseurs E
Bouwfysica
Calculators
Installatie adviseurs G/W
Bouwkundig tekenwerk
Constructeurs
Lichtadviseurs
Adviseur beveiliging
Juristen
Intermediairs, Payrolling
Aannemers
Overig
Presentatie
Instellingen / onderwijs
Overig
Om direct naar je favorieten te kunnen gaan is het nodig om eerst in te loggen.
Nieuw
Populair
Favorieten
Toon alles
Gesprek met Stephan Sliepenbeek over hoogbouw in Amstel III
Gesprek met Ellen van Bueren over gebiedsontwikkeling en hoogbouw
Gesprek met Ma Yansong over ontwerpen die emotie oproepen
Gesprek met Paul de Ruiter over innovatieve en duurzame hoogbouw
Gesprek met Pi de Bruijn over zijn ontwerpen voor de Tweede Kamer toen en nu
Gesprek met Ellen van Bueren over gebiedsontwikkeling en hoogbouw
Gesprek met Oresti Sarafopoulos over het ontwerpen van een kantoorgebouw met bijna geen installaties
Gesprek met Stijn Steenbakkers over verdichting en hoogbouw in Eindhoven
Gesprek met Pi de Bruijn over zijn ontwerpen voor de Tweede Kamer toen en nu
Gesprek met Paul de Ruiter over innovatieve en duurzame hoogbouw
Om direct naar je favorieten te kunnen gaan is het nodig om eerst in te loggen.
Nieuw
Populair
Categorieën
Favorieten
Toon alles
Renovatie met respect voor oorspronkelijke ontwerp
Øbro-Hallen
Wonderwoods
Celsius
Duurzaam woonproject met veertien Gorter-dakluiken
Boekweitkamp, Den Haag
Exclusieve wooneenheden
Kantoorinterieur: van Rest tot Ruimte
De Grote Zwaan, Nijmegen
Renovatieproject Ockenburghstraat
Architectuur
Woningbouw
Zorg
Hotels
Restaurants en café’s
Winkels
Sportgebouwen
Culturele gebouwen
Overheidsgebouwen
Scholen
Kantoren
Bedrijfsgebouwen
Paviljoens en kunst
Overig
Mobiliteit en infrastructuur
Trein- en metrostations
Luchthavens
Busstations
Parkeergarages
Fietsparkeren
Wegen
Bruggen
Water
Energie
Tankstations en laadstations
Waterzuivering en afvalverwerking
Overig
Stedenbouw en landschapsarchitectuur
Regionale visies
Gebiedsvisies
Plannen stedelijk weefsel
Amusementsparken en dierentuinen
Lichtontwerpen
Openbare ruimte
Pleinen
Parken
Tuinen
Speelplaatsen
Uitkijktorens
Overige (bijv. begraafplaatsen)
Om direct naar je favorieten te kunnen gaan is het nodig om eerst in te loggen.
Nieuw
Populair
Categorieën
Favorieten
Toon alles
Een nieuwe generatie wandbekleding voor welzijn
Uitbreiding van Vescom Purefin
objectflor rubbervloeren nu Cradle to Cradle gecertificeerd
SaarFloor zijn bekroond met Cradle to Cradle certificaten
Collaro badkamercollectie
Karakter ontmoet stijlvol design
Core
Maximale geluidsisolatie en absorptie
Nieuwe rookeisen: wat is de impact voor architecten?
Ontdek de mogelijkheden voor jouw project
Akoestisch kussen.
Ervaar de ultime natuurlijke oplossing voor akoestiek problemen.
StoTherm Wood: cementvrij gevelsysteem met houtvezelisolatie
Biobased gevelisolatie met natuurlijke prestaties
Lumiglaze – Het vlakglas van VELUX Commercial
Een nieuw tijdperk in daglichtontwerp – minimalistisch, functioneel en klaar voor de toekomst.
Veelzijdig straatmeubilair
Van openbare ruimte naar (be)leefomgeving
Knauf MaxSpace
Minder wand, méér ruimte. Het ideale profiel voor meer winst per m²
Gevels
Gevelbekleding
Vliesgevels
Zonwering buiten
Isolatie
Gevelconstructies
Signing
Overig
Daken
Dakafwerkingen
Dakisolatie
Dakconstructies
Dakranden, dakgoten en HWA's
Dakramen
Lichtkoepels
Lichtstraten
Schoorstenen
Overig
Dakluiken
Ramen en deuren
Raam- en deursystemen / kozijnen
Vliesgevels
Hang- en sluitwerk
Beveiliging en luiken
Dorpels en vensterbanken
Lateien
Roosters
Glas
Dakramen
Dakkoepels
Lichtstraten
Zonwering buiten
Zonwering binnen
Buitendeuren
Binnendeuren
Postvakken en brievenbussen
Overig
Dakluiken
Trappen, liften en balustrades
Trappen
Roltrappen
Liften
Balustrades en hekwerken
Galerijen
Binnenwanden
Binnenwanden
Wandafwerking
Vloeren
Constructieve vloeren
Verhoogde vloeren
Vloerafwerkingen
Overig
Plafonds
Tegels
Lineair
Grill
Open en roosters
Naadloos
Eilanden en baffles
Plafondafwerkingen
Ophangsystemen
Overig
Klimaatplafonds
Verlichting
Binnenverlichting
Buitenverlichting
Sanitair
Kranen en douchesets
Wastafels
Douchewanden en douchebakken
Baden
Waterclosets
Accessoires
Overig
Projectinrichting
Stoelen
Banken
Tafels
Kasten
Balies
Vrijstaande wanden
Keukens
Accessoires
Overig
Cabines
Interieurbeplanting
Stoffering
Installaties
Verwarming, koeling en ventilatie
Elektrotechnische installaties
Schakelmateriaal
Domotica
Deurcommunicatie
Beveiliging
Liften
Onderhoudsinstallaties
Overig
Brandbeveiliging
Constructies
Draagconstructies
Funderingen en kelders
Overig
Brandbeveiliging
Buitenruimte
Bestratingen en verhardingen
Afwateringen
Terreinafscheidingen en geluidsschermen
Buitenmeubilair
Fietsparkeren
Terrassen
Terrasoverkappingen
Bruggen
Accessoires
Overig
Beplanting
Sport- en speeltoestellen
Software
Tekenen 2D
Modelleren 3D / BIM
Visualisatie / rendering
Parametrisch ontwerpen
Bouwfysica
Draagconstructie
Overig
Virtual Reality
Cloudoplossingen
Om direct naar je favorieten te kunnen gaan is het nodig om eerst in te loggen.
Nieuw
Populair
Favorieten
Toon alles
Prefab beurs - 7 t/m 9 oktober 2025
Brabanthallen 's-Hertogenbosch
Boekpresentatie en panelgesprek met Floor Milikowsky
Prins Hendrikkade 600, 1011 VX Amsterdam
Architects Table ’25: Lunch & Inspiratie in HAUT Amsterdam
ATAG LIVE – HAUT gebouw, Spaklerweg 10F, 1096 BA Amsterdam (tegenover metrostation Spaklerweg)
Inspiratiedag @ Sempergreen – Gevelgroen
Defensieweg 1, 3984 LR Odijk
Architectenweb symposium: klein maar fijn wonen?
Pakhuis de Zwijger
Ontdek het seminarieprogramma van Architect@Work Amsterdam
De Kromhouthal, Gedempt Hamerkanaal 231, Amsterdam
Architects Table ’25: Lunch & Inspiratie in HAUT Amsterdam
ATAG LIVE – HAUT gebouw, Spaklerweg 10F, 1096 BA Amsterdam (tegenover metrostation Spaklerweg)
Boekpresentatie en panelgesprek met Floor Milikowsky
Prins Hendrikkade 600, 1011 VX Amsterdam
InterSolution 2026, dé netwerk- en vakbeurs voor zonne-energie
Flanders Expo (Hal 8) Maaltekouter 1 B - 9051 Gent / België
LIAG over duurzaamheid centraal in project
Online
Om direct naar je favorieten te kunnen gaan is het nodig om eerst in te loggen.
Nieuw
Toon alles
Design
Duurzaamheid
Gevel
Infrastructuur
Interieur
Kantoren
Leisure
Openbare ruimte
Publieke gebouwen
Scholen
Transformatie en Renovatie
Woningbouw
Zorg
Om direct naar je favorieten te kunnen gaan is het nodig om eerst in te loggen.
Nieuw
Populair
Toon alles
Mulderblauw zoekt een architect
Mulderblauw zoekt een projectleider
WE zoekt senior architect
Junior PR & Communicatie medewerker
stagiair bouwkunde Amsterdam
Medior architect
Junior Architect (NL/EN)
Architect
De Academie van Bouwkunst Amsterdam zoekt twee onderzoekers voor lectoraat
Studio Nauta zoekt projectleider
Junior Ontwerper
Site Practice zoekt medior architect met 3-6 jaar ervaring (Amsterdam)
Om direct naar je favorieten te kunnen gaan is het nodig om eerst in te loggen.
Producten
Het subtropische landschap op 45 meter hoogte markeert de kantoortoren Central Park
Copyright: Sebastian van Damme
Central Park gelegen in het stationsgebied van Utrecht Centraal
Copyright: Sebastian van Damme
Het park wordt omgeven door een terugvallende glazen gevel in een glooiende vorm
Copyright: Sebastian van Damme
Het stadspark biedt de kantoorgebruiker een plek om te ontspannen en werken in een uniek ecosysteem
Copyright: Jordi Huisman
Zitplekken omgeven door groen geïnspireerd op de inheemse flora van de Azoren
Copyright: Jordi Huisman
Copyright: Jordi Huisman
Minimalistische witte oppervlakken en houten bankjes dragen bij aan de rustgevende setting
Copyright: Jordi Huisman
Copyright: Jordi Huisman
Copyright: Jordi Huisman
Een houten dek leidt je door het park langs 50 bomen en struiken, 1500 planten en een beekje
Copyright: Jordi Huisman
Copyright: Sebastian van Damme
De golvende vormen in het centrale deel contrasteren met de geometrische vormen van de gevel
Copyright: Sebastian van Damme
Central Park gezien vanaf het verhoogde plein rond Utrecht CS
Copyright: Sebastian van Damme
Copyright: Sebastian van Damme
Copyright: Sebastian van Damme
Bronskleurige gevel in lijn met het aardse pallet van Het Forum
Copyright: Sebastian van Damme
Vides op kantoorverdiepingen
Copyright: Sebastian van Damme
De bronskleurige aluminium gevelelementen zijn geprefabriceerd en recyclebaar
Copyright: Sebastian van Damme
Copyright: Sebastian van Damme
Situatietekening
Copyright: GROUP A
Plattegrond begane grond
Copyright: GROUP A
Plattegrond 11e verdieping met stadspark
Copyright: GROUP A
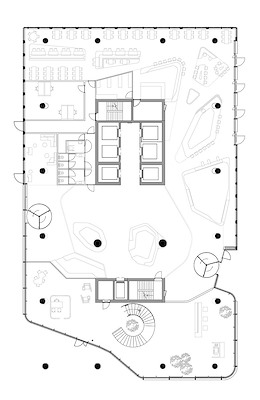
Plattegrond 12e verdieping met werklandschap
Copyright: GROUP A
Plattegrond standaard kantoorvloer
Copyright: GROUP A
Detail 3D gevormde plafondelementen
Copyright: GROUP A
Aansluiting op het Forum
Copyright: GROUP A
Producttags
AAN
UIT
Groene oase voor werken in de skyline van Utrecht
5 februari 2020
0
0
0
0
Central Park ontleent de naam aan het subtropische landschap dat het kantoorgebouw halverwege op 45 meter hoogte markeert. Het stadspark huisvest maar liefst 50 bomen en struiken, 1.500 planten en zelfs een kabbelend beekje en heeft één doel voor ogen: kantoorgebruikers voorzien van frisse lucht en een andere omgeving, wat zorgt voor stressvermindering tijdens een drukke werkdag.
De opdrachtgevers hadden een 90 meter hoge kantoortoren voor ogen dat met een krachtig gebaar bedrijven trekt en wereldwijde erkenning verdient. GROUP A gaf invulling aan dit idee door een toren te ontwerpen met een groene oase in het centrum van het gebouw. Het biofiele statement, ontworpen door MOSS, biedt de kantoorgebruiker een toevlucht in en rond de natuur. Central Park zet alle conventies van een typische werkplek opzij, alsof je op de Azoren bent.
Stadspark op 45 meter hoogte
Het concept reconstrueert het idee van het typische stedelijk model, gekenmerkt door bouwblokken rond een park. Central Park vertaalt deze logica in een verticale vorm: een heroverweging van hoe we onze toekomstige steden bouwen. De groene zone bevindt zich in het centrum van het gebouw en biedt ruimte voor interactie en ontspanning, waardoor een gevoel van saamhorigheid ontstaat voor alle gebruikers van het gebouw met meerdere huurders.
Organische vormen voor contrast
Het stadspark is bestemd voor werk maar biedt tegelijkertijd een unieke ervaring. Naast de impact van het groen biedt de architectuur een opvallend gebaar van zowel binnen als buiten het gebouw. Het terugvallende centrale deel bestaat volledig uit glas dat - net als de randen - golvend is vormgegeven. Hiermee onderscheidt het zich van de rest van het gebouw en draagt het bij aan het biofiele karakter. De vloeiende lijnen vormen een sterk contrast met de geometrische vormen van het gebouw.
Welzijn en hogere productiviteit
De voordelen van het ontwerp worden onderbouwd door wetenschappelijk onderzoek dat het verbluffende effect van planten op de werkvloer aantoont. Mensen die in een ruimte met planten werken melden zich 20% minder vaak ziek en het ziekteverzuim ligt 1,6 ziektedag lager. Central Park biedt een groene werkomgeving waar een betere luchtkwaliteit en betere akoestiek heerst, wat zorgt voor meer welzijn, minder werkstress en een hogere productiviteit. Hiermee toont Central Park aan dat groen medewerkers kan motiveren om weer naar kantoor te komen.
Aansluiting op het Forum
Central Park sluit naadloos aan op het Forum, een verhoogd en vergroend plein in het stationsgebied rond Utrecht Centraal. In een vloeiende beweging voegt de terugvallende publieke plint zich naar de looplijn van het voetgangersgebied. In lijn met het aardse pallet van het Forum, ook ontworpen door GROUP A, zorgt de bronskleurige gevel voor een warme uitstraling. Met de aansluiting op het Forum is Central Park direct verbonden met Utrecht Centraal Station, Central Business District en het stadscentrum.
Stel jezelf kort voor! Dan weet het betreffende bedrijf wie hun model gedownload heeft.
Wil je niet bij elke download jouw gegevens in hoeven voeren?
Klik dan hier om in te loggen
.
Heb je nog geen account?
Maak dan hier een gratis account aan
.
Voornaam
Achternaam
E-mailadres
Downloaden
Wanneer je modellen downloadt op Architectenweb.nl worden relevante gegevens van jou – zoals jouw naam en e-mailadres – met het betreffende bedrijf gedeeld. Meer hierover lees je in ons
privacybeleid
.
Locatie
Trefwoorden
stationsgebied utrecht
kantoortoren
groene kantoren
horeca
forum
kantoren
park
stationsgebied
binnentuin
architect nieuwbouw
breeam excellent
GROUP A
Neem contact op
Projectdata
Staat van realisatie
Voltooid
Start ontwerpproces
2017
Start bouw
2019
Oplevering
2021
Ingebruikname
2021
Plaats
Utrecht
Bruto m
2
31596
Meewerkende partijen
Architect
GROUP A
Projectarchitect
adam visser, chris woltjes
Ontwerpteam
Perry Klootwijk, Frank Deltrap, Gabrielius Varnelis, Laura Onnis, Edwin van Thuijl, Raymond Leentvaar, Greetje van den Nouweland, Mindaugas Arlauskas, Jos Overmars, Kenny Kwong, Dichao Wang, Jing Lin, Luca Piattelli
Opdrachtgever
Angelo Gordon, APF International
Aannemer
Bouwcombinatie Westflank Noord
Constructeur
van der vorm engineering
Adviseurs installaties E & W
Huygen Installatie adviseurs
Fotograaf
Sebastian van Damme, Jordi Huisman
Ontwerper
MOSS
Stedenbouwkundige
GROUP A
Belegger
Bouwinvest Office Fund
Visualisaties
Pixelpool,
GROUP A
Projectmanagement
peak development
Hovenier
Koninklijke Ginkel Groep
Leveranciers
Hard glas balustrades, staal met houten trappen
EeStairs | Design trappen - Balustrade - Ontwerp en constructie
Overig
Saint Gobain, Blitta gevelsystemen b.v., Seco, HOMIJ Technische Installaties bv, Sebastian van Damme, CIG-architecture, Schueco, Curveworks, Plafonds en akoestische oplossingen: Verwol Complete Interieur Realisatie, HOMIJ, Schindler, Seco B.V., Eestairs, schueco, Saint Gobain, Gyproc Nederland, Gyproc, Jordi Huisman, Curve Works BV
Klimaatplafonds
Verwol
Gevelblekleding
BLITTA BV
Led verlichiting
TRILUX - Simplify Your Light
Composiet gietvloer, Vloerafwerkingen
Duracryl Global Flooring BV
Liften
Schindler Liften B.V.
Neem contact op met
GROUP A
Je bent momenteel niet ingelogd. Hierdoor is het alleen mogelijk om meer informatie per e-mail op te vragen. Wil je liever gebeld worden of documentatie per post ontvangen?
Klik dan hier om in te loggen
.
Heb je nog geen account?
Maak dan hier een gratis account aan
.
Voornaam
Achternaam
E-mailadres
Opmerkingen
Bij iedere aanvraag worden relevante gegevens van jou gedeeld met het betreffende bedrijf. Meer hierover lees je in ons
privacybeleid
.
Ja, denk met me mee rond de
materialisering van mijn project
Meer projecten van GROUP A
Behoud van monument als metro station in Hamburg
GROUP A
BRUIS: van bankgebouw naar cultureel centrum
GROUP A
Karakteristieke bouwblokken voor Utrecht Merwede
GROUP A
Compacte fabriek voor duurzame toekomst
GROUP A
Duurzaam visitekaartje van M4H Rotterdam
GROUP A
Afwerking Premetro stations Antwerpen
GROUP A
Hybride stadsblok met collectieve daktuinen
GROUP A
Duurzame interieuridentiteit voor Service Apotheek
GROUP A
Interieur Damen Schiedam
GROUP A
TNO Bouwinnovatie lab geeft impuls aan innovatie
GROUP A
Teaching Lab TU Delft
GROUP A
Forum Zuid, stationsgebied Utrecht Centraal
GROUP A
Dynamische transformatie Keilepand M4H
GROUP A
Gortercomplex, herbestemming en nieuwbouw
GROUP A
Stationsgebouw en omgeving station Harderwijk
GROUP A
Hoofdkantoor DOW Benelux
GROUP A
Stationsrenovatie metro Oostlijn
GROUP A
Interieur gemeentekantoor 'De Rotterdam'
GROUP A
Herinrichting kantoorgebouw 'De Schelde'
GROUP A
Herinrichting rijksmonument Nieuwe Kerk
GROUP A
Winkel- en kantoorruimte Central Plaza
GROUP A
Nieuw interieur aannemersbedrijf Cordeel
GROUP A
Werkplaats Steigereiland
GROUP A
Kantoor BP Raffinaderij
GROUP A
Mariendaal Centre of Excellence
GROUP A
Crematorium Zorgvlied
GROUP A
Ontwerp/uitvoering centrum Het Lichtruim
GROUP A
Ontwerp/uitvoering interieur advocatenkantoor
GROUP A
Ontwerp/uitvoering eigentijdse villa
GROUP A
Nieuw interieur voor Aramco Overseas Company
GROUP A
Ontwerp/uitvoering loodsencomplex De Smederij
GROUP A
Ontwerp/uitvoering Blaak 8
GROUP A
Ontwerp/uitvoering Blok 1 Presikhaaf
GROUP A
Ontwerp/uitvoering AkzoNobel Centre & Art Space
GROUP A
Ontwerp/uitvoering hoofdkantoor Sabic Europe
GROUP A
Ontwerp/uitvoering kantoren Caballerofabriek
GROUP A
Ontwerp/uitvoering woonhuis kavel 108
GROUP A
Ontwerp/uitvoering Booster rioolgemaal
GROUP A
Behoud van monument als metro station in Hamburg
GROUP A
BRUIS: van bankgebouw naar cultureel centrum
GROUP A
Karakteristieke bouwblokken voor Utrecht Merwede
GROUP A
Compacte fabriek voor duurzame toekomst
GROUP A
Duurzaam visitekaartje van M4H Rotterdam
GROUP A
Afwerking Premetro stations Antwerpen
GROUP A
Hybride stadsblok met collectieve daktuinen
GROUP A
Duurzame interieuridentiteit voor Service Apotheek
GROUP A
Interieur Damen Schiedam
GROUP A
TNO Bouwinnovatie lab geeft impuls aan innovatie
GROUP A
Teaching Lab TU Delft
GROUP A
Forum Zuid, stationsgebied Utrecht Centraal
GROUP A
Dynamische transformatie Keilepand M4H
GROUP A
Gortercomplex, herbestemming en nieuwbouw
GROUP A
Stationsgebouw en omgeving station Harderwijk
GROUP A
Hoofdkantoor DOW Benelux
GROUP A
Stationsrenovatie metro Oostlijn
GROUP A
Interieur gemeentekantoor 'De Rotterdam'
GROUP A
Herinrichting kantoorgebouw 'De Schelde'
GROUP A
Herinrichting rijksmonument Nieuwe Kerk
GROUP A
Winkel- en kantoorruimte Central Plaza
GROUP A
Nieuw interieur aannemersbedrijf Cordeel
GROUP A
Werkplaats Steigereiland
GROUP A
Kantoor BP Raffinaderij
GROUP A
Mariendaal Centre of Excellence
GROUP A
Crematorium Zorgvlied
GROUP A
Ontwerp/uitvoering centrum Het Lichtruim
GROUP A
Ontwerp/uitvoering interieur advocatenkantoor
GROUP A
Ontwerp/uitvoering eigentijdse villa
GROUP A
Nieuw interieur voor Aramco Overseas Company
GROUP A
Ontwerp/uitvoering loodsencomplex De Smederij
GROUP A
Ontwerp/uitvoering Blaak 8
GROUP A
Ontwerp/uitvoering Blok 1 Presikhaaf
GROUP A
Ontwerp/uitvoering AkzoNobel Centre & Art Space
GROUP A
Ontwerp/uitvoering hoofdkantoor Sabic Europe
GROUP A
Ontwerp/uitvoering kantoren Caballerofabriek
GROUP A
Ontwerp/uitvoering woonhuis kavel 108
GROUP A
Ontwerp/uitvoering Booster rioolgemaal
GROUP A
Toon alles
Gerelateerde producten
Durabella
Durabella seamless terrazzo
Duracryl Global Flooring BV
Verwol klimaatplafonds: comfort, productiviteit en duurzaamheid
Verwol
Andere Projecten
Renovatie met respect voor oorspronkelijke ontwerp
Caparol
Øbro-Hallen
VELUX Commercial Benelux B.V.
Wonderwoods
Van Wylick
Celsius
BURO LUBBERS Landschapsarchitectuur & Stedenbouw
Gorter voorziet Terrazza van veilige daktoegang
Gorter Luiken BV
Dakluik met dubbel deksel voor Bakker Goedhart
Storax
Duurzaam woonproject met veertien Gorter-dakluiken
Gorter Luiken BV
Industrieplein Hengelo
BURO LUBBERS Landschapsarchitectuur & Stedenbouw
De energiemarkt revolutionair vernieuwen
Tétris Design & Build
Festivalterrein als inspiratie van dit kantoor
Tétris Design & Build
De antieke Agora als inspiratie voor een kantoor
Tétris Design & Build
Aan De Vallei
BURO LUBBERS Landschapsarchitectuur & Stedenbouw
Ga naar het projecten-overzicht
Voor een optimale gebruikservaring plaatst Architectenweb functionele cookies. Wat de verschillende cookies precies doen leggen we uit in een
overzicht
. Cookies van social media kun je optioneel
aanzetten
.
Akkoord
Instellingen
Annuleren
OK
Sluiten
Doorgaan
Inloggen
Maak een gratis persoonlijk account aan
Feedback
Feedback
Wij horen graag jouw feedback. Laat je reactie achter en eventueel jouw e-mail adres.
Reactie
Verstuur