Projecten
Producten
Bedrijven
Vacatures
Agenda
Awards
Podcasts
more_horiz
Videos
Magazine
Thema's
Favorieten
Profiel
Uitloggen
Abonneer je nu op onze nieuwsbrieven!
Abonneren
Nee, bedankt
Ja, denk met me mee rond de
materialisering van mijn project
Producten
Copyright: LEVS architecten
Copyright: LEVS architecten
Copyright: LEVS architecten
Copyright: LEVS architecten
Copyright: LEVS architecten
Copyright: LEVS architecten
Copyright: LEVS architecten
Copyright: LEVS architecten
Copyright: LEVS architecten
Copyright: LEVS architecten
Stedenbouwkundig concept
Copyright: LEVS architecten
Situatie
Copyright: LEVS architecten
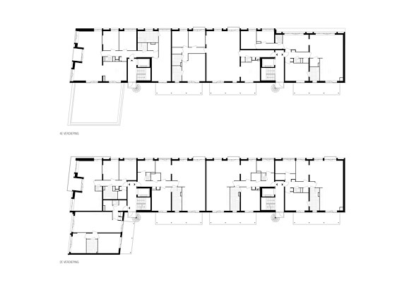
Begane grond en eerste verdieping
Copyright: LEVS architecten
Tweede en vierde verdieping
Copyright: LEVS architecten
Gevelconcept
Copyright: LEVS architecten
Geveldetails
Copyright: LEVS architecten
Producttags
AAN
UIT
Turfstraat
30 juni 2021
1
0
0
0
Hoe maken we nieuwbouw in en rond onze historische binnensteden op een manier die tegelijkertijd verdicht, de cultuurhistorie eer aandoet, de leefbaarheid vergroot en de klimaatopgave aangaat? In project Turfstraat zochten we op al deze vragen een antwoord.
Het gebouw bestaat uit 18 luxe appartementen boven een commerciële plint. Het vervangt een woongebouw uit de wederopbouwperiode en is onderdeel van de stedenbouwkundige ingreep waarbij de gemeente Arnhem de oude binnenstad met de Rijn wil verbinden. Dat gebeurt door middel van nieuwbouw, het herintroduceren van de oude Sint Jansbeek en door het opwaarderen van de openbare ruimte.
Het gebouw staat op de snijlijn tussen de oude binnenstad en de strook met wederopbouwarchitectuur langs de Rijn. Aan de nieuwe stedenbouwkundige corridor van de binnenstad naar de Rijn heeft het project een prominente positie op de hoek. En met een lange pleinwand begeleidt het gebouw het nieuwe Audrey Hepburnplein, met daaraan het FOCUS filmtheater en de Eusebiuskerk.
Het oorspronkelijke gebouw aan de Turfstraat werd gekenmerkt door het verticale ritme van puien boven een horizontale, glazen plint. Het ontwerp voor de nieuwbouw is een interpretatie van deze karakteristieken. Een ander kenmerk dat aan het oorspronkelijke gebouw refereert zijn de terugspringende en lagere uiteinden van het volume. Deze twee intermediairs verbinden het gebouw met de nieuwbouw links en rechts ernaast.
De witte luifel en horizontale banden van beton benadrukken de zichtlijnen over het plein. Vervolgens geven de strakke verticale geleding in de metselwerkpenanten de gevel ritme, diepte en een statige aanwezigheid. De belijning van het metselwerk is uitgevoerd met warme bakstenen met een ‘boombaststructuur’. Het contrast tussen de ruwe bakstenen en de grafische lijnen van de betonbanden geeft de gevel een aanraakbaar en levendig karakter.
De appartementen variëren van 100 tot 175 m². Ze zijn licht, hebben een frans balkon met uitzicht op het plein en de stad en een ruime veranda aan het rustige en zonnige binnengebied. In de plint aan de pleinzijde is ruimte voor 600 m² commerciële ruimte met aan het binnenhof parkeren en bergingen.
Met een aantal slimme ingrepen is het gebouw energieneutraal (EPC=0) gemaakt. We beperken de instraling van warmte in de zomer door het gebruik van diepe neggen, de verdeling van open en dicht over de noord- en zuidgevel, en het toepassen van een groot aantal zonnepanelen. Per appartement zijn 12 tot 16 zonnepanelen meegenomen in de splitsing, waardoor de woningeigenaren worden betrokken bij de duurzame prestatie van het gebouw. Een deel van deze zonnepanelen zijn als designelement toegepast op de overkapping van de parkeerplaatsen aan de zuidzijde. Zo gaan duurzaamheid en ontwerp hand in hand.
Stel jezelf kort voor! Dan weet het betreffende bedrijf wie hun model gedownload heeft.
Wil je niet bij elke download jouw gegevens in hoeven voeren?
Klik dan hier om in te loggen
.
Heb je nog geen account?
Maak dan hier een gratis account aan
.
Voornaam
Achternaam
E-mailadres
Downloaden
Wanneer je modellen downloadt op Architectenweb.nl worden relevante gegevens van jou – zoals jouw naam en e-mailadres – met het betreffende bedrijf gedeeld. Meer hierover lees je in ons
privacybeleid
.
Locatie
Trefwoorden
herinterpretatie
energie-neutraal
stedelijke wand
historisch centrum
stadsplein
woongebouw van het jaar
gemengd programma
LEVS architecten
Neem contact op
Projectdata
Staat van realisatie
Voltooid
Start ontwerpproces
2017
Start bouw
2019
Oplevering
2020
Ingebruikname
2020
Plaats
Arnhem
Bruto m
2
3800
Netto m
2
3100
Meewerkende partijen
Architect
LEVS architecten
Projectarchitect
Adriaan Mout, Jurriaan van Stigt, Marianne Loof
Ontwerpteam
Marco Rats, Ulf Bjällerstedt, Daan Goedhart, Olga Pedryc
Opdrachtgever
Stadswaarde
Aannemer
Ter Steege Bouw
Constructeur
Schreuders bouwtechniek bv
Adviseurs installaties E & W
Loohuis Energie & Installatie Advies
Fotograaf
LEVS architecten
Stedenbouwkundige
Gemeente Arnhem
Leveranciers
Overig
LEVS architecten
, Jannink Beton,
Kawneer
, W&K Metaalbewerkingen, Daas Baksteen
Neem contact op met
LEVS architecten
Je bent momenteel niet ingelogd. Hierdoor is het alleen mogelijk om meer informatie per e-mail op te vragen. Wil je liever gebeld worden of documentatie per post ontvangen?
Klik dan hier om in te loggen
.
Heb je nog geen account?
Maak dan hier een gratis account aan
.
Voornaam
Achternaam
E-mailadres
Opmerkingen
Bij iedere aanvraag worden relevante gegevens van jou gedeeld met het betreffende bedrijf. Meer hierover lees je in ons
privacybeleid
.
Ja, denk met me mee rond de
materialisering van mijn project
Meer projecten van LEVS architecten
Merwede – Stadsblok 9 / Joy
LEVS architecten
Podium
LEVS architecten
ZuidKade
LEVS architecten
Groot Hartje
LEVS architecten
The Ox
LEVS architecten
Stepstone
LEVS architecten
Populus, Rotterdam
LEVS architecten
ROOT, Eindhoven
LEVS architecten
Nieuw Develstein
LEVS architecten
Bensdorp
LEVS architecten
Harbour Club
LEVS architecten
De Bocht
LEVS architecten
Cubes
LEVS architecten
2Peer friends-woningen, Amsterdam
LEVS architecten
Breehorn IJdoornlaan in Amsterdam Noord
LEVS architecten
Nieuwe stadsentree Amersfoort
LEVS architecten
Gershwin Brothers, Amsterdam
LEVS architecten
Forum City, Jekaterinburg (RUS)
LEVS architecten
Binck Blocks, Den Haag
LEVS architecten
Museum voor Fotografie Huis Marseille, Amsterdam
LEVS architecten
Tricotage, Veenendaal
LEVS architecten
Woonzorggebouw De Bouwmeester, Utrecht
LEVS architecten
Startersappartementen Lewehof, Uithuizen
LEVS architecten
Nieuwe woonwijk Leeuwenveld, Weesp
LEVS architecten
Woonzorggebouw & Kulturhus Kaleidoskoop, Nieuwkoop
LEVS architecten
Gewestkantoor, Bussum
LEVS architecten
De Zilverling, Amsterdam
LEVS architecten
St. Ignatiusgymnasium, Amsterdam
LEVS architecten
DoggerRIJ, Den Helder
LEVS architecten
Woonoase Koster, Bussum
LEVS architecten
Vernieuwing Kantoor Dudok, Bussum
LEVS architecten
Interieur eigen kantoor, Amsterdam
LEVS architecten
Kantoor en werkplaats Kersten, Amsterdam
LEVS architecten
De Bloemen, Roelofarendsveen
LEVS architecten
Op de Brouwerij, Enschede
LEVS architecten
Het Bastion, Veenendaal
LEVS architecten
Suyderseezicht, Lelystad
LEVS architecten
De Westerwierde, Uithuizen
LEVS architecten
Gezondheidscentrum Haveneiland, Amsterdam
LEVS architecten
Noorderplassen
LEVS architecten
IJburg blok 19, Amsterdam
LEVS architecten
Uitbreiding RIJ de Doggershoek, Den Helder
LEVS architecten
Zorgcentrum Werkeren Stadshagen, Zwolle
LEVS architecten
Blok 19 IJburg
LEVS architecten
Woningbouw Stadshagen
LEVS architecten
Woningbouw Purmerend
LEVS architecten
RIJ De Doggershoek, Den Helder
LEVS architecten
Merwede – Stadsblok 9 / Joy
LEVS architecten
Podium
LEVS architecten
ZuidKade
LEVS architecten
Groot Hartje
LEVS architecten
The Ox
LEVS architecten
Stepstone
LEVS architecten
Populus, Rotterdam
LEVS architecten
ROOT, Eindhoven
LEVS architecten
Nieuw Develstein
LEVS architecten
Bensdorp
LEVS architecten
Harbour Club
LEVS architecten
De Bocht
LEVS architecten
Cubes
LEVS architecten
2Peer friends-woningen, Amsterdam
LEVS architecten
Breehorn IJdoornlaan in Amsterdam Noord
LEVS architecten
Nieuwe stadsentree Amersfoort
LEVS architecten
Gershwin Brothers, Amsterdam
LEVS architecten
Forum City, Jekaterinburg (RUS)
LEVS architecten
Binck Blocks, Den Haag
LEVS architecten
Museum voor Fotografie Huis Marseille, Amsterdam
LEVS architecten
Tricotage, Veenendaal
LEVS architecten
Woonzorggebouw De Bouwmeester, Utrecht
LEVS architecten
Startersappartementen Lewehof, Uithuizen
LEVS architecten
Nieuwe woonwijk Leeuwenveld, Weesp
LEVS architecten
Woonzorggebouw & Kulturhus Kaleidoskoop, Nieuwkoop
LEVS architecten
Gewestkantoor, Bussum
LEVS architecten
De Zilverling, Amsterdam
LEVS architecten
St. Ignatiusgymnasium, Amsterdam
LEVS architecten
DoggerRIJ, Den Helder
LEVS architecten
Woonoase Koster, Bussum
LEVS architecten
Vernieuwing Kantoor Dudok, Bussum
LEVS architecten
Interieur eigen kantoor, Amsterdam
LEVS architecten
Kantoor en werkplaats Kersten, Amsterdam
LEVS architecten
De Bloemen, Roelofarendsveen
LEVS architecten
Op de Brouwerij, Enschede
LEVS architecten
Het Bastion, Veenendaal
LEVS architecten
Suyderseezicht, Lelystad
LEVS architecten
De Westerwierde, Uithuizen
LEVS architecten
Gezondheidscentrum Haveneiland, Amsterdam
LEVS architecten
Noorderplassen
LEVS architecten
IJburg blok 19, Amsterdam
LEVS architecten
Uitbreiding RIJ de Doggershoek, Den Helder
LEVS architecten
Zorgcentrum Werkeren Stadshagen, Zwolle
LEVS architecten
Blok 19 IJburg
LEVS architecten
Woningbouw Stadshagen
LEVS architecten
Woningbouw Purmerend
LEVS architecten
RIJ De Doggershoek, Den Helder
LEVS architecten
Toon alles
Andere Projecten
Campus Sportief Besteed Groep — Wubben.Chan
Wubben.Chan architecten
BDO kantoor Breda
ULMA Architectural Solutions
Toegangscontrole op een dynamisch terrein
Heras
Biobased bouwen naast Natura 2000-gebied
KUBUS | Specialist in Archicad
5Tracks - inspirerende atriums met JUNG
Jung | Hateha B.V.
Totaalrealisatie nieuwe kantoorlocatie A. Vogel
Intermontage B.V.
Sweco Wonderwoods — Duurzame kantoorinrichting
Hal2
Gare Maritime, Brussel
WEBO
De transformatie van de Lintveldebrink
Grohe Nederland B.V.
Sweco WTC Den Haag — Duurzame kantoorinrichting
Hal2
Uitbreiding Hotel Martin's Klooster, Leuven
OWA Benelux - Akoestiek & Design
RVS plinten kantoor Moore DRV
Storax
Ga naar het projecten-overzicht
Voor een optimale gebruikservaring plaatst Architectenweb functionele cookies. Wat de verschillende cookies precies doen leggen we uit in een
overzicht
. Cookies van social media kun je optioneel
aanzetten
.
Akkoord
Instellingen
Annuleren
OK
Sluiten
Doorgaan
Inloggen
Maak een gratis persoonlijk account aan
Feedback
Feedback
Wij horen graag jouw feedback. Laat je reactie achter en eventueel jouw e-mail adres.
Reactie
Verstuur