Projecten
Producten
Bedrijven
Vacatures
Agenda
Awards
Podcasts
more_horiz
Videos
Magazine
Thema's
Favorieten
Profiel
Uitloggen
Nieuw
Populair
Toon alles
Architectenweb magazine #14
Architectenweb magazine #13
Publieke gebouwen
Architectenweb magazine #12
Kantoren
Architectenweb magazine #11
Scholen
Architectenweb magazine #10
Zorg
Architectenweb magazine #14
Architectenweb magazine #10
Zorg
Architectenweb magazine #12
Kantoren
Architectenweb magazine #13
Publieke gebouwen
Architectenweb magazine #6
Transformatie en Renovatie
Om direct naar je favorieten te kunnen gaan is het nodig om eerst in te loggen.
Nieuw
Architectenweb Awards 2025
Architectenweb Awards 2024
Architectenweb Awards 2023
Architectenweb Awards 2022
Architectenweb Awards 2021
Architectenweb Awards 2020
Architectenweb Awards 2019
Architectenweb Awards 2018
Om direct naar je favorieten te kunnen gaan is het nodig om eerst in te loggen.
Nieuw
Populair
Favorieten
Toon alles
Vakwerk Architecten
Nominatie voor de prijs voor Architect van het Jaar 2025
Sanne van Manen
Nominatie voor de prijs voor Architect van het Jaar 2025
KSA
Nominatie voor de prijs voor Architect van het Jaar 2025
KRFT
Nominatie voor de prijs voor Architect van het Jaar 2025
Joost Ector
Nominatie voor de prijs voor Architect van het Jaar 2025
Prijsuitreiking Architectenweb Awards 2024
Impressie van een feestelijke avond
Martens, Willems & Humblé Architecten
Nominatie voor de prijs voor Architect van het Jaar 2024
Uitreiking van Architectenweb Awards 2020
Impressie van de prijsuitreiking via Zoom
De Zwarte Hond
Nominatie voor de prijs voor Architect van het Jaar 2024
Avond met De Zwarte Hond
Symposium
Om direct naar je favorieten te kunnen gaan is het nodig om eerst in te loggen.
Nieuw
Populair
Categorieën
Favorieten
Toon alles
Brandpreventie Academy BV
Cay Circulaire Keukens
Circulaire keukens en pantry's
Studio Kirsten Reith
Interieurontwerp
Studio175
Interieuradvies in regio Utrecht
Orange Automatic Doors
Indoorwrap
De specialist in Keukenwrappen
Cay Circulaire Keukens
Circulaire keukens en pantry's
Studio Kirsten Reith
Interieurontwerp
Studio175
Interieuradvies in regio Utrecht
Interior & Co
Orange Automatic Doors
Indoorwrap
De specialist in Keukenwrappen
Architecten
Architectuur
Mobiliteit en infrastructuur
Stedenbouw en landschapsarchitectuur
Leveranciers
Gevels
Daken
Ramen en deuren
Trappen, liften en balustrades
Binnenwanden
Vloeren
Plafonds
Verlichting
Sanitair
Projectinrichting
Installaties
Constructies
Buitenruimte
Software
Adviseurs
Bestekschrijvers
Bouwmanagement
Installatie adviseurs E
Bouwfysica
Calculators
Installatie adviseurs G/W
Bouwkundig tekenwerk
Constructeurs
Lichtadviseurs
Adviseur beveiliging
Juristen
Intermediairs, Payrolling
Aannemers
Overig
Presentatie
Instellingen / onderwijs
Overig
Om direct naar je favorieten te kunnen gaan is het nodig om eerst in te loggen.
Nieuw
Populair
Favorieten
Toon alles
Gesprek met Stephan Sliepenbeek over hoogbouw in Amstel III
Gesprek met Ellen van Bueren over gebiedsontwikkeling en hoogbouw
Gesprek met Ma Yansong over ontwerpen die emotie oproepen
Gesprek met Paul de Ruiter over innovatieve en duurzame hoogbouw
Gesprek met Pi de Bruijn over zijn ontwerpen voor de Tweede Kamer toen en nu
Gesprek met Ellen van Bueren over gebiedsontwikkeling en hoogbouw
Gesprek met Oresti Sarafopoulos over het ontwerpen van een kantoorgebouw met bijna geen installaties
Gesprek met Stijn Steenbakkers over verdichting en hoogbouw in Eindhoven
Gesprek met Pi de Bruijn over zijn ontwerpen voor de Tweede Kamer toen en nu
Gesprek met Paul de Ruiter over innovatieve en duurzame hoogbouw
Om direct naar je favorieten te kunnen gaan is het nodig om eerst in te loggen.
Nieuw
Populair
Categorieën
Favorieten
Toon alles
Den Hartogh Basecamp
FÆnslet
Exclusieve wooneenheden
Alphen aan de Rijn - Park 100
Rivierwoning in het ritme van het Rijngebied
ASML Gebouw 3
Prinsenpark, Rotterdam
IVY, Amsterdam
IKC De Brug
Houthavens, Amsterdam
Architectuur
Woningbouw
Zorg
Hotels
Restaurants en café’s
Winkels
Sportgebouwen
Culturele gebouwen
Overheidsgebouwen
Scholen
Kantoren
Bedrijfsgebouwen
Paviljoens en kunst
Overig
Mobiliteit en infrastructuur
Trein- en metrostations
Luchthavens
Busstations
Parkeergarages
Fietsparkeren
Wegen
Bruggen
Water
Energie
Tankstations en laadstations
Waterzuivering en afvalverwerking
Overig
Stedenbouw en landschapsarchitectuur
Regionale visies
Gebiedsvisies
Plannen stedelijk weefsel
Amusementsparken en dierentuinen
Lichtontwerpen
Openbare ruimte
Pleinen
Parken
Tuinen
Speelplaatsen
Uitkijktorens
Overige (bijv. begraafplaatsen)
Om direct naar je favorieten te kunnen gaan is het nodig om eerst in te loggen.
Nieuw
Populair
Categorieën
Favorieten
Toon alles
Rook- en warmteafvoer (RWA)
Een essentieel onderdeel van gebouwontwerp
Lumiglaze – Het vlakglas van VELUX Commercial
Een nieuw tijdperk in daglichtontwerp – minimalistisch, functioneel en klaar voor de toekomst.
Akoestisch kussen.
Ervaar de ultime natuurlijke oplossing voor akoestiek problemen.
Knauf MaxSpace
Minder wand, méér ruimte. Het ideale profiel voor meer winst per m²
Veelzijdig straatmeubilair
Van openbare ruimte naar (be)leefomgeving
Digital Prints
Meer mogelijkheden in gekleurd staal
Element+ H-I
Hout - Aluminium Elementgevel
Vierkante vluchtroutearmaturen voor grote ruimtes
Zichtbare veiligheid van alle kanten
Schüco Zonweringsysteem Integralmaster in FWS
Bescherming tegen zon, verblinding en privacy – verborgen en volledig geïntegreerd
GROHE Cubeo: kranen voor elke badkamer
Stijlvol en duurzaam design voor jarenlang plezier
Gevels
Gevelbekleding
Vliesgevels
Zonwering buiten
Isolatie
Gevelconstructies
Signing
Overig
Daken
Dakafwerkingen
Dakisolatie
Dakconstructies
Dakranden, dakgoten en HWA's
Dakramen
Lichtkoepels
Lichtstraten
Schoorstenen
Overig
Dakluiken
Ramen en deuren
Raam- en deursystemen / kozijnen
Vliesgevels
Hang- en sluitwerk
Beveiliging en luiken
Dorpels en vensterbanken
Lateien
Roosters
Glas
Dakramen
Dakkoepels
Lichtstraten
Zonwering buiten
Zonwering binnen
Buitendeuren
Binnendeuren
Postvakken en brievenbussen
Overig
Dakluiken
Trappen, liften en balustrades
Trappen
Roltrappen
Liften
Balustrades en hekwerken
Galerijen
Binnenwanden
Binnenwanden
Wandafwerking
Vloeren
Constructieve vloeren
Verhoogde vloeren
Vloerafwerkingen
Overig
Plafonds
Tegels
Lineair
Grill
Open en roosters
Naadloos
Eilanden en baffles
Plafondafwerkingen
Ophangsystemen
Overig
Klimaatplafonds
Verlichting
Binnenverlichting
Buitenverlichting
Sanitair
Kranen en douchesets
Wastafels
Douchewanden en douchebakken
Baden
Waterclosets
Accessoires
Overig
Projectinrichting
Stoelen
Banken
Tafels
Kasten
Balies
Vrijstaande wanden
Keukens
Accessoires
Overig
Cabines
Interieurbeplanting
Stoffering
Installaties
Verwarming, koeling en ventilatie
Elektrotechnische installaties
Schakelmateriaal
Domotica
Deurcommunicatie
Beveiliging
Liften
Onderhoudsinstallaties
Overig
Brandbeveiliging
Constructies
Draagconstructies
Funderingen en kelders
Overig
Brandbeveiliging
Buitenruimte
Bestratingen en verhardingen
Afwateringen
Terreinafscheidingen en geluidsschermen
Buitenmeubilair
Fietsparkeren
Terrassen
Terrasoverkappingen
Bruggen
Accessoires
Overig
Beplanting
Sport- en speeltoestellen
Software
Tekenen 2D
Modelleren 3D / BIM
Visualisatie / rendering
Parametrisch ontwerpen
Bouwfysica
Draagconstructie
Overig
Virtual Reality
Cloudoplossingen
Om direct naar je favorieten te kunnen gaan is het nodig om eerst in te loggen.
Nieuw
Populair
Favorieten
Toon alles
LIAG over duurzaamheid centraal in project
Online
Zomerwandelingen Nieuwe Stad op Zondag 2025
Amsterdam
Prefab beurs - 7 t/m 9 oktober 2025
Brabanthallen 's-Hertogenbosch
Boekpresentatie en panelgesprek met Floor Milikows
Prins Hendrikkade 600, 1011 VX Amsterdam
Architects Table ’25: Lunch & Inspiratie in HAUT Amsterdam
ATAG LIVE – HAUT gebouw, Spaklerweg 10F, 1096 BA Amsterdam (tegenover metrostation Spaklerweg)
Architects Table ’25: Lunch & Inspiratie in HAUT Amsterdam
ATAG LIVE – HAUT gebouw, Spaklerweg 10F, 1096 BA Amsterdam (tegenover metrostation Spaklerweg)
Ontdek het seminarieprogramma van Architect@Work Amsterdam
De Kromhouthal, Gedempt Hamerkanaal 231, Amsterdam
LIAG over duurzaamheid centraal in project
Online
1.Lectures HouseEurope! Renovate, don’t speculate
Pakhuis de Zwijger
Carbon Stories: Architects taking sustainable initiatives
Keilepand Rotterdam
Om direct naar je favorieten te kunnen gaan is het nodig om eerst in te loggen.
Nieuw
Toon alles
Design
Duurzaamheid
Gevel
Infrastructuur
Interieur
Kantoren
Leisure
Openbare ruimte
Publieke gebouwen
Scholen
Transformatie en Renovatie
Woningbouw
Zorg
Om direct naar je favorieten te kunnen gaan is het nodig om eerst in te loggen.
Nieuw
Populair
Toon alles
Bouwkundig projectleider (per direct)
Revit Modelleur / bouwkundige (per direct)
BIM/REVIT-modelleur
Bureaumanager
Nederlandstalige projectleider
Medior Technisch Interieurtekenaar
Junior Architect gezocht!
wUrck zoekt junior Architect
Project Architect
Shift zoekt medior/senior architect
Assistent Ontwerper & vakidioot
Architect
Om direct naar je favorieten te kunnen gaan is het nodig om eerst in te loggen.
Producten
Copyright: LEVS architecten
Copyright: LEVS architecten
Copyright: LEVS architecten
Copyright: LEVS architecten
Copyright: LEVS architecten
Copyright: LEVS architecten
Copyright: LEVS architecten
Copyright: LEVS architecten
Copyright: LEVS architecten
Copyright: LEVS architecten
Copyright: LEVS architecten
Copyright: LEVS architecten
Copyright: LEVS architecten
Copyright: LEVS architecten
Copyright: LEVS architecten
Copyright: LEVS architecten
Copyright: LEVS architecten
Copyright: LEVS architecten
Copyright: LEVS architecten
Copyright: LEVS architecten
Copyright: LEVS architecten
Copyright: LEVS architecten
Copyright: LEVS architecten
Copyright: LEVS architecten
Copyright: LEVS architecten
Copyright: LEVS architecten
Producttags
AAN
UIT
Podium
27 juni
0
0
0
0
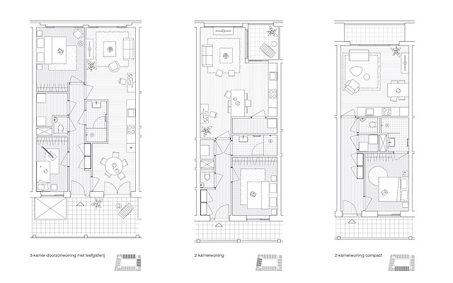
Tussen de groeiende, drukke stad en de ruime en rustige Sloterplas, wordt gebouwd aan een stadswijk met zowel sterke verdichting als vergroening. Langs de centrale as van de Schipluidenlaan heeft LEVS een optimistisch woongebouw ontworpen met duidelijke horizontale geleding, lichte materialisatie van keramische elementen en grote ramen die alle woningen volop van daglicht voorzien. Podium staat vlak naast de aula van een naastgelegen voormalig schoolgebouw. Met een slimme uitsparing rond de aula creëren we een doorgang tussen twee groengebieden aan de noordzijde. Ruime entreehallen leiden naar een binnentuin met volle grond en een fietsenstalling die er half-verdiept omheen ligt. Het plan is gericht op starters in de middeldure huur, die veel gebruik zullen maken van de fiets en het OV.
Een klassieker van Ingwersen
Eén van de uitdagingen was het inpassen van de prominente aula die uit het naastgelegen gebouw naar voren steekt. Het oude Calvijn College in Amsterdam Nieuw West is een ontwerp van Ben Ingwersen van eind jaren ’60. Voor de crisis van 2008 was de intentie nog om het te slopen en het plot langs de Schipluidenlaan uit verschillende bouwblokken op te bouwen. Maar met de tijd is het gebouw tot leven gekomen als creatieve broedplaats, met onder andere kunstcentrum De Appel, en wordt het nu gewaardeerd als prachtig voorbeeld van Nieuwe Zakelijkheid-architectuur. Een herwaardering van onze architectuurgeschiedenis en van haar rationele, optimistische houding. Wij hebben met een setback op de hoek ruimte geschapen voor een interessante entree naast de aula en een prettige doorgang naar het toekomstige parkje tussen de gebouwen.
Rondom fijn wonen
Podium is een open gebouw, dat voortbouwt op het AUP ideaal van licht, lucht en ruimte. Langs alle zijden wordt de verbinding met de buitenwereld gezocht. In doorzonwoningen aan de noord- en oostzijde kan aan twee kanten geleefd worden, met daglicht van voor naar achter. Langs de westzijde zorgen we met loggia’s voor verbinding tussen de woonkamer en het terras. Woonkamers op de begane grond liggen net verhoogd boven de straat, waarmee subtiel de overgang van privé naar publiek duidelijk wordt gemaakt. Deze overgangszone naar de straat wordt gemarkeerd door robuuste plantenbakken die voortkomen uit de gevel. Aan de straat is bovendien een kleine buurt-supermarkt in het plan opgenomen, waardoor er langs de gevel veel leven mogelijk is.
Een warm welkom
Op de hoek richting de aula is op initiatief van LEVS ruimte gemaakt voor een gevelkunstwerk. Het is ingevuld door een samenwerking tussen de Tiener Curatoren van kunstcentrum de Appel, kunstenaar Narges Mohammadi, en woordkunstenaar Zeinab El Bouni. Het verbeeldt de herinneringen van jongeren aan hun middelbare schooltijd en hun ervaringen van opgroeien in Nieuw-West. Het is een ode aan de buurt, vol verhalen en emoties die iedereen in de wijk zullen raken.
Ook op alle andere hoeken bevinden zich mooie entrees naar de fietsenstalling, die half-verdiept rond de binnentuin loopt. Het daglicht maakt het een overzichtelijke, lichte ruimte die veilig voelt en makkelijk gebruikt kan worden. Tussen de rondgaande fietsenstalling is een rijk landschapsontwerp mogelijk, omdat bomen en planten gewoon in volle grond kunnen staan.
Duurzaamheid
Podium is aangesloten op stadswarmte, heeft een grote waterbuffer onder de binnentuin en natuurlijke ventilatie in de half-verdiepte fietsenstalling. De binnentuin is volledig in volle grond aangelegd, wat ruimte biedt voor volwassen beplanting die langs de gevels omhoog groeit. Deze ingrepen maken het gebouw energie-efficiënt en natuurinclusief.
levs.nl/projecten/podium
Stel jezelf kort voor! Dan weet het betreffende bedrijf wie hun model gedownload heeft.
Wil je niet bij elke download jouw gegevens in hoeven voeren?
Klik dan hier om in te loggen
.
Heb je nog geen account?
Maak dan hier een gratis account aan
.
Voornaam
Achternaam
E-mailadres
Downloaden
Wanneer je modellen downloadt op Architectenweb.nl worden relevante gegevens van jou – zoals jouw naam en e-mailadres – met het betreffende bedrijf gedeeld. Meer hierover lees je in ons
privacybeleid
.
Locatie
Trefwoorden
woningvariatie
binnentuin
detail
keramische gevel
compact
voortuin
LEVS architecten
Neem contact op
Projectdata
Staat van realisatie
Voltooid
Start ontwerpproces
2016
Start bouw
2023
Oplevering
2024
Ingebruikname
2024
Plaats
Amsterdam
Bruto m
2
12900
Meewerkende partijen
Architect
LEVS architecten
Projectarchitect
Adriaan Mout, Jurriaan van Stigt, Marianne Loof, Christiaan Schuit, Surya Steijlen
Ontwerpteam
Timea Sandor, Hilmar Goedhart, Swati Hegde, David Meijer
Opdrachtgever
De Nijs Projectontwikkeling, SAREF
Aannemer
Bouwbedrijf de Nijs
Constructeur
Swinn B.V.
Adviseurs installaties E & W
Hiensch Engneering
Fotograaf
LEVS architecten
Stedenbouwkundige
Palmbout Urban Landscapes
Leveranciers
Overig
Hoco,
M.C. Kersten B.V.
, Hibex
Neem contact op met
LEVS architecten
Je bent momenteel niet ingelogd. Hierdoor is het alleen mogelijk om meer informatie per e-mail op te vragen. Wil je liever gebeld worden of documentatie per post ontvangen?
Klik dan hier om in te loggen
.
Heb je nog geen account?
Maak dan hier een gratis account aan
.
Voornaam
Achternaam
E-mailadres
Opmerkingen
Bij iedere aanvraag worden relevante gegevens van jou gedeeld met het betreffende bedrijf. Meer hierover lees je in ons
privacybeleid
.
Ja, denk met me mee rond de
materialisering van mijn project
Meer projecten van LEVS architecten
ZuidKade
LEVS architecten
Groot Hartje
LEVS architecten
The Ox
LEVS architecten
Stepstone
LEVS architecten
Populus, Rotterdam
LEVS architecten
ROOT, Eindhoven
LEVS architecten
Nieuw Develstein
LEVS architecten
Bensdorp
LEVS architecten
Harbour Club
LEVS architecten
De Bocht
LEVS architecten
Cubes
LEVS architecten
Turfstraat
LEVS architecten
2Peer friends-woningen, Amsterdam
LEVS architecten
Breehorn IJdoornlaan in Amsterdam Noord
LEVS architecten
Nieuwe stadsentree Amersfoort
LEVS architecten
Gershwin Brothers, Amsterdam
LEVS architecten
Forum City, Jekaterinburg (RUS)
LEVS architecten
Binck Blocks, Den Haag
LEVS architecten
Museum voor Fotografie Huis Marseille, Amsterdam
LEVS architecten
Tricotage, Veenendaal
LEVS architecten
Woonzorggebouw De Bouwmeester, Utrecht
LEVS architecten
Startersappartementen Lewehof, Uithuizen
LEVS architecten
Nieuwe woonwijk Leeuwenveld, Weesp
LEVS architecten
Woonzorggebouw & Kulturhus Kaleidoskoop, Nieuwkoop
LEVS architecten
Gewestkantoor, Bussum
LEVS architecten
De Zilverling, Amsterdam
LEVS architecten
St. Ignatiusgymnasium, Amsterdam
LEVS architecten
DoggerRIJ, Den Helder
LEVS architecten
Woonoase Koster, Bussum
LEVS architecten
Vernieuwing Kantoor Dudok, Bussum
LEVS architecten
Interieur eigen kantoor, Amsterdam
LEVS architecten
Kantoor en werkplaats Kersten, Amsterdam
LEVS architecten
De Bloemen, Roelofarendsveen
LEVS architecten
Op de Brouwerij, Enschede
LEVS architecten
Het Bastion, Veenendaal
LEVS architecten
Suyderseezicht, Lelystad
LEVS architecten
De Westerwierde, Uithuizen
LEVS architecten
Gezondheidscentrum Haveneiland, Amsterdam
LEVS architecten
Noorderplassen
LEVS architecten
IJburg blok 19, Amsterdam
LEVS architecten
Uitbreiding RIJ de Doggershoek, Den Helder
LEVS architecten
Zorgcentrum Werkeren Stadshagen, Zwolle
LEVS architecten
Blok 19 IJburg
LEVS architecten
Woningbouw Stadshagen
LEVS architecten
Woningbouw Purmerend
LEVS architecten
RIJ De Doggershoek, Den Helder
LEVS architecten
ZuidKade
LEVS architecten
Groot Hartje
LEVS architecten
The Ox
LEVS architecten
Stepstone
LEVS architecten
Populus, Rotterdam
LEVS architecten
ROOT, Eindhoven
LEVS architecten
Nieuw Develstein
LEVS architecten
Bensdorp
LEVS architecten
Harbour Club
LEVS architecten
De Bocht
LEVS architecten
Cubes
LEVS architecten
Turfstraat
LEVS architecten
2Peer friends-woningen, Amsterdam
LEVS architecten
Breehorn IJdoornlaan in Amsterdam Noord
LEVS architecten
Nieuwe stadsentree Amersfoort
LEVS architecten
Gershwin Brothers, Amsterdam
LEVS architecten
Forum City, Jekaterinburg (RUS)
LEVS architecten
Binck Blocks, Den Haag
LEVS architecten
Museum voor Fotografie Huis Marseille, Amsterdam
LEVS architecten
Tricotage, Veenendaal
LEVS architecten
Woonzorggebouw De Bouwmeester, Utrecht
LEVS architecten
Startersappartementen Lewehof, Uithuizen
LEVS architecten
Nieuwe woonwijk Leeuwenveld, Weesp
LEVS architecten
Woonzorggebouw & Kulturhus Kaleidoskoop, Nieuwkoop
LEVS architecten
Gewestkantoor, Bussum
LEVS architecten
De Zilverling, Amsterdam
LEVS architecten
St. Ignatiusgymnasium, Amsterdam
LEVS architecten
DoggerRIJ, Den Helder
LEVS architecten
Woonoase Koster, Bussum
LEVS architecten
Vernieuwing Kantoor Dudok, Bussum
LEVS architecten
Interieur eigen kantoor, Amsterdam
LEVS architecten
Kantoor en werkplaats Kersten, Amsterdam
LEVS architecten
De Bloemen, Roelofarendsveen
LEVS architecten
Op de Brouwerij, Enschede
LEVS architecten
Het Bastion, Veenendaal
LEVS architecten
Suyderseezicht, Lelystad
LEVS architecten
De Westerwierde, Uithuizen
LEVS architecten
Gezondheidscentrum Haveneiland, Amsterdam
LEVS architecten
Noorderplassen
LEVS architecten
IJburg blok 19, Amsterdam
LEVS architecten
Uitbreiding RIJ de Doggershoek, Den Helder
LEVS architecten
Zorgcentrum Werkeren Stadshagen, Zwolle
LEVS architecten
Blok 19 IJburg
LEVS architecten
Woningbouw Stadshagen
LEVS architecten
Woningbouw Purmerend
LEVS architecten
RIJ De Doggershoek, Den Helder
LEVS architecten
Toon alles
Andere Projecten
Den Hartogh Basecamp
Schüco Nederland BV
FÆnslet
VELUX Commercial Benelux B.V.
Exclusieve wooneenheden
SAPA
Berkel Noordersingel
Schippers Architecten
Woningen op BEFU terrein Utrecht
SAB-profiel bv
Duurzaam afvalmanagement in nieuwbouw van Alrijne
Stansz
Rembrandtstraat
Martens Willems Architecten
Ottho Amsterdam
Solarlux Nederland B.V.
Alphen aan de Rijn - Park 100
Schippers Architecten
Ontdek het bruisende kantoor van Roku in Amsterdam
Tétris Design & Build
Rivierwoning in het ritme van het Rijngebied
HMVD Architecten
Kleurrijke renovatie kantoor
Tétris Design & Build
Ga naar het projecten-overzicht
Voor een optimale gebruikservaring plaatst Architectenweb functionele cookies. Wat de verschillende cookies precies doen leggen we uit in een
overzicht
. Cookies van social media kun je optioneel
aanzetten
.
Akkoord
Instellingen
Annuleren
OK
Sluiten
Doorgaan
Inloggen
Maak een gratis persoonlijk account aan
Feedback
Feedback
Wij horen graag jouw feedback. Laat je reactie achter en eventueel jouw e-mail adres.
Reactie
Verstuur