Projecten
Producten
Bedrijven
Vacatures
Agenda
Awards
Podcasts
more_horiz
Videos
Magazine
Favorieten
Profiel
Uitloggen
Abonneer je nu op onze nieuwsbrieven!
Abonneren
Nee, bedankt
Ja, denk met me mee rond de
materialisering van mijn project
Producten
Copyright: LEVS architecten
Copyright: Your Captain Luchtfotografie
Copyright: LEVS architecten
Copyright: LEVS architecten
Copyright: LEVS architecten
Copyright: LEVS architecten
Copyright: LEVS architecten
Copyright: LEVS architecten
Copyright: LEVS architecten
Locatie
Copyright: LEVS architecten
Situatie
Copyright: LEVS architecten
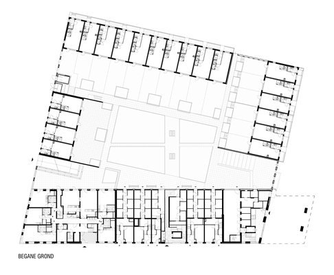
Begane grond
Copyright: LEVS architecten
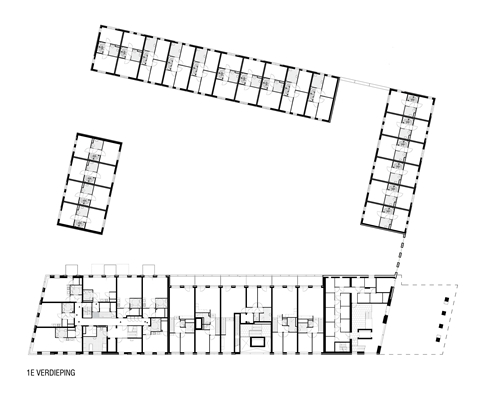
1e verdieping
Copyright: LEVS architecten
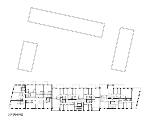
3e verdieping
Copyright: LEVS architecten
Producttags
AAN
UIT
Nieuwe stadsentree Amersfoort
30 juni 2020
0
0
0
0
De oostelijke entree van Amersfoort is ingrijpend vernieuwd. De Hogeweg kruist in de nieuwe opzet ongelijkvloers de Buurtas en geeft de oostelijke entree van het centrum van Amersfoort een nieuwe impuls met veel wonen en een nieuw topsportbad. De bestaande naoorlogse wijk werd daarvoor gedeeltelijk gesloopt.
Ons ontwerp voor Hogekwartier veld 2 markeert de nieuwe stadsentree. Het ensemble bestaat uit 133 koop-, sociale huur-, zorg- en eengezinswoningen. De toren van vijftig meter trapt af van zestien via negen en zes lagen naar de eengezinswoningen die aan de stadszijde op de aangrenzende naoorlogse woonwijk aansluiten. Aan de noordkant van de toren steunt het hele volume op één kolom in vorm van een W. Het diepe overstek maakt ook op straatniveau duidelijk: hier begint de stad.
Het ensemble heeft een gevarieerd woonprogramma met koop, huur, sociaal en zware zorg en reageert met zijn architectuur op de verschillende kanten waar het aan grenst. Daardoor kent het plan een grote mate van differentiatie in korrel en schaal. Het appartementengebouw is opgedeeld in drie delen met portieken voor drie en vier woningen. De delen zijn met elkaar verbonden door een plint, een betonnen rand die per eenheid verder omhoogloopt. De grondgebonden woningen met tuin en de appartementen met grote balkons liggen aan een gemeenschappelijk groen ingericht dek boven op een ondergrondse parkeergarage. Een palet aan bakstenen in aardse tinten parcelleert het blok, maar maakt het tegelijkertijd een samenhangend geheel.
Masterplan: KCAP
Stel jezelf kort voor! Dan weet het betreffende bedrijf wie hun model gedownload heeft.
Wil je niet bij elke download jouw gegevens in hoeven voeren?
Klik dan hier om in te loggen
.
Heb je nog geen account?
Maak dan hier een gratis account aan
.
Voornaam
Achternaam
E-mailadres
Downloaden
Wanneer je modellen downloadt op Architectenweb.nl worden relevante gegevens van jou – zoals jouw naam en e-mailadres – met het betreffende bedrijf gedeeld. Meer hierover lees je in ons
privacybeleid
.
Locatie
Trefwoorden
amersfoort
stadsentree
metselwerk
kolom
levs architecten
toren
LEVS architecten
Neem contact op
Projectdata
Staat van realisatie
Voltooid
Start ontwerpproces
2014
Start bouw
2017
Oplevering
2020
Ingebruikname
2020
Plaats
Amersfoort
Bruto m
2
17400
Netto m
2
10000
Meewerkende partijen
Architect
LEVS architecten
Projectarchitect
Adriaan Mout, Jurriaan van Stigt, Marianne Loof
Ontwerpteam
David Meijer, Ulf Bjällerstedt, Sunny Jessurun, Martijn Boer, Dennis Meijerink
Opdrachtgever
De Alliantie
Aannemer
Van Wijnen
Constructeur
Goudstikker de Vries
Adviseurs installaties E & W
Nieman Raadgevende Ingenieurs B.V.
Fotograaf
LEVS architecten
, Your Captain Luchtfotografie
Stedenbouwkundige
KCAP Architects & Planners
Leveranciers
Overig
VMG, Deppe Backstein,
Kawneer
Neem contact op met
LEVS architecten
Je bent momenteel niet ingelogd. Hierdoor is het alleen mogelijk om meer informatie per e-mail op te vragen. Wil je liever gebeld worden of documentatie per post ontvangen?
Klik dan hier om in te loggen
.
Heb je nog geen account?
Maak dan hier een gratis account aan
.
Voornaam
Achternaam
E-mailadres
Opmerkingen
Bij iedere aanvraag worden relevante gegevens van jou gedeeld met het betreffende bedrijf. Meer hierover lees je in ons
privacybeleid
.
Ja, denk met me mee rond de
materialisering van mijn project
Meer projecten van LEVS architecten
Merwede – Stadsblok 9 / Joy
LEVS architecten
Podium
LEVS architecten
ZuidKade
LEVS architecten
Groot Hartje
LEVS architecten
The Ox
LEVS architecten
Stepstone
LEVS architecten
Populus, Rotterdam
LEVS architecten
ROOT, Eindhoven
LEVS architecten
Nieuw Develstein
LEVS architecten
Bensdorp
LEVS architecten
Harbour Club
LEVS architecten
De Bocht
LEVS architecten
Cubes
LEVS architecten
Turfstraat
LEVS architecten
2Peer friends-woningen, Amsterdam
LEVS architecten
Breehorn IJdoornlaan in Amsterdam Noord
LEVS architecten
Gershwin Brothers, Amsterdam
LEVS architecten
Forum City, Jekaterinburg (RUS)
LEVS architecten
Binck Blocks, Den Haag
LEVS architecten
Museum voor Fotografie Huis Marseille, Amsterdam
LEVS architecten
Tricotage, Veenendaal
LEVS architecten
Woonzorggebouw De Bouwmeester, Utrecht
LEVS architecten
Startersappartementen Lewehof, Uithuizen
LEVS architecten
Nieuwe woonwijk Leeuwenveld, Weesp
LEVS architecten
Woonzorggebouw & Kulturhus Kaleidoskoop, Nieuwkoop
LEVS architecten
Gewestkantoor, Bussum
LEVS architecten
De Zilverling, Amsterdam
LEVS architecten
St. Ignatiusgymnasium, Amsterdam
LEVS architecten
DoggerRIJ, Den Helder
LEVS architecten
Woonoase Koster, Bussum
LEVS architecten
Vernieuwing Kantoor Dudok, Bussum
LEVS architecten
Interieur eigen kantoor, Amsterdam
LEVS architecten
Kantoor en werkplaats Kersten, Amsterdam
LEVS architecten
De Bloemen, Roelofarendsveen
LEVS architecten
Op de Brouwerij, Enschede
LEVS architecten
Het Bastion, Veenendaal
LEVS architecten
Suyderseezicht, Lelystad
LEVS architecten
De Westerwierde, Uithuizen
LEVS architecten
Gezondheidscentrum Haveneiland, Amsterdam
LEVS architecten
Noorderplassen
LEVS architecten
IJburg blok 19, Amsterdam
LEVS architecten
Uitbreiding RIJ de Doggershoek, Den Helder
LEVS architecten
Zorgcentrum Werkeren Stadshagen, Zwolle
LEVS architecten
Blok 19 IJburg
LEVS architecten
Woningbouw Stadshagen
LEVS architecten
Woningbouw Purmerend
LEVS architecten
RIJ De Doggershoek, Den Helder
LEVS architecten
Merwede – Stadsblok 9 / Joy
LEVS architecten
Podium
LEVS architecten
ZuidKade
LEVS architecten
Groot Hartje
LEVS architecten
The Ox
LEVS architecten
Stepstone
LEVS architecten
Populus, Rotterdam
LEVS architecten
ROOT, Eindhoven
LEVS architecten
Nieuw Develstein
LEVS architecten
Bensdorp
LEVS architecten
Harbour Club
LEVS architecten
De Bocht
LEVS architecten
Cubes
LEVS architecten
Turfstraat
LEVS architecten
2Peer friends-woningen, Amsterdam
LEVS architecten
Breehorn IJdoornlaan in Amsterdam Noord
LEVS architecten
Gershwin Brothers, Amsterdam
LEVS architecten
Forum City, Jekaterinburg (RUS)
LEVS architecten
Binck Blocks, Den Haag
LEVS architecten
Museum voor Fotografie Huis Marseille, Amsterdam
LEVS architecten
Tricotage, Veenendaal
LEVS architecten
Woonzorggebouw De Bouwmeester, Utrecht
LEVS architecten
Startersappartementen Lewehof, Uithuizen
LEVS architecten
Nieuwe woonwijk Leeuwenveld, Weesp
LEVS architecten
Woonzorggebouw & Kulturhus Kaleidoskoop, Nieuwkoop
LEVS architecten
Gewestkantoor, Bussum
LEVS architecten
De Zilverling, Amsterdam
LEVS architecten
St. Ignatiusgymnasium, Amsterdam
LEVS architecten
DoggerRIJ, Den Helder
LEVS architecten
Woonoase Koster, Bussum
LEVS architecten
Vernieuwing Kantoor Dudok, Bussum
LEVS architecten
Interieur eigen kantoor, Amsterdam
LEVS architecten
Kantoor en werkplaats Kersten, Amsterdam
LEVS architecten
De Bloemen, Roelofarendsveen
LEVS architecten
Op de Brouwerij, Enschede
LEVS architecten
Het Bastion, Veenendaal
LEVS architecten
Suyderseezicht, Lelystad
LEVS architecten
De Westerwierde, Uithuizen
LEVS architecten
Gezondheidscentrum Haveneiland, Amsterdam
LEVS architecten
Noorderplassen
LEVS architecten
IJburg blok 19, Amsterdam
LEVS architecten
Uitbreiding RIJ de Doggershoek, Den Helder
LEVS architecten
Zorgcentrum Werkeren Stadshagen, Zwolle
LEVS architecten
Blok 19 IJburg
LEVS architecten
Woningbouw Stadshagen
LEVS architecten
Woningbouw Purmerend
LEVS architecten
RIJ De Doggershoek, Den Helder
LEVS architecten
Toon alles
Andere Projecten
Van Waal tot Waal
BoschSlabbers
Schaalbaar honderden modulaire woningen bouwen?
Buro De Haan
Gebouw 50 – Slimme, duurzame geveloptimalisatie
EQUITONE gevelpanelen
Eigentijds wonen met concept Ankum
Innoblox
Nieuwbouw kantoorpand
Knauf B.V.
woningbouw poortmeesters delft
VYA architectuur en stedenbouw
Onderwijsgebouw Aurora, Wageningen
WEBO
Sandwichpanelenwand hygiënische afbouw
Sentho B.V.
Transformeerbare vergaderruimtes in HNK Amsterdam
BREEDVELD mobiele wandsystemen
Complete buiteninrichting kantooromgeving
Falco B.V.
TopAccess Dakluik bij Porsche Service Factory
Staka Dakluiken
Nieuwbouw villa Tegenbosch, Eindhoven, Noord-Braba
van Os Architecten
Ga naar het projecten-overzicht
Voor een optimale gebruikservaring plaatst Architectenweb functionele cookies. Wat de verschillende cookies precies doen leggen we uit in een
overzicht
. Cookies van social media kun je optioneel
aanzetten
.
Akkoord
Instellingen
Annuleren
OK
Sluiten
Doorgaan
Inloggen
Maak een gratis persoonlijk account aan
Feedback
Feedback
Wij horen graag jouw feedback. Laat je reactie achter en eventueel jouw e-mail adres.
Reactie
Verstuur