Projecten
Producten
Bedrijven
Vacatures
Agenda
Awards
Podcasts
more_horiz
Videos
Magazine
Favorieten
Profiel
Uitloggen
Abonneer je nu op onze nieuwsbrieven!
Abonneren
Nee, bedankt
Ja, denk met me mee rond de
materialisering van mijn project
Producten
Copyright: LEVS architecten
Copyright: LEVS architecten
Copyright: LEVS architecten
Copyright: LEVS architecten
Copyright: LEVS architecten
Copyright: LEVS architecten
Copyright: LEVS architecten
Copyright: LEVS architecten
Copyright: LEVS architecten
Copyright: LEVS architecten
Copyright: LEVS architecten
Copyright: LEVS architecten
Copyright: LEVS architecten
Copyright: LEVS architecten
Copyright: LEVS architecten
Copyright: LEVS architecten
Copyright: LEVS architecten
Copyright: LEVS architecten
Producttags
AAN
UIT
Nieuw Develstein
23 juni 2023
0
0
0
0
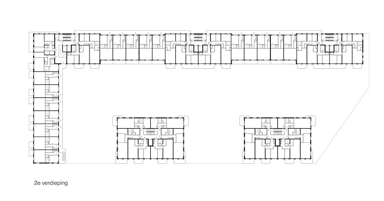
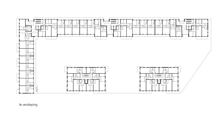
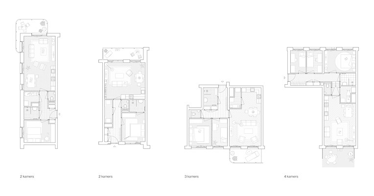
In de D-buurt van Amsterdam-Zuidoost heeft LEVS in opdracht van SAREF en Ten Brinke Group 262 appartementen in de middeldure huur ontworpen. Betaalbaar wonen gaat hier niet over studio’s maar over (gezins)woningen met twee, drie en vier kamers, variërend tussen de 65 en 90 m². Diverse woongebouwen met grote diversiteit aan woningtypologieën vormen tezamen een nieuw ensemble rondom een prachtig groen hof.
Aansluiting bij de omgeving
Binnen de grenzen van een opgave zoeken we ook altijd naar kansen daarbuiten. In dit ontwerp is de rijke aansluiting bij de omgeving, de open benadering van het semiopenbare binnenhof de kracht van het ontwerp. Het wonen en ontmoeten staat centraal. De grote dubbelhoge entreehallen van de hoogbouw langs de te handhaven dreef staan direct in verbinding met het hof. De vrijstaande appartementengebouwen tonen aan dat rondom wonen vele kwaliteiten heeft mits goed gepositioneerd.
Knipoog naar Bijlmermeer flats
De schaal van het project is passend bij Zuidoost. De architectuur zoekt daarnaast nadrukkelijk het detail en de verfijning om ook van dichtbij de beleving van een plezierige woonomgeving te vervullen. Het honingraatpatroon in het metselwerk is een knipoog naar de oude Bijlmermeer flats.
Stel jezelf kort voor! Dan weet het betreffende bedrijf wie hun model gedownload heeft.
Wil je niet bij elke download jouw gegevens in hoeven voeren?
Klik dan hier om in te loggen
.
Heb je nog geen account?
Maak dan hier een gratis account aan
.
Voornaam
Achternaam
E-mailadres
Downloaden
Wanneer je modellen downloadt op Architectenweb.nl worden relevante gegevens van jou – zoals jouw naam en e-mailadres – met het betreffende bedrijf gedeeld. Meer hierover lees je in ons
privacybeleid
.
Locatie
Trefwoorden
gezamenlijke binnentuin
betaalbaar
middeldure huur
sociaal
hoogwaardig
LEVS architecten
Neem contact op
Projectdata
Staat van realisatie
Voltooid
Start ontwerpproces
2016
Start bouw
2021
Oplevering
2023
Ingebruikname
2023
Plaats
Amsterdam
Meewerkende partijen
Architect
LEVS architecten
Projectarchitect
Adriaan Mout, Jurriaan van Stigt, Marianne Loof
Ontwerpteam
Marco Rats, Ulf Bjällerstedt, Ingeborg van Lent, Timea Sandor, Ilias Kerkeni
Opdrachtgever
SAREF, Ten Brinke Group
Aannemer
Ten Brinke Groep
Constructeur
Ten Brinke Advies en Engineering
Adviseurs installaties E & W
Cauberg Huygen
Fotograaf
LEVS architecten
Stedenbouwkundige
Buro SRO
Landschapsarchitect
Baljon landschapsarchitecten
Leveranciers
Betontrappen
Steenhuis Beton Prefab beton
Prefab beton balkons/galerijen
Constar Prefab
Hekwerken
AMG Balustradesystemen bv
Installaties
Inco
Kunststof kozijnen
Rollecate
Neem contact op met
LEVS architecten
Je bent momenteel niet ingelogd. Hierdoor is het alleen mogelijk om meer informatie per e-mail op te vragen. Wil je liever gebeld worden of documentatie per post ontvangen?
Klik dan hier om in te loggen
.
Heb je nog geen account?
Maak dan hier een gratis account aan
.
Voornaam
Achternaam
E-mailadres
Opmerkingen
Bij iedere aanvraag worden relevante gegevens van jou gedeeld met het betreffende bedrijf. Meer hierover lees je in ons
privacybeleid
.
Ja, denk met me mee rond de
materialisering van mijn project
Meer projecten van LEVS architecten
Merwede – Stadsblok 9 / Joy
LEVS architecten
Podium
LEVS architecten
ZuidKade
LEVS architecten
Groot Hartje
LEVS architecten
The Ox
LEVS architecten
Stepstone
LEVS architecten
Populus, Rotterdam
LEVS architecten
ROOT, Eindhoven
LEVS architecten
Bensdorp
LEVS architecten
Harbour Club
LEVS architecten
De Bocht
LEVS architecten
Cubes
LEVS architecten
Turfstraat
LEVS architecten
2Peer friends-woningen, Amsterdam
LEVS architecten
Breehorn IJdoornlaan in Amsterdam Noord
LEVS architecten
Nieuwe stadsentree Amersfoort
LEVS architecten
Gershwin Brothers, Amsterdam
LEVS architecten
Forum City, Jekaterinburg (RUS)
LEVS architecten
Binck Blocks, Den Haag
LEVS architecten
Museum voor Fotografie Huis Marseille, Amsterdam
LEVS architecten
Tricotage, Veenendaal
LEVS architecten
Woonzorggebouw De Bouwmeester, Utrecht
LEVS architecten
Startersappartementen Lewehof, Uithuizen
LEVS architecten
Nieuwe woonwijk Leeuwenveld, Weesp
LEVS architecten
Woonzorggebouw & Kulturhus Kaleidoskoop, Nieuwkoop
LEVS architecten
Gewestkantoor, Bussum
LEVS architecten
De Zilverling, Amsterdam
LEVS architecten
St. Ignatiusgymnasium, Amsterdam
LEVS architecten
DoggerRIJ, Den Helder
LEVS architecten
Woonoase Koster, Bussum
LEVS architecten
Vernieuwing Kantoor Dudok, Bussum
LEVS architecten
Interieur eigen kantoor, Amsterdam
LEVS architecten
Kantoor en werkplaats Kersten, Amsterdam
LEVS architecten
De Bloemen, Roelofarendsveen
LEVS architecten
Op de Brouwerij, Enschede
LEVS architecten
Het Bastion, Veenendaal
LEVS architecten
Suyderseezicht, Lelystad
LEVS architecten
De Westerwierde, Uithuizen
LEVS architecten
Gezondheidscentrum Haveneiland, Amsterdam
LEVS architecten
Noorderplassen
LEVS architecten
IJburg blok 19, Amsterdam
LEVS architecten
Uitbreiding RIJ de Doggershoek, Den Helder
LEVS architecten
Zorgcentrum Werkeren Stadshagen, Zwolle
LEVS architecten
Blok 19 IJburg
LEVS architecten
Woningbouw Stadshagen
LEVS architecten
Woningbouw Purmerend
LEVS architecten
RIJ De Doggershoek, Den Helder
LEVS architecten
Merwede – Stadsblok 9 / Joy
LEVS architecten
Podium
LEVS architecten
ZuidKade
LEVS architecten
Groot Hartje
LEVS architecten
The Ox
LEVS architecten
Stepstone
LEVS architecten
Populus, Rotterdam
LEVS architecten
ROOT, Eindhoven
LEVS architecten
Bensdorp
LEVS architecten
Harbour Club
LEVS architecten
De Bocht
LEVS architecten
Cubes
LEVS architecten
Turfstraat
LEVS architecten
2Peer friends-woningen, Amsterdam
LEVS architecten
Breehorn IJdoornlaan in Amsterdam Noord
LEVS architecten
Nieuwe stadsentree Amersfoort
LEVS architecten
Gershwin Brothers, Amsterdam
LEVS architecten
Forum City, Jekaterinburg (RUS)
LEVS architecten
Binck Blocks, Den Haag
LEVS architecten
Museum voor Fotografie Huis Marseille, Amsterdam
LEVS architecten
Tricotage, Veenendaal
LEVS architecten
Woonzorggebouw De Bouwmeester, Utrecht
LEVS architecten
Startersappartementen Lewehof, Uithuizen
LEVS architecten
Nieuwe woonwijk Leeuwenveld, Weesp
LEVS architecten
Woonzorggebouw & Kulturhus Kaleidoskoop, Nieuwkoop
LEVS architecten
Gewestkantoor, Bussum
LEVS architecten
De Zilverling, Amsterdam
LEVS architecten
St. Ignatiusgymnasium, Amsterdam
LEVS architecten
DoggerRIJ, Den Helder
LEVS architecten
Woonoase Koster, Bussum
LEVS architecten
Vernieuwing Kantoor Dudok, Bussum
LEVS architecten
Interieur eigen kantoor, Amsterdam
LEVS architecten
Kantoor en werkplaats Kersten, Amsterdam
LEVS architecten
De Bloemen, Roelofarendsveen
LEVS architecten
Op de Brouwerij, Enschede
LEVS architecten
Het Bastion, Veenendaal
LEVS architecten
Suyderseezicht, Lelystad
LEVS architecten
De Westerwierde, Uithuizen
LEVS architecten
Gezondheidscentrum Haveneiland, Amsterdam
LEVS architecten
Noorderplassen
LEVS architecten
IJburg blok 19, Amsterdam
LEVS architecten
Uitbreiding RIJ de Doggershoek, Den Helder
LEVS architecten
Zorgcentrum Werkeren Stadshagen, Zwolle
LEVS architecten
Blok 19 IJburg
LEVS architecten
Woningbouw Stadshagen
LEVS architecten
Woningbouw Purmerend
LEVS architecten
RIJ De Doggershoek, Den Helder
LEVS architecten
Toon alles
Andere Projecten
Houtlook lamellen voor aantrekkelijke nieuwbouw
Renson
Orato Offices | Nederland
ALUCOBOND®
Westerpark West: Salt, Blend & Pepper: balkons
M.C. Kersten B.V.
TU Eindhoven: complete trappenhuizen
M.C. Kersten B.V.
Onderhoud groene gevels zonder visuele impact
Aerial Access
Luxe en transparantie in Villa te Zeewolde
Axess B.V. Lift Solutions
De Koepel Haarlem: kozijnen, deuren, trappen
M.C. Kersten B.V.
Platformlift Tech Centrum Hoornbeeck – Amersfoort
Axess B.V. Lift Solutions
Cellenvleugel De Koepel De Vest: Kozijnen trappen
M.C. Kersten B.V.
Hourglass: Trappen en balustraden
M.C. Kersten B.V.
Woonhuis Otterlo: wenteltrappen
M.C. Kersten B.V.
Circulair bouwen met een biobased kern
Faay Vianen B.V.
Ga naar het projecten-overzicht
Voor een optimale gebruikservaring plaatst Architectenweb functionele cookies. Wat de verschillende cookies precies doen leggen we uit in een
overzicht
. Cookies van social media kun je optioneel
aanzetten
.
Akkoord
Instellingen
Annuleren
OK
Sluiten
Doorgaan
Inloggen
Maak een gratis persoonlijk account aan
Feedback
Feedback
Wij horen graag jouw feedback. Laat je reactie achter en eventueel jouw e-mail adres.
Reactie
Verstuur