Projecten
Producten
Bedrijven
Vacatures
Agenda
Awards
Podcasts
more_horiz
Videos
Magazine
Thema's
Favorieten
Profiel
Uitloggen
Abonneer je nu op onze nieuwsbrieven!
Abonneren
Nee, bedankt
Ja, denk met me mee rond de
materialisering van mijn project
Producten
Copyright: LEVS architecten
Copyright: LEVS architecten
Copyright: LEVS architecten
Copyright: LEVS architecten
Copyright: LEVS architecten
Copyright: LEVS architecten
Copyright: LEVS architecten
Copyright: LEVS architecten
Copyright: LEVS architecten
Copyright: LEVS architecten
Copyright: LEVS architecten
Copyright: LEVS architecten
Copyright: LEVS architecten
Copyright: LEVS architecten
Copyright: LEVS architecten
Producttags
AAN
UIT
The Ox
19 juni 2024
0
0
0
0
Op de kavel van een gedateerd kantoorgebouw en tegenover één van de markante AUP-flatgebouwen staat The Ox. Het appartementengebouw, dat het eerste deel is van een groot stadsblok, heeft bijna 170 woningen waarvan ruim driekwart voor de middeldure huursector.
Stedenbouwkundige aansluiting
Ten noorden van de locatie aan de Osdorper Ban is tussen 2005 en 2009 een reeks zeer grote stadsblokken gebouwd, afwijkend van de open stempelstructuur van het AUP. Daar sluit The Ox stedenbouwkundig bij aan, maar architectonisch voegt het gebouw zich in de beeldkwaliteit van het AUP.
Gevarieerd woonprogramma
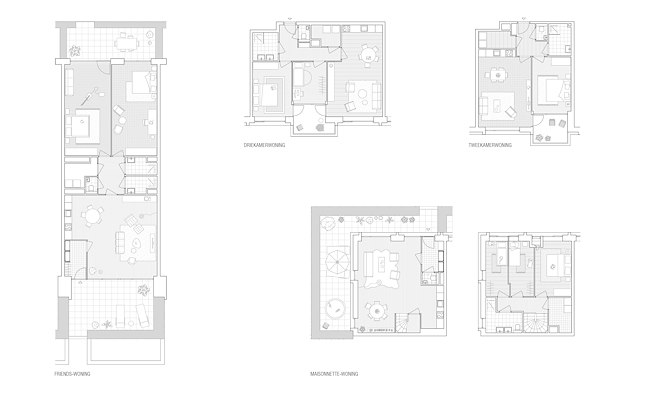
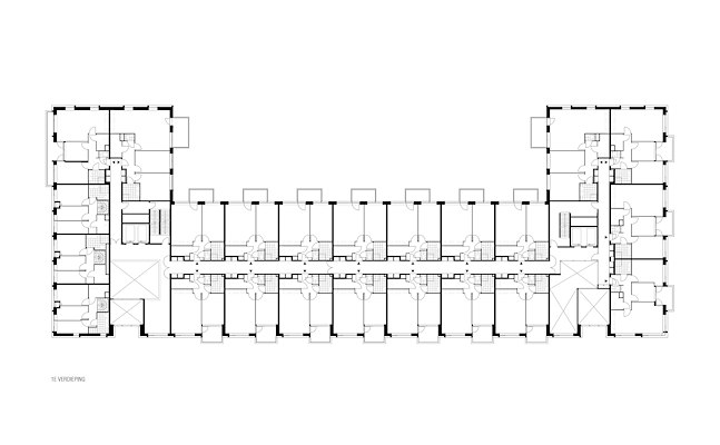
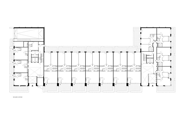
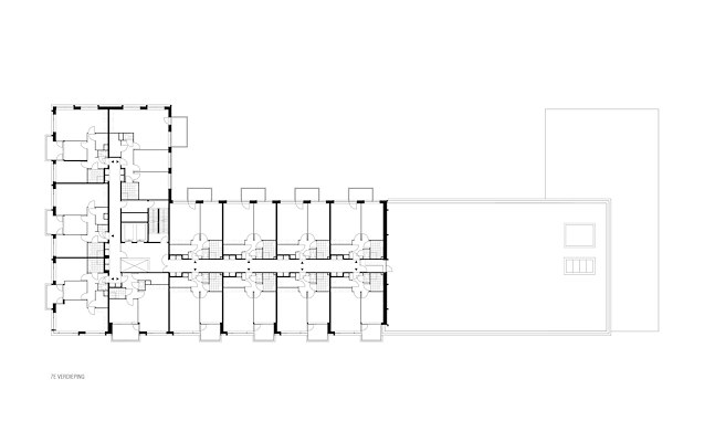
The OX bevat een groot aantal tweekamerwoningen van circa 60 m², ontsloten via een middencorridor. In de koppen zijn de stijgpunten, met daar omheen driekamerappartementen van circa 75 m². Op de begane grond zijn de grotere woningen in de vorm van maisonnettes en friends-woningen, ontsloten vanaf de straat en voorzien van privétuinen.
Overgangen naar publieke ruimten
De overgangen naar de publieke ruimten zijn zorgvuldig vormgegeven door middel van lage tuinmuren, met daarachter een haag. Hierdoor ontstaat een levendige plint. Het ruime binnenhof, van een zeer grote omvang, zal worden ingevuld met terrassen en bloeiende plantenzones en een semi-openbare sfeer creëren.
Gevelconcept en materialen
Het volume loopt trapsgewijs van negen bouwlagen aan de Osdorper Ban tot zes lagen aan de Osdorpergracht-zijde. De architectuur van het gebouw wordt gekarakteriseerd door een vierkant betonraster met verschillende invullingen en refereert aan de context van naoorlogse woningbouw. De prefab betongevel van de begane grond en de eerste verdieping van de noordgevel sluit goed aan op de plintbehandeling van de blokken aan de overzijde van de Osdorper Ban. De toerit van de garage is geïntegreerd aan deze zijde van het blok.
Kopse gevels en toekomstige doorgangen
De kopse (wacht) gevels zijn een logisch gevolg van de keuze voor stadsblokken die gefaseerd ontwikkeld worden. De permanente gevels zijn reeds van puien voorzien en over het wachtende deel is het raster doorgetrokken. Binnen dit raster zal metselwerk de invulling zijn ter plaatse van toekomstige doorgangen en de overige vakken krijgen een (tijdelijke) begroeiing.
Stel jezelf kort voor! Dan weet het betreffende bedrijf wie hun model gedownload heeft.
Wil je niet bij elke download jouw gegevens in hoeven voeren?
Klik dan hier om in te loggen
.
Heb je nog geen account?
Maak dan hier een gratis account aan
.
Voornaam
Achternaam
E-mailadres
Downloaden
Wanneer je modellen downloadt op Architectenweb.nl worden relevante gegevens van jou – zoals jouw naam en e-mailadres – met het betreffende bedrijf gedeeld. Meer hierover lees je in ons
privacybeleid
.
Locatie
Trefwoorden
middelduur
maisonnettewoningen
friends-woningen
betonraster
aup
LEVS architecten
Neem contact op
Projectdata
Staat van realisatie
Voltooid
Start ontwerpproces
2016
Start bouw
2021
Oplevering
2024
Ingebruikname
2024
Plaats
Amsterdam
Bruto m
2
18700
Meewerkende partijen
Architect
LEVS architecten
Projectarchitect
Adriaan Mout, Jurriaan van Stigt, Marianne Loof, Christiaan Schuit, Surya Steijlen
Ontwerpteam
Ron Bruin, Hilmar Goedhart, Raphael Naef, Bart Beentjes, Swati Hedge
Opdrachtgever
Van Wijnen Projectontwikkeling Midden
Aannemer
Van Wijnen Amsterdam
Constructeur
Swinn
Adviseurs installaties E & W
Ingenieursburo Linsen
Landschapsarchitect
VLUGP
Leveranciers
Balustrades/balkonhekwerken
Fek Metaal
Prefab beton
Waco
Puien
Polybouw
Neem contact op met
LEVS architecten
Je bent momenteel niet ingelogd. Hierdoor is het alleen mogelijk om meer informatie per e-mail op te vragen. Wil je liever gebeld worden of documentatie per post ontvangen?
Klik dan hier om in te loggen
.
Heb je nog geen account?
Maak dan hier een gratis account aan
.
Voornaam
Achternaam
E-mailadres
Opmerkingen
Bij iedere aanvraag worden relevante gegevens van jou gedeeld met het betreffende bedrijf. Meer hierover lees je in ons
privacybeleid
.
Ja, denk met me mee rond de
materialisering van mijn project
Meer projecten van LEVS architecten
Merwede – Stadsblok 9 / Joy
LEVS architecten
Podium
LEVS architecten
ZuidKade
LEVS architecten
Groot Hartje
LEVS architecten
Stepstone
LEVS architecten
Populus, Rotterdam
LEVS architecten
ROOT, Eindhoven
LEVS architecten
Nieuw Develstein
LEVS architecten
Bensdorp
LEVS architecten
Harbour Club
LEVS architecten
De Bocht
LEVS architecten
Cubes
LEVS architecten
Turfstraat
LEVS architecten
2Peer friends-woningen, Amsterdam
LEVS architecten
Breehorn IJdoornlaan in Amsterdam Noord
LEVS architecten
Nieuwe stadsentree Amersfoort
LEVS architecten
Gershwin Brothers, Amsterdam
LEVS architecten
Forum City, Jekaterinburg (RUS)
LEVS architecten
Binck Blocks, Den Haag
LEVS architecten
Museum voor Fotografie Huis Marseille, Amsterdam
LEVS architecten
Tricotage, Veenendaal
LEVS architecten
Woonzorggebouw De Bouwmeester, Utrecht
LEVS architecten
Startersappartementen Lewehof, Uithuizen
LEVS architecten
Nieuwe woonwijk Leeuwenveld, Weesp
LEVS architecten
Woonzorggebouw & Kulturhus Kaleidoskoop, Nieuwkoop
LEVS architecten
Gewestkantoor, Bussum
LEVS architecten
De Zilverling, Amsterdam
LEVS architecten
St. Ignatiusgymnasium, Amsterdam
LEVS architecten
DoggerRIJ, Den Helder
LEVS architecten
Woonoase Koster, Bussum
LEVS architecten
Vernieuwing Kantoor Dudok, Bussum
LEVS architecten
Interieur eigen kantoor, Amsterdam
LEVS architecten
Kantoor en werkplaats Kersten, Amsterdam
LEVS architecten
De Bloemen, Roelofarendsveen
LEVS architecten
Op de Brouwerij, Enschede
LEVS architecten
Het Bastion, Veenendaal
LEVS architecten
Suyderseezicht, Lelystad
LEVS architecten
De Westerwierde, Uithuizen
LEVS architecten
Gezondheidscentrum Haveneiland, Amsterdam
LEVS architecten
Noorderplassen
LEVS architecten
IJburg blok 19, Amsterdam
LEVS architecten
Uitbreiding RIJ de Doggershoek, Den Helder
LEVS architecten
Zorgcentrum Werkeren Stadshagen, Zwolle
LEVS architecten
Blok 19 IJburg
LEVS architecten
Woningbouw Stadshagen
LEVS architecten
Woningbouw Purmerend
LEVS architecten
RIJ De Doggershoek, Den Helder
LEVS architecten
Merwede – Stadsblok 9 / Joy
LEVS architecten
Podium
LEVS architecten
ZuidKade
LEVS architecten
Groot Hartje
LEVS architecten
Stepstone
LEVS architecten
Populus, Rotterdam
LEVS architecten
ROOT, Eindhoven
LEVS architecten
Nieuw Develstein
LEVS architecten
Bensdorp
LEVS architecten
Harbour Club
LEVS architecten
De Bocht
LEVS architecten
Cubes
LEVS architecten
Turfstraat
LEVS architecten
2Peer friends-woningen, Amsterdam
LEVS architecten
Breehorn IJdoornlaan in Amsterdam Noord
LEVS architecten
Nieuwe stadsentree Amersfoort
LEVS architecten
Gershwin Brothers, Amsterdam
LEVS architecten
Forum City, Jekaterinburg (RUS)
LEVS architecten
Binck Blocks, Den Haag
LEVS architecten
Museum voor Fotografie Huis Marseille, Amsterdam
LEVS architecten
Tricotage, Veenendaal
LEVS architecten
Woonzorggebouw De Bouwmeester, Utrecht
LEVS architecten
Startersappartementen Lewehof, Uithuizen
LEVS architecten
Nieuwe woonwijk Leeuwenveld, Weesp
LEVS architecten
Woonzorggebouw & Kulturhus Kaleidoskoop, Nieuwkoop
LEVS architecten
Gewestkantoor, Bussum
LEVS architecten
De Zilverling, Amsterdam
LEVS architecten
St. Ignatiusgymnasium, Amsterdam
LEVS architecten
DoggerRIJ, Den Helder
LEVS architecten
Woonoase Koster, Bussum
LEVS architecten
Vernieuwing Kantoor Dudok, Bussum
LEVS architecten
Interieur eigen kantoor, Amsterdam
LEVS architecten
Kantoor en werkplaats Kersten, Amsterdam
LEVS architecten
De Bloemen, Roelofarendsveen
LEVS architecten
Op de Brouwerij, Enschede
LEVS architecten
Het Bastion, Veenendaal
LEVS architecten
Suyderseezicht, Lelystad
LEVS architecten
De Westerwierde, Uithuizen
LEVS architecten
Gezondheidscentrum Haveneiland, Amsterdam
LEVS architecten
Noorderplassen
LEVS architecten
IJburg blok 19, Amsterdam
LEVS architecten
Uitbreiding RIJ de Doggershoek, Den Helder
LEVS architecten
Zorgcentrum Werkeren Stadshagen, Zwolle
LEVS architecten
Blok 19 IJburg
LEVS architecten
Woningbouw Stadshagen
LEVS architecten
Woningbouw Purmerend
LEVS architecten
RIJ De Doggershoek, Den Helder
LEVS architecten
Toon alles
Andere Projecten
Toegangscontrole op een dynamisch terrein
Heras
Biobased bouwen naast Natura 2000-gebied
KUBUS | Specialist in Archicad
5Tracks - inspirerende atriums met JUNG
Jung | Hateha B.V.
Totaalrealisatie nieuwe kantoorlocatie A. Vogel
Intermontage B.V.
Sweco Wonderwoods — Duurzame kantoorinrichting
Hal2
Gare Maritime, Brussel
WEBO
De transformatie van de Lintveldebrink
Grohe Nederland B.V.
Sweco WTC Den Haag — Duurzame kantoorinrichting
Hal2
Uitbreiding Hotel Martin's Klooster, Leuven
OWA Benelux - Akoestiek & Design
RVS plinten kantoor Moore DRV
Storax
Nieuwbouw keuken Stark Hoogeveen
KeraStone
Transformatie van meubelzaak naar autobedrijf
Buro De Haan
Ga naar het projecten-overzicht
Voor een optimale gebruikservaring plaatst Architectenweb functionele cookies. Wat de verschillende cookies precies doen leggen we uit in een
overzicht
. Cookies van social media kun je optioneel
aanzetten
.
Akkoord
Instellingen
Annuleren
OK
Sluiten
Doorgaan
Inloggen
Maak een gratis persoonlijk account aan
Feedback
Feedback
Wij horen graag jouw feedback. Laat je reactie achter en eventueel jouw e-mail adres.
Reactie
Verstuur