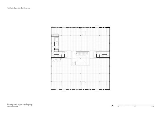
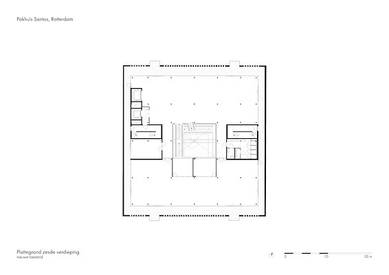
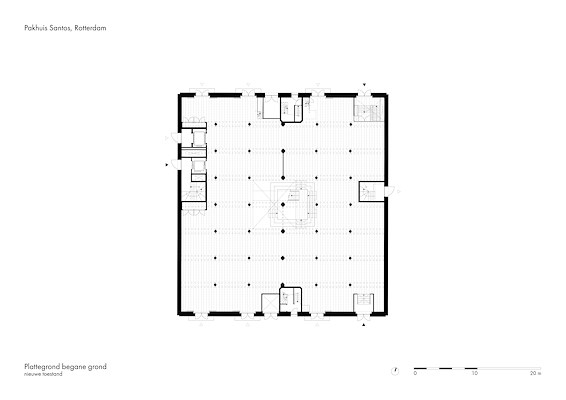
Pakhuis Santos werd verbouwd voor designwarenhuis stilwerk, maar het past het Nederlands Fotomuseum als een handschoen, zegt directeur Birgit Donker. Alle ingrepen die stilwerk (geschreven zonder hoofdletter) in het voormalige pakhuis liet doen, zijn ook geschikt voor de culturele bestemming die het pand nu krijgt. Van het podium op de begane grond en de verspringende / schuine vide met trap in het midden van het gebouw tot de goudkleurige kroon die is toegevoegd: alles wordt dankbaar in gebruik genomen door het museum.

Het Duitse stilwerk kreeg zijn concept in Rotterdam niet rond en moest met veel pijn in het hart het plan voor een Nederlandse vestiging opgeven. “Enorm dapper” noemt directeur Donker de stap van stilwerk om het sterk verwaarloosde pand – “waar de kelder blank stond” – te kopen en een liefdevolle renovatie in te zetten. Ook “enorm verdrietig” dat de onderneming het gebouw uiteindelijk weer heeft moeten verkopen, maar stilwerk was in elk geval blij dat het gerenoveerde pakhuis een publieke culturele bestemming zou krijgen.
De Rotterdamse filantropische stichting Droom en Daad wist dat het Nederlands Fotomuseum nieuwe huisvesting zocht, vertelt Donker. Las Palmas – het huidige onderkomen aan de andere kant van de Rijnhaven op de Wilhelminapier – wordt gedeeld met andere huurders, wat de zichtbaarheid van het museum niet ten goede komt. Het gebouw biedt het museum daarnaast niet langer een optimale logistiek en kost elk jaar meer aan huur. Droom en Daad schonk de 38 miljoen euro, waarmee het museum Santos in juli 2023 verwierf.
“De enige voorwaarde is dat als we er ooit uit trekken, we de sleutel moeten inleveren bij Droom en Daad”, zegt Martijn van den Broek, Hoofd Collecties. “We bezitten het pand, maar kunnen het niet verkopen. Dat lijkt me volkomen terecht.”