Projecten
Producten
Bedrijven
Vacatures
Agenda
Awards
Podcasts
more_horiz
Videos
Magazine
Thema's
Favorieten
Profiel
Uitloggen
Abonneer je nu op onze nieuwsbrieven!
Abonneren
Nee, bedankt
Ja, denk met me mee rond de
materialisering van mijn project
Copyright: DP6 architectuurstudio
De nieuwe hoofdentree komt te liggen aan het Tournooiveld
Copyright: DP6 architectuurstudio
Binnenplein
Copyright: DP6 architectuurstudio
Beletage
Copyright: DP6 architectuurstudio
Burgermeesterzaal
Copyright: DP6 architectuurstudio
Nieuwe tentoonstellingszaal
Copyright: DP6 architectuurstudio
Maquette
Copyright: DP6 architectuurstudio
Axo
Copyright: DP6 architectuurstudio
Conceptschema bestaand-sloop
Copyright: DP6 architectuurstudio
Conceptschema nieuw
Copyright: DP6 architectuurstudio
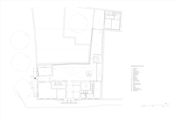
Souterrain
Copyright: DP6 architectuurstudio
Beletage
Copyright: DP6 architectuurstudio
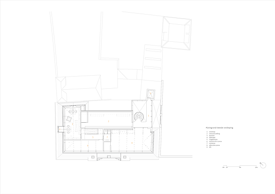
Eerste verdieping
Copyright: DP6 architectuurstudio
Tweede verdieping
Copyright: DP6 architectuurstudio
Dak
Copyright: DP6 architectuurstudio
Gemeenteraad Den Haag akkoord met renovatieplannen Haags Historisch Museum
21 juni 2024, 11:18
De gemeenteraad van Den Haag heeft donderdagavond ingestemd met de renovatieplannen voor het Haags Historisch Museum. In het ontwerp van
DP6 architectuurstudio
krijgt het museum een nieuwe entree aan het Tournooiveld en een eveneens nieuwe ontvangsthal aan de achterzijde van het complex. Enkele latere aanbouwen worden gesloopt om plaats te maken voor de nieuwe hal.
Het Haags Historisch Museum is toe aan een grondige renovatie omdat het niet meer voldoet aan de eisen van de tijd en de huidige museumbezoeker. Met de verbouwing wil het museum ook diens museale profiel versterken. DP6 is drie jaar geleden aangesteld voor het ontwerp, donderdag is het goedgekeurd door de Haagse gemeenteraad. Na de zomer start aannemer Koninklijke Woudenberg met de uitvoering.
Het zeventiende-eeuwse rijksmonument waarin het museum is gehuisvest, de Sebastiaansdoelen aan de Korte Vijverberg is in diens geschiedenis vaak verbouwd. Het pand sluit in zijn huidige vorm niet meer aan bij de eisen van vandaag de dag voor een aantrekkelijk en uitnodigend museum. Daarbij heeft het interieur in de loop van de tijd veel van haar oorspronkelijke allure en karakter verloren, zo stellen de gemeente en het museum.
Hoofdentree verplaatst
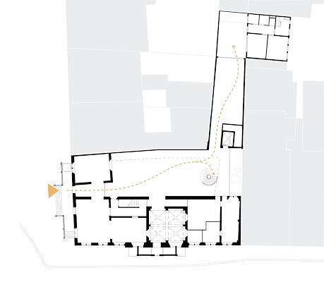
In het ontwerp blijft het gezicht van het classicistische stadspaleis naar de stad onveranderd, met één belangrijke wijziging: de hoofdentree wordt verplaatst naar de zijgevel aan het Tournooiveld. Waar zich vroeger de dienstingang bevond, krijgt het museum een nieuwe publieksentree, met een volgens DP6 herkenbaar en uitnodigend gezicht naar de stad. De entree wordt verplaatst naar het Tournooiveld, omdat het daar aanwezige brede trottoir meer ruimte biedt en daarmee een veiliger en toegankelijker ontvangstplek voor het museum.
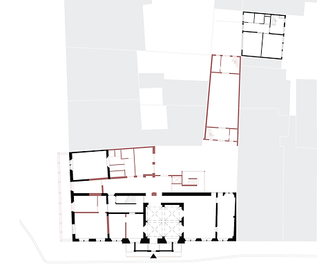
De hoofdvorm van het complex wordt in ere hersteld door latere aanbouwen aan de achterzijde te verwijderen. Op de plek van de gesloopte delen komt een transparante nieuwe ontvangsthal waarin de gerestaureerde achtergevel van het rijksmonument zichtbaar is. De hal fungeert als een binnenplein waar vanuit het gehele museum wordt ontsloten en waarin allerlei evenementen kunnen plaatsvinden.
Bij binnenkomst door de nieuwe entree trekt de lichte, hoge centrale hal meteen de aandacht, laat DP6 weten. Via een eveneens opvallende wenteltrap worden bezoekers naar de tentoonstellingsruimten op de verdiepingen geleid: de gerestaureerde ruimten in het monumentale pand en de nieuw toegevoegde zalen boven de centrale hal. Ook de nieuwe tentoonstellingsvleugel, op de plek waar nu nog een oude loods staat, wordt ontsloten via het binnenplein. De huidige zolder wordt heringericht tot educatieruimte en kantoorruimte.
Doorgaande sequentie van zalen
Waar de verschillende tentoonstellingszalen nu amper met elkaar verbonden zijn en er geen logische looproute is, krijgt het toekomstige museum een doorgaande sequentie van zalen. Via doorgangen en doorkijkjes worden de zalen ook visueel met elkaar verbonden. Dat geldt ook voor de verbinding met de stad; waar de ramen voorheen afgeschermd werden krijgen de tentoonstellingszalen uitzicht over de Hofvijver.
In 2026 moet de renovatie zijn afgerond, meldt DP6.
Trefwoorden
verbouwing
museum
dp6
museumkwartier
dp6 architectuurstudio
den haag
haags historisch museum
renovatie
Locatie
Best gelezen
1
Luxe appartementengebouw naast klooster Etten-Leur door Studio AAAN klaar
donderdag, 19 maart
2
BureauVanEig verbetert uitstraling Haagse rijtjeswoningen bij verduurzaming
dinsdag, 17 maart
3
Houten Stelthuis van Woonpioniers is aardbevings- en klimaatbestendig
woensdag, 18 maart
4
De nieuwe kleren van de keizer
dinsdag, 17 maart
5
Duncan Stutterheim en SOM maken plannen voor meerdere locaties Sloterdijk I
maandag, 16 maart
Gerelateerde nieuwsberichten
Haags Museumkwartier gehuld in een zachte lichtsluier
1 maart 2024
DP6 maakt plan voor vernieuwing Haags Historisch Museum
12 oktober 2021
Tentoonstelling over werk 25-jarig DP6 in kunstcentrum Radius
19 augustus 2024
Chris de Weijer neemt afscheid als partner van DP6
7 november 2024
Renovatie Binnenhof weer duurder, nog niet bekend hoeveel
13 maart 2024
Den Haag gestart met herinrichting Spuiplein
27 september 2024
Haagse gemeenteraad stemt in met ontwikkelvisie Den Haag Centraal
4 oktober 2024
Gemeentehuis Rheden naar ontwerp van DP6 en Zenber opgeleverd
2 juli 2025
Deel van gedempte gracht rond Binnenhof komt terug
25 januari 2024
Haags schoolgebouw Eduard Cuypers gerenoveerd en uitgebreid met nieuwbouw
24 oktober 2025
Kunstcentrum ondergebracht in pomphuis en bassin bij Delftse watertoren
7 maart 2024
DP6 ontwerpt Onderwijscentrum Binnenstad voor Universiteit Utrecht
11 december 2023
Deel Hofvijver in Den Haag drooggelegd voor werk aan Binnenhof
17 januari 2025
Uitbreiding Hogeschool Leiden 'ontbrekend puzzelstukje' binnen complex
7 juli 2023
DP6 en Vakwerk ontwerpen nieuw faculteitsgebouw Diergeneeskunde Universiteit Utrecht
29 januari 2025
Gemeente stelt ambitiedocument op voor vitale toekomst Mariahoeve
24 februari 2025
Gerestaureerd pakhuis Santos klaar voor inhuizing van Nederlands Fotomuseum
28 oktober 2024
Haags Museumkwartier gehuld in een zachte lichtsluier
1 maart 2024
DP6 maakt plan voor vernieuwing Haags Historisch Museum
12 oktober 2021
Tentoonstelling over werk 25-jarig DP6 in kunstcentrum Radius
19 augustus 2024
Chris de Weijer neemt afscheid als partner van DP6
7 november 2024
Renovatie Binnenhof weer duurder, nog niet bekend hoeveel
13 maart 2024
Den Haag gestart met herinrichting Spuiplein
27 september 2024
Haagse gemeenteraad stemt in met ontwikkelvisie Den Haag Centraal
4 oktober 2024
Gemeentehuis Rheden naar ontwerp van DP6 en Zenber opgeleverd
2 juli 2025
Deel van gedempte gracht rond Binnenhof komt terug
25 januari 2024
Haags schoolgebouw Eduard Cuypers gerenoveerd en uitgebreid met nieuwbouw
24 oktober 2025
Kunstcentrum ondergebracht in pomphuis en bassin bij Delftse watertoren
7 maart 2024
DP6 ontwerpt Onderwijscentrum Binnenstad voor Universiteit Utrecht
11 december 2023
Deel Hofvijver in Den Haag drooggelegd voor werk aan Binnenhof
17 januari 2025
Uitbreiding Hogeschool Leiden 'ontbrekend puzzelstukje' binnen complex
7 juli 2023
DP6 en Vakwerk ontwerpen nieuw faculteitsgebouw Diergeneeskunde Universiteit Utrecht
29 januari 2025
Gemeente stelt ambitiedocument op voor vitale toekomst Mariahoeve
24 februari 2025
Gerestaureerd pakhuis Santos klaar voor inhuizing van Nederlands Fotomuseum
28 oktober 2024
Toon alles
Andere nieuwsberichten
PSV presenteert plannen voor uitbreiding Philips Stadion
Gisteren, 15:37
De Eindhovense club wil de capaciteit van zijn onderkomen opschroeven met maximaal 25.000 bezoekers. Om dit te bewerkstelligen, komt er een nieuwe schil rond het stadion waarin een derde ring is opgenomen.
Rijkswaterstaat staakt renovatie markante houten Krùsrak-brug in Sneek
Gisteren, 11:32
Tijdens de renovatie werd duidelijk dat de constructieve veiligheid van de brug niet langer kan worden verzekerd, laat RWS weten. De uit 2008 stammende Krúsrak-brug over de rijksweg 7 is ontworpen door Onix en Archterbosch Architecten.
KAAN Architecten en De Zwarte Hond winnen tender voor Area 19 TU Eindhoven
Gisteren, 10:35
De opdracht omvat het ontwerp van een nieuw onderzoeks- en onderwijsgebouw en de stedenbouwkundige ontwikkeling van een nieuw campusgebied.
Projecten gezocht voor vijfde Adriaan Dessingprijs
19 maart, 2:42
De tweejaarlijkse architectuurprijs vestigt de aandacht op bijzondere, gerealiseerde plannen in de Zuid-Hollandse gemeenten Westland en Midden-Delfland. Het kan gaan om nieuwbouw, restauratie of landschappelijke projecten.
Friesland brengt duizenden karakteristieke boerderijen in kaart
Gisteren, 14:16
Door alle informatie over de voor het landschap kenmerkende gebouwen op één plek te brengen, moet het makkelijker worden om ze te behouden.
ING: bijna de helft van de huiseigenaren stelt verduurzaming uit
Gisteren, 12:18
De meeste mensen vinden dat de overheid te weinig doet om dit te stimuleren.
Rekenkamer kraakt resultaten EU-innovatiefonds voor verduurzaming
Gisteren, 09:25
Het Innovatiefonds van de Europese Unie levert veel minder resultaat op dan verwacht op het gebied van verduurzaming en innovatie.
Provincie schrapt beoogde locaties windturbines in Groene Hart
19 maart, 1:35
De provincie had twaalf plekken op het oog, maar dat leidde tot maatschappelijk en politiek verzet.
Staten Utrecht willen netcongestie versneld aanpakken
19 maart, 9:44
De fracties wezen op de noodzaak van het zo snel mogelijk realiseren van een hoogspanningsstation dat essentieel is voor het opsplitsen van het elektriciteitsnetwerk tussen de Flevopolder, Gelderland en Utrecht.
Rotterdam wil woningbouw versnellen met pilot ‘Ontwikkelaar aan Zet’
18 maart, 4:33
De gemeente Rotterdam start een pilot waarbij projectontwikkelaars een grotere rol krijgen bij de voorbereiding van woningbouwprojecten.
Ga naar het nieuws-archief
Ronnie Weessies
Redacteur
0
0
0
0
Voor een optimale gebruikservaring plaatst Architectenweb functionele cookies. Wat de verschillende cookies precies doen leggen we uit in een
overzicht
. Cookies van social media kun je optioneel
aanzetten
.
Akkoord
Instellingen
Annuleren
OK
Sluiten
Doorgaan
Inloggen
Maak een gratis persoonlijk account aan
Feedback
Feedback
Wij horen graag jouw feedback. Laat je reactie achter en eventueel jouw e-mail adres.
Reactie
Verstuur