Projecten
Producten
Bedrijven
Vacatures
Agenda
Awards
Podcasts
more_horiz
Videos
Magazine
Thema's
Favorieten
Profiel
Uitloggen
Abonneer je nu op onze nieuwsbrieven!
Abonneren
Nee, bedankt
Ja, denk met me mee rond de
materialisering van mijn project
Copyright: ScagliolaBrakkee
Copyright: ScagliolaBrakkee
Copyright: ScagliolaBrakkee
Copyright: ScagliolaBrakkee
Copyright: ScagliolaBrakkee
Copyright: ScagliolaBrakkee
Copyright: ScagliolaBrakkee
Copyright: ScagliolaBrakkee
Copyright: ScagliolaBrakkee
Copyright: ScagliolaBrakkee
Historische foto Heilig Hart
Copyright: Beeldbank Den Haag
Situatie
Copyright: DP6
Doorsnede nieuwbouw
Copyright: DP6
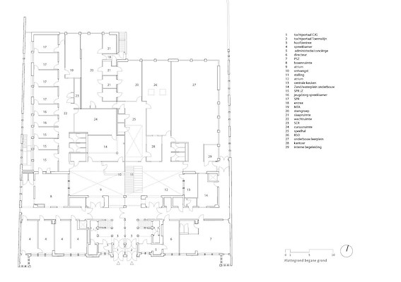
Plattegrond nieuwbouw
Copyright: DP6
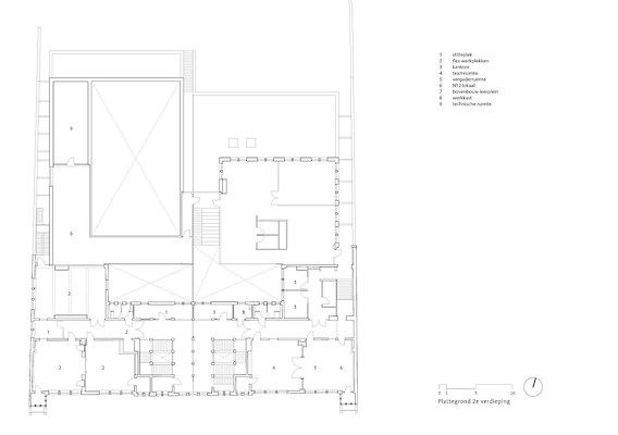
Plattegrond nieuwbouw
Copyright: DP6
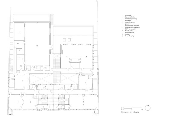
Plattegrond nieuwbouw
Copyright: DP6
Haags schoolgebouw Eduard Cuypers gerenoveerd en uitgebreid met nieuwbouw
24 oktober 2025, 12:07
In Den Haag is naar ontwerp van
DP6
de basisschool Heilig Hart gerenoveerd en uitgebreid met nieuwbouw. In het nieuwe gebouw achter het door Eduard Cuypers ontworpen complex uit 1905 is een aanvullend programma met een kindcentrum, Centrum voor Jeugd en Gezin (CJG) en enkele onderdelen van de school ondergebracht. Op de overgang tussen bestaand en nieuw is een atrium met daklicht gerealiseerd.
Het Heilig Hart, nu onderdeel van het voorzieningencluster Beeklaan, is een basisschool in een gebouw dat samen met een kerk en een pastorie een ensemble vormt. Het schoolgebouw van Eduard Cuypers kenmerkt zich onder meer door de symmetrische opzet, het indrukwekkende trappenhuis en de imposante hoogte.
Het bestaande gebouw is gerestaureerd met materialen als vloer- en wandtegels, natuurstenen dorpels, houten kozijnen en zandsteenelementen. Ook is het gebouw verduurzaamd tot BENG-niveau. In het meest historische deel sluit het complex door middel van een atrium aan op het nieuwe gebouw. Dit gedeelte, dat van boven is voorzien van daglicht, vormt het ruimtelijke hart van het gehele ensemble.
De nieuwbouw is tegen de bestaande bebouwing ‘aan gepuzzeld’. De gevels zijn van witte en beige baksteen, op het volume van de gymzaal is een tijdlijn getekend die belangrijke momenten in de geschiedenis van het Heilig Hart aanduidt. De symmetrische opzet van twee entreedeuren en twee hallen in het schoolgebouw vormde ook de basis voor de functionele verdeling in de nieuwbouw. Achter de linker entreedeur ligt het CJG, achter de rechterdeur het kindcentrum.
Binnen een rustige basis laat het gebouw ruimte voor de eigen identiteit van de verschillende gebruikers. Door een heldere functionele opzet kunnen het CJG en het kindcentrum volledig autonoom functioneren, maar zijn ze toch visueel met elkaar verbonden. De gymzaal op de verdieping heeft aan de achterzijde een aparte ingang, zodat deze buiten schooluren door verenigingen gebruikt kan worden.
Trefwoorden
dp6
eduard cuypers
kindcentrum
school
Locatie
Best gelezen
1
Luxe appartementengebouw naast klooster Etten-Leur door Studio AAAN klaar
donderdag, 19 maart
2
BureauVanEig verbetert uitstraling Haagse rijtjeswoningen bij verduurzaming
dinsdag, 17 maart
3
Houten Stelthuis van Woonpioniers is aardbevings- en klimaatbestendig
woensdag, 18 maart
4
De nieuwe kleren van de keizer
dinsdag, 17 maart
5
Landschappelijk ontworpen buurt in Vinex-wijk Schuytgraaf voltooid
woensdag, 18 maart
Gerelateerde nieuwsberichten
Gemeentehuis Rheden naar ontwerp van DP6 en Zenber opgeleverd
2 juli 2025
Robuust en energiezuinig depotgebouw voor Utrechtse collecties
13 mei 2025
DP6 en Vakwerk ontwerpen nieuw faculteitsgebouw Diergeneeskunde Universiteit Utrecht
29 januari 2025
Gemeenteraad Den Haag akkoord met renovatieplannen Haags Historisch Museum
21 juni 2024
Kunstcentrum ondergebracht in pomphuis en bassin bij Delftse watertoren
7 maart 2024
DP6 ontwerpt Onderwijscentrum Binnenstad voor Universiteit Utrecht
11 december 2023
Uitbreiding Hogeschool Leiden 'ontbrekend puzzelstukje' binnen complex
7 juli 2023
The Natural Pavilion krijgt tweede leven op dezelfde plek
19 december 2022
DP6 ontwerpt 23 appartementen in Bossche School-kerk Malden
30 september 2022
Winnaars Rotterdam Architectuurprijs 2022 bekend
22 juni 2022
DP6 en i29 presenteren ontwerp transformatie Bouwdeel H van Gerechtsgebouw Utrecht.
2 juni 2022
Radius krijgt interieur uit geoogste en natuurlijke materialen
25 april 2022
Gemeentehuis Rheden naar ontwerp van DP6 en Zenber opgeleverd
2 juli 2025
Robuust en energiezuinig depotgebouw voor Utrechtse collecties
13 mei 2025
DP6 en Vakwerk ontwerpen nieuw faculteitsgebouw Diergeneeskunde Universiteit Utrecht
29 januari 2025
Gemeenteraad Den Haag akkoord met renovatieplannen Haags Historisch Museum
21 juni 2024
Kunstcentrum ondergebracht in pomphuis en bassin bij Delftse watertoren
7 maart 2024
DP6 ontwerpt Onderwijscentrum Binnenstad voor Universiteit Utrecht
11 december 2023
Uitbreiding Hogeschool Leiden 'ontbrekend puzzelstukje' binnen complex
7 juli 2023
The Natural Pavilion krijgt tweede leven op dezelfde plek
19 december 2022
DP6 ontwerpt 23 appartementen in Bossche School-kerk Malden
30 september 2022
Winnaars Rotterdam Architectuurprijs 2022 bekend
22 juni 2022
DP6 en i29 presenteren ontwerp transformatie Bouwdeel H van Gerechtsgebouw Utrecht.
2 juni 2022
Radius krijgt interieur uit geoogste en natuurlijke materialen
25 april 2022
Toon alles
Andere nieuwsberichten
PSV presenteert plannen voor uitbreiding Philips Stadion
Gisteren, 15:37
De Eindhovense club wil de capaciteit van zijn onderkomen opschroeven met maximaal 25.000 bezoekers. Om dit te bewerkstelligen, komt er een nieuwe schil rond het stadion waarin een derde ring is opgenomen.
Rijkswaterstaat staakt renovatie markante houten Krùsrak-brug in Sneek
Gisteren, 11:32
Tijdens de renovatie werd duidelijk dat de constructieve veiligheid van de brug niet langer kan worden verzekerd, laat RWS weten. De uit 2008 stammende Krúsrak-brug over de rijksweg 7 is ontworpen door Onix en Archterbosch Architecten.
KAAN Architecten en De Zwarte Hond winnen tender voor Area 19 TU Eindhoven
Gisteren, 10:35
De opdracht omvat het ontwerp van een nieuw onderzoeks- en onderwijsgebouw en de stedenbouwkundige ontwikkeling van een nieuw campusgebied.
Projecten gezocht voor vijfde Adriaan Dessingprijs
19 maart, 2:42
De tweejaarlijkse architectuurprijs vestigt de aandacht op bijzondere, gerealiseerde plannen in de Zuid-Hollandse gemeenten Westland en Midden-Delfland. Het kan gaan om nieuwbouw, restauratie of landschappelijke projecten.
Friesland brengt duizenden karakteristieke boerderijen in kaart
Gisteren, 14:16
Door alle informatie over de voor het landschap kenmerkende gebouwen op één plek te brengen, moet het makkelijker worden om ze te behouden.
ING: bijna de helft van de huiseigenaren stelt verduurzaming uit
Gisteren, 12:18
De meeste mensen vinden dat de overheid te weinig doet om dit te stimuleren.
Rekenkamer kraakt resultaten EU-innovatiefonds voor verduurzaming
Gisteren, 09:25
Het Innovatiefonds van de Europese Unie levert veel minder resultaat op dan verwacht op het gebied van verduurzaming en innovatie.
Provincie schrapt beoogde locaties windturbines in Groene Hart
19 maart, 1:35
De provincie had twaalf plekken op het oog, maar dat leidde tot maatschappelijk en politiek verzet.
Staten Utrecht willen netcongestie versneld aanpakken
19 maart, 9:44
De fracties wezen op de noodzaak van het zo snel mogelijk realiseren van een hoogspanningsstation dat essentieel is voor het opsplitsen van het elektriciteitsnetwerk tussen de Flevopolder, Gelderland en Utrecht.
Rotterdam wil woningbouw versnellen met pilot ‘Ontwikkelaar aan Zet’
18 maart, 4:33
De gemeente Rotterdam start een pilot waarbij projectontwikkelaars een grotere rol krijgen bij de voorbereiding van woningbouwprojecten.
Ga naar het nieuws-archief
Ronnie Weessies
Redacteur
0
0
0
0
Voor een optimale gebruikservaring plaatst Architectenweb functionele cookies. Wat de verschillende cookies precies doen leggen we uit in een
overzicht
. Cookies van social media kun je optioneel
aanzetten
.
Akkoord
Instellingen
Annuleren
OK
Sluiten
Doorgaan
Inloggen
Maak een gratis persoonlijk account aan
Feedback
Feedback
Wij horen graag jouw feedback. Laat je reactie achter en eventueel jouw e-mail adres.
Reactie
Verstuur