Projecten
Producten
Bedrijven
Vacatures
Agenda
Awards
Podcasts
more_horiz
Videos
Magazine
Thema's
Favorieten
Profiel
Uitloggen
Nieuw
Populair
Toon alles
Architectenweb magazine #14
Architectenweb magazine #13
Publieke gebouwen
Architectenweb magazine #12
Kantoren
Architectenweb magazine #11
Scholen
Architectenweb magazine #10
Zorg
Architectenweb magazine #14
Architectenweb magazine #10
Zorg
Architectenweb magazine #12
Kantoren
Architectenweb magazine #13
Publieke gebouwen
Architectenweb magazine #6
Transformatie en Renovatie
Om direct naar je favorieten te kunnen gaan is het nodig om eerst in te loggen.
Nieuw
Architectenweb Awards 2025
Architectenweb Awards 2024
Architectenweb Awards 2023
Architectenweb Awards 2022
Architectenweb Awards 2021
Architectenweb Awards 2020
Architectenweb Awards 2019
Architectenweb Awards 2018
Om direct naar je favorieten te kunnen gaan is het nodig om eerst in te loggen.
Nieuw
Populair
Favorieten
Toon alles
Vakwerk Architecten
Nominatie voor de prijs voor Architect van het Jaar 2025
Sanne van Manen
Nominatie voor de prijs voor Architect van het Jaar 2025
KSA
Nominatie voor de prijs voor Architect van het Jaar 2025
KRFT
Nominatie voor de prijs voor Architect van het Jaar 2025
Joost Ector
Nominatie voor de prijs voor Architect van het Jaar 2025
Prijsuitreiking Architectenweb Awards 2024
Impressie van een feestelijke avond
Martens, Willems & Humblé Architecten
Nominatie voor de prijs voor Architect van het Jaar 2024
Uitreiking van Architectenweb Awards 2020
Impressie van de prijsuitreiking via Zoom
De Zwarte Hond
Nominatie voor de prijs voor Architect van het Jaar 2024
Avond met De Zwarte Hond
Symposium
Om direct naar je favorieten te kunnen gaan is het nodig om eerst in te loggen.
Nieuw
Populair
Categorieën
Favorieten
Toon alles
Brandpreventie Academy BV
Cay Circulaire Keukens
Circulaire keukens en pantry's
Studio Kirsten Reith
Interieurontwerp
Studio175
Interieuradvies in regio Utrecht
Orange Automatic Doors
Indoorwrap
De specialist in Keukenwrappen
Cay Circulaire Keukens
Circulaire keukens en pantry's
Studio Kirsten Reith
Interieurontwerp
Studio175
Interieuradvies in regio Utrecht
Interior & Co
Indoorwrap
De specialist in Keukenwrappen
Orange Automatic Doors
Architecten
Architectuur
Mobiliteit en infrastructuur
Stedenbouw en landschapsarchitectuur
Leveranciers
Gevels
Daken
Ramen en deuren
Trappen, liften en balustrades
Binnenwanden
Vloeren
Plafonds
Verlichting
Sanitair
Projectinrichting
Installaties
Constructies
Buitenruimte
Software
Adviseurs
Bestekschrijvers
Bouwmanagement
Installatie adviseurs E
Bouwfysica
Calculators
Installatie adviseurs G/W
Bouwkundig tekenwerk
Constructeurs
Lichtadviseurs
Adviseur beveiliging
Juristen
Intermediairs, Payrolling
Aannemers
Overig
Presentatie
Instellingen / onderwijs
Overig
Om direct naar je favorieten te kunnen gaan is het nodig om eerst in te loggen.
Nieuw
Populair
Favorieten
Toon alles
Gesprek met Stephan Sliepenbeek over hoogbouw in Amstel III
Gesprek met Ellen van Bueren over gebiedsontwikkeling en hoogbouw
Gesprek met Ma Yansong over ontwerpen die emotie oproepen
Gesprek met Paul de Ruiter over innovatieve en duurzame hoogbouw
Gesprek met Pi de Bruijn over zijn ontwerpen voor de Tweede Kamer toen en nu
Gesprek met Ellen van Bueren over gebiedsontwikkeling en hoogbouw
Gesprek met Oresti Sarafopoulos over het ontwerpen van een kantoorgebouw met bijna geen installaties
Gesprek met Stijn Steenbakkers over verdichting en hoogbouw in Eindhoven
Gesprek met Pi de Bruijn over zijn ontwerpen voor de Tweede Kamer toen en nu
Gesprek met Paul de Ruiter over innovatieve en duurzame hoogbouw
Om direct naar je favorieten te kunnen gaan is het nodig om eerst in te loggen.
Nieuw
Populair
Categorieën
Favorieten
Toon alles
De energiemarkt revolutionair vernieuwen
Festivalterrein als inspiratie van dit kantoor
De antieke Agora als inspiratie voor een kantoor
Renovatieproject Ockenburghstraat
Aluminium kozijnen: de isolerende oplossing
Prinsenpark, Rotterdam
ASML Gebouw 3
IVY, Amsterdam
IKC De Brug
Houthavens, Amsterdam
Architectuur
Woningbouw
Zorg
Hotels
Restaurants en café’s
Winkels
Sportgebouwen
Culturele gebouwen
Overheidsgebouwen
Scholen
Kantoren
Bedrijfsgebouwen
Paviljoens en kunst
Overig
Mobiliteit en infrastructuur
Trein- en metrostations
Luchthavens
Busstations
Parkeergarages
Fietsparkeren
Wegen
Bruggen
Water
Energie
Tankstations en laadstations
Waterzuivering en afvalverwerking
Overig
Stedenbouw en landschapsarchitectuur
Regionale visies
Gebiedsvisies
Plannen stedelijk weefsel
Amusementsparken en dierentuinen
Lichtontwerpen
Openbare ruimte
Pleinen
Parken
Tuinen
Speelplaatsen
Uitkijktorens
Overige (bijv. begraafplaatsen)
Om direct naar je favorieten te kunnen gaan is het nodig om eerst in te loggen.
Nieuw
Populair
Categorieën
Favorieten
Toon alles
Control Track Versa
Langdurige flexibiliteit voor kantoren van de toekomst
Toegankelijkheid in de stad: klanktegels als gids
Een nieuwe dimensie in stadsontwerp: integreren van klank voor een inclusieve ervaring.
Dreentegel
Terug van weggeweest
Flux-totaalaanbod vraaggestuurde Renson WTW-ventilatie
Compacte wand- en plafondmontage voor alle debieten
Wie denkt er aan slopen tijdens bouwen?
Kies voor de toekomst, kies voor circulair isoleren!
Digital Prints
Meer mogelijkheden in gekleurd staal
Element+ H-I
Hout - Aluminium Elementgevel
Vierkante vluchtroutearmaturen voor grote ruimtes
Zichtbare veiligheid van alle kanten
GROHE Cubeo: kranen voor elke badkamer
Stijlvol en duurzaam design voor jarenlang plezier
Schüco Zonweringsysteem Integralmaster in FWS
Bescherming tegen zon, verblinding en privacy – verborgen en volledig geïntegreerd
Gevels
Gevelbekleding
Vliesgevels
Zonwering buiten
Isolatie
Gevelconstructies
Signing
Overig
Daken
Dakafwerkingen
Dakisolatie
Dakconstructies
Dakranden, dakgoten en HWA's
Dakramen
Lichtkoepels
Lichtstraten
Schoorstenen
Overig
Dakluiken
Ramen en deuren
Raam- en deursystemen / kozijnen
Vliesgevels
Hang- en sluitwerk
Beveiliging en luiken
Dorpels en vensterbanken
Lateien
Roosters
Glas
Dakramen
Dakkoepels
Lichtstraten
Zonwering buiten
Zonwering binnen
Buitendeuren
Binnendeuren
Postvakken en brievenbussen
Overig
Dakluiken
Trappen, liften en balustrades
Trappen
Roltrappen
Liften
Balustrades en hekwerken
Galerijen
Binnenwanden
Binnenwanden
Wandafwerking
Vloeren
Constructieve vloeren
Verhoogde vloeren
Vloerafwerkingen
Overig
Plafonds
Tegels
Lineair
Grill
Open en roosters
Naadloos
Eilanden en baffles
Plafondafwerkingen
Ophangsystemen
Overig
Klimaatplafonds
Verlichting
Binnenverlichting
Buitenverlichting
Sanitair
Kranen en douchesets
Wastafels
Douchewanden en douchebakken
Baden
Waterclosets
Accessoires
Overig
Projectinrichting
Stoelen
Banken
Tafels
Kasten
Balies
Vrijstaande wanden
Keukens
Accessoires
Overig
Cabines
Interieurbeplanting
Stoffering
Installaties
Verwarming, koeling en ventilatie
Elektrotechnische installaties
Schakelmateriaal
Domotica
Deurcommunicatie
Beveiliging
Liften
Onderhoudsinstallaties
Overig
Brandbeveiliging
Constructies
Draagconstructies
Funderingen en kelders
Overig
Brandbeveiliging
Buitenruimte
Bestratingen en verhardingen
Afwateringen
Terreinafscheidingen en geluidsschermen
Buitenmeubilair
Fietsparkeren
Terrassen
Terrasoverkappingen
Bruggen
Accessoires
Overig
Beplanting
Sport- en speeltoestellen
Software
Tekenen 2D
Modelleren 3D / BIM
Visualisatie / rendering
Parametrisch ontwerpen
Bouwfysica
Draagconstructie
Overig
Virtual Reality
Cloudoplossingen
Om direct naar je favorieten te kunnen gaan is het nodig om eerst in te loggen.
Nieuw
Populair
Favorieten
Toon alles
Zomerwandelingen Nieuwe Stad op Zondag 2025
Amsterdam
Prefab beurs - 7 t/m 9 oktober 2025
Brabanthallen 's-Hertogenbosch
Boekpresentatie en panelgesprek met Floor Milikows
Prins Hendrikkade 600, 1011 VX Amsterdam
Architects Table ’25: Lunch & Inspiratie in HAUT Amsterdam
ATAG LIVE – HAUT gebouw, Spaklerweg 10F, 1096 BA Amsterdam (tegenover metrostation Spaklerweg)
Inspiratiedag @ Sempergreen – Gevelgroen
Defensieweg 1, 3984 LR Odijk
Architects Table ’25: Lunch & Inspiratie in HAUT Amsterdam
ATAG LIVE – HAUT gebouw, Spaklerweg 10F, 1096 BA Amsterdam (tegenover metrostation Spaklerweg)
Ontdek het seminarieprogramma van Architect@Work Amsterdam
De Kromhouthal, Gedempt Hamerkanaal 231, Amsterdam
LIAG over duurzaamheid centraal in project
Online
1.Lectures HouseEurope! Renovate, don’t speculate
Pakhuis de Zwijger
Zomerwandelingen Nieuwe Stad op Zondag 2025
Amsterdam
Om direct naar je favorieten te kunnen gaan is het nodig om eerst in te loggen.
Nieuw
Toon alles
Design
Duurzaamheid
Gevel
Infrastructuur
Interieur
Kantoren
Leisure
Openbare ruimte
Publieke gebouwen
Scholen
Transformatie en Renovatie
Woningbouw
Zorg
Om direct naar je favorieten te kunnen gaan is het nodig om eerst in te loggen.
Nieuw
Populair
Toon alles
Junior Architect (NL/EN)
De Academie van Bouwkunst Amsterdam zoekt twee onderzoekers voor lectoraat
Site Practice zoekt medior architect met 3-6 jaar ervaring (Amsterdam)
DAT zoekt een BIM Modelleur (Revit)
stagiair bouwkunde Heerenveen
Meewerkend Voorman
Architect
Junior Architect gezocht!
Junior Ontwerper
Studio Nauta zoekt projectleider
wUrck zoekt junior Architect
Project Architect
Om direct naar je favorieten te kunnen gaan is het nodig om eerst in te loggen.
Copyright: Petra Appelhof
Copyright: Petra Appelhof
Copyright: Petra Appelhof
Copyright: Petra Appelhof
Copyright: Petra Appelhof
Copyright: Petra Appelhof
Copyright: Petra Appelhof
Copyright: Petra Appelhof
Copyright: Petra Appelhof
Copyright: Petra Appelhof
Copyright: Petra Appelhof
Copyright: Ibelings van Tilburg architecten
Copyright: Ibelings van Tilburg architecten
De Bariton in Hellevoetsluis is een gevarieerd woonblok van Ibelings van Tilburg architecten
2 oktober 2024, 12:05
In het centrum van de gemeente maakt Hellevoetsluis met een gebiedstransformatie ruimte voor woningbouw. Hier is recent het woningblok De Bariton, ontworpen door
Ibelings van Tilburg architecten
, opgeleverd. Het gevarieerde woningblok bestaat uit meerdere delen met elk een eigen identiteit, die gezamenlijk zestig woningen bevatten.
Door de bestaande bedrijfsmatige bebouwing terug te dringen schept de gemeente Hellevoetsluis in het gebied rond de Sportlaan plaats voor nieuwe ontwikkelingen. Zo is ruimte gecreëerd voor een recreatief zwembad, een sportcomplex, een Integraal Kindcentrum (IKC) en woningbouw, in combinatie met groen en water.
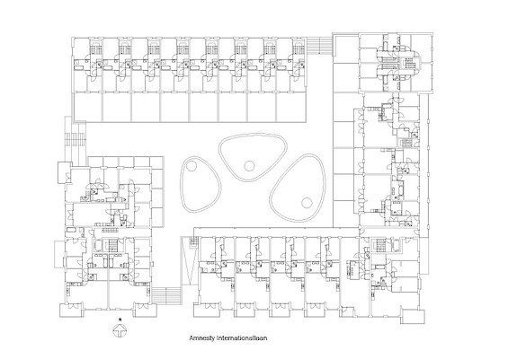
Direct naast het nieuwe sportcomplex en het IKC is de eerste fase van het woningbouwproject Acapella Wonen, met in totaal negentig woningen, gerealiseerd. Hiervan zijn zestig woningen ingevuld door Ibelings van Tilburg architecten met het woningblok De Bariton. Dit bestaat uit een mix van kleinere en grotere appartementen, penthouses en herenhuizen. In de plint aan de Amnesty Internationallaan zijn commerciële ruimten voorzien. Het gebouw is ontworpen in opdracht van Nederland Ontwikkelt uit Rotterdam.
Woningblok met geïntegreerde ruimte voor groen
Alle woningen beschikken over een riant dakterras of balkon op het zuiden en/of westen, vertellen de architecten. De balustraden van balkons, dakterrassen en galerijen zijn voorzien van geïntegreerde bloembakken. In het semi-publieke binnenhof liggen drie groenelementen met enkele bomen en zitmogelijkheden. Ze completeren het op een ‘buitengevoel’ gerichte ontwerp.
Woongebouw De Bariton bestaat uit vijf delen met in totaal 48 appartementen, acht herenhuizen en vier maisonnettes. De verschillende woningtypen, de afwisselende hoogtes en de toonvariaties in het metselwerk verlenen elk gebouwdeel een eigen identiteit.
Tegelijkertijd presenteert het complex zich door de aaneengesloten bebouwing met krachtige lijnen ook als een architectonische eenheid, legt Ibelings van Tilburg architecten uit. De semi-openbare binnenhof, als vanzelfsprekende ontmoetingsplaats voor de bewoners, benadrukt deze eenheid. Dit komt mede doordat alle woningen (en commerciële ruimten) het binnenhof delen, via de ingang of een achterdeur, of via balkon of terrastuin.
Vijf gebouwdelen met eigen karakter
Het blok Opera ligt op de noordoosthoek en bestaat uit vijf woningen, waarvan twee vierkamer-maisonnettes met een splitlevel-indeling. Deze twee woningen hebben een terrastuin op het westen, aan de binnenhof.
Het blok Opus omvat twaalf woningen, met de woonkamer en het balkon gericht op het westen en aan de binnenhof. Bijzonder in dit blok zijn de topmaisonnette en de appartementen met ‘in elkaar hakende’ plattegronden, vertellen de architecten. De galerijen zijn onttrokken aan het oog van de voorbijganger doordat ze zich bevinden achter een gemetselde gevel en balustrades met geïntegreerde bloembakken.
De entree naar de wijk wordt gevormd door het blok Octaaf, met zeven bouwlagen het hoogste gebouwdeel van De Bariton. De 25 in grootte variërende appartementen hebben opvallende gemetselde balkons met vaste plantenbakken. De trapsgewijze bouw biedt plek aan grote dakterrassen met veel privacy.
Blok Prelude bevat tien zeer ruime appartementen, waarvan de meeste een balkon op het zuiden hebben. Het blok omvat verder een maisonnette met vijf kamers; de woning is ook direct bereikbaar via een eigen opgang vanuit de parkeerkelder. Het topappartement heeft een ochtend- en een avondterras.
Aan de noordzijde liggen acht herenhuizen met vier etages: het blok Allegro. Op de begane grond ligt de woonkamer direct aan de terrastuin op het zuiden, met ruim zicht over de binnenhof. Naast de voordeur is in de gevel een nis met een zitbank opgenomen, vanwaar je uitzicht hebt op de singel en makkelijk een praatje kan maken met de buren, aldus de architecten.
Half verdiepte garage
Onder nagenoeg het gehele gebouw en de binnenhof strekt zich de half verdiept aangelegde parkeergarage. Die biedt plek aan 72 auto’s van de bewoners, alsook aan de bergingen. Bezoekers parkeren op straat. Fietsers hebben een eigen, van de auto’s gescheiden toegang.
De parkeerkelder is kleiner dan het bouwblok, zodat aan de randen ruimte is voor de entrees naar de woningen, trappartijen naar de binnenhof en commerciële voorzieningen. Dit zorgt er tevens voor dat de garage niet vanaf het openbaar gebied zichtbaar is, behalve bij de entrees.
Milieuvriendelijk comfort
De woningen zijn voorzien van warmtepompen die zijn aangesloten op een gesloten lussensysteem in de bodem. Dit systeem zorgt, door warmte te onttrekken dan wel af te geven aan de bodem, voor verwarming van de huizen in de winter en koeling in de zomer. Doordat het systeem bovendien wordt gebruikt voor het leveren van warm tapwater was een gasaansluiting onnodig.
Verder draagt een gebalanceerd mechanisch ventilatiesysteem met warmteterugwinning op energiezuinige wijze bij aan een gezond en aangenaam binnenklimaat, vertelt Ibelings van Tilburg architecten. Een geluidsluwe gevel aan de zijde van de Amnesty Internationallaan beperkt de geluidshinder. In samenwerking met adviseurs van Peutz zijn hiervoor geluidsreducerende kozijnen ontworpen met het uiterlijk van een bloemkozijn.
Op een aantal plekken zijn zwaluw- en vleermuiskastjes in de gevels opgenomen.
Trefwoorden
peutz
woongebouw
hellevoetsluis
woningbouw
woonblok
ibelings van tilburg architecten
gebiedsontwikkeling
Locatie
Best gelezen
1
Rapport: rijke Amsterdammers leven steeds vaker apart van rest
dinsdag, 30 september
2
Rijk schrijft aanbesteding uit voor nieuwe marinierskazerne
woensdag, 1 oktober
3
Kabinet wil wijken erbij op 127 plekken in Nederland
maandag, 29 september
4
Architectenweb symposium: klein maar fijn wonen?
donderdag, 2 oktober
5
Leiden wil verhoogd busstation naast treinperrons centraal station
dinsdag, 30 september
Gerelateerde nieuwsberichten
Kindcentrum in Hellevoetsluis met open vloeren en veel onderwijsruimte
17 januari 2022
Koetshuis en hooiberg op historisch landgoed getransformeerd naar woon-zorgstudio's
12 september 2024
Acht lessen rond de renovatie van sociale woningbouw
12 april 2024
Een kleinschalig appartementengebouw met krachtige aanblik
28 januari
Gentiaanbuurt technisch up-to-date en in oude allure hersteld
4 maart 2024
Ibelings van Tilburg maakt opvallende villa energieneutraal
1 maart 2024
Renovatie 94 woningen Van der Pekbuurt Amsterdam afgerond
3 april 2023
Twee woonblokken in karakteristieke Gentiaanbuurt Amsterdam ingrijpend gerenoveerd
23 maart 2022
Vernieuwde publiekhal van gemeentehuis Moerdijk is groen en gastvrij
23 november 2020
Royale dakrand en etalage met auto's voor flagshipstore Mercedes
19 juli 2019
Voormalig kantoortorentje is het hart van een nieuwe wijk
14 september 2017
Gestroomlijnd bedrijfsgebouw weerspiegelt gebruiker
3 maart 2016
Breeam-NL Very Good voor Capgemini
25 juli 2013
Ketelhuis Ceres BNA Gebouw van het Jaar 2013
17 mei 2013
Verbouwing en uitbreiding Ter Meulen-pand klaar
16 november 2012
Nieuwbouw voor ROC Mondriaan Leidschenveen
14 november 2012
Kindcentrum in Hellevoetsluis met open vloeren en veel onderwijsruimte
17 januari 2022
Koetshuis en hooiberg op historisch landgoed getransformeerd naar woon-zorgstudio's
12 september 2024
Acht lessen rond de renovatie van sociale woningbouw
12 april 2024
Een kleinschalig appartementengebouw met krachtige aanblik
28 januari
Gentiaanbuurt technisch up-to-date en in oude allure hersteld
4 maart 2024
Ibelings van Tilburg maakt opvallende villa energieneutraal
1 maart 2024
Renovatie 94 woningen Van der Pekbuurt Amsterdam afgerond
3 april 2023
Twee woonblokken in karakteristieke Gentiaanbuurt Amsterdam ingrijpend gerenoveerd
23 maart 2022
Vernieuwde publiekhal van gemeentehuis Moerdijk is groen en gastvrij
23 november 2020
Royale dakrand en etalage met auto's voor flagshipstore Mercedes
19 juli 2019
Voormalig kantoortorentje is het hart van een nieuwe wijk
14 september 2017
Gestroomlijnd bedrijfsgebouw weerspiegelt gebruiker
3 maart 2016
Breeam-NL Very Good voor Capgemini
25 juli 2013
Ketelhuis Ceres BNA Gebouw van het Jaar 2013
17 mei 2013
Verbouwing en uitbreiding Ter Meulen-pand klaar
16 november 2012
Nieuwbouw voor ROC Mondriaan Leidschenveen
14 november 2012
Toon alles
Andere nieuwsberichten
‘NDSM-werf en Buiksloterham zijn júíst inspirerende voorbeelden voor de stad van morgen’
1 uur geleden
Architect Alexander Straub reageert op de column van Alexander Pols, waarin de vraag centraal stond of we bij de bouw van nieuwe wijken als Buiksloterham en de NDSM-werf in Amsterdam kunnen leren van de traditionele Europese stad.
Zes nominaties voor Haagse architectuurprijs Berlagevlag 2025
2 uur geleden
De nominaties voor de Haagse architectuurprijs, de Berlagevlag, zijn bekend. Uit 31 inzendingen koos de vakjury zes projecten.
Apeldoornse raad bespreekt zes toekomstscenario's voor gebouw Centraal Beheer
Vandaag, 11:14
Het college van Apeldoorn wil het liefst een ‘belevingsmuseum’ voor de politie huisvesten in het gebouw. Er liggen ook opties op tafel om alsnog woningen in het gebouw te realiseren, of om het pand zijn oorspronkelijke kantoorfunctie terug te geven.
Studio Entr ontwerpt interieur van villa in Oss
Vandaag, 09:00
Het bureau uit Oss ontwierp het interieur van een villa in Oss
Hoogste punt van woontoren Blaak 333 bereikt
1 uur geleden
De door Kraaijvanger Architects ontworpen woontoren in het centrum van Rotterdam verrijst op de plek waar voorheen een kantoortoren van de Rabobank stond.
Kamer wil dat Keijzer afziet van versoepelingen huurwet
4 uur geleden
Sinds de huurwet - tegen de zin van Keijzer - van kracht werd, waarschuwen verhuurders dat daardoor het aanbod aan betaalbare huurwoningen afneemt.
Steden vrezen voor woningbouw door nieuwe regels netcongestie
Gisteren, 16:25
Amsterdam, Den Haag, Rotterdam en Utrecht vrezen dat de bouw van nieuwe woningen stil komt te liggen door netcongestie.
Dienst Toeslagen: plan voor wonen op vakantieparken onuitvoerbaar
Gisteren, 13:06
Het kabinetsplan om permanent wonen in vakantiehuisjes mogelijk te maken, is volgens de Dienst Toeslagen onuitvoerbaar.
Zuid-Holland wil in ‘oogstjaar’ 2026 plannen uitvoeren
1 oktober, 3:16
De provincie investeert onder meer in infrastructuur, woningbouw, natuur en versterking van kleine kernen.
Rijk schrijft aanbesteding uit voor nieuwe marinierskazerne
1 oktober, 2:27
Eind 2031 wil het Korps Mariniers vanuit zijn huidige kazerne in Doorn verhuizen naar een nieuw onderkomen op de bestaande Defensielocatie Kamp Nieuw-Milligen vlakbij Apeldoorn.
Ga naar het nieuws-archief
Robert Muis
Redacteur
2
0
0
0
Voor een optimale gebruikservaring plaatst Architectenweb functionele cookies. Wat de verschillende cookies precies doen leggen we uit in een
overzicht
. Cookies van social media kun je optioneel
aanzetten
.
Akkoord
Instellingen
Annuleren
OK
Sluiten
Doorgaan
Inloggen
Maak een gratis persoonlijk account aan
Feedback
Feedback
Wij horen graag jouw feedback. Laat je reactie achter en eventueel jouw e-mail adres.
Reactie
Verstuur