Projecten
Producten
Bedrijven
Vacatures
Agenda
Awards
Podcasts
more_horiz
Videos
Magazine
Thema's
Favorieten
Profiel
Uitloggen
Abonneer je nu op onze nieuwsbrieven!
Abonneren
Nee, bedankt
Ja, denk met me mee rond de
materialisering van mijn project
Copyright: Fabrice Fouillet
Copyright: Fabrice Fouillet
Copyright: Fabrice Fouillet
Copyright: Fabrice Fouillet
Copyright: Fabrice Fouillet
Copyright: Fabrice Fouillet
Copyright: Fabrice Fouillet
Copyright: Fabrice Fouillet
Copyright: Fabrice Fouillet
Copyright: Fabrice Fouillet
Copyright: Fabrice Fouillet
Copyright: Fabrice Fouillet
Copyright: Fabrice Fouillet
Copyright: Studioninedots
Copyright: Fabrice Fouillet
Situatie
Copyright: Studioninedots
Iso
Copyright: Studioninedots
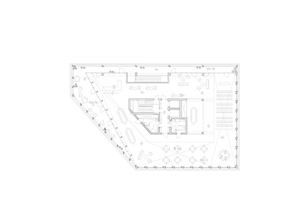
Maaiveld en begane grond
Copyright: Studioninedots
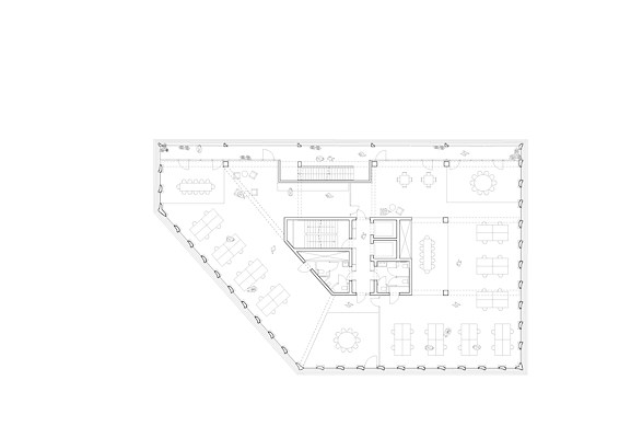
Eerste verdieping
Copyright: Studioninedots
Zevende verdieping
Copyright: Studioninedots
Gevels
Copyright: Studioninedots
Copyright: Studioninedots
Copyright: Studioninedots
Copyright: Studioninedots
Copyright: Studioninedots
Collectieve ruimtes spelen belangrijke rol in kantoorgebouw Facette door Studioninedots
10 september 2024, 14:37
In de nieuwe wijk Belvédère in Bordeaux is een door
Studioninedots
ontworpen kantoorgebouw opgeleverd. Een belangrijk uitgangspunt voor het ontwerp was het creëren van een serie aantrekkelijke collectieve ruimtes die de gebruikers van de begane grond langs de gevel naar het dakterras leiden. Deze ruimtes vormen volgens het bureau ‘de motor van de sociale gemeenschap in het gebouw’.
Het gebouw Facette staat op een prominente hoeklocatie aan de Boulevard Joliot-Curie, die een centrale as in de wijk vormt. Om die reden is ervoor gekozen om de begane grond transparant uit te voeren, zodat er een sterke visuele relatie tussen buiten en binnen ontstaat. Op de begane grond is een open omgeving met zowel werkplekken als publieke ruimte gecreëerd. De ruimte is geaccentueerd door en het oog springende betonnen bogen.
Via uitgestrekte glazen wanden loopt de begane grond over in het aanliggende ‘pocketpark’, dat is bedoeld als een rustige plek waar de gebruikers van Facette en die van het naastgelegen gebouw ARK elkaar kunnen ontmoeten. Via plantenbakken in de buitenruimtes van de gevel wordt het groen ‘naar boven getrokken’. Ook het dak is groen en het zorgt er onder meer voor dat regenwater wordt opgevangen en vertraagd afgevoerd naar het pocketpark.
Het gebouw heeft een dragende geprefabriceerde gevel. De gevels zijn ontworpen met een gritstructuur, die voor visuele samenhang zorgt. De ramen worden geleidelijk groter naarmate ze hoger geplaatst zijn, zodat er bovenin ruim uitzicht op de omgeving wordt geboden. De gevels zijn gemaakt met zandkleurig gepigmenteerd beton, dat volgens Studioninedots de geest van de historische stenen architectuur van Bordeaux weerspiegelt.
Een van de twee vereiste trappen is aan de buitenkant geplaatst, zodat de kern van het gebouw zo klein mogelijk kon blijven. Door deze aanpak konden open plattegronden worden gerealiseerd, die in de toekomst eenvoudig kunnen worden aangepast aan eventuele veranderingen.
Trefwoorden
kantoren
kantoorgebouw
bordeaux
studioninedots
Best gelezen
1
PSV presenteert plannen voor uitbreiding Philips Stadion
vrijdag, 20 maart
2
Luxe appartementengebouw naast klooster Etten-Leur door Studio AAAN klaar
donderdag, 19 maart
3
Houten Stelthuis van Woonpioniers is aardbevings- en klimaatbestendig
woensdag, 18 maart
4
BureauVanEig verbetert uitstraling Haagse rijtjeswoningen bij verduurzaming
dinsdag, 17 maart
5
KAAN Architecten en De Zwarte Hond winnen tender voor Area 19 TU Eindhoven
vrijdag, 20 maart
Gerelateerde nieuwsberichten
Studioninedots wint in Bordeaux met Facette
31 oktober 2017
Door OMA ontworpen Simone Veil-brug in Bordeaux geopend
16 juli 2024
Woningbouwcomplex Ilot Queyries van MVRDV in Bordeaux klaar
17 september 2021
Buiksloterham – stedenbouw volgens Cityplot concept krijgt vorm
26 maart 2025
MÉCA: drie culturele instellingen in een 'lus'
8 juli 2019
Niemeyer-fabriek Groningen wordt broedplaats voor bedrijven en kennisinstellingen
19 juli 2024
Voormalige telefooncentrale in centrum Den Bosch getransformeerd door Voss Architecture
21 oktober 2024
Studioninedots presenteert InterSphere: manifest voor de ongeprogrammeerde stad
18 juli 2024
Winnaars Architectuurprijs Almere 2024 bekend
19 juni 2024
Nieuwbouw en thuiswerken trekken Noord-Hollandse kantoren leeg
28 januari 2025
Octavia Hill biedt 124 sociale huurwoningen in het hart van Hyde Park Hoofddorp
22 april 2024
Team Provast wint tender Amsterdam Muyskenkwartier met woonproject Hoeksteen
23 april 2025
Studioninedots presenteert definitief ontwerp At the Park in Rijswijk
19 maart 2024
Highnote is een zachtrode woontoren op een plint van stadskamers
24 januari 2024
Savills: ‘Herstel vastgoedmarkt ingezet, kantoren opvallende aanjager’
19 februari 2025
Woongebouw langs Tolhuiskanaal ontworpen als gekantelde loods
21 januari 2025
Studioninedots wint in Bordeaux met Facette
31 oktober 2017
Door OMA ontworpen Simone Veil-brug in Bordeaux geopend
16 juli 2024
Woningbouwcomplex Ilot Queyries van MVRDV in Bordeaux klaar
17 september 2021
Buiksloterham – stedenbouw volgens Cityplot concept krijgt vorm
26 maart 2025
MÉCA: drie culturele instellingen in een 'lus'
8 juli 2019
Niemeyer-fabriek Groningen wordt broedplaats voor bedrijven en kennisinstellingen
19 juli 2024
Voormalige telefooncentrale in centrum Den Bosch getransformeerd door Voss Architecture
21 oktober 2024
Studioninedots presenteert InterSphere: manifest voor de ongeprogrammeerde stad
18 juli 2024
Winnaars Architectuurprijs Almere 2024 bekend
19 juni 2024
Nieuwbouw en thuiswerken trekken Noord-Hollandse kantoren leeg
28 januari 2025
Octavia Hill biedt 124 sociale huurwoningen in het hart van Hyde Park Hoofddorp
22 april 2024
Team Provast wint tender Amsterdam Muyskenkwartier met woonproject Hoeksteen
23 april 2025
Studioninedots presenteert definitief ontwerp At the Park in Rijswijk
19 maart 2024
Highnote is een zachtrode woontoren op een plint van stadskamers
24 januari 2024
Savills: ‘Herstel vastgoedmarkt ingezet, kantoren opvallende aanjager’
19 februari 2025
Woongebouw langs Tolhuiskanaal ontworpen als gekantelde loods
21 januari 2025
Toon alles
Andere nieuwsberichten
Vernieuwde Welstandsnota Rotterdam staat in teken van Omgevingswet, duurzaamheid en gebruiksgemak
2 uur geleden
De Rotterdamse Welstandsnota uit 2012 is geactualiseerd. Daarbij waren nieuwe inzichten en regelgeving, alsmede het gebruiksgemak voor gemeente en aanvragers bepalend.
PSV presenteert plannen voor uitbreiding Philips Stadion
20 maart, 3:37
De Eindhovense club wil de capaciteit van zijn onderkomen opschroeven met maximaal 25.000 bezoekers. Om dit te bewerkstelligen, komt er een nieuwe schil rond het stadion waarin een derde ring is opgenomen.
Rijkswaterstaat staakt renovatie markante houten Krùsrak-brug in Sneek
20 maart, 11:32
Tijdens de renovatie werd duidelijk dat de constructieve veiligheid van de brug niet langer kan worden verzekerd, laat RWS weten. De uit 2008 stammende Krúsrak-brug over de rijksweg 7 is ontworpen door Onix en Archterbosch Architecten.
KAAN Architecten en De Zwarte Hond winnen tender voor Area 19 TU Eindhoven
20 maart, 10:35
De opdracht omvat het ontwerp van een nieuw onderzoeks- en onderwijsgebouw en de stedenbouwkundige ontwikkeling van een nieuw campusgebied.
Boekholt schrapt wet die voorrang statushouders stopt
1 uur geleden
De minister werkt aan een alternatieve wet, die pas in werking treedt als er genoeg mogelijkheden zijn om statushouders aan een huis te helpen.
Friesland brengt duizenden karakteristieke boerderijen in kaart
20 maart, 2:16
Door alle informatie over de voor het landschap kenmerkende gebouwen op één plek te brengen, moet het makkelijker worden om ze te behouden.
ING: bijna de helft van de huiseigenaren stelt verduurzaming uit
20 maart, 12:18
De meeste mensen vinden dat de overheid te weinig doet om dit te stimuleren.
Rekenkamer kraakt resultaten EU-innovatiefonds voor verduurzaming
20 maart, 9:25
Het Innovatiefonds van de Europese Unie levert veel minder resultaat op dan verwacht op het gebied van verduurzaming en innovatie.
Provincie schrapt beoogde locaties windturbines in Groene Hart
19 maart, 1:35
De provincie had twaalf plekken op het oog, maar dat leidde tot maatschappelijk en politiek verzet.
Staten Utrecht willen netcongestie versneld aanpakken
19 maart, 9:44
De fracties wezen op de noodzaak van het zo snel mogelijk realiseren van een hoogspanningsstation dat essentieel is voor het opsplitsen van het elektriciteitsnetwerk tussen de Flevopolder, Gelderland en Utrecht.
Ga naar het nieuws-archief
Ronnie Weessies
Redacteur
0
0
0
0
Voor een optimale gebruikservaring plaatst Architectenweb functionele cookies. Wat de verschillende cookies precies doen leggen we uit in een
overzicht
. Cookies van social media kun je optioneel
aanzetten
.
Akkoord
Instellingen
Annuleren
OK
Sluiten
Doorgaan
Inloggen
Maak een gratis persoonlijk account aan
Feedback
Feedback
Wij horen graag jouw feedback. Laat je reactie achter en eventueel jouw e-mail adres.
Reactie
Verstuur