Abonneer je nu op onze nieuwsbrieven!
Abonneren
Nee, bedankt
Ja, denk met me mee rond de
materialisering van mijn project
Copyright: Karin Borghouts
Copyright: Karin Borghouts
Copyright: Karin Borghouts
Copyright: Karin Borghouts
Copyright: Karin Borghouts
Copyright: Karin Borghouts
Copyright: Karin Borghouts
Copyright: Karin Borghouts
Isometrie met concept voor architraaf, plint en vloer
Copyright: Bedaux de Brouwer Architecten
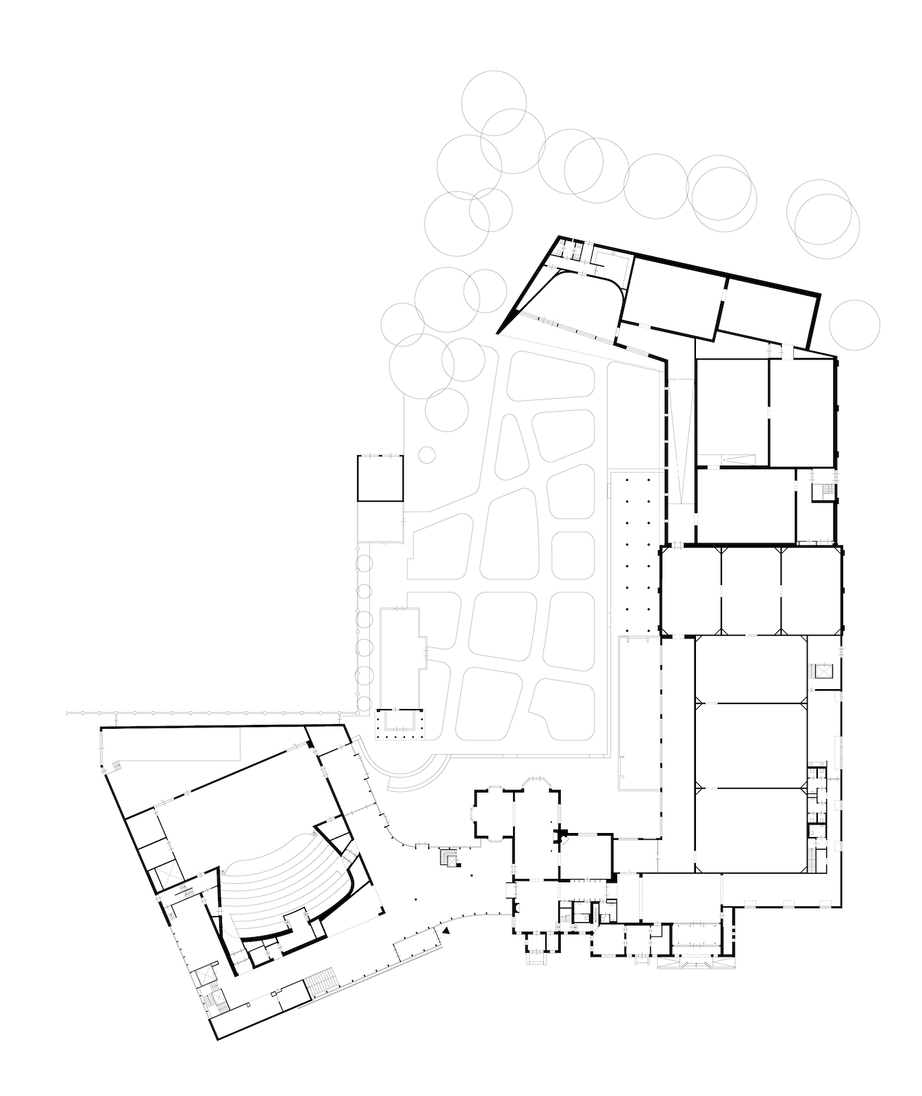
Plattegrond nieuwe situatie
Copyright: Bedaux de Brouwer Architecten
Plattegrond oude situatie
Copyright: Bedaux de Brouwer Architecten
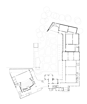
Situatie
Copyright: Bedaux de Brouwer Architecten
Tuinkamer
Copyright: Bedaux de Brouwer Architecten
Vernieuwd Singer Laren biedt heldere en samenhangende museumervaring
Door renovatie van de bestaande museumzalen en uitbreiding met een aantal nieuwe zalen heeft Singer Laren nu de gewenste ruimte voor het tonen van wisselende exposities én de vaste collectie. Het ontwerp van Bedaux de Brouwer Architecten sluit naadloos aan op het bestaande ‘villamuseum’ en brengt eenheid in de museumervaring. Het vernieuwde Singer Laren opende op 8 maart de deuren voor het publiek.
De plannen voor uitbreiding van Singer Laren nemen concrete vorm aan in 2017, als de schenking van de zogenoemde Collectie Nardinc door Els Blokker-Verwer in beeld komt. Deze omvangrijke kunstcollectie heeft zij samen met haar overleden man Jaap Blokker, vroegere topman van het Blokker-concern, verzameld. Niet alleen schenkt mevrouw Blokker-Verwer de kunstcollectie (vernoemd naar hun oude woonhuis Nardinclant), ook draagt ze – naast een aantal andere begunstigers – bij aan de realisatie van nieuwe zalen om de collectie te kunnen tonen.

Na een besloten competitie kiest het museum overtuigd voor het plan van Bedaux de Brouwer Architecten, vertelt algemeen directeur Evert van Os. “Het architectenbureau had zich goed verdiept in de geschiedenis van de villa en het museum. Bij de oude zalen waren wij heel content met het licht en het ritme; ook dat begreep het bureau heel goed.”

Bedaux de Brouwer heeft willen voortbouwen op de bestaande kwaliteiten van het museum om zo de verschillende onderdelen tot een eenheid te smeden. Terwijl museumopdrachten nogal eens leiden tot de neiging om flink uit te pakken, kenmerkt het ontwerp van Bedaux de Brouwer zich door ingetogenheid en een welhaast dienende opstelling, overigens zonder zichzelf te ontkennen. De architectuur is zeker in zijn bescheidenheid.
Voortbouwen zonder historiseren
Hoe bouw je voort op bestaande kwaliteiten en hoe bepaal je wat die kwaliteiten zijn? Om het ensemble anno 2018, als Bedaux de Brouwer met het ontwerp start, te begrijpen heeft het architectenbureau onder andere de bouwhistorie onderzocht. Onder meer concludeerde het bureau daaruit dat de oorspronkelijke villa en de eerste museumzalen een nauwe samenhang vertonen en dat latere toevoegingen daar een onwelkome breuk mee vormen.

De oorsprong van Singer Laren ligt in de Villa de Wilde Zwanen, die in 1911 werd gebouwd voor het echtpaar William en Anna Singer. Na Williams overlijden laat Anna in 1956 aan weerszijden van de villa respectievelijk een concertzaal en een museum voor hun kunstcollectie bouwen. Sindsdien hebben in bijna elk decennium kleine uitbreidingen en verbouwingen plaatsgevonden, met in 1993 een rigoureuze verbouwing door Hubert Jan Henket. In 2005 is een orangerie toegevoegd.

“We zagen dat de Larense landhuisarchitect Wouter Hamdorff in 1956 bij zijn ontwerp al sterk voortbouwde op de architectuur van de villa, om het museumdeel goed in de Larense context in te passen”, vertelt architect Joyce Verstijnen. “De villa en het museum waren daardoor als bouwdelen sterk met elkaar verweven. Bij de latere uitbreidingen is de samenhang met de oorspronkelijke architectuur, ook in het interieur, uit het zicht geraakt.
Wij wilden weer eenheid, die je ook wenst voor museumbezoek, creëren. We hebben ons daarvoor gebaseerd op het eerste museumdeel en de villa, zonder te willen historiseren.”
Spiegeling
Het museumdeel zoals door Hamdorff ontworpen bestond uit een galerij tussen de tuin en drie museumzalen en op de kop van het bouwdeel nog eens drie zalen. Over de as van de drie ‘kopse zalen’ heeft Bedaux de Brouwer de plattegrond min of meer gespiegeld en een eigen invulling gegeven.

De bestaande Van den Brinkgalerij heeft een pendant gekregen met de Nardincgalerij, waaraan drie vernieuwde zalen en twee nieuwe zalen liggen. De zalen zijn in opzet hetzelfde als de oudste, nu gerenoveerde zalen. Als sluitstuk is er de nieuwe tuinkamer, waarmee de museumvleugel nu ook een omarmende beweging rond de binnentuin van Piet Oudolf maakt. De tuinkamer sluit in sfeer aan op de villa, wat bijdraagt aan de ‘spiegeling’.

De Nardincgalerij is echter ook een inversie van de bestaande galerij. Terwijl de Van den Brinkgalerij zich kenmerkt door grote glasvlakken tussen smalle gemetselde penanten, is het nieuwe deel overwegend gesloten met smalle gevelopeningen. Dit maakt het voor Singer Laren mogelijk de Nardincgalerij ook in te zetten als expositieruimte, terwijl de smalle ramen bijdragen aan de oriëntatie van de bezoeker.
Vorm en materiaal
De architectuur kenmerkt zich door een grote aandacht voor materiaal en detail; Bedaux de Brouwer heeft de aanwezige vormentaal en materialisering als uitgangspunt genomen. Het eikenhout in het interieur van de villa is op eigentijdse wijze voortgezet in de museumzalen en de tuinkamer. Ambachtelijk metselwerk en rode leipannen aan de zijde van de villa keren terug bij het nieuwe museumgedeelte, dat daardoor een villakarakter heeft.

Het dak loopt richting de tuinkamer overigens vlakker af om goed aan te sluiten op de tuin en de beleving daarvan; de tuin voelt daardoor omsloten maar niet benauwd. Het ontwerp van Piet Oudolf voor de tuin is overigens nu ook voltooid. Een schoorsteen markeert de tuinkamer en verwijst eveneens terug naar de villa; in het interieur blijkt het element echter een lichthapper met een venster op de boomtoppen.
"We hebben elementen toegevoegd waar dat nodig was voor de museumbeleving, niet om een stempel met onze architectuur te drukken"
Museumbeleving
“Uiteindelijk is alles gericht op de museumbezoeker”, zegt Verstijnen. “We hebben elementen toegevoegd waar dat nodig was voor de museumbeleving, niet om een stempel met onze architectuur te drukken.” Het gaat erom hoe de bezoeker zich door de ruimten beweegt, legt ze uit; het bureau heeft een samenhangende beleving willen bewerkstelligen, waarin de architectuur niet afleidt van de aandacht voor de kunst.

Om de historie van de villa voelbaar te maken én door te zetten in de zalen waar die afwezig was, heeft Bedaux de Brouwer een architraaf, plint en parketvloer als Leitmotiv ingezet. “De villa heeft rijk gedetailleerde architraven en lambrisering”, vertelt Verstijnen. “In de museumzalen zijn we terughoudender met alleen een lage plint een sobere architraaf als accentuering van de doorgangen.”

De eikenhouten architraaf benadrukt ook de coulissewerking
van de opeenvolgende
doorgangen en creëert op een aantal plekken een extra ‘lijst’ voor de kunst. In de tuinkamer is de plint als het ware opgetrokken over de hele hoogte van de ruimte, maar de detaillering is strakker dan die van de klassiekere lambrisering van de villa. Beide galerijen zijn voorzien van een natuurstenen vloer en plinten.

Zo heeft het architectenbureau een vanzelfsprekende routing gecreëerd vanuit de villa via de museumzalen naar de tuinkamer, die tegelijkertijd als rust- en omkeerpunt fungeert. Hier kan de bezoeker, achter de volglazen gevel, wachten op een ander of iets drinken met zicht op de tuin en de villa, om vervolgens via de galerijen de weg terug naar de villa, museumwinkel en foyer te nemen. Om de bezoekersbeleving te optimaliseren zijn er geen deuren, afgezien van een sluis tussen de museumwinkel en de eerste galerij. Die is daarmee ook geklimatiseerd en geschikt voor exposities.
Integraal
Door zijn integrale benadering van de aanvankelijke opgave – ontwerp twee nieuwe museumzalen – waarbij ook de samenhang met de bestaande zalen en de voormalige orangerie werd bekeken en tot op detailniveau uitgedacht, breidde de opdracht aan Bedaux de Brouwer zich uit. “Uiteindelijk hebben we zelfs de lampen, sokkels en museumbanken ontworpen”, vertelt Verstijnen.

De nieuwe Nardinczalen beslaan 400 m2, waarvan de helft nieuwbouw betreft. Naast de vijf nieuwe, dan wel vernieuwde tentoonstellingszalen, de Nardincgalerij en de tuinkamer is ook een kleine filmzaal toegevoegd. De museumwinkel is uitgebreid. Daarbij is het gebouw sterk verduurzaamd en is klimaattechniek zo veel mogelijk uit het zicht gehouden. Omdat van meet af aan – al in de VO-fase – besprekingen met het gehele bouwteam zijn gehouden, is de verbouwing bovendien volgens planning en binnen budget gerealiseerd. “Het gebouwde resultaat ziet er precies uit als de impressies van het begin”, zegt Van Os. “Ook dat is veelzeggend.”

Gerelateerde nieuwsberichten

Gerelateerde video's

Andere nieuwsberichten

'Stuttende' en contrasterende installatie voor Besiendershuis Nijmegen

Gisteren, 15:52

Specht architectuur en stedenbouw toont met meergeneratiehofje alledaagse woongemeenschappelijkheid

Gisteren, 14:25

Mobiliteitshub van gerecycled tropisch hardhout voor Tholen

Gisteren, 11:41

Kleurrijke textielinstallatie van Simone Post voor entreegebied Centraal Museum

Gisteren, 09:05

Verzet natuurorganisaties tegen stroomkabel via Schiermonnikoog

Gisteren, 16:39

ING: huizenprijzen stijgen dit jaar niet verder door hoger aanbod

Gisteren, 13:03

TenneT mag datacenteraansluiting uitstellen om vol stroomnet

Gisteren, 10:11

Brabant investeert 1,4 miljoen in waterfilter in Vlaanderen

30 april, 3:51

Rli: klimaat, vervuiling en groei bedreigen beschikbaarheid drinkwater

30 april, 12:20

ABN AMRO: huurwetaanpassingen stoppen uittocht beleggers niet

30 april, 9:04
Robert MuisRedacteur
KUBUS | Specialist in Archicad
SAPA
Reynaers Aluminium Nederland
Jansen
SAB-profiel bv
Aliplast Aluminium Systems
Kingspan Light & Air
ALUCOBOND®
Caparol
Tarkett BV
Kawneer
Grohe Nederland B.V.
Malaysian Timber Council
OCS | Office Cabling Systems
Swisspearl Nederland
Forster Nederland N.V.
VELUX Commercial Benelux B.V.
Sempergreen
Houthandel van Dam
Aluprof Nederland BV
QbiQ Wall Systems
Forbo Flooring
Schüco Nederland
Cedral
Sto Isoned bv
Triflex bv
Gorter Luiken BV
wienerberger
DUCO Ventilation & Sun Control
BEWI IsoBouw
ROCKWOOL B.V.
Mview+
Rockfon (ROCKWOOL B.V.)
Gira Nederland B.V.
Kingspan Geïsoleerde Panelen
GEZE Benelux  B.V.
Renson
Metaglas Groep
ABB | Busch-Jaeger
Jung | Hateha B.V.
Knauf B.V.
Saint-Gobain Glass Benelux
Faay Vianen B.V.
objectflor
Boon Edam Nederland B.V.
Hunter Douglas Architectural
VOLA Nederland BV
Forbo Eurocol Nederland B.V.
EQUITONE gevelpanelen
Holonite B.V.
Kronospan
Tata Steel Colorcoat®
Architectenweb
Over ons
Contact

© 2002 - 2026 Architectenweb BV / Voorwaarden / Privacy / Disclaimer / Sitemap
Annuleren
OK
Sluiten
Doorgaan
Inloggen
Maak een gratis persoonlijk account aan