Projecten
Producten
Bedrijven
Vacatures
Agenda
Awards
Podcasts
more_horiz
Videos
Magazine
Thema's
Favorieten
Profiel
Uitloggen
Abonneer je nu op onze nieuwsbrieven!
Abonneren
Nee, bedankt
Ja, denk met me mee rond de
materialisering van mijn project
Copyright: Architenko ā Urban Design and Architecture
Copyright: Architenko ā Urban Design and Architecture
Copyright: Architenko ā Urban Design and Architecture
Voorgevel
Copyright: Architenko ā Urban Design and Architecture
Achtergevel
Copyright: Architenko ā Urban Design and Architecture
Zijgevel rechts
Copyright: Architenko ā Urban Design and Architecture
Doorsnede
Copyright: Architenko ā Urban Design and Architecture
Doorsnede
Copyright: Architenko ā Urban Design and Architecture
Terreinprofiel
Copyright: Architenko ā Urban Design and Architecture
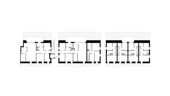
Begane grond
Copyright: Architenko ā Urban Design and Architecture
Eerste verdieping
Copyright: Architenko ā Urban Design and Architecture
Tweede verdieping
Copyright: Architenko ā Urban Design and Architecture
Parkeergarage en ondergrondse berging
Copyright: Architenko ā Urban Design and Architecture
Inplantingsplan
Copyright: Architenko ā Urban Design and Architecture
Diagram
Copyright: Architenko ā Urban Design and Architecture
Trojka is een ensemble van drie woongebouwen met collectieve tuin
6 april 2021, 15:11
In de Vlaams-Brabantse gemeente Scherpenheuvel-Zichem verrijst momenteel een woonproject met 18 appartementen, verdeeld over drie compacte bouwvolumes. Binnen het project Trojka, ontworpen door bureau
Architenko - Urban Design & Architecture
, staan naast een gevarieerde woonplek ook collectiviteit en groen centraal.
De opdracht voor het woonproject heeft Architenko ā Urban Design & Architecture verworven via de competitie āJonge Architecten aan Zet 2015-2016ā. Met de wedstrijd wilden de organisatoren ā de Orde van Architecten / Vlaamse raad, Netwerk Architecten Vlaanderen (NAV) en de VMSW ā samen met woningbouwvereniging Diest-Uitbreiding jonge architecten de kans te geven om een sociaal huisvestingsproject te realiseren.
Architenko heeft het project vormgegeven met drie bouwvolumes, van elk drie bouwlagen plus een ondergrondse laag. Een aanbod van verschillende wooneenheden ā met een, twee, drie en vier slaapkamers ā biedt ruimte aan verschillende gezinssamenstellingen.
Woningbouw met ruimte
Trojka is vormgegeven als een samenhangend complex. Een verzorgd ontworpen passarelle verbindt de volumes aan de voorzijde. Met zit- en uitkijkhoekjes biedt deze āverhoogde straat op een zachte manier gelegenheid tot ontmoeting en contact. Net zoals de privĆ©terrassen achteraan, fungeert de passerelle tevens als zonwering.
In schaal sluit het project aan op de directe omgeving, vertellen de architecten. Daarnaast spiegelt de begane grond de verspringende bouwdiepte aan de overzijde van de straat, waardoor er extra breedte ontstaat zonder dat daarvoor de aanleg van publieke ruimte nodig is.
Binnen het Trojka-project heeft Architenko langzaam verkeer en gemotoriseerd verkeer gescheiden, legt het bureau uit. āZo voorzien we een bovengrondse gemeenschappelijke fietsenstalling, terwijl het gemotoriseerd verkeer ondergronds wordt opgevangenā, aldus de architecten. Hiermee haalt Architenko ook geparkeerde autoās uit het straatbeeld.
Collectieve tuin
Elk appartement heeft in deze ondergrondse garage een eigen parkeerplaats, alsook eigen bergruimte. Verder krijgt elke woning een terras met uitzicht op de collectieve tuin. Bloemenheuvels creƫren privacy voor de appartementen en vormen een groendak op de parkeergarage.
Tussen de drie volumes leiden openingen naar dit achtergelegen groengebied. In de achtergevel hebben de schuine lijnen een tweeledige functie, leggen de architecten uit: ze vormen de scheiding tussen de terrassen en oriƫnteren de wooneenheden op de binnentuin.
Voor de bloemenheuvels de uitgegraven grond voor de parkeergarage gebruikt. Ook het tuinpaviljoen en de beperkte verharde oppervlakte moeten met hergebruikte materialen worden gerealiseerd. De beperkte verharding draagt samen met de waterbuffering bij aan een duurzaam hemelwaterbeheer.
Naast de bloemenheuvels biedt de gemeenschappelijke tuin verschillende andere groenvoorzieningen. Zo komt er een deel wilde tuin, een pluktuin en een plek voor kleine moestuinen. Daarmee wordt de tuin onderhoudsarm. Met de gemeenschappelijke plekken en het paviljoentje is de collectieve tuin gericht op bevordering van het sociaal contact.
Zink en hout
De drie bouwvolumes worden opgetrokken in beton, kalkzandsteen en half-geprefabriceerde breedvloerplaten. De gevels worden afgewerkt met zinken en houten bekleding. In totaal beslaat het perceel 1.795 m
2
.
Architenko heeft het ontwerp van zowel de gebouwen, het interieur als het landschap voor zijn rekening genomen. Oplevering van Trojka staat gepland voor dit jaar.
Trefwoorden
woningbouw
belgië
architenko
scherpenheuvel-zichem
architenko - urban design & architecture
collectieve tuin
appartementencomplex
Locatie
Best gelezen
1
Luxe appartementengebouw naast klooster Etten-Leur door Studio AAAN klaar
donderdag, 19 maart
2
PSV presenteert plannen voor uitbreiding Philips Stadion
vrijdag, 20 maart
3
Houten Stelthuis van Woonpioniers is aardbevings- en klimaatbestendig
woensdag, 18 maart
4
BureauVanEig verbetert uitstraling Haagse rijtjeswoningen bij verduurzaming
dinsdag, 17 maart
5
De nieuwe kleren van de keizer
dinsdag, 17 maart
Gerelateerde nieuwsberichten
Woonensemble in de vorm van een klavertjevier
18 april 2023
Appartementengebouw in hsb frist hart van Marollenwijk op
30 maart 2021
Nieuwe kas biedt onderdak aan educatief plattelandscentrum
1 april 2021
LMS Vermeersch maakt van herbestemd pakhuis een oriëntatiepunt
25 maart 2021
Robbrecht en Daem architecten ontwerpt ontvangstgebouw voor Rubenshuis
25 maart 2021
Compromisloze villa in glooiend landschap
11 maart 2021
Uitbreiding voor kunstencentrum in Mechelen door dmvA
8 maart 2021
Antwerpen akkoord met eerste ontwerp publieke ruimte Slachthuiswijk
18 februari 2021
Ranke woongebouwen als schepen aan de kade
10 februari 2021
Brugge krijgt tentoonstellingshal met transparantie en hoge zalen
28 januari 2021
Winnend ontwerp van Bogdan & Van Broeck en Shift voor Rozemaai in Antwerpen
21 december 2020
Ouderenwoningen in landelijke omgeving van Heist-op-den-Berg
3 december 2020
Ruimtelijk en representatief woongebouw door Atelier Kempe Thill
18 november 2020
Ruwbouw-is-afbouw voor opvallend appartementencomplex in Antwerpen
12 november 2020
Renovatie en uitbreiding van de Antwerpse Fierensblokken gestart
9 juni 2020
META realiseert afwisselend en coherent sociale woningbouwproject
22 april 2020
Woonensemble in de vorm van een klavertjevier
18 april 2023
Appartementengebouw in hsb frist hart van Marollenwijk op
30 maart 2021
Nieuwe kas biedt onderdak aan educatief plattelandscentrum
1 april 2021
LMS Vermeersch maakt van herbestemd pakhuis een oriëntatiepunt
25 maart 2021
Robbrecht en Daem architecten ontwerpt ontvangstgebouw voor Rubenshuis
25 maart 2021
Compromisloze villa in glooiend landschap
11 maart 2021
Uitbreiding voor kunstencentrum in Mechelen door dmvA
8 maart 2021
Antwerpen akkoord met eerste ontwerp publieke ruimte Slachthuiswijk
18 februari 2021
Ranke woongebouwen als schepen aan de kade
10 februari 2021
Brugge krijgt tentoonstellingshal met transparantie en hoge zalen
28 januari 2021
Winnend ontwerp van Bogdan & Van Broeck en Shift voor Rozemaai in Antwerpen
21 december 2020
Ouderenwoningen in landelijke omgeving van Heist-op-den-Berg
3 december 2020
Ruimtelijk en representatief woongebouw door Atelier Kempe Thill
18 november 2020
Ruwbouw-is-afbouw voor opvallend appartementencomplex in Antwerpen
12 november 2020
Renovatie en uitbreiding van de Antwerpse Fierensblokken gestart
9 juni 2020
META realiseert afwisselend en coherent sociale woningbouwproject
22 april 2020
Toon alles
Andere nieuwsberichten
PSV presenteert plannen voor uitbreiding Philips Stadion
20 maart, 3:37
De Eindhovense club wil de capaciteit van zijn onderkomen opschroeven met maximaal 25.000 bezoekers. Om dit te bewerkstelligen, komt er een nieuwe schil rond het stadion waarin een derde ring is opgenomen.
Rijkswaterstaat staakt renovatie markante houten Krùsrak-brug in Sneek
20 maart, 11:32
Tijdens de renovatie werd duidelijk dat de constructieve veiligheid van de brug niet langer kan worden verzekerd, laat RWS weten. De uit 2008 stammende Krúsrak-brug over de rijksweg 7 is ontworpen door Onix en Archterbosch Architecten.
KAAN Architecten en De Zwarte Hond winnen tender voor Area 19 TU Eindhoven
20 maart, 10:35
De opdracht omvat het ontwerp van een nieuw onderzoeks- en onderwijsgebouw en de stedenbouwkundige ontwikkeling van een nieuw campusgebied.
Projecten gezocht voor vijfde Adriaan Dessingprijs
19 maart, 2:42
De tweejaarlijkse architectuurprijs vestigt de aandacht op bijzondere, gerealiseerde plannen in de Zuid-Hollandse gemeenten Westland en Midden-Delfland. Het kan gaan om nieuwbouw, restauratie of landschappelijke projecten.
Friesland brengt duizenden karakteristieke boerderijen in kaart
20 maart, 2:16
Door alle informatie over de voor het landschap kenmerkende gebouwen op één plek te brengen, moet het makkelijker worden om ze te behouden.
ING: bijna de helft van de huiseigenaren stelt verduurzaming uit
20 maart, 12:18
De meeste mensen vinden dat de overheid te weinig doet om dit te stimuleren.
Rekenkamer kraakt resultaten EU-innovatiefonds voor verduurzaming
20 maart, 9:25
Het Innovatiefonds van de Europese Unie levert veel minder resultaat op dan verwacht op het gebied van verduurzaming en innovatie.
Provincie schrapt beoogde locaties windturbines in Groene Hart
19 maart, 1:35
De provincie had twaalf plekken op het oog, maar dat leidde tot maatschappelijk en politiek verzet.
Staten Utrecht willen netcongestie versneld aanpakken
19 maart, 9:44
De fracties wezen op de noodzaak van het zo snel mogelijk realiseren van een hoogspanningsstation dat essentieel is voor het opsplitsen van het elektriciteitsnetwerk tussen de Flevopolder, Gelderland en Utrecht.
Rotterdam wil woningbouw versnellen met pilot āOntwikkelaar aan Zetā
18 maart, 4:33
De gemeente Rotterdam start een pilot waarbij projectontwikkelaars een grotere rol krijgen bij de voorbereiding van woningbouwprojecten.
Ga naar het nieuws-archief
Robert Muis
Redacteur
0
0
0
0
Voor een optimale gebruikservaring plaatst Architectenweb functionele cookies. Wat de verschillende cookies precies doen leggen we uit in een
overzicht
. Cookies van social media kun je optioneel
aanzetten
.
Akkoord
Instellingen
Annuleren
OK
Sluiten
Doorgaan
Inloggen
Maak een gratis persoonlijk account aan
Feedback
Feedback
Wij horen graag jouw feedback. Laat je reactie achter en eventueel jouw e-mail adres.
Reactie
Verstuur