Projecten
Producten
Bedrijven
Vacatures
Agenda
Awards
Podcasts
more_horiz
Videos
Magazine
Thema's
Favorieten
Profiel
Uitloggen
Abonneer je nu op onze nieuwsbrieven!
Abonneren
Nee, bedankt
Ja, denk met me mee rond de
materialisering van mijn project
Copyright: MAD Architects
Copyright: MAD Architects
Copyright: MAD Architects
Copyright: MAD Architects
Copyright: MAD Architects
Copyright: MAD Architects
Copyright: MAD Architects
Copyright: MAD Architects
Begane grond
Copyright: MAD Architects
Tweede verdieping
Copyright: MAD Architects
Dak
Copyright: MAD Architects
Doorsnede
Copyright: MAD Architects
Doorsnede
Copyright: MAD Architects
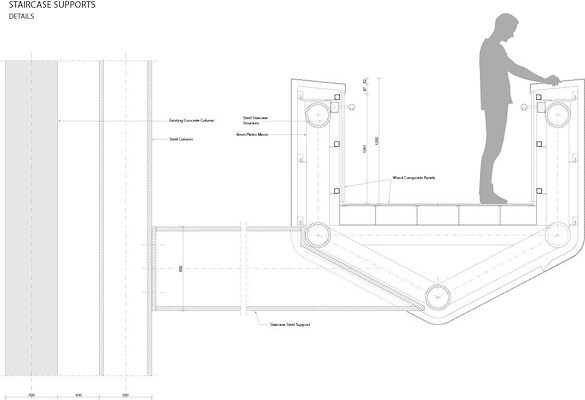
Detail dakovergang
Copyright: MAD Architects
Doorsnede detail
Copyright: MAD Architects
Doorsnede detail
Copyright: MAD Architects
Maquette
Copyright: Rubén Dario Kleimeer
MAD Architects toont nieuwe beelden Fenix II in Rotterdam
19 november 2020, 12:23
MAD Architects
heeft nieuwe beelden naar buiten gebracht van zijn bijdrage aan de transformatie van de Fenix II-loods in Rotterdam. “Het beklimmen van de trappen zal bij bezoekers de associatie oproepen met het aan boord gaan van een schip”, zegt Ma Yansong.
Eerder dit jaar is de restauratie en transformatie van de Fenix II-loods op het Rotterdamse schiereiland Katendrecht gestart. Op de eerste verdieping van de historische loods, oorspronkelijk gebouwd in 1922 voor de fors groeiende Holland Amerika Lijn, komt het Landverhuizersmuseum. De plint gaat ruimte bieden aan culturele, creatieve en culinaire ondernemingen.
In opdracht van Stichting Droom en Daad heeft MAD Architects het meest in het oog springende deel van het project ontworpen: een uitkijkplatform, dat voortkomt uit omhoog spiralende trappen. "Van een afstand ogen platform en trappen als één geheel”, legt Ma Yansong, oprichter van MAD, uit. “Als je er voor staat, is het een sculpturaal werk dat je uitnodigt om te verkennen.”
Menselijke schaal
De twee trappen beginnen op de begane grond en bewegen zich door de ruimte met verschillende ritmes. Ze breken enorme ruimte van de loods en zorgen voor een menselijke schaal en intiemere plekken, aldus de architect.
Het sculpturale werk wordt uitgevoerd in hout en roestvrijstaal, contrasterend met het originele beton en staal van de loods. Het beklimmen van de trappen zal bij bezoekers ook de associatie oproepen met het aan boord gaan van een schip, zegt Ma Yansong.
Toegankelijk
“Het verwijst zowel naar Fenix als getuige van Europa’s geschiedenis en de migratie van mensen vanuit de haven, als naar de toekomst van deze stad", aldus de architect. Het gebouw wordt stevig geïntegreerd in de omringende gemeenschap met een hoge mate van toegankelijkheid, zegt Ma Yansong, bijvoorbeeld door ingangen vanaf zowel de rivier als de stad.
In het midden van het gebouw vervangt het Chinese architectenbureau de gevel en het dak door glazen vliesgevels en plafonds. De uitgebreide beglazing zorgt voor een ononderbroken zicht op de opvallende centrale trapconstructie. Op de begane grond komt een lichte, publiek toegankelijke lobby.
Samenwerking
Bureau Polderman
verzorgt de restauratie van de Fenix II-loods als geheel.
EGM architecten
is als co-architect betrokken voor de bouwkundige uitwerking van het plan. Eerder al was EGM betrokken bij het bouwkundig vooronderzoek en uitwerking van de bestaande situatie in BIM. De werkzaamheden vinden plaats in nauwe samenwerking tussen de drie bureaus.
Trefwoorden
industrieel erfgoed
restauratie
mad architects
rotterdam
transformatie
fenix ii
katendrecht
publiek gebouw
egm architecten
bureau polderman
Locatie
Best gelezen
1
PSV presenteert plannen voor uitbreiding Philips Stadion
vrijdag, 20 maart
2
Luxe appartementengebouw naast klooster Etten-Leur door Studio AAAN klaar
donderdag, 19 maart
3
Houten Stelthuis van Woonpioniers is aardbevings- en klimaatbestendig
woensdag, 18 maart
4
BureauVanEig verbetert uitstraling Haagse rijtjeswoningen bij verduurzaming
dinsdag, 17 maart
5
De nieuwe kleren van de keizer
dinsdag, 17 maart
Gerelateerde nieuwsberichten
Transformatie Fenix II-loods Rotterdam van start
29 april 2020
MAD Architects ontwerpt cirkelend uitkijkplatform voor Fenix II op Katendrecht
23 november 2018
'Low budget' Gulden Feniks voor Fenixloods II
5 mei 2014
Fenix I – Imposant gebouw met twee draagconstructies
20 november 2019
Migratiemuseum Fenix beschouwt door MAD ontworpen Tornado als eerste collectiestuk
13 november 2023
Fenix I uitgeroepen tot Woongebouw van het Jaar 2020
28 oktober 2020
Fenix, kunstmuseum over migratie, opent zijn deuren
15 mei 2025
EGM architecten over uitwerking ontwerp Fenix: “Het was echt teamwork”
16 juli 2025
MAD realiseert 'heuvelwoningen' midden in Beverly Hills
27 augustus 2020
MAD Architects transformeert historisch hof tot kleuterschool
20 november 2018
Huangshan Mountain Village van MAD Architects opgeleverd
29 november 2017
Muziekgebouw met doorschijnende gevel voor Beijing
21 oktober 2016
MAD bouwt woonhuis uit tot kleuterschool
25 augustus 2016
Installatie van MAD in historisch Milaan
14 april 2016
Operagebouw MAD in Chinese stad opgeleverd
17 december 2015
Eerste Europese project MAD in uitvoering
12 december 2014
Architectonische heuvel voor Chicago van MAD
5 november 2014
Canadese Absolute Towers helemaal klaar
12 december 2012
STACK Rotterdam vormt afsluiting ontwikkeling Müllerpier
18 december 2020
Recordaantal bouwvergunningen aangevraagd in Rotterdam
19 februari 2021
LMS Vermeersch maakt van herbestemd pakhuis een oriëntatiepunt
25 maart 2021
Transformatie Rotterdams pakhuis Santos tot designwarenhuis gestart
10 januari 2022
EGM Architecten benoemt Arno van Schaik tot associate
14 januari 2022
Mijlpaal voor bouw Fenix Museum Rotterdam
17 februari 2022
Gebouw door Kraaijvanger Architects markeert scharnierpunt Katendrecht
8 december 2022
Boek belicht Meelfabriek op te transformeren terrein Rotterdam
10 februari 2023
MAD presenteert ontwerp voor Danshuis Rotterdam
9 maart 2023
Transformatie Fenix II-loods Rotterdam van start
29 april 2020
MAD Architects ontwerpt cirkelend uitkijkplatform voor Fenix II op Katendrecht
23 november 2018
'Low budget' Gulden Feniks voor Fenixloods II
5 mei 2014
Fenix I – Imposant gebouw met twee draagconstructies
20 november 2019
Migratiemuseum Fenix beschouwt door MAD ontworpen Tornado als eerste collectiestuk
13 november 2023
Fenix I uitgeroepen tot Woongebouw van het Jaar 2020
28 oktober 2020
Fenix, kunstmuseum over migratie, opent zijn deuren
15 mei 2025
EGM architecten over uitwerking ontwerp Fenix: “Het was echt teamwork”
16 juli 2025
MAD realiseert 'heuvelwoningen' midden in Beverly Hills
27 augustus 2020
MAD Architects transformeert historisch hof tot kleuterschool
20 november 2018
Huangshan Mountain Village van MAD Architects opgeleverd
29 november 2017
Muziekgebouw met doorschijnende gevel voor Beijing
21 oktober 2016
MAD bouwt woonhuis uit tot kleuterschool
25 augustus 2016
Installatie van MAD in historisch Milaan
14 april 2016
Operagebouw MAD in Chinese stad opgeleverd
17 december 2015
Eerste Europese project MAD in uitvoering
12 december 2014
Architectonische heuvel voor Chicago van MAD
5 november 2014
Canadese Absolute Towers helemaal klaar
12 december 2012
STACK Rotterdam vormt afsluiting ontwikkeling Müllerpier
18 december 2020
Recordaantal bouwvergunningen aangevraagd in Rotterdam
19 februari 2021
LMS Vermeersch maakt van herbestemd pakhuis een oriëntatiepunt
25 maart 2021
Transformatie Rotterdams pakhuis Santos tot designwarenhuis gestart
10 januari 2022
EGM Architecten benoemt Arno van Schaik tot associate
14 januari 2022
Mijlpaal voor bouw Fenix Museum Rotterdam
17 februari 2022
Gebouw door Kraaijvanger Architects markeert scharnierpunt Katendrecht
8 december 2022
Boek belicht Meelfabriek op te transformeren terrein Rotterdam
10 februari 2023
MAD presenteert ontwerp voor Danshuis Rotterdam
9 maart 2023
Toon alles
Gerelateerde podcasts
Gesprek met Willemineke Hammer en Roemer Pierik over 50 jaar EGM architecten
20 juni 2024
Andere nieuwsberichten
PSV presenteert plannen voor uitbreiding Philips Stadion
20 maart, 3:37
De Eindhovense club wil de capaciteit van zijn onderkomen opschroeven met maximaal 25.000 bezoekers. Om dit te bewerkstelligen, komt er een nieuwe schil rond het stadion waarin een derde ring is opgenomen.
Rijkswaterstaat staakt renovatie markante houten Krùsrak-brug in Sneek
20 maart, 11:32
Tijdens de renovatie werd duidelijk dat de constructieve veiligheid van de brug niet langer kan worden verzekerd, laat RWS weten. De uit 2008 stammende Krúsrak-brug over de rijksweg 7 is ontworpen door Onix en Archterbosch Architecten.
KAAN Architecten en De Zwarte Hond winnen tender voor Area 19 TU Eindhoven
20 maart, 10:35
De opdracht omvat het ontwerp van een nieuw onderzoeks- en onderwijsgebouw en de stedenbouwkundige ontwikkeling van een nieuw campusgebied.
Projecten gezocht voor vijfde Adriaan Dessingprijs
19 maart, 2:42
De tweejaarlijkse architectuurprijs vestigt de aandacht op bijzondere, gerealiseerde plannen in de Zuid-Hollandse gemeenten Westland en Midden-Delfland. Het kan gaan om nieuwbouw, restauratie of landschappelijke projecten.
Friesland brengt duizenden karakteristieke boerderijen in kaart
20 maart, 2:16
Door alle informatie over de voor het landschap kenmerkende gebouwen op één plek te brengen, moet het makkelijker worden om ze te behouden.
ING: bijna de helft van de huiseigenaren stelt verduurzaming uit
20 maart, 12:18
De meeste mensen vinden dat de overheid te weinig doet om dit te stimuleren.
Rekenkamer kraakt resultaten EU-innovatiefonds voor verduurzaming
20 maart, 9:25
Het Innovatiefonds van de Europese Unie levert veel minder resultaat op dan verwacht op het gebied van verduurzaming en innovatie.
Provincie schrapt beoogde locaties windturbines in Groene Hart
19 maart, 1:35
De provincie had twaalf plekken op het oog, maar dat leidde tot maatschappelijk en politiek verzet.
Staten Utrecht willen netcongestie versneld aanpakken
19 maart, 9:44
De fracties wezen op de noodzaak van het zo snel mogelijk realiseren van een hoogspanningsstation dat essentieel is voor het opsplitsen van het elektriciteitsnetwerk tussen de Flevopolder, Gelderland en Utrecht.
Rotterdam wil woningbouw versnellen met pilot ‘Ontwikkelaar aan Zet’
18 maart, 4:33
De gemeente Rotterdam start een pilot waarbij projectontwikkelaars een grotere rol krijgen bij de voorbereiding van woningbouwprojecten.
Ga naar het nieuws-archief
Robert Muis
Redacteur
2
0
0
0
Voor een optimale gebruikservaring plaatst Architectenweb functionele cookies. Wat de verschillende cookies precies doen leggen we uit in een
overzicht
. Cookies van social media kun je optioneel
aanzetten
.
Akkoord
Instellingen
Annuleren
OK
Sluiten
Doorgaan
Inloggen
Maak een gratis persoonlijk account aan
Feedback
Feedback
Wij horen graag jouw feedback. Laat je reactie achter en eventueel jouw e-mail adres.
Reactie
Verstuur