Projecten
Producten
Bedrijven
Vacatures
Agenda
Awards
Podcasts
more_horiz
Videos
Magazine
Thema's
Favorieten
Profiel
Uitloggen
Abonneer je nu op onze nieuwsbrieven!
Abonneren
Nee, bedankt
Ja, denk met me mee rond de
materialisering van mijn project
Copyright: Fuji Koji
Copyright: Fuji Koji
Copyright: Fuji Koji
Copyright: Fuji Koji
Copyright: Fuji Koji
Copyright: Fuji Koji
Copyright: Fuji Koji
Copyright: Fuji Koji
Copyright: Fuji Koji
Copyright: Rasmus Daniel Taun
Copyright: Fuji Koji
Copyright: Fuji Koji
Copyright: MAD architects
Copyright: MAD architects
Copyright: MAD architects
Copyright: MAD architects
Copyright: Lengtedoorsnede. MAD architects
Copyright: Dwarsdoorsnede. MAD architects
Copyright: MAD architects
Copyright: MAD architects
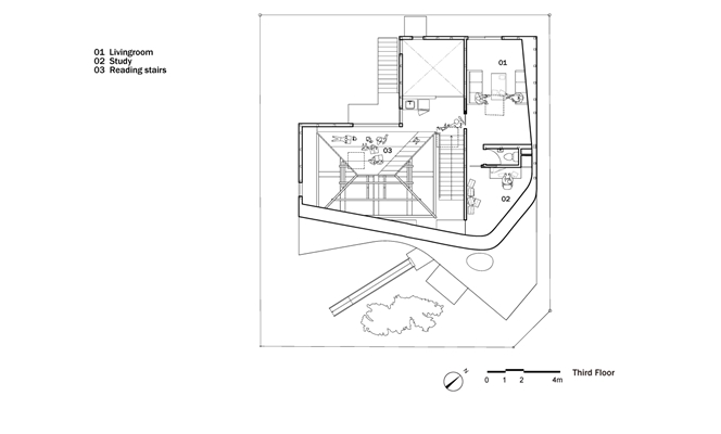
Copyright: Begane grond. MAD architects
Copyright: Eerste verdieping. MAD architects
Copyright: Tweede verdieping. MAD architects
MAD bouwt woonhuis uit tot kleuterschool
25 augustus 2016, 15:20
Kentaro en Tamaki Nara hadden hun ouderlijk huis in Okazaki ingericht als kleuterschool. Toen de ruimte te beperkt werd, heeft
MAD architects
het huis vergroot door een ruimere jas over de bestaande constructie te plaatsen.
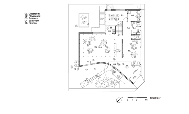
De kleuterschool Clover House is gevestigd in het kleine Japanse stadje Okazaki. Het ouderlijk huis waarin Kentaro en Tamaki Nara de school hadden ingericht werd al snel te klein; bovendien voldeed het gebouw niet aan de educatieve doelen die de Nara’s zich stelden.
MAD kreeg van de familie de opdracht het ouderlijk huis, met een oppervlak van 150 m
2
, te verbouwen tot een volwaardig schoolgebouw. Daarbij moest het gebouw voor de kinderen als een thuis blijven voelen. Het is MADs eerste project in Japan.
Constructie rond constructie
Net als de omliggende gebouwen was het Clover House gerealiseerd als een standaard prefab huis. Om de bouwkosten te drukken, besloot MAD de bestaande houten constructie te behouden en op te nemen in het nieuwe ontwerp.
Het Chinese architectenbureau heeft een nieuwe constructie en (hagelwitte) huid gecreëerd, die over het originele skelet heen zijn geplaatst. De originele constructie is herkenbaar in alle schoolruimtes – deel van het gebouw is nog altijd woonhuis – als een verwijzing naar de geschiedenis van het Clover House.
Ook het puntdak is – in vorm – behouden, zodat de Nara’s het gebouw ook als hun woonhuis blijven herkennen. Daarnaast draagt de vorm bij aan een dynamisch interieur. De open en omsloten ruimtes zijn eenvoudig aanpasbaar aan de verschillende lesactiviteiten.
Speelse elementen
De nieuwe driedimensionale houten constructie biedt een veel organischer en dynamischer vorm dan het oorspronkelijke prefab huis, aldus MAD, en past beter bij een kleuterschool. “We wilden een speelse architectuur creëren, die de kinderen zich blijven herinneren als ze volwassen worden”, zegt MAD-oprichter en architect Ma Yansong.
De ramen hebben verschillende geometrische vormen, die de kleuters herkennen. Als bijdrage aan het speelse karakter is Clover House voorts voorzien van een glijbaan vanaf de tweede verdieping, eindigend in de buitenspeelruimte. Als buitenruimte is er ook een omsloten tuin.
Trefwoorden
kleuterschool
clover house
school
okazaki
mad architects
japan
onderwijs
Best gelezen
1
De Urbanisten schetst perspectief voor vitale en aantrekkelijke Rotterdamse binnenstad
vrijdag, 13 maart
2
Nominaties Amsterdamse Architectuurprijs 2026 bekend
vrijdag, 13 maart
3
Studio Vinke en Loos van Vliet ontwerpen blok met woningen in haven Lelystad
vrijdag, 13 maart
4
Duncan Stutterheim en SOM maken plannen voor meerdere locaties Sloterdijk I
maandag, 16 maart
5
Houten Stelthuis van Woonpioniers is aardbevings- en klimaatbestendig
woensdag, 18 maart
Gerelateerde nieuwsberichten
Nieuwe Instituut organiseert tentoonstelling over Ma Yansong en MAD Architects
13 februari 2025
Nieuwe Instituut organiseert Een avond met Ma Yansong
24 april 2025
Ma Yansong sponsort reis naar China
18 april 2017
Huangshan Mountain Village van MAD Architects opgeleverd
29 november 2017
Muziekgebouw met doorschijnende gevel voor Beijing
21 oktober 2016
Installatie van MAD in historisch Milaan
14 april 2016
Architectonische heuvel voor Chicago van MAD
5 november 2014
Operagebouw MAD in Chinese stad opgeleverd
17 december 2015
Eerste Europese project MAD in uitvoering
12 december 2014
MAD Architects transformeert historisch hof tot kleuterschool
20 november 2018
MAD realiseert 'heuvelwoningen' midden in Beverly Hills
27 augustus 2020
MAD Architects toont nieuwe beelden Fenix II in Rotterdam
19 november 2020
Mijlpaal voor bouw Fenix Museum Rotterdam
17 februari 2022
Nieuwe Instituut organiseert tentoonstelling over Ma Yansong en MAD Architects
13 februari 2025
Nieuwe Instituut organiseert Een avond met Ma Yansong
24 april 2025
Ma Yansong sponsort reis naar China
18 april 2017
Huangshan Mountain Village van MAD Architects opgeleverd
29 november 2017
Muziekgebouw met doorschijnende gevel voor Beijing
21 oktober 2016
Installatie van MAD in historisch Milaan
14 april 2016
Architectonische heuvel voor Chicago van MAD
5 november 2014
Operagebouw MAD in Chinese stad opgeleverd
17 december 2015
Eerste Europese project MAD in uitvoering
12 december 2014
MAD Architects transformeert historisch hof tot kleuterschool
20 november 2018
MAD realiseert 'heuvelwoningen' midden in Beverly Hills
27 augustus 2020
MAD Architects toont nieuwe beelden Fenix II in Rotterdam
19 november 2020
Mijlpaal voor bouw Fenix Museum Rotterdam
17 februari 2022
Toon alles
Andere nieuwsberichten
Projecten gezocht voor vijfde Adriaan Dessingprijs
4 uur geleden
De tweejaarlijkse architectuurprijs vestigt de aandacht op bijzondere, gerealiseerde plannen in de Zuid-Hollandse gemeenten Westland en Midden-Delfland. Het kan gaan om nieuwbouw, restauratie of landschappelijke projecten.
Nora Prins en Floor Marree versterken directie ECHO
Vandaag, 12:24
Met de uitbreiding verstevigt ECHO naar eigen zeggen de aansturing van zowel het ontwerpbureau als de adviespraktijk voor gebiedsontwikkeling.
Luxe appartementengebouw naast klooster Etten-Leur door Studio AAAN klaar
Vandaag, 10:50
Bij klooster ’t Withof in Etten-Leur is afgelopen jaar woongebouw De Hoogschout opgeleverd. Het door Studio AAAN ontworpen complex bestaat uit veertig ruime appartementen.
Hogeschool InHolland realiseert nieuw hoofdgebouw op campus Alkmaar
Gisteren, 15:38
Het gebouw, dat is ontworpen door BRTArchitecten, moet een plek worden waar studenten, docenten en andere betrokkenen samenkomen om te leren, onderzoeken en samenwerken. Spil in het ontwerp vormt een doorlopende verbindende ruimte.
Provincie schrapt beoogde locaties windturbines in Groene Hart
Vandaag, 13:35
De provincie had twaalf plekken op het oog, maar dat leidde tot maatschappelijk en politiek verzet.
Staten Utrecht willen netcongestie versneld aanpakken
Vandaag, 09:44
De fracties wezen op de noodzaak van het zo snel mogelijk realiseren van een hoogspanningsstation dat essentieel is voor het opsplitsen van het elektriciteitsnetwerk tussen de Flevopolder, Gelderland en Utrecht.
Rotterdam wil woningbouw versnellen met pilot ‘Ontwikkelaar aan Zet’
Gisteren, 16:33
De gemeente Rotterdam start een pilot waarbij projectontwikkelaars een grotere rol krijgen bij de voorbereiding van woningbouwprojecten.
Veel meer financieringsaanvragen Warmtefonds om hogere gasprijzen
Gisteren, 14:31
De gestegen gasprijzen zorgen ervoor dat veel meer huiseigenaren financiering aanvragen voor het energiezuiniger maken van hun woning.
Grondprijs voor landbouwgrond loopt op tot bijna een ton
Gisteren, 09:36
Ook overheden en andere partijen zoeken naar grond voor onder meer woningbouw, natuur en infrastructuur.
ANWB: betrek bewoners beter bij parkeerplannen in de wijk
17 maart, 2:00
Bewoners vinden naast parkeerruimte groen en leefbaarheid in hun wijk ook belangrijk, stelt de organisatie.
Ga naar het nieuws-archief
0
0
0
0
Voor een optimale gebruikservaring plaatst Architectenweb functionele cookies. Wat de verschillende cookies precies doen leggen we uit in een
overzicht
. Cookies van social media kun je optioneel
aanzetten
.
Akkoord
Instellingen
Annuleren
OK
Sluiten
Doorgaan
Inloggen
Maak een gratis persoonlijk account aan
Feedback
Feedback
Wij horen graag jouw feedback. Laat je reactie achter en eventueel jouw e-mail adres.
Reactie
Verstuur