Projecten
Producten
Bedrijven
Vacatures
Agenda
Awards
Podcasts
more_horiz
Videos
Magazine
Favorieten
Profiel
Uitloggen
Abonneer je nu op onze nieuwsbrieven!
Abonneren
Nee, bedankt
Ja, denk met me mee rond de
materialisering van mijn project
Villa Tonden, architect HofmanDujardin
Copyright: ©HofmanDujardin, fotograaf Matthijs van Roon
Villa Tonden, architect HofmanDujardin
Copyright: ©HofmanDujardin, fotograaf Matthijs van Roon
Villa Tonden, architect HofmanDujardin
Copyright: ©HofmanDujardin, fotograaf Matthijs van Roon
Villa Tonden, architect HofmanDujardin
Copyright: ©HofmanDujardin, fotograaf Matthijs van Roon
Villa Tonden, architect HofmanDujardin
Copyright: ©HofmanDujardin, fotograaf Matthijs van Roon
Villa Tonden, architect HofmanDujardin
Copyright: ©HofmanDujardin, fotograaf Matthijs van Roon
Villa Tonden, architect HofmanDujardin
Copyright: ©HofmanDujardin, fotograaf Matthijs van Roon
Villa Tonden, architect HofmanDujardin
Copyright: ©HofmanDujardin, fotograaf Matthijs van Roon
Villa Tonden, architect HofmanDujardin
Copyright: ©HofmanDujardin, fotograaf Matthijs van Roon
Villa Tonden, architect HofmanDujardin
Copyright: ©HofmanDujardin, fotograaf Matthijs van Roon
Villa Tonden, architect HofmanDujardin
Copyright: ©HofmanDujardin, fotograaf Matthijs van Roon
Villa Tonden, architect HofmanDujardin
Copyright: ©HofmanDujardin, fotograaf Matthijs van Roon
Isometrie
Copyright: HofmanDujardin
Isometrie
Copyright: HofmanDujardin
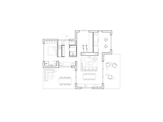
Plattegrond begane grond
Copyright: HofmanDujardin
Plattegrond eerste verdieping
Copyright: HofmanDujardin
Doorsnede
Copyright: HofmanDujardin
Doorsnede
Copyright: HofmanDujardin
Villa Tonden, gevels
Copyright: HofmanDujardin
Situatie
Copyright: HofmanDujardin
Karakteristiek vakantiehuis in drie volumes
30 juni 2020, 15:38
Nauwkeurig ingepast op een open plek in het bos ligt het vakantiehuis Villa Tonden, ontworpen door
HofmanDujardin
. Het architectenbureau gaf de vakantiewoning een opvallende vorm en zorgde voor een nauwe relatie met de omliggende natuur.
Villa Tonden ligt nabij het Gelderse buurtschap van die naam en is door HofmanDujardin ontworpen als vakantiehuis voor een particuliere opdrachtgever. Het huis bestaat uit drie geschakelde volumes met een zadeldak. Zowel de constructie als de gevel zijn van hout. Details heeft het architectenbureau tot een minimum teruggebracht.
Bijzondere ruimten
Met zijn ontwerp heeft HofmanDujardin de aanwezigheid van het huis in het landschap willen verzachten. Daarnaast resulteert de vorm van geschakelde volumes in min of meer besloten plekken rond het huis, met terrassen tussen twee gevels.
In het interieur zorgt de schakeling van volumes voor bijzondere binnenruimten met elk hun eigen kwaliteiten. De architecten hebben gekozen voor de toepassing van schuifdeuren. Door die te openen smelten de ruimten samen, wat de onderlinge verbinding versterkt, legt HofmanDujardin uit.
Hart van het huis
Een groot raam om in te zitten kenmerkt de entreehal, die direct is verbonden met de woonkamer. Deze grote leefruimte heeft ramen aan drie zijden, waardoor gedurende de hele dag zonlicht kan binnenvallen. Twee grote schuifpuien openen de ruimte naar het ochtend- en het avondterras en vervagen de grenzen tussen binnen en buiten.
Door de houten constructie in het zicht te houden heeft het architectenbureau de hoogte van de kamer benadrukt. De ruimte vormt het hart van het vakantiehuis en nodigt uit tot uitgebreide familiediners en lange avonden bij de open haard, aldus HofmanDujardin.
Slaapkamers met uitzicht
De hoofdslaapkamer beschikt over een eigen badkamer en een groot panoramaraam. De kinderslaapkamer heeft vier ingebouwde bedsteden, als een geborgen plek om je veilig te voelen in de natuurlijke omgeving, leggen de architecten uit. Dankzij een groot raam kunnen de kinderen vanuit hun bed naar het bos en de dieren kijken.
In aanvulling op de slaapkamers op de begane grond liggen er twee gastenkamers in de nok van een van de volumes. Deze kamers beschikken over een dakraam dat zicht biedt op de boomtoppen, de lucht en de sterren. “Zo heeft elke ruimte zijn eigen relatie met de natuur”, zegt HofmanDujardin.
Trefwoorden
gevel
hofmandujardin
brummen
tonden
vakantiewoning
vakantiehuis
Locatie
Best gelezen
1
Woontoren Front door Monadnock wint tiende Architectuurprijs Nijmegen
donderdag, 9 april
2
Spoorwegverleden inspireert ontwerp woonblok Wisselspoor 10 in Utrecht
woensdag, 8 april
3
Rotterdam mag woningen gaan bouwen aan de Parkhaven
woensdag, 8 april
4
KOW wint met Marker Woods tender voor nieuwe wijk Eschmarkerveld
woensdag, 8 april
5
RED Company vraagt vergunning aan voor productie- en onderzoeksfaciliteit Lilly
dinsdag, 7 april
Gerelateerde nieuwsberichten
Verkoop vakantiehuizen gestegen door coronacrisis
27 juli 2020
Nieuw kantoorgebouw ING gericht op openheid en verbinding
8 januari 2020
Van fabriekshal tot kantooromgeving met behoud van licht en ruimte
29 september 2020
HofmanDujardin transformeert loods tot eigen Office Villa
25 juni 2019
Een vakantiewoning die zich opent naar de natuur
4 januari 2023
HofmanDujardin ontwerpt flagship store voor Xpeng Motors in Kopenhagen
15 december 2022
HofmanDujardin creëert ruimtelijkheid en geborgenheid in Villa Zeist 2
17 december 2018
Compacte vakantiewoning met aanpasbare ruimte
15 juli 2021
HofmanDujardin schept frisse omgeving voor zorgverzekeraar
20 oktober 2017
HofmanDujardin vernieuwt kantoorgebouw aan Rembrandtpark
13 december 2023
Recreatiewoningen geïntegreerd in centrum Zoutelande
16 september 2019
Werkplaats met kantoor op het dak
30 januari 2025
Compact en minimalistisch vakantiehuis
9 januari 2019
Een minimalistisch vakantiehuis voor maximale natuurbeleving
31 oktober 2017
Vakantiewoning van Peter Zumthor in Zuid-Engeland
29 oktober 2018
Casa Tamariu ligt als een monoliet in het Spaanse kustlandschap
2 mei 2024
Privacy en vakantiegevoel tussen duin en strand
5 september 2018
Recreatievilla in harmonie met duinomgeving
11 juli 2018
Ruime vakantiewoning met een modulaire opzet
17 juli 2024
Vakantiewoning met niveaus van uitzicht
4 april 2016
Bungalow wordt zelfvoorzienend zomerverblijf
20 oktober 2015
Lange, horizontale lijn verbindt twee delen vakantiewoning Bretagne
14 mei 2024
Vakantiehuis Zwarte Hond op Schiermonnikoog
7 juli 2015
Zes slaaphuisjes geven bijzondere beleving van Vuurtoreneiland
14 augustus 2024
Een buitenhuisje dat zich heeft ingegraven
6 juni 2024
Dijkmagazijn duurzaam herbestemd tot gastenverblijf
2 juli 2025
Keizer Koopmans realiseert villa aan Costa Brava
7 oktober 2021
Comfortabele en milieuvriendelijke retraite in beperkte oplage
10 december 2020
Verkoop vakantiehuizen gestegen door coronacrisis
27 juli 2020
Nieuw kantoorgebouw ING gericht op openheid en verbinding
8 januari 2020
Van fabriekshal tot kantooromgeving met behoud van licht en ruimte
29 september 2020
HofmanDujardin transformeert loods tot eigen Office Villa
25 juni 2019
Een vakantiewoning die zich opent naar de natuur
4 januari 2023
HofmanDujardin ontwerpt flagship store voor Xpeng Motors in Kopenhagen
15 december 2022
HofmanDujardin creëert ruimtelijkheid en geborgenheid in Villa Zeist 2
17 december 2018
Compacte vakantiewoning met aanpasbare ruimte
15 juli 2021
HofmanDujardin schept frisse omgeving voor zorgverzekeraar
20 oktober 2017
HofmanDujardin vernieuwt kantoorgebouw aan Rembrandtpark
13 december 2023
Recreatiewoningen geïntegreerd in centrum Zoutelande
16 september 2019
Werkplaats met kantoor op het dak
30 januari 2025
Compact en minimalistisch vakantiehuis
9 januari 2019
Een minimalistisch vakantiehuis voor maximale natuurbeleving
31 oktober 2017
Vakantiewoning van Peter Zumthor in Zuid-Engeland
29 oktober 2018
Casa Tamariu ligt als een monoliet in het Spaanse kustlandschap
2 mei 2024
Privacy en vakantiegevoel tussen duin en strand
5 september 2018
Recreatievilla in harmonie met duinomgeving
11 juli 2018
Ruime vakantiewoning met een modulaire opzet
17 juli 2024
Vakantiewoning met niveaus van uitzicht
4 april 2016
Bungalow wordt zelfvoorzienend zomerverblijf
20 oktober 2015
Lange, horizontale lijn verbindt twee delen vakantiewoning Bretagne
14 mei 2024
Vakantiehuis Zwarte Hond op Schiermonnikoog
7 juli 2015
Zes slaaphuisjes geven bijzondere beleving van Vuurtoreneiland
14 augustus 2024
Een buitenhuisje dat zich heeft ingegraven
6 juni 2024
Dijkmagazijn duurzaam herbestemd tot gastenverblijf
2 juli 2025
Keizer Koopmans realiseert villa aan Costa Brava
7 oktober 2021
Comfortabele en milieuvriendelijke retraite in beperkte oplage
10 december 2020
Toon alles
Gerelateerde podcasts
Gesprek met Michiel Hofman over het vinden van de juiste balans binnen ontwerpen
17 augustus 2023
Andere nieuwsberichten
Restauratie Atlasbeeld op dak Koninklijk Paleis Amsterdam afgerond
10 april, 3:38
Het beeld op het fronton van het paleis was in juli van zijn plek gehaald voor een uitgebreide onderhoudsbeurt in Antwerpen.
Nieuw zitgebied Lounge 2 Schiphol geïnspireerd door overgangsfase in oeuvre Mondriaan
10 april, 2:16
Op luchthaven Schiphol is de derde en laatste fase van door Beyond Space ontworpen zitgebieden opgeleverd. Net als de eerste twee fases van het project is dit gedeelte geïnspireerd door het werk van Mondriaan, maar dan uit een eerdere periode.
SeARCH en Heutink Groep winnen tender voor woongebouw Sluisbuurt
10 april, 11:15
Gebouw Radius biedt plek aan zo’n honderd appartementen, een stadskamer, een binnentuin, daktuinen en andere gemeenschappelijke ruimtes. Het gebouw wordt gerealiseerd van natuurlijke materialen als hout, stampleem en leemsteen.
Woontoren Front door Monadnock wint tiende Architectuurprijs Nijmegen
9 april, 10:00
“Front is een optimistisch icoon, gemaakt met lef, dat ambachtelijkheid en vakmanschap uitstraalt”, stelt de jury in zijn rapport.
Grote en kleine gemeenten balen van bouwregels Zuid-Holland
10 april, 4:31
Grote en kleine gemeenten in Zuid-Holland hebben hun zorgen geuit over nieuwe regels van de provincie, die volgens hen de woningbouw belemmeren.
Twijfels in Zuid-Holland over halen van doelen landelijk gebied
10 april, 12:18
De meeste partijen in de Zuid-Hollandse politiek hebben twijfels over de plannen die in zestien deelgebieden zijn gemaakt voor de aanpak van het landelijk gebied.
Huurprijzen stijgen harder dan koopwoningprijzen
10 april, 9:31
Volgens Huurwoningen.nl en Pararius moesten nieuwe huurders in het eerste kwartaal gemiddeld 21,12 euro per vierkante meter per maand neerleggen.
ABN AMRO: investeringen defensie vergroten druk op bouwcapaciteit
9 april, 12:29
Kazernes, opslagplaatsen en oefenterreinen dingen om dezelfde aannemers, ingenieurs en installateurs die ook nodig zijn voor bijvoorbeeld woningbouw.
Europa kent 831 miljoen euro subsidie toe aan Utrechtse projecten
9 april, 9:27
Het gaat onder meer om projecten tegen oververhitting van gebouwen, slimmer gebruik van energie en het hergebruik van materialen en grondstoffen.
Rotterdam mag woningen gaan bouwen aan de Parkhaven
8 april, 3:38
De Raad van State maakte woensdag bekend dat alle bezwaren tegen het bestemmingsplan zijn verworpen.
Ga naar het nieuws-archief
Robert Muis
Redacteur
6
0
0
0
Voor een optimale gebruikservaring plaatst Architectenweb functionele cookies. Wat de verschillende cookies precies doen leggen we uit in een
overzicht
. Cookies van social media kun je optioneel
aanzetten
.
Akkoord
Instellingen
Annuleren
OK
Sluiten
Doorgaan
Inloggen
Maak een gratis persoonlijk account aan
Feedback
Feedback
Wij horen graag jouw feedback. Laat je reactie achter en eventueel jouw e-mail adres.
Reactie
Verstuur