Projecten
Producten
Bedrijven
Vacatures
Agenda
Awards
Podcasts
more_horiz
Videos
Magazine
Thema's
Favorieten
Profiel
Uitloggen
Copyright: Matthijs van Roon
Copyright: Matthijs van Roon
Copyright: Matthijs van Roon
Copyright: Matthijs van Roon
Copyright: Matthijs van Roon
Copyright: Matthijs van Roon
Copyright: Matthijs van Roon
Copyright: HofmanDujardin
Copyright: HofmanDujardin
HofmanDujardin creëert ruimtelijkheid en geborgenheid in Villa Zeist 2
17 december 2018, 14:30
Op een langgerekte kavel tussen de naaldbomen is in de omgeving van Zeist een
villa
naar ontwerp van
HofmanDujardin
gerealiseerd. Het architectenbureau ontwierp de woning als een serie geschakelde kamers die geborgenheid bieden en tegelijkertijd zich openen naar de natuur.
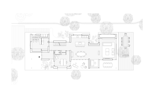
De particuliere opdrachtgevers wensten een villa die privacy en geborgenheid zou bieden. De vraag naar privacy heeft HofmanDujardin in de hoofdvorm van Villa Zeist 2 afgestemd op de mogelijkheden en beperkingen van de langgerekte kavel. In plaats van een enkel uitgestrekt volume, heeft het architectenbureau de villa opgebouwd uit kleinere volumes, verbonden door een betonnen luifel.
Geborgen buitenruimten
De verschillende bakstenen volumes creëren samen een serie half omsloten buitenruimten, of ‘pockets’, zoals de architecten ze aanduiden. Deze pockets zorgen voor een geleidelijke overgang tussen interieur en de omgeving. Deels overdekt door de luifel bieden ze geborgen plekken met elk een eigen perspectief op het landschap.
De pockets versterken ook de kwaliteiten van de leefruimte in de woning. Op twee manieren dragen ze bij aan de gewenste privacy. Ten eerste creëren ze afstand tussen de ruimten in de volumes en zorgen voor intimiteit in de kamers.
Ten tweede maken ze gevelopeningen in verschillende richtingen mogelijk en daarmee een beperking van het directe zicht op – en van – de nabijgelegen buren. In sommige ruimten voelt het bos nabij dankzij de verdiepingshoge schuifpuien; in andere kamers bieden de ramen strak ingekaderde uitzichten.
Zichtlijnen
Door de hele woning heen verbinden zichtlijnen in alle richtingen de ruimten onderling en met de omgeving. Dit bereikt een hoogtepunt in de centrale keuken, die door HofmanDujardin tot het hart van de woning is gemaakt.
Een vide langs de gevel zorgt voor een ruimtelijke verbinding van de begane grond met de verdieping. Een groot raam zorgt hier voor ruim binnenvallend daglicht. De gevel in warm getint metselwerk en de houtenkozijnen geven het interieur karakter en verankeren de Villa Zeist 2 in het bos, leggen de architecten uit.
Trefwoorden
woning
zeist
bos
villa
hofmandujardin
Best gelezen
1
Finalisten presenteren ontwerp voor Shift Landmark in Rotterdam
woensdag, 4 maart
2
Architect Oliver Thill op 55-jarige leeftijd overleden
donderdag, 5 maart
3
Nieuwe Hittekaart Woningmarkt 2026 van BPD toont aanhoudende woningdruk
dinsdag, 3 maart
4
Strijp-S krijgt woonbuurtje met karakteristieken voormalig Philips-terrein
maandag, 2 maart
5
Melkmeisje staat model voor woontoren De Catharina in Zaandam
vrijdag, 27 februari
Gerelateerde nieuwsberichten
HofmanDujardin schept frisse omgeving voor zorgverzekeraar
20 oktober 2017
HofmanDujardin: toekomststrategie voor Amsterdam
15 november 2016
Rijkskantorencomplex De Resident geopend
11 november 2015
Karakteristiek vakantiehuis in drie volumes
30 juni 2020
Renovatie kantoor BarentsKrans klaar
16 september 2013
Bouw woontoren The Cube in Beiroet gestart
30 juli 2012
Van fabriekshal tot kantooromgeving met behoud van licht en ruimte
29 september 2020
HofmanDujardin ontwerpt flagship store voor Xpeng Motors in Kopenhagen
15 december 2022
HofmanDujardin vernieuwt kantoorgebouw aan Rembrandtpark
13 december 2023
Werkplaats met kantoor op het dak
30 januari 2025
Bosvilla van Natrufied Architecture gaat op in de natuur
29 januari 2019
HofmanDujardin transformeert loods tot eigen Office Villa
25 juni 2019
Nieuw kantoorgebouw ING gericht op openheid en verbinding
8 januari 2020
Veertien houten woningen in Kerckebosch Zeist vormen 'buurtschap'
23 juni 2021
HofmanDujardin schept frisse omgeving voor zorgverzekeraar
20 oktober 2017
HofmanDujardin: toekomststrategie voor Amsterdam
15 november 2016
Rijkskantorencomplex De Resident geopend
11 november 2015
Karakteristiek vakantiehuis in drie volumes
30 juni 2020
Renovatie kantoor BarentsKrans klaar
16 september 2013
Bouw woontoren The Cube in Beiroet gestart
30 juli 2012
Van fabriekshal tot kantooromgeving met behoud van licht en ruimte
29 september 2020
HofmanDujardin ontwerpt flagship store voor Xpeng Motors in Kopenhagen
15 december 2022
HofmanDujardin vernieuwt kantoorgebouw aan Rembrandtpark
13 december 2023
Werkplaats met kantoor op het dak
30 januari 2025
Bosvilla van Natrufied Architecture gaat op in de natuur
29 januari 2019
HofmanDujardin transformeert loods tot eigen Office Villa
25 juni 2019
Nieuw kantoorgebouw ING gericht op openheid en verbinding
8 januari 2020
Veertien houten woningen in Kerckebosch Zeist vormen 'buurtschap'
23 juni 2021
Toon alles
Gerelateerde podcasts
Gesprek met Michiel Hofman over het vinden van de juiste balans binnen ontwerpen
17 augustus 2023
Andere nieuwsberichten
Architect Oliver Thill op 55-jarige leeftijd overleden
Gisteren, 14:27
Afgelopen maandag is op 55-jarige leeftijd architect Oliver Thill overleden. Het door hem en André Kempe opgerichte Atelier Kempe Thill behoort tot de meest gewaardeerde Nederlandse architectenbureaus van de afgelopen 25 jaar.
HvdHA ontwerpt twee woonblokken in Utrecht Terwijde volgens typologie van woonpalazzo
Gisteren, 10:49
In Utrecht Terwijde worden twee woonblokken met 161 sociale huurwoningen naar ontwerp van Hans van der Heijden Architecten gerealiseerd. De gebouwen worden ontworpen volgens de typologie van een ‘woonpalazzo’.
Sweco neemt Belgische activiteiten Conix RDBM Architects over
4 maart, 4:31
Sweco voegt opnieuw een grote vis toe aan zijn vijver van overgenomen architectenbureaus. Vanaf 30 april zet Conix RDBM Architects zijn Belgische activiteiten voort onder de naam Sweco Architects.
VAi schijnt licht op feministische vrouwenwerkgroep uit de jaren tachtig
4 maart, 3:47
In de jaren 1980 ging de Vlaamse Werkgroep Vrouwen en Wonen de strijd aan met het heersende patriarchale woon- en maatschappijmodel. Het Vlaams Architectuurinstituut organiseert een tentoonstelling over deze wegbereiders en hun boodschap.
Hardt Hyperloop failliet verklaard door rechtbank
Gisteren, 11:37
Het Rotterdamse bedrijf was bezig met de ontwikkeling van technologie om mensen op hoge snelheid via capsules door een vacuümbuis te vervoeren.
Onderzoek: zeespiegel kustgebieden hoger dan in studies aangenomen
Gisteren, 09:13
De zeespiegel aan de kust is in grote delen van de wereld waarschijnlijk hoger dan in veel wetenschappelijke studies wordt aangenomen.
Gelderland geeft voorrang aan vergunningen met minder stikstof
4 maart, 12:24
De plannen zijn onderdeel van het pakket maatregelen dat het Gelderse bestuur wil nemen om de vergunningverlening voor zaken als de woningbouw weer op gang te krijgen.
Amsterdam bouwde opnieuw minder woningen dan de bedoeling is
4 maart, 10:56
Wethouder Steven van Weyenberg spreekt van een ‘sprong in de aantallen’, omdat er in 2025 beduidend meer huizen bijkwamen dan de jaren daarvoor.
Rijksvastgoedbedrijf zet eerste deelgebied nieuwe wijk Valkenhorst in Katwijk te koop
3 maart, 3:26
Op deze locatie mogen de eerste 450 van de in totaal 5.600 woningen worden gebouwd.
Verkoopgolf van woningen door investeerders zet door
2 maart, 2:57
Investeerders hebben in het vierde kwartaal van vorig jaar de meeste woningen verkocht sinds 2021, meldt het Kadaster.
Ga naar het nieuws-archief
Robert Muis
Redacteur
3
0
0
0
Voor een optimale gebruikservaring plaatst Architectenweb functionele cookies. Wat de verschillende cookies precies doen leggen we uit in een
overzicht
. Cookies van social media kun je optioneel
aanzetten
.
Akkoord
Instellingen
Annuleren
OK
Sluiten
Doorgaan
Inloggen
Maak een gratis persoonlijk account aan
Feedback
Feedback
Wij horen graag jouw feedback. Laat je reactie achter en eventueel jouw e-mail adres.
Reactie
Verstuur