Projecten
Producten
Bedrijven
Vacatures
Agenda
Awards
Podcasts
more_horiz
Videos
Magazine
Thema's
Favorieten
Profiel
Uitloggen
Abonneer je nu op onze nieuwsbrieven!
Abonneren
Nee, bedankt
Ja, denk met me mee rond de
materialisering van mijn project
Copyright: Keizer Koopmans
Copyright: Keizer Koopmans
Copyright: Keizer Koopmans
Copyright: Keizer Koopmans
Copyright: Keizer Koopmans
Copyright: Keizer Koopmans
Copyright: Keizer Koopmans
Copyright: Keizer Koopmans
Copyright: Keizer Koopmans
Copyright: Keizer Koopmans
Copyright: Keizer Koopmans
Copyright: Keizer Koopmans
Copyright: Keizer Koopmans
Copyright: Keizer Koopmans
Copyright: Keizer Koopmans
Copyright: Keizer Koopmans
Vele tests in 3D
Copyright: Keizer Koopmans
Keizer Koopmans realiseert villa aan Costa Brava
7 oktober 2021, 12:02
Drie Nederlandse stellen wensten een gezamenlijke vakantiewoning in het Catalaanse kustplaatsje Tamariu, die ze ook zouden kunnen gebruiken voor verhuur. Architectenbureau
Keizer Koopmans
maakte een rationeel ontwerp voor een ruime en moderne villa, die als een steen uit het landschap lijkt gehouwen. Bouwen in Catalonië blijkt geen sinecure, maar de bouwvergunning is binnen.
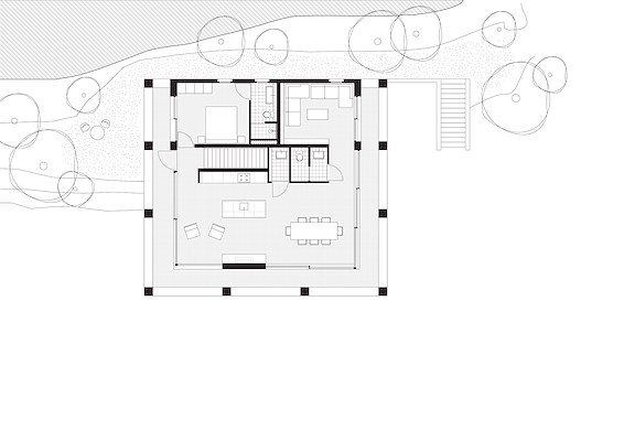
Casa Tamariu is vormgegeven als een eenvoudig rechthoekig volume van 11 bij 11 meter met twee woonlagen. De villa staat robuust tegen een bergwand, waarbij de begane grond deels in de berg is geschoven. De verdieping is voorzien van een royale uitkraging langs drie zijden, die beide woonlagen beschutting biedt tegen de zon.
Verdieping met uitkraging
De verdieping functioneert als een alzijdige woonlaag, legt Keizer Koopmans uit. Aan drie zijden bieden hier verdiepingshoge puien uitzicht op het landschap in zuidelijke richting. Grote horizontale vensters in de uitkraging creëren kaders rond het panoramische zicht. Door de schuifpuien te openen, kunnen de bewoners rondom 1,5 meter aan de leefruimte toevoegen. Zowel plafond- als vloerafwerking worden van binnen naar buiten doorgezet, wat de ervaring van een aaneengesloten ruimte versterkt.
Centraal in de plattegrond ligt de trap, omsloten door functionele ruimten zoals de keuken en een berging. Hier omheen ontstaat een omloop, leggen de architecten uit, eindigend in een zithoek tegen de achtergevel. Met de toevoeging van een slaapkamer kan de verdieping zelfstandig worden gebruikt. Op de begane grond bevinden zich met name koele slaapvertrekken en technische ruimten, vertelt Keizer Koopmans. Casa Tamariu biedt ruimte voor in totaal tien personen.
Buitenruimten rondom
De hoofdentree van de villa ligt in de oostgevel, halverwege de trap die hier in een rechte lijn van straatniveau tot aan de groene achterzijde van de kavel loopt. Verschillende typen buitenruimten liggen in een baan langs de villa, onderling gescheiden door kleine hoogteverschillen.
Plantenbakken omzomen bij wijze van ‘groene balustrades’ de buitenruimten. Een in de gevel geïntegreerde buitenkeuken completeert het terras. Ook buiten is er weer een logische afsluiting van de omlopende ruimte, vertelt het architectenbureau: in het laagste deel van het terras ligt langs de zuidgevel een zwembad.
Natuursteen en pleisterwerk
Het architectenbureau kiest voor naturelle kleuren en natuurlijke materialen voor een optimale integratie van Casa Tamariu in het landschap van de Costa Brava. De basis vormt zandkleurig natuursteen uit een groeve bij Ulldecona, zo’n 300 meter zuidelijker aan de Spaanse kust gelegen.
Deze steen vormt de bekleding van de terrassen en de gevel van de begane grond. “Door gelijke behandeling van alle vlakken lijkt het alsof de plint van de villa uit de rotsen is gehouwen”, verklaart Keizer Koopmans.
De gevel van de uitkragende verdieping krijgt een afwerking met een grof pleisterwerk in een kleurtoon die overeenkomt met die van het natuursteen. De toepassing van verschillende materialen in een zelfde tint resulteert in een subtiele overgang en laat de uitkraging optisch nog meer zweven, leggen de architecten uit. De lichte zandkleur wordt gecombineerd met aluminium kozijnen in een donkere bronstint en elementen van donkerbruin hout.
Geen sinecure
“Ontwerpen voor een kavel met een hoogteverschil van maar liefst 9 meter is geen sinecure voor een Nederlandse architect”, stelt Keizer Koopmans. “Er gaat een hele nieuwe wereld open wat betreft ruimtelijke organisatie, daglicht en uitzicht. Het vraagt om een fundamenteel andere houding ten opzichte van de plattegrond en enorm veel testen in 3D.”
Ook het doorgronden van de Spaanse of specifiek Catalaanse bouwregelgeving maakte de opdracht tot een bij tijden moeizaam – maar ook waardevol – proces, evenals de kennismaking met een “geheel andere bouwcultuur”, bekent het architectenbureau. Onlangs is echter de bouwvergunning verleend en inmiddels bevindt het bureau zich in de aanbestedingsfase. Het bureau werkt hiervoor samen met een lokale architect, de Nederlander Sander Laudy van B01 Arquitectes uit Barcelona. “We verwachten voor het einde van dit jaar te beginnen met de bouw”, aldus Keizer Koopmans.
Trefwoorden
cpo
keizer koopmans
woning
vakantiewoning
sander laudy
collectief particulier opdrachtgeverschap
tamariu
villa
spanje
b01 arquitectes
Best gelezen
1
Kantoorcomplex door Goof Spruit bij station Utrecht krijgt tweede leven als De Nieuwe Tuin
woensdag, 11 maart
2
Woongebouw door van Bergen Kolpa vormt nieuwe markering langs bocht Rotte
dinsdag, 10 maart
3
Gerenoveerd Valkhof Museum heropent deuren op 6 juni
dinsdag, 10 maart
4
Architectenweb symposium: ontwerpen van autovrije buurten
donderdag, 12 maart
5
Weg met de auto?
donderdag, 12 maart
Gerelateerde nieuwsberichten
Voorstel voor co-living-project in Madrid van Keizer Koopmans
15 juni 2020
Een minimalistisch vakantiehuis voor maximale natuurbeleving
31 oktober 2017
Carnisse Eiland wordt nieuwe parkbuurt in Rotterdam-Zuid
2 maart 2022
Sabine Marcelis doet interventie in Barcelona Paviljoen
22 januari 2020
Een vakantiewoning die zich opent naar de natuur
4 januari 2023
Lange, horizontale lijn verbindt twee delen vakantiewoning Bretagne
14 mei 2024
Compacte vakantiewoning met aanpasbare ruimte
15 juli 2021
Biobased villa’s van Natrufied aan de Texelse duinen
27 januari 2021
Comfortabele en milieuvriendelijke retraite in beperkte oplage
10 december 2020
Karakteristiek vakantiehuis in drie volumes
30 juni 2020
Compact en minimalistisch vakantiehuis
9 januari 2019
Vakantiewoning van Peter Zumthor in Zuid-Engeland
29 oktober 2018
Privacy en vakantiegevoel tussen duin en strand
5 september 2018
Recreatievilla in harmonie met duinomgeving
11 juli 2018
Vakantiewoning met niveaus van uitzicht
4 april 2016
Voorstel voor co-living-project in Madrid van Keizer Koopmans
15 juni 2020
Een minimalistisch vakantiehuis voor maximale natuurbeleving
31 oktober 2017
Carnisse Eiland wordt nieuwe parkbuurt in Rotterdam-Zuid
2 maart 2022
Sabine Marcelis doet interventie in Barcelona Paviljoen
22 januari 2020
Een vakantiewoning die zich opent naar de natuur
4 januari 2023
Lange, horizontale lijn verbindt twee delen vakantiewoning Bretagne
14 mei 2024
Compacte vakantiewoning met aanpasbare ruimte
15 juli 2021
Biobased villa’s van Natrufied aan de Texelse duinen
27 januari 2021
Comfortabele en milieuvriendelijke retraite in beperkte oplage
10 december 2020
Karakteristiek vakantiehuis in drie volumes
30 juni 2020
Compact en minimalistisch vakantiehuis
9 januari 2019
Vakantiewoning van Peter Zumthor in Zuid-Engeland
29 oktober 2018
Privacy en vakantiegevoel tussen duin en strand
5 september 2018
Recreatievilla in harmonie met duinomgeving
11 juli 2018
Vakantiewoning met niveaus van uitzicht
4 april 2016
Toon alles
Andere nieuwsberichten
Bouw wooncomplexen op vergroend Koningsplein Tilburg van start
17 minuten geleden
In Tilburg is gestart met de bouw van twee wooncomplexen binnen het project Koningswei. Met de nieuwe gebouwen en een groen ingerichte openbare ruimte rondom krijgt het Koningsplein in het centrum van de stad een nieuw uiterlijk.
Broekbakema renoveert en verduurzaamt stadhuis Terneuzen
3 uur geleden
Het bekende brutalistische gebouw, dat is ontworpen door medenaamgever van het bureau Jaap Bakema, wordt opgewaardeerd naar energielabel A en moet toegankelijker worden voor inwoners van de Zeeuwse gemeente.
De Urbanisten schetst perspectief voor vitale en aantrekkelijke Rotterdamse binnenstad
13 maart, 4:41
In opdracht van BIZ RotterdamCentrum maakte De Urbanisten een perspectief voor een vitale en aantrekkelijke binnenstad die samengaat met een meer klimaat- en natuursensitieve inrichting
Studio Vinke en Loos van Vliet ontwerpen blok met woningen in haven Lelystad
13 maart, 3:24
In de haven van Lelystad wordt een blok met 160 woningen naar ontwerp van Studio Vinke in samenwerking met Atelier Loos van Vliet gerealiseerd. Bataviahof wordt het middelste van vijf wooncomplexen, waarvan er inmiddels twee zijn gerealiseerd.
Onderzoek: bedrijventerreinen slecht voorbereid op wateroverlast
1 uur geleden
Volgens een analyse van alle 3713 bedrijventerreinen bevat zeventig procent veel gebouwen die kwetsbaar zijn bij extreme regenbuien.
Eerste waterstoffabriek aangesloten op Nederlands netwerk
Vandaag, 10:08
De waterstoffabriek van Shell op de Rotterdamse Maasvlakte is de eerste met een aansluiting op het waterstofnetwerk.
NVM: verkoopgolf huurwoningen vergroot ongelijkheid starters
13 maart, 4:03
Waar een recordaantal starters hun eerste woning kon kopen, zagen anderen hun kansen juist afnemen, zegt de makelaarsorganisatie.
IT-systeem Omgevingswet schiet na twee jaar nog steeds tekort
13 maart, 1:20
Het IT-systeem dat overheden nodig hebben om de Omgevingswet uit te voeren, voldoet nog steeds niet aan minimale eisen.
Eindhoven bouwt 5400 studentenwoningen
13 maart, 11:04
De woningen moeten het tekort aan studentenhuisvesting helpen oplossen.
Experts: versnel energietransitie en hou Gronings gas als airbag
12 maart, 1:58
Dat is nodig om minder afhankelijk te worden van andere landen, stellen 22 experts die gespecialiseerd zijn in veiligheid en energie.
Ga naar het nieuws-archief
Robert Muis
Redacteur
2
0
0
0
Voor een optimale gebruikservaring plaatst Architectenweb functionele cookies. Wat de verschillende cookies precies doen leggen we uit in een
overzicht
. Cookies van social media kun je optioneel
aanzetten
.
Akkoord
Instellingen
Annuleren
OK
Sluiten
Doorgaan
Inloggen
Maak een gratis persoonlijk account aan
Feedback
Feedback
Wij horen graag jouw feedback. Laat je reactie achter en eventueel jouw e-mail adres.
Reactie
Verstuur