Projecten
Producten
Bedrijven
Vacatures
Agenda
Awards
Podcasts
more_horiz
Videos
Magazine
Thema's
Favorieten
Profiel
Uitloggen
Copyright: Sebastian van Damme
Copyright: Sebastian van Damme
Copyright: Sebastian van Damme
Copyright: Sebastian van Damme
Copyright: Sebastian van Damme
Copyright: Sebastian van Damme
Copyright: Sebastian van Damme
Copyright: Sebastian van Damme
Copyright: Sebastian van Damme
Copyright: Sebastian van Damme
Copyright: Sebastian van Damme
Copyright: Sebastian van Damme
Copyright: studio AAAN
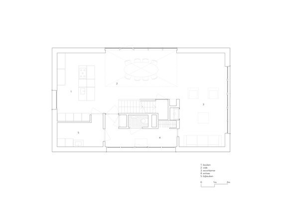
Begane grond
Copyright: studio AAAN
Verdieping
Copyright: studio AAAN
Copyright: studio AAAN
Moderne woning met landelijke uitstraling
5 juni 2020, 11:46
Aan de rand van het Zuid-Hollandse Zevenhuizen heeft
studio AAAN
een modern vormgegeven woning gerealiseerd die past in de landelijke omgeving. Op het eerste gezicht oogt het leien huis als een klassieke schuur op het achtererf, maar bij benadering wordt een eigentijdse en verfijnde detaillering zichtbaar.
Het woonhuis, dat is gebouwd op een kavel in de Zuidplaspolder, heeft een sobere en archetypische hoofdvorm. Om de hoofdvorm te versterken, zijn het dakvlak en de gevel uitgevoerd in hetzelfde materiaal. Toevoegingen en onderbrekingen zijn vermeden, alleen zijn via openingen op sommige plaatsen de ruimtes erachter zichtbaar gemaakt.
Aan de oost- en zuidzijde van de woning zijn grote gevelopeningen aangebracht om de leefruimtes die zich hier bevinden te verbinden met de tuin. Meest prominent zichtbaar is het deel waarachter zich de centraal gelegen vide met overloop bevindt. Op de begane grond grenzen de woonkamer en keuken aan deze vide, op de verdieping liggen de slaapkamers, badkamer en een studeerkamer.
De entree en serviceruimte zijn gepositioneerd aan de west- en noordzijde van de woning. Aan deze zijde van het huis zijn de gevelopeningen geminimaliseerd, waardoor de hoofdvorm vanaf de straat bijna ononderbroken te zien is.
In het hart van de woningen zijjn de trappen, garderobe, toilet en open haard gecombineerd in een centraal meubel. Dit eikenhouten meubel is bedoeld een ‘warm’ contract met de donkere buitenzijde.
Voor de materialisatie van de buitenzijde is gekozen voor vezelcement leien. Door de toepassing van deze leien kon een scherpe detaillering worden toegepast, waarin de overgang van gevel naar dak vrijwel naadloos werd gerealiseerd, besluit Studio AAAN.
Trefwoorden
woonhuis
zevenhuizen
studio aaan
Locatie
Best gelezen
1
Houthybride woongebouw langs de A8 in Zaandam opgeleverd
dinsdag, 11 november
2
WillemsenU zinkt villa af in landschap
dinsdag, 11 november
3
Woongebouw voor gezinnen biedt ruime corridor en gekoppelde terrassen met glijbaan
woensdag, 12 november
4
MVRDV ontwerpt bolvormig sportcomplex in Albanese hoofdstad Tirana
maandag, 10 november
5
Groningers kiezen nieuwe invulling voor plek gesloopte parkeergarage in stadscentrum
dinsdag, 11 november
Gerelateerde nieuwsberichten
Ingetogen transformatie en uitbreiding van boerderij naar hospice
27 juli 2020
Vrijstaande woning met uitzicht en geborgenheid door BNLA
5 oktober 2020
Geen doorsnee rijtjeshuis van derksen|windt architecten
16 november 2020
Woning met de staart tussen de bomen
4 augustus 2020
Woongebouw aan Wantij door Studio AAAN opgeleverd
12 juni 2023
NN Kralingen wordt groene rand van de wijk
10 juli 2017
Medisch centrum als paviljoen in woonwijk
7 juni 2017
Monumentaal pand verbouwd tot wijnhandel
8 maart 2016
P·A geeft landelijk woonhuis onverwachte indeling
12 april 2016
Vrijstaande stadswoning van 8A voor gedraaide zelfbouwkavel
7 januari 2021
‘Komst Vijfde Dorp betekent ook impuls voor het landschap’
27 mei 2021
Compact woonensemble met binnenhof op smalle kavel in Oostenburg
5 december 2022
Studio AAAN realiseert 'terpwoning' in polderlandschap nabij Rotterdam
22 maart 2023
Ingetogen transformatie en uitbreiding van boerderij naar hospice
27 juli 2020
Vrijstaande woning met uitzicht en geborgenheid door BNLA
5 oktober 2020
Geen doorsnee rijtjeshuis van derksen|windt architecten
16 november 2020
Woning met de staart tussen de bomen
4 augustus 2020
Woongebouw aan Wantij door Studio AAAN opgeleverd
12 juni 2023
NN Kralingen wordt groene rand van de wijk
10 juli 2017
Medisch centrum als paviljoen in woonwijk
7 juni 2017
Monumentaal pand verbouwd tot wijnhandel
8 maart 2016
P·A geeft landelijk woonhuis onverwachte indeling
12 april 2016
Vrijstaande stadswoning van 8A voor gedraaide zelfbouwkavel
7 januari 2021
‘Komst Vijfde Dorp betekent ook impuls voor het landschap’
27 mei 2021
Compact woonensemble met binnenhof op smalle kavel in Oostenburg
5 december 2022
Studio AAAN realiseert 'terpwoning' in polderlandschap nabij Rotterdam
22 maart 2023
Toon alles
Andere nieuwsberichten
Nominaties Zuiderkerkprijs en Geurt Brinkgreve Bokaal 2025 bekend
Gisteren, 12:17
Voor de eerstgenoemde woningbouwprijs van de gemeente Amsterdam zijn tien projecten genomineerd, de bokaal voor het beste initiatief op het gebied van herontwikkeling, transformatie of renovatie leverde zeven nominaties op.
'Architecten kunnen kwaliteit waarborgen bij splitsen en opdelen rijtjeshuizen'
Gisteren, 11:14
Om het splitsen en opdelen van rijtjeswoningen van de grond te krijgen, dienen het Rijk en gemeenten de regie te nemen. Architecten kunnen hierbij worden ingeschakeld voor de waarborging van de kwaliteit, aldus een vrijdag verschenen rapport.
MVRDV en Buro Happold ontwerpen nieuw theater in Veenendaal
Gisteren, 10:23
Voor de vernieuwing van Theater De Lampegiet zijn vijf schetsontwerpen gemaakt. Zowel de inwoners van de stad als de jury hebben daarbij voor het ontwerp van MVRDV en Buro Happold gekozen.
Benthem Crouwel Architects plaatst slotstuk in Paleiskwartier van Den Bosch
13 november, 5:00
Benthem Crouwel Architects heeft het stadsblok Palazzo in het Paleiskwartier van Den Bosch opgeleverd
Zuid-Holland verhoogt budget voor restauratie rijksmonumenten
Gisteren, 14:08
De provincie Zuid-Holland verhoogt het budget voor de restauratie van rijksmonumenten structureel.
Rapport: natuur kan helpen beschermen tegen stijgende zeespiegel
Gisteren, 09:24
Natuurlijke oplossingen zoals ruim baan geven aan gebieden met eb en vloed kunnen helpen de Nederlandse kustlijn te beschermen tegen de stijgende zeespiegel.
Deltacommissaris: ga nu al in gesprek over toekomst waterbeheer
13 november, 4:03
Nederland moet nu al kijken welke randvoorwaarden nodig zijn om grote waterbeschermingsprogramma's zoals de Deltawerken in de komende jaren uit te voeren.
Gemeentebestuur wil Brabants dorp Moerdijk laten verdwijnen
13 november, 10:23
Het dorp Moerdijk in Noord-Brabant moet verdwijnen om plaats te maken voor uitbreiding van het bestaande haven- en industrieterrein in die plaats.
Iets minder mensen vertrekken uit de Randstad dan in eerdere jaren
12 november, 10:00
Onder andere omdat er in de Randstad meer kinderen worden geboren, groeit de bevolking daar sneller dan in de gebieden eromheen. Netto vertrokken er afgelopen jaar 14.000 mensen.
Woningen en park op plek van rangeerterrein bij Rotterdamse Kuip
12 november, 9:30
Een rangeerterrein voor treinen tegenover stadion De Kuip in Rotterdam verdwijnt. Op de plek worden woningen en een nieuw station gebouwd. Bovendien moet een park naast het spoor worden uitgebreid.
Ga naar het nieuws-archief
Ronnie Weessies
Redacteur
3
0
0
0
Voor een optimale gebruikservaring plaatst Architectenweb functionele cookies. Wat de verschillende cookies precies doen leggen we uit in een
overzicht
. Cookies van social media kun je optioneel
aanzetten
.
Akkoord
Instellingen
Annuleren
OK
Sluiten
Doorgaan
Inloggen
Maak een gratis persoonlijk account aan
Feedback
Feedback
Wij horen graag jouw feedback. Laat je reactie achter en eventueel jouw e-mail adres.
Reactie
Verstuur