Projecten
Producten
Bedrijven
Vacatures
Agenda
Awards
Podcasts
more_horiz
Videos
Magazine
Thema's
Favorieten
Profiel
Uitloggen
Copyright: René de Wit
Copyright: René de Wit
Copyright: René de Wit
Copyright: René de Wit
Copyright: René de Wit
Copyright: René de Wit
Copyright: René de Wit
Copyright: René de Wit
Copyright: René de Wit
Copyright: René de Wit
Copyright: René de Wit
Copyright: René de Wit
Copyright: René de Wit
Copyright: René de Wit
Copyright: René de Wit
Copyright: René de Wit
Copyright: René de Wit
Copyright: René de Wit
Copyright: René de Wit
Copyright: Riccardo De Vecchi
Copyright: René de Wit
Copyright: Riccardo De Vecchi
Copyright: René de Wit
Copyright: René de Wit
Copyright: Riccardo De Vecchi
Copyright: Riccardo De Vecchi
Copyright: Shift architecture urbanism
Copyright: Shift architecture urbanism
Copyright: Shift architecture urbanism
Copyright: Shift architecture urbanism
Copyright: Shift architecture urbanism
Copyright: Shift architecture urbanism
Copyright: Shift architecture urbanism
Copyright: Shift architecture urbanism
Copyright: Shift architecture urbanism
Copyright: Shift architecture urbanism
Copyright: Shift architecture urbanism
Copyright: Shift architecture urbanism
Eerste fase transformatie klooster Oude Dijk afgerond
9 januari 2020, 16:06
De eerste fase van de transformatie van het klooster Oude Dijk in Tilburg is afgerond. Dit deel van het project behelst een appartementengebouw met 36 zusterwoningen en een kleinschalige woonzorgvoorziening met 24 zorgplaatsen.
Shift architecture urbanism
is verantwoordelijk voor het masterplan voor de transformatie en het ontwerp voor het woongebouw.
De woonzorgvoorziening voor zusters met een zware zorgbehoefte is naar ontwerp van
BBM architecten
ondergebracht in een leegstaand deel van het kloostercomplex en de uitbreiding ervan met een nieuwe vleugel.
Het monumentale kloostercomplex met besloten kloostertuin van de Zusters van Liefde staat in het centrum van Tilburg. Bij de gefaseerde transformatie wordt het klooster omgebouwd tot een zorgtoegankelijke huisvesting voor de zusters, in combinatie met woningen voor leken. Hierbij ontstaat een ensemble van bestaande en nieuwe gebouwen.
Het introverte complex opent zich in de komende jaren naar de stad zonder dat de karakteristieke beslotenheid van de kloostertuin wordt aangetast, belooft Shift. Het stedenbouwkundige concept borduurt voort op de typologie van de hofbebouwing die de voortdurende ontwikkeling van het klooster sinds diens stichting in 1843 kenmerkt.
Bestaande en nieuwe gebouwen vormen samen een serie van nieuwe hoven aan de randen van de kloostertuin, elk met een eigen karakter, functie, mate van geslotenheid en mix van bewoners, meldt Shift. De nieuwe hoven openen het complex richting de stad en fungeren als overgang van de stad naar de kloostertuin.
Wanden
De nieuwe gebouwen worden niet zozeer als solitaire bouwdelen vormgegeven, maar eerder als wanden die duidelijk herkenbare hoven en tuinkamers definiëren. Het nu opgeleverde langgerekte woongebouw vormt een begrenzing van de kloostertuin en creëert twee nieuwe hoven: een gesloten hof tussen het appartementengebouw en de woonzorgvoorziening en een open hof richting de stad.
Het gesloten hof dient als veilige buitenruimte voor de zusters met een psychogeriatrische indicatie in de woonzorgvoorziening. Het open hof richting stad functioneert als entreegebied voor de woonzorgvoorziening en het appartementengebouw, verklaart Shift.
Eigen manier
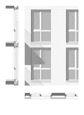
Zoals het stedenbouwkundig plan voorschrijft, zijn de gevels alle op een eigen manier uitgewerkt. Bepalende factoren zijn hierbij de collectieve buitenruimten die zij definiëren en de gevels van het rijksmonument waaraan zij grenzen. Dit geldt zowel voor de raamverdeling en manier waarop de private buitenruimtes zijn vormgegeven als de detaillering van het metselwerk, de raamneggen en de kozijnen.
Wat alle gevels gemeen hebben, is de uitvoering in traditioneel metselwerk met dezelfde Wasserstrich-baksteen met lichte voegen die de tekening van de verschillende metselwerkverbanden versterkt, aldus Shift.
De wens van de zusters voor een volledig bed-toegankelijk woongebouw heeft geresulteerd in een woningplattegrond zonder verkeersruimte. De standaard driekamerappartementen zijn opgebouwd uit drie beuken, waarvan de middenbeuk als woonkamer-keuken fungeert van waaruit alle andere ruimtes worden ontsloten.
Tweede fase
In de tweede helft van dit jaar start de tweede fase van de transformatie. Die bestaat uit twee nieuwe woongebouwen met in totaal zestig appartementen.
Trefwoorden
klooster
shift architecture urbanism
bbm architecten
transformatie
woningbouw
tilburg
Locatie
Best gelezen
1
Realisatie woongebouw Atlas I naast Essalammoskee in Rotterdam-Zuid gestart
woensdag, 10 december
2
Pixelgevel van MVRDV versterkt uitstraling modulaire woontorens in Singapore
maandag, 8 december
3
Kollhoff & Pols realiseert 58 woningen in monumentale panden Den Haag
dinsdag, 9 december
4
Architecten tonen voorstellen voor woningbouw in tussenruimtes Wallengebied
donderdag, 11 december
5
Gebouwen niet slopen, maar langzaam laten rijpen
donderdag, 11 december
Gerelateerde nieuwsberichten
Eerste Tilburg Architectuurprijs voor transformatie kloostercomplex Oude Dijk
14 juni 2024
Een winnende transformatie en trage architectuur
22 juli 2024
Winnend ontwerp van Bogdan & Van Broeck en Shift voor Rozemaai in Antwerpen
21 december 2020
Historisch klooster in binnenstad Brugge wordt wooncomplex
20 juni 2023
Bureau B+B en Shift maken plan voor groene wijk in Rotterdamse Schiehaven-Noord
22 juni 2022
Hoogste punt bereikt bij gebouwenensemble 5Tracks in Breda
5 april 2023
Clarissenhof: verstilling in hoogstedelijk gebied
21 mei 2019
Betaalbare woningen op locatie langs het spoor in Tilburg
19 maart 2019
KAW geeft in Tilburg voorbeeld complexe, betaalbare woningbouw
12 maart 2019
Groeseind Tilburg 'fris en groen' na herstructurering
12 februari 2018
Tilburgse woonwijk verwijst naar industrieel verleden
21 november 2017
Willem II-passage is nieuw publiek gebied in centrum Tilburg
24 augustus 2017
Spoorpark wordt nieuwe groene hart Tilburg
11 april 2017
Jaarboek Architectuur 2018/2019 officieel gepresenteerd
7 mei 2019
Tilburgse LocHal is ruimtelijke ontmoetings- en werkplek
21 januari 2019
Shift stelt ruimtelijke verkenning op voor museum Batavialand
26 maart 2019
Shift maakt verwaarloosd pand tot matroesjkahuis
15 maart 2017
Shift en Powerhouse Company winnen tender 5TRACKS
15 juli 2016
Museumplein Limburg: een droomopdracht voor Shift
25 november 2015
Voormalige Willem II-kazerne Tilburg wordt woongebied
9 juli 2020
Nieuw leven voor oud Tilburgs pakhuis als woongebouw
24 augustus 2020
Wooncomplex Domus Houthaven van Shift architecture krijgt veel collectieve faciliteiten
7 december 2020
MVRDV presenteert plan voor torens die samen netnummer Tilburg vormen
23 april 2021
Eerste Tilburg Architectuurprijs voor transformatie kloostercomplex Oude Dijk
14 juni 2024
Een winnende transformatie en trage architectuur
22 juli 2024
Winnend ontwerp van Bogdan & Van Broeck en Shift voor Rozemaai in Antwerpen
21 december 2020
Historisch klooster in binnenstad Brugge wordt wooncomplex
20 juni 2023
Bureau B+B en Shift maken plan voor groene wijk in Rotterdamse Schiehaven-Noord
22 juni 2022
Hoogste punt bereikt bij gebouwenensemble 5Tracks in Breda
5 april 2023
Clarissenhof: verstilling in hoogstedelijk gebied
21 mei 2019
Betaalbare woningen op locatie langs het spoor in Tilburg
19 maart 2019
KAW geeft in Tilburg voorbeeld complexe, betaalbare woningbouw
12 maart 2019
Groeseind Tilburg 'fris en groen' na herstructurering
12 februari 2018
Tilburgse woonwijk verwijst naar industrieel verleden
21 november 2017
Willem II-passage is nieuw publiek gebied in centrum Tilburg
24 augustus 2017
Spoorpark wordt nieuwe groene hart Tilburg
11 april 2017
Jaarboek Architectuur 2018/2019 officieel gepresenteerd
7 mei 2019
Tilburgse LocHal is ruimtelijke ontmoetings- en werkplek
21 januari 2019
Shift stelt ruimtelijke verkenning op voor museum Batavialand
26 maart 2019
Shift maakt verwaarloosd pand tot matroesjkahuis
15 maart 2017
Shift en Powerhouse Company winnen tender 5TRACKS
15 juli 2016
Museumplein Limburg: een droomopdracht voor Shift
25 november 2015
Voormalige Willem II-kazerne Tilburg wordt woongebied
9 juli 2020
Nieuw leven voor oud Tilburgs pakhuis als woongebouw
24 augustus 2020
Wooncomplex Domus Houthaven van Shift architecture krijgt veel collectieve faciliteiten
7 december 2020
MVRDV presenteert plan voor torens die samen netnummer Tilburg vormen
23 april 2021
Toon alles
Andere nieuwsberichten
Faculteit ITC Universiteit Twente onderscheiden met Abe Bonnema Architectuurprijs 2025
Gisteren, 17:30
Vrijdag ontving Civic Architects de prijs en het bijbehorend geldbedrag van 50.000 euro uit handen van Ed Nijpels, voorzitter van de ir. Abe Bonnema Stichting.
MVRDV werkt aan renovatie boeddhistisch klooster in Franse Dordogne
Gisteren, 11:37
Naar ontwerp van MVRDV en het plaatselijke architectenbureau MoonWalkLocal ondergaat het boeddhistische klooster Plum Village in de Franse Dordogne een grote renovatie.
Studio for New Realities ontwerpt twee woongebouwen in District U
Gisteren, 10:00
De transformatie van het voormalige Unilever-terrein in Vlaardingen gaat een nieuwe fase in nu gestart is met de bouw van de eerste woningbouwprojecten.
Wanden uit leemsteen verbinden woning met Limburgs landschap
Gisteren, 09:00
In de landelijke omgeving van Weert, in het noorden van Limburg, heeft De Nieuwe Context een woning ontworpen waar wanden uit leemsteenblokken de verbinding tussen binnen en buiten manifest maken.
RIVM: verbeterde luchtkwaliteit leidde tot afname sterfte
Gisteren, 12:27
Een verbeterde luchtkwaliteit heeft ervoor gezorgd dat er tussen 1995 en 2019 een kwart minder mensen zijn overleden na dagen met verhoogde concentraties van luchtverontreinigende stoffen.
Zuid-Holland: met dubbel agrarisch ruimtegebruik stroom voor 700.000 huizen
Gisteren, 11:06
De provincie heeft laten uitzoeken waar de combinatie van landbouw en zonnepanelen in theorie mogelijk is.
Miljarden extra nodig voor aanleg landelijk waterstofnetwerk
11 december, 3:13
Volgens de Algemene Rekenkamer zijn de verwachte opstartverliezen meer dan drie keer zo hoog als het beschikbare subsidiebedrag van 750 miljoen euro.
Brussel wil snellere vergunningen voor elektriciteitsprojecten
11 december, 1:39
De Europese Commissie wil dat elektriciteitsnetwerken van lidstaten beter op elkaar aansluiten.
Zeeland stopt samenwerking met aannemers over aanpak Zeelandbrug
10 december, 1:56
Volgens de provincie heeft de aannemerscombinatie een kostenraming gepresenteerd die fors boven het eerder vastgestelde budget van 5,5 miljoen euro ligt.
Verbreding Betuwelijn in Duitsland duurt nog minstens tien jaar
10 december, 12:30
De bedoeling is dat er in Duitsland meer dan zeventig kilometer spoor bijkomt, elf stations worden omgebouwd en 47 viaducten en bruggen worden aangepast.
Ga naar het nieuws-archief
Ronnie Weessies
Redacteur
3
0
0
0
Voor een optimale gebruikservaring plaatst Architectenweb functionele cookies. Wat de verschillende cookies precies doen leggen we uit in een
overzicht
. Cookies van social media kun je optioneel
aanzetten
.
Akkoord
Instellingen
Annuleren
OK
Sluiten
Doorgaan
Inloggen
Maak een gratis persoonlijk account aan
Feedback
Feedback
Wij horen graag jouw feedback. Laat je reactie achter en eventueel jouw e-mail adres.
Reactie
Verstuur