Projecten
Producten
Bedrijven
Vacatures
Agenda
Awards
Podcasts
more_horiz
Videos
Magazine
Thema's
Favorieten
Profiel
Uitloggen
Abonneer je nu op onze nieuwsbrieven!
Abonneren
Nee, bedankt
Ja, denk met me mee rond de
materialisering van mijn project
Copyright: Riccardo de Vecchi
Copyright: Riccardo de Vecchi
Copyright: Riccardo de Vecchi
Copyright: Riccardo de Vecchi
Copyright: Riccardo de Vecchi
Copyright: Riccardo de Vecchi
Copyright: Riccardo de Vecchi
Copyright: Riccardo de Vecchi
Copyright: Riccardo de Vecchi
Copyright: Riccardo de Vecchi
Copyright: Riccardo de Vecchi
Copyright: BureauVanEig
Copyright: BureauVanEig
Copyright: BureauVanEig
Fietsenstalling en ontmoetingsplaats voor campus TU Delft
21 maart 2019, 13:50
Op de campus van de TU Delft is afgelopen najaar een gecombineerde fietsenstalling en koffiebar in gebruik genomen. De door
biq
en
BureauVanEig
ontworpen Coffee and Bikes biedt niet alleen plek voor 2.100 fietsen en een bijbehorende werkplaats, maar vormt ook een belangrijke ontmoetingsplek op de centrale as van de campus, de Mekelweg.
De Coffee and Bikes wordt omringd de aula en bibliotheek van de technische universiteit en het ook in 2018 geopende onderwijsgebouw
Pulse
. Het naastgelegen en voor de TU Delft belangrijkste transformatorgebouw is opgenomen in het ontwerp. De koffiebar, de werkplaats en een deel van de fietsenstalling bevinden zich op het verhoogde maaiveld, het dak dient als extra stallingslaag.
De grootste uitdaging in het ontwerp lag in het creëren van een aantrekkelijke verblijfsplek, melden de architecten. Daarom zijn de koffiebar en werkplaatsvoorziening gesitueerd aan het plein en is het alzijdige gebouw geplaatst op een groen talud, dat op een mooie dag vol zit met mensen. Aan de kant van het plein is een luie trap gerealiseerd die eveneens kan dienen als zitplek.
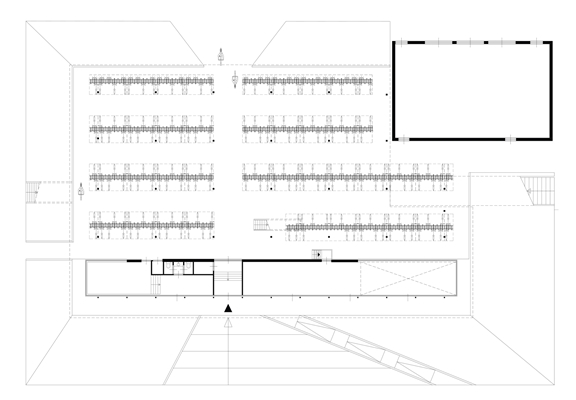
De vloer van de koffiebar ligt op een meter hoogte. Het plafond varieert in hoogte, waardoor het zitgedeelte een eigen accent heeft gekregen. De werkplaats is direct verbonden met de stalling op maaiveldniveau. Deze stallingslaag is van meerdere kanten van buitenaf toegankelijk, de stalling op het dak is aan twee zijden via een trap met het maaiveld verbonden.
Het frame van de fietsenstalling bestaat uit staalconstructie op een stramien van vijf bij zes meter. Doordat dit stramien zowel standaard als dubbellaagse fietsenrekken kan herbergen, is het mogelijk om de capaciteit van de stalling in de toekomst uit te breiden. Het flinke overstek moet opwarming door zoninval in de zomer voorkomen.
Het staal is in koffiebruin gepoedercoat, mede om een contrast te creëren met de grijze gebouwen in de omgeving. De kozijnen en de wanden en treden van de trappen zijn bleekgroen, om de Coffee and Bikes een eigen accent te geven. De borstweringselementen aan de buitenkant zorgen voor een dieptewerking aan de rand, onder invloed van de lichtinval varieert het aanzicht van het staal gedurende de dag.
Trefwoorden
fietsenstalling
biq architecten
koffiebar
bureauvaneig
tu delft
Best gelezen
1
PSV presenteert plannen voor uitbreiding Philips Stadion
vrijdag, 20 maart
2
Luxe appartementengebouw naast klooster Etten-Leur door Studio AAAN klaar
donderdag, 19 maart
3
Houten Stelthuis van Woonpioniers is aardbevings- en klimaatbestendig
woensdag, 18 maart
4
BureauVanEig verbetert uitstraling Haagse rijtjeswoningen bij verduurzaming
dinsdag, 17 maart
5
De nieuwe kleren van de keizer
dinsdag, 17 maart
Gerelateerde nieuwsberichten
Het leven in het trappenhuis
12 januari 2021
Marjolein van Eig
1 september 2023
Nostalgie naar vooruitgangsdenken
9 maart 2021
Blok met appartementen als inbreiding voor naoorlogse wijk Vijfhuizen
22 juni 2023
2021 in tien columns door Marjolein van Eig
28 december 2021
Marjolein van Eig – genomineerd voor prijs Architect van het Jaar 2023
20 september 2023
BureauVanEig presenteert het ontwerp van opgangen naar het Hofbogenpark
27 februari 2024
Tijdelijke remise Museumtramlijn Amsterdam met verrassende ornamentiek
6 mei 2025
Demontabele parkeergarage met groene gevels voor TU Delft
15 februari 2019
Oud en nieuw gaan samen in RoboHouse TU Delft
14 januari 2019
Sport- en cultuurgebouw X van de TU Delft geopend
26 september 2018
Onderwijsgebouw Pulse op campus TU Delft geopend
5 september 2018
Posad maakt gebiedsvisie voor campushart TU Delft
4 december 2017
Studentencampus TU Delft officieel geopend
29 september 2017
TU Delft neemt Teaching Lab in gebruik
28 september 2017
Eerste horecaplekken 'nieuwe stijl' op campus TU Delft
21 september 2017
Tests met studentenwoningen op campus TU Delft
28 augustus 2017
TU Delft krijgt een 'coffee and bikes'
5 oktober 2016
Gevels van winkelblok aan de Lijnbaan vernieuwd
23 augustus 2019
Tako Postma nieuwe stadsbouwmeester van Delft
27 september 2019
Heuvelachtig plein met kolomvrije fietsenstalling eronder
25 oktober 2019
Circulair onderkomen voor Firma van Buiten op campus TU Delft
18 februari 2020
Royal HaskoningDHV vestigt zich in oude faculteit Mijnbouw Delft
3 maart 2020
TNO bouwt lab voor bouwinnovatie op campus TU Delft
23 maart 2020
Galerijflats in Alkmaar opgefrist en flink verduurzaamd
24 april 2020
Campus TU Delft krijgt gebouw voor doorgroeiende jonge bedrijven
15 juni 2020
Een moderne portiersloge voor de historische Westergasfabriek
2 juli 2020
Rotterdam wil meer dan 60.000 fietsparkeerplekken in 2030
14 april 2021
Coronacrisis heeft woonwensen beïnvloed
6 juli 2021
Demontabel parkeergebouw erbij voor campus TU Delft
12 juli 2021
Het leven in het trappenhuis
12 januari 2021
Marjolein van Eig
1 september 2023
Nostalgie naar vooruitgangsdenken
9 maart 2021
Blok met appartementen als inbreiding voor naoorlogse wijk Vijfhuizen
22 juni 2023
2021 in tien columns door Marjolein van Eig
28 december 2021
Marjolein van Eig – genomineerd voor prijs Architect van het Jaar 2023
20 september 2023
BureauVanEig presenteert het ontwerp van opgangen naar het Hofbogenpark
27 februari 2024
Tijdelijke remise Museumtramlijn Amsterdam met verrassende ornamentiek
6 mei 2025
Demontabele parkeergarage met groene gevels voor TU Delft
15 februari 2019
Oud en nieuw gaan samen in RoboHouse TU Delft
14 januari 2019
Sport- en cultuurgebouw X van de TU Delft geopend
26 september 2018
Onderwijsgebouw Pulse op campus TU Delft geopend
5 september 2018
Posad maakt gebiedsvisie voor campushart TU Delft
4 december 2017
Studentencampus TU Delft officieel geopend
29 september 2017
TU Delft neemt Teaching Lab in gebruik
28 september 2017
Eerste horecaplekken 'nieuwe stijl' op campus TU Delft
21 september 2017
Tests met studentenwoningen op campus TU Delft
28 augustus 2017
TU Delft krijgt een 'coffee and bikes'
5 oktober 2016
Gevels van winkelblok aan de Lijnbaan vernieuwd
23 augustus 2019
Tako Postma nieuwe stadsbouwmeester van Delft
27 september 2019
Heuvelachtig plein met kolomvrije fietsenstalling eronder
25 oktober 2019
Circulair onderkomen voor Firma van Buiten op campus TU Delft
18 februari 2020
Royal HaskoningDHV vestigt zich in oude faculteit Mijnbouw Delft
3 maart 2020
TNO bouwt lab voor bouwinnovatie op campus TU Delft
23 maart 2020
Galerijflats in Alkmaar opgefrist en flink verduurzaamd
24 april 2020
Campus TU Delft krijgt gebouw voor doorgroeiende jonge bedrijven
15 juni 2020
Een moderne portiersloge voor de historische Westergasfabriek
2 juli 2020
Rotterdam wil meer dan 60.000 fietsparkeerplekken in 2030
14 april 2021
Coronacrisis heeft woonwensen beïnvloed
6 juli 2021
Demontabel parkeergebouw erbij voor campus TU Delft
12 juli 2021
Toon alles
Gerelateerde video's
Marjolein van Eig
Nominatie voor de prijs voor Architect van het Jaar 2023
Andere nieuwsberichten
PSV presenteert plannen voor uitbreiding Philips Stadion
20 maart, 3:37
De Eindhovense club wil de capaciteit van zijn onderkomen opschroeven met maximaal 25.000 bezoekers. Om dit te bewerkstelligen, komt er een nieuwe schil rond het stadion waarin een derde ring is opgenomen.
Rijkswaterstaat staakt renovatie markante houten Krùsrak-brug in Sneek
20 maart, 11:32
Tijdens de renovatie werd duidelijk dat de constructieve veiligheid van de brug niet langer kan worden verzekerd, laat RWS weten. De uit 2008 stammende Krúsrak-brug over de rijksweg 7 is ontworpen door Onix en Archterbosch Architecten.
KAAN Architecten en De Zwarte Hond winnen tender voor Area 19 TU Eindhoven
20 maart, 10:35
De opdracht omvat het ontwerp van een nieuw onderzoeks- en onderwijsgebouw en de stedenbouwkundige ontwikkeling van een nieuw campusgebied.
Projecten gezocht voor vijfde Adriaan Dessingprijs
19 maart, 2:42
De tweejaarlijkse architectuurprijs vestigt de aandacht op bijzondere, gerealiseerde plannen in de Zuid-Hollandse gemeenten Westland en Midden-Delfland. Het kan gaan om nieuwbouw, restauratie of landschappelijke projecten.
Friesland brengt duizenden karakteristieke boerderijen in kaart
20 maart, 2:16
Door alle informatie over de voor het landschap kenmerkende gebouwen op één plek te brengen, moet het makkelijker worden om ze te behouden.
ING: bijna de helft van de huiseigenaren stelt verduurzaming uit
20 maart, 12:18
De meeste mensen vinden dat de overheid te weinig doet om dit te stimuleren.
Rekenkamer kraakt resultaten EU-innovatiefonds voor verduurzaming
20 maart, 9:25
Het Innovatiefonds van de Europese Unie levert veel minder resultaat op dan verwacht op het gebied van verduurzaming en innovatie.
Provincie schrapt beoogde locaties windturbines in Groene Hart
19 maart, 1:35
De provincie had twaalf plekken op het oog, maar dat leidde tot maatschappelijk en politiek verzet.
Staten Utrecht willen netcongestie versneld aanpakken
19 maart, 9:44
De fracties wezen op de noodzaak van het zo snel mogelijk realiseren van een hoogspanningsstation dat essentieel is voor het opsplitsen van het elektriciteitsnetwerk tussen de Flevopolder, Gelderland en Utrecht.
Rotterdam wil woningbouw versnellen met pilot ‘Ontwikkelaar aan Zet’
18 maart, 4:33
De gemeente Rotterdam start een pilot waarbij projectontwikkelaars een grotere rol krijgen bij de voorbereiding van woningbouwprojecten.
Ga naar het nieuws-archief
Ronnie Weessies
Redacteur
0
0
0
0
Voor een optimale gebruikservaring plaatst Architectenweb functionele cookies. Wat de verschillende cookies precies doen leggen we uit in een
overzicht
. Cookies van social media kun je optioneel
aanzetten
.
Akkoord
Instellingen
Annuleren
OK
Sluiten
Doorgaan
Inloggen
Maak een gratis persoonlijk account aan
Feedback
Feedback
Wij horen graag jouw feedback. Laat je reactie achter en eventueel jouw e-mail adres.
Reactie
Verstuur