Projecten
Producten
Bedrijven
Vacatures
Agenda
Awards
Podcasts
more_horiz
Videos
Magazine
Favorieten
Profiel
Uitloggen
Abonneer je nu op onze nieuwsbrieven!
Abonneren
Nee, bedankt
Ja, denk met me mee rond de
materialisering van mijn project
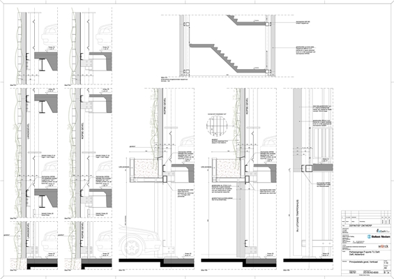
Copyright: wUrck
Copyright: wUrck
Geveldetails horizontaal
Copyright: wUrck
Geveldetails verticaal
Copyright: wUrck
Demontabele parkeergarage met groene gevels voor TU Delft
15 februari 2019, 11:13
De TU Delft krijgt een demontabele parkeergarage met groene gevels naar een ontwerp van
wUrck
. De garage met 581 parkeerplaatsen komt te staan op het parkeerterrein nabij het vorig jaar geopende
sport- en cultuurgebouw X.
De garage wordt gebouwd met een modulair systeem met prefab betonnen en stalen elementen.
Overspanningen van zestien meter zorgen ervoor dat er geen kolommen in het zicht staan, meldt wUrck. De parkeergarage wordt gebouwd vanwege een herinrichting elders op het terrein van de TU Delft, waardoor op het parkeerterrein aan de Schoenmakersstraat minimaal vierhonderd parkeerplekken extra nodig zijn.
De parkeergarage, die volledig worden gedemonteerd en ergens anders weer worden opgebouwd, krijgt vanwege de boomrijke omgeving groene gevels. Er is gekozen voor verticale gevelbakken met een mix van plantensoorten, zodat een monotoon groen gevelbeeld wordt voorkomen en de gevels kunnen mee kleuren met de seizoenen.
De groene gevels zorgen er eveneens voor dat de natuurlijke ventilatie van de garage gewaarborgd blijft en verder vangt de beplanting fijnstof af en beperkt ze geluidshinder.
In de parkeergarage zelf wordt gebruik gemaakt van een eenrichtingscirculatiesysteem, waarbij alle bochten linksdraaiend zijn uitgevoerd. Daarnaast bieden twee afzonderlijke hellingbanen in het midden van de parkeergarage automobilisten de mogelijkheid om snel te stijgen of dalen.
De parkeergarage wordt dit jaar gerealiseerd. De bouw ligt in handen van
Ballast Nedam
, die samen met wUrck de tender voor het ontwerp en de realisatie van het gebouw heeft gewonnen.
Trefwoorden
parkeren
parkeergarage
wurck
demontabel
tu delft
ballast nedam
Locatie
Best gelezen
1
Woontoren Front door Monadnock wint tiende Architectuurprijs Nijmegen
donderdag, 9 april
2
Spoorwegverleden inspireert ontwerp woonblok Wisselspoor 10 in Utrecht
woensdag, 8 april
3
Rotterdam mag woningen gaan bouwen aan de Parkhaven
woensdag, 8 april
4
SeARCH en Heutink Groep winnen tender voor woongebouw Sluisbuurt
vrijdag, 10 april
5
KOW wint met Marker Woods tender voor nieuwe wijk Eschmarkerveld
woensdag, 8 april
Gerelateerde nieuwsberichten
Kerckebosch Zeist uitgeroepen tot meest natuurinclusieve wijk
15 april 2019
Demontabel parkeergebouw erbij voor campus TU Delft
12 juli 2021
Q-Park laat Groningse parkeergarage tien centimeter zakken
6 november 2020
'Parkeergarages kampen met leegstand'
21 augustus 2020
Campus TU Delft krijgt gebouw voor doorgroeiende jonge bedrijven
15 juni 2020
Landschappelijke brug als sluitstuk Groene Corridor Oirschot
28 mei 2020
Robuuste parkeergarage met tactiele gevel voor Oostenburg Amsterdam
22 april 2020
TNO bouwt lab voor bouwinnovatie op campus TU Delft
23 maart 2020
Royal HaskoningDHV vestigt zich in oude faculteit Mijnbouw Delft
3 maart 2020
Circulair onderkomen voor Firma van Buiten op campus TU Delft
18 februari 2020
Tako Postma nieuwe stadsbouwmeester van Delft
27 september 2019
Kantoor wUrck verbouwd en uitgebreid
5 september 2019
Bouwbedrijf Ballast Nedam ligt goed op koers
3 september 2019
Gemeente Amsterdam gaat minder parkeervergunningen uitgeven
29 maart 2019
Gebouwen als 'kiezels en schelp' voor Park 16Hoven
27 maart 2019
Fietsenstalling en ontmoetingsplaats voor campus TU Delft
21 maart 2019
Amstelveen krijgt luxe appartementencomplex op parkeergebouw
19 december 2018
Verslag netwerkevent: zit er een bovengrens aan de omvang van fietsparkeergarages?
7 december 2018
Sport- en cultuurgebouw X van de TU Delft geopend
26 september 2018
Bouw ondergrondse fietsenstalling bij Amsterdam CS gestart
13 september 2018
Parkeergarage met uitstraling van woongebouw
22 juni 2018
Fietsparkeergarage onder Vijfhoek Amsterdam geopend
23 mei 2018
Energieneutrale parkeergarage voor Driebergen-Zeist
29 november 2017
Leiden heeft nu diepste parkeergarage
24 april 2017
Parkeergebouw als visitekaartje voor hospitaal
8 maart 2017
Parkeergebouw achter houten lamellen
7 maart 2017
Kerckebosch Zeist uitgeroepen tot meest natuurinclusieve wijk
15 april 2019
Demontabel parkeergebouw erbij voor campus TU Delft
12 juli 2021
Q-Park laat Groningse parkeergarage tien centimeter zakken
6 november 2020
'Parkeergarages kampen met leegstand'
21 augustus 2020
Campus TU Delft krijgt gebouw voor doorgroeiende jonge bedrijven
15 juni 2020
Landschappelijke brug als sluitstuk Groene Corridor Oirschot
28 mei 2020
Robuuste parkeergarage met tactiele gevel voor Oostenburg Amsterdam
22 april 2020
TNO bouwt lab voor bouwinnovatie op campus TU Delft
23 maart 2020
Royal HaskoningDHV vestigt zich in oude faculteit Mijnbouw Delft
3 maart 2020
Circulair onderkomen voor Firma van Buiten op campus TU Delft
18 februari 2020
Tako Postma nieuwe stadsbouwmeester van Delft
27 september 2019
Kantoor wUrck verbouwd en uitgebreid
5 september 2019
Bouwbedrijf Ballast Nedam ligt goed op koers
3 september 2019
Gemeente Amsterdam gaat minder parkeervergunningen uitgeven
29 maart 2019
Gebouwen als 'kiezels en schelp' voor Park 16Hoven
27 maart 2019
Fietsenstalling en ontmoetingsplaats voor campus TU Delft
21 maart 2019
Amstelveen krijgt luxe appartementencomplex op parkeergebouw
19 december 2018
Verslag netwerkevent: zit er een bovengrens aan de omvang van fietsparkeergarages?
7 december 2018
Sport- en cultuurgebouw X van de TU Delft geopend
26 september 2018
Bouw ondergrondse fietsenstalling bij Amsterdam CS gestart
13 september 2018
Parkeergarage met uitstraling van woongebouw
22 juni 2018
Fietsparkeergarage onder Vijfhoek Amsterdam geopend
23 mei 2018
Energieneutrale parkeergarage voor Driebergen-Zeist
29 november 2017
Leiden heeft nu diepste parkeergarage
24 april 2017
Parkeergebouw als visitekaartje voor hospitaal
8 maart 2017
Parkeergebouw achter houten lamellen
7 maart 2017
Toon alles
Andere nieuwsberichten
Architect Cees Dam op 93-jarige leeftijd overleden
Gisteren, 14:35
De oprichter van Dam & Partners architecten ontwierp onder meer de Stopera in Amsterdam (samen met Wilhelm Holzbauer), het stadhuis van Almere en het Huis van de Toekomst in Rosmalen.
Powerhouse Company wint aanbesteding voor verbouwing Vista College Maastricht
Gisteren, 12:16
Het onderkomen van de mbo-school wordt gerenoveerd en uitgebreid met een houten gebouwdeel, dat onder meer de nieuwe hoofdentree en twee atria bevat. Ook moet de nieuwbouw de bestaande gebouwen beter met elkaar verbinden.
Stedelijk Museum organiseert tentoonstelling over ontwerper Kho Liang Ie
Gisteren, 10:52
Met zijn ontwerpen voor meubels en interieurs van de jaren vijftig tot zijn dood halverwege de jaren zeventig nam Kho een centrale positie in binnen de Nederlandse vormgeving. Vermaard is onder meer zijn inrichting van luchthaven Schiphol.
Restauratie Atlasbeeld op dak Koninklijk Paleis Amsterdam afgerond
10 april, 3:38
Het beeld op het fronton van het paleis was in juli van zijn plek gehaald voor een uitgebreide onderhoudsbeurt in Antwerpen.
AFM: funderingsproblemen bij bijna 220.000 woningen
Gisteren, 13:25
De huizen van bijna een half miljoen woningeigenaren hebben een hoog risico op funderingsproblemen of een mogelijke kwetsbare fundering.
Oprichter omgevallen vastgoedconcern Evergrande bekent schuld
Gisteren, 09:17
Evergrande was ooit de grootste projectontwikkelaar van China, maar kwam in de problemen toen het zijn schulden niet kon terugbetalen.
Grote en kleine gemeenten balen van bouwregels Zuid-Holland
10 april, 4:31
Grote en kleine gemeenten in Zuid-Holland hebben hun zorgen geuit over nieuwe regels van de provincie, die volgens hen de woningbouw belemmeren.
Twijfels in Zuid-Holland over halen van doelen landelijk gebied
10 april, 12:18
De meeste partijen in de Zuid-Hollandse politiek hebben twijfels over de plannen die in zestien deelgebieden zijn gemaakt voor de aanpak van het landelijk gebied.
Huurprijzen stijgen harder dan koopwoningprijzen
10 april, 9:31
Volgens Huurwoningen.nl en Pararius moesten nieuwe huurders in het eerste kwartaal gemiddeld 21,12 euro per vierkante meter per maand neerleggen.
ABN AMRO: investeringen defensie vergroten druk op bouwcapaciteit
9 april, 12:29
Kazernes, opslagplaatsen en oefenterreinen dingen om dezelfde aannemers, ingenieurs en installateurs die ook nodig zijn voor bijvoorbeeld woningbouw.
Ga naar het nieuws-archief
Ronnie Weessies
Redacteur
0
0
0
0
Voor een optimale gebruikservaring plaatst Architectenweb functionele cookies. Wat de verschillende cookies precies doen leggen we uit in een
overzicht
. Cookies van social media kun je optioneel
aanzetten
.
Akkoord
Instellingen
Annuleren
OK
Sluiten
Doorgaan
Inloggen
Maak een gratis persoonlijk account aan
Feedback
Feedback
Wij horen graag jouw feedback. Laat je reactie achter en eventueel jouw e-mail adres.
Reactie
Verstuur