Projecten
Producten
Bedrijven
Vacatures
Agenda
Awards
Podcasts
more_horiz
Videos
Magazine
Favorieten
Profiel
Uitloggen
Abonneer je nu op onze nieuwsbrieven!
Abonneren
Nee, bedankt
Ja, denk met me mee rond de
materialisering van mijn project
Copyright: Jan de Vries
Copyright: Jan de Vries
Copyright: Jan de Vries
Copyright: Jan de Vries
Copyright: Jan de Vries
Copyright: Jan de Vries
Copyright: Jan de Vries
Copyright: Jan de Vries
Copyright: Jan de Vries
Copyright: Jan de Vries
Copyright: Jan de Vries
Copyright: Jan de Vries
Copyright: Jan de Vries
Copyright: Jan de Vries
Copyright: Jan de Vries
Doorsnede I
Copyright: wUrck
Doorsnede II
Copyright: wUrck
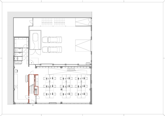
Plattegrond begane grond
Copyright: wUrck
Plattegrond eerste verdieping
Copyright: wUrck
Plattegrond tweede verdieping (uitbreiding)
Copyright: wUrck
Kantoor wUrck verbouwd en uitgebreid
5 september 2019, 11:37
Architectenbureau
wUrck
heeft zijn eigen kantoor aan de Sluisjesdijk in Rotterdam verbouwd en uitgebreid met een extra verdieping. De twee bestaande verdiepingen zijn beter verbonden via een vide met een stalen steektrap, terwijl een oranje kern voor een terugkerend kleuraccent op alle verdiepingen zorgt.
Wurck is gevestigd in een industrieel ogend pand uit 1959, met zicht op de Nieuwe Maas. Door de gestage groei van het bureau waren de ontwerpers verspreid geraakt over de twee verdiepingen van het gebouw. De nieuwe vide met steektrap verbindt beide verdiepingen en grenst aan een veertien meter brede en 4,5 meter hoge boekenkast, die als doorlopend element helpt beide verdiepingen op elkaar te betrekken.
Een andere blikvanger in het interieur is de drie verdiepingen hoge kern, die is uitgevoerd in de oranje huiskleur van het bureau. Naast dat de kern voor herkenbaarheid en een zekere mate van uniformiteit op alle verdiepingen zorgt, huisvest deze het hoofdtrappenhuis, de garderobe, een pantry, inbouwkasten en installatieruimten.
Extra verdieping
De extra verdieping op het dak contrasteert in materiaalgebruik met de rest van het pand. De verdiepingshoge glaswanden, de verzinkt stalen liggers en de stalen plankprofielen zoeken aansluiting bij de esthetiek van de kranen die hier in de Waalhaven overal boven de daken uitsteken. De verdieping biedt plaats aan een grote vergaderruimte, een keuken en een riante ‘huiskamer’ waar de gezamenlijke lunches worden genuttigd.
Een schuifpui biedt toegang tot het met een houten vloer uitgevoerde dakterras. Het uitzicht is met de nieuwe verdieping rianter geworden: door de extra hoogte is niet meer alleen aan de noordzijde de Nieuwe Maas met de skyline van Rotterdam te bewonderen, maar kan nu ook aan de zuidzijde uitgekeken worden over de Waalhaven. Met de extra verdieping is het aantal werkplekken uitgebreid van 24 naar 30.
Op de begane grond is meer ruimte ontstaan voor de maquettewerkplaats, de reproruimte en het archief. De aanpalende industriële loods is ook bij het kantoor getrokken. Deze wordt gebruikt als parkeergarage voor fietsen en elektrische auto’s. De auto’s kunnen hier ook opgeladen worden en voor fietsforenzen is er op de begane grond een doucheruimte.
Opvallende stilteruimte
In de loods wordt verder een opvallende stilteruimte gerealiseerd (hij is nog niet af). Medewerkers kunnen discreet en/of geconcentreerd werken in een houten en organisch vormgegeven ruimte, die is opgebouwd als een parametrische 3D-puzzel en is samengesteld uit achthonderd stukjes in 111 aan elkaar geschroefde secties. Voor het ontwerp was onder het personeel van wUrck een wedstrijd uitgeschreven.
Bij de verbouwing is het energielabel opgeschroefd van G naar A++. Er is nageïsoleerd, de verlichting bestaat uitsluitend nog uit LEDs, drie warmtepompen vervangen de gasaansluiting, ventilatie gebeurt via een WTW-unit en alle geschikte dakoppervlakken zijn voorzien van PV-panelen, laat wUrck weten.
Trefwoorden
rotterdam
uitbreiding
verbouwing
wurck
kantoor
Locatie
Best gelezen
1
44 woningen op bosrijke locatie in Driebergen
vrijdag, 15 mei
2
Parkeerplein naast Tilburgse schouwburg maakt plaats voor multifunctionele gebouwen
woensdag, 13 mei
3
'Zwevend huis' naar ontwerp van Benthem Crouwel in Amersfoortse wijk
woensdag, 13 mei
4
Schoonhovens College van Geurst & Schulze architecten stimuleert vakmanschap, ontmoeting en leerprestaties
dinsdag, 12 mei
5
Zijn tenders in Duitsland beter geregeld dan in Nederland?
dinsdag, 12 mei
Gerelateerde nieuwsberichten
Twee nieuwe partners voor wUrck
21 september 2023
Vijftien woningen losjes geplaatst in parkachtige omgeving
7 februari 2023
Negen levensloopbestendige patiowoningen voor Kerckebosch Zeist
24 augustus 2021
Demontabel parkeergebouw erbij voor campus TU Delft
12 juli 2021
Landschappelijke brug als sluitstuk Groene Corridor Oirschot
28 mei 2020
Kerckebosch Zeist uitgeroepen tot meest natuurinclusieve wijk
15 april 2019
Gebouwen als 'kiezels en schelp' voor Park 16Hoven
27 maart 2019
Demontabele parkeergarage met groene gevels voor TU Delft
15 februari 2019
Bouw ondergrondse fietsenstalling bij Amsterdam CS gestart
13 september 2018
wUrck wint competitie voor brug in Almere
30 augustus 2018
Fietsparkeergarage onder Vijfhoek Amsterdam geopend
23 mei 2018
Voormalig klooster wordt zelfvoorzienende oase
31 oktober 2017
Stationsgebied Bergen op Zoom gerevitaliseerd
12 juni 2017
Twee nieuwe partners voor wUrck
21 september 2023
Vijftien woningen losjes geplaatst in parkachtige omgeving
7 februari 2023
Negen levensloopbestendige patiowoningen voor Kerckebosch Zeist
24 augustus 2021
Demontabel parkeergebouw erbij voor campus TU Delft
12 juli 2021
Landschappelijke brug als sluitstuk Groene Corridor Oirschot
28 mei 2020
Kerckebosch Zeist uitgeroepen tot meest natuurinclusieve wijk
15 april 2019
Gebouwen als 'kiezels en schelp' voor Park 16Hoven
27 maart 2019
Demontabele parkeergarage met groene gevels voor TU Delft
15 februari 2019
Bouw ondergrondse fietsenstalling bij Amsterdam CS gestart
13 september 2018
wUrck wint competitie voor brug in Almere
30 augustus 2018
Fietsparkeergarage onder Vijfhoek Amsterdam geopend
23 mei 2018
Voormalig klooster wordt zelfvoorzienende oase
31 oktober 2017
Stationsgebied Bergen op Zoom gerevitaliseerd
12 juni 2017
Toon alles
Andere nieuwsberichten
KAAN Architecten en TU Delft presenteren boek Building Narratives
Vandaag, 14:38
Hoe kunnen verhalen het ontwerp kunnen sturen en vormgeven, in plaats van slechts als vertelmiddel te dienen? Die vraag staat centraal in het boek 'Building Narratives. Instances from the Architecture of Dialogue'.
Amsterdam start selectie voor circulair en gestapeld bedrijfsgebouw langs A5
Vandaag, 12:20
De gemeente Amsterdam is een selectieprocedure gestart voor de bouw van een gestapeld en circulair bedrijfsgebouw in Sloterijk Poort Noord.
Noordbrabants Museum zoekt jonge architect voor herinrichting vaste collectiepresentatie
Vandaag, 10:41
Het Noordbrabants Museum in Den Bosch zoekt een jonge architect voor de herinrichting van diens vaste collectiepresentatie. Daartoe heeft het museum een open call uitgeschreven.
Stuur nu jullie project in voor de prijs voor Kantoorgebouw van het Jaar 2026
Vandaag, 09:00
Hebben jullie een kantoorgebouw in Nederland ontworpen dat in de periode van 1 september 2025 tot en met 31 augustus 2026 opgeleverd of voltooid is? Stuur dat dan nu in voor de Architectenweb Awards 2026! Deadline is 19 juni 2026.
Eneco pleit voor voldoende marktwerking in de energietransitie
4 uur geleden
Aanleiding voor de oproep van het energiebedrijf is de steeds grotere rol van de overheid in de productie van energie.
Nationaal Park Utrechtse Heuvelrug wordt twee keer zo groot
Vandaag, 13:19
Minister Van Essen heeft besloten om na het zuidelijke deel ook het noorden van het gebied de officiële status van Nationaal Park te geven.
BPD en Rabobank stimuleren biobased woningbouw en drinkwaterbesparing
Vandaag, 11:47
BPD en Rabobank kondigen de bouwstart aan van 160 nieuwbouwwoningen met biobased materialen en drinkwaterbesparende technieken.
ITA Ensemble speelt 'De Architect' van sterregisseur Rebecca Frecknall
15 mei, 3:11
De voorstelling is een hedendaagse bewerking van Henirik Ibsens 'Bouwmeester Solness'.
Commissie: milieustudie Schiphol schiet tekort voor omwonenden
15 mei, 12:08
De Commissie voor de milieueffectrapportage stelt zelfs dat het rapport herzien zou moeten worden.
Koen Pörtzgen benoemd tot partner bij Zecc Architecten
15 mei, 10:15
Samen met Marnix van der Meer (54) en Bart Kellerhuis (47) vormt de 39-jarige Pörtzgen vanaf dit jaar de directie van het Utrechtse bureau.
Ga naar het nieuws-archief
Ronnie Weessies
Redacteur
2
0
0
0
Voor een optimale gebruikservaring plaatst Architectenweb functionele cookies. Wat de verschillende cookies precies doen leggen we uit in een
overzicht
. Cookies van social media kun je optioneel
aanzetten
.
Akkoord
Instellingen
Annuleren
OK
Sluiten
Doorgaan
Inloggen
Maak een gratis persoonlijk account aan
Feedback
Feedback
Wij horen graag jouw feedback. Laat je reactie achter en eventueel jouw e-mail adres.
Reactie
Verstuur