Projecten
Producten
Bedrijven
Vacatures
Agenda
Awards
Podcasts
more_horiz
Videos
Magazine
Favorieten
Profiel
Uitloggen
Abonneer je nu op onze nieuwsbrieven!
Abonneren
Nee, bedankt
Ja, denk met me mee rond de
materialisering van mijn project
Copyright: Thijs Wolzak
Copyright: Thijs Wolzak
Copyright: Thijs Wolzak
Copyright: Thijs Wolzak
Copyright: Thijs Wolzak
Copyright: Thijs Wolzak
Copyright: Thijs Wolzak
Copyright: Moke Architecten
Copyright: Moke Architecten
Copyright: Moke Architecten
Copyright: Moke Architecten
Copyright: Moke Architecten
Copyright: Moke Architecten
Een chalet, maar dan heel anders
23 oktober 2017, 12:40
Aan de rand van het bos, in het Noord-Hollandse dorp Bakkum, heeft
Moke Architecten
een lichte villa ontworpen die zijn buitenruimte omarmd. In antwoord op de gemeentelijke eis dat het een ‘chalet’ moest worden, beantwoorde het architectenbureau met een ontwerp dat aan dat thema een heel eigentijdse invulling geeft.
Even boven Amsterdam, net ten westen van Castricum, ligt het dorp Bakkum. Dicht bij de zee, op de uitlopers van de duinen, aan de rand van een Natura 2000 gebied is hier een villa ontworpen met drie vleugels, een verbindende centrale hal en een minimalistisch interieur.
De gemeente besloot in 2010 om het terrein, waar ooit een psychiatrisch ziekenhuis stond, te herontwikkelen met een aantal chaletachtige woningen. Ook voor deze villa gold dat deze qua uitstraling aan een chalet moest doen denken. De gevel van de villa aan de boszijde heeft Moke Architecten daarom in Meranti-hout uitgevoerd. De andere gevels hebben een nieuw baksteenverband gekregen met een horizontaal reliëf. In de winter blijft er sneeuw op die baksteenranden liggen.
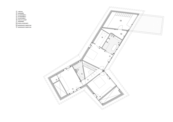
Drie vleugels
Het woonhuis kreeg een hoge, driehoekige hal met trappenhuis in het hart. Van daaruit lopen de drie woonvleugels uit in een woonruimte, een werkgedeelte en het keukendeel met garage. Deze driedeling trekt de buitenruimte rondom het huis volgens het architectenbureau gevoelsmatig naar binnen; vanuit de woonkamer is de werkruimte direct zichtbaar, met de tuin op de voorgrond.
“De dakramen bovenin de hal laten het licht zacht door tot in het centrum van het woonhuis”, meldt Moke Architecten. “De grote glazen pui aan de boszijde van het huis en de grote glazen schuifdeuren zorgen verder voor de frisse atmosfeer die openheid, ruimte en rust uitademt. Neem daarbij het uitzicht op de bosrijke duinen en de tuin die zo overloopt in het natuurgebied en je zou denken dat je geheel buiten woont.”
Minimalistisch interieur
Het interieur is strak. Binnenshuis liggen vlakke vloeren zonder drempels of plinten. De onderdorpels van de ramen zijn weggewerkt. De trap sluit naadloos aan op de muren en vloeren, en zelfs de schuifdeuren naar de woonkamer en keuken verdwijnen onzichtbaar in de muren als ze open staan.
Als verwijzing naar het chaletachtige is tenslotte in de slaapkamers wel weer de houten dakconstructie zichtbaar gelaten. Het is geen typische chalet, maar een eigentijdse variant hierop.
Trefwoorden
gianni cito
chalet
villa
villa bakkum
moke architecten
bakkum
Best gelezen
1
Woontoren Front door Monadnock wint tiende Architectuurprijs Nijmegen
donderdag, 9 april
2
Spoorwegverleden inspireert ontwerp woonblok Wisselspoor 10 in Utrecht
woensdag, 8 april
3
Rotterdam mag woningen gaan bouwen aan de Parkhaven
woensdag, 8 april
4
SeARCH en Heutink Groep winnen tender voor woongebouw Sluisbuurt
vrijdag, 10 april
5
KOW wint met Marker Woods tender voor nieuwe wijk Eschmarkerveld
woensdag, 8 april
Gerelateerde nieuwsberichten
Winkel- en wooncomplex De Gaard in Utrecht uitgebreid en opgefrist
13 juli 2020
Moke Architecten ontwerpt nieuwe havengebouwen tegenover Muiderslot
16 december 2021
Jurgen ten Hoeve derde partner bij Moke Architecten
12 juli 2021
Bouwstart in Benin van groot conferentieoord naar ontwerp Moke Architecten
8 april 2021
Metamorfose voor jaren 60-bungalow
26 november 2018
Villa uit geometrische volumes in natuurlijk landschap
18 juli 2018
Woonhuis met sterke relatie tussen binnen en buiten
22 maart 2018
Wonen en leren op voormalige NDSM-werf
1 november 2016
Opgaven scholenbouw centraal op congres Architectenweb
17 mei 2016
Moke Architecten wint prijsvraag HIC IJmuiden
16 december 2015
Kleuterschool in en rond oud gemeentehuis Bonheiden
19 februari 2015
“We hebben het opgevat als een landschappelijke opgave”
29 januari 2013
Cito en Grooteman weg bij Dok architecten
9 januari 2012
Winkel- en wooncomplex De Gaard in Utrecht uitgebreid en opgefrist
13 juli 2020
Moke Architecten ontwerpt nieuwe havengebouwen tegenover Muiderslot
16 december 2021
Jurgen ten Hoeve derde partner bij Moke Architecten
12 juli 2021
Bouwstart in Benin van groot conferentieoord naar ontwerp Moke Architecten
8 april 2021
Metamorfose voor jaren 60-bungalow
26 november 2018
Villa uit geometrische volumes in natuurlijk landschap
18 juli 2018
Woonhuis met sterke relatie tussen binnen en buiten
22 maart 2018
Wonen en leren op voormalige NDSM-werf
1 november 2016
Opgaven scholenbouw centraal op congres Architectenweb
17 mei 2016
Moke Architecten wint prijsvraag HIC IJmuiden
16 december 2015
Kleuterschool in en rond oud gemeentehuis Bonheiden
19 februari 2015
“We hebben het opgevat als een landschappelijke opgave”
29 januari 2013
Cito en Grooteman weg bij Dok architecten
9 januari 2012
Toon alles
Andere nieuwsberichten
Architect Cees Dam op 93-jarige leeftijd overleden
Gisteren, 14:35
De oprichter van Dam & Partners architecten ontwierp onder meer de Stopera in Amsterdam (samen met Wilhelm Holzbauer), het stadhuis van Almere en het Huis van de Toekomst in Rosmalen.
Powerhouse Company wint aanbesteding voor verbouwing Vista College Maastricht
Gisteren, 12:16
Het onderkomen van de mbo-school wordt gerenoveerd en uitgebreid met een houten gebouwdeel, dat onder meer de nieuwe hoofdentree en twee atria bevat. Ook moet de nieuwbouw de bestaande gebouwen beter met elkaar verbinden.
Stedelijk Museum organiseert tentoonstelling over ontwerper Kho Liang Ie
Gisteren, 10:52
Met zijn ontwerpen voor meubels en interieurs van de jaren vijftig tot zijn dood halverwege de jaren zeventig nam Kho een centrale positie in binnen de Nederlandse vormgeving. Vermaard is onder meer zijn inrichting van luchthaven Schiphol.
Restauratie Atlasbeeld op dak Koninklijk Paleis Amsterdam afgerond
10 april, 3:38
Het beeld op het fronton van het paleis was in juli van zijn plek gehaald voor een uitgebreide onderhoudsbeurt in Antwerpen.
AFM: funderingsproblemen bij bijna 220.000 woningen
Gisteren, 13:25
De huizen van bijna een half miljoen woningeigenaren hebben een hoog risico op funderingsproblemen of een mogelijke kwetsbare fundering.
Oprichter omgevallen vastgoedconcern Evergrande bekent schuld
Gisteren, 09:17
Evergrande was ooit de grootste projectontwikkelaar van China, maar kwam in de problemen toen het zijn schulden niet kon terugbetalen.
Grote en kleine gemeenten balen van bouwregels Zuid-Holland
10 april, 4:31
Grote en kleine gemeenten in Zuid-Holland hebben hun zorgen geuit over nieuwe regels van de provincie, die volgens hen de woningbouw belemmeren.
Twijfels in Zuid-Holland over halen van doelen landelijk gebied
10 april, 12:18
De meeste partijen in de Zuid-Hollandse politiek hebben twijfels over de plannen die in zestien deelgebieden zijn gemaakt voor de aanpak van het landelijk gebied.
Huurprijzen stijgen harder dan koopwoningprijzen
10 april, 9:31
Volgens Huurwoningen.nl en Pararius moesten nieuwe huurders in het eerste kwartaal gemiddeld 21,12 euro per vierkante meter per maand neerleggen.
ABN AMRO: investeringen defensie vergroten druk op bouwcapaciteit
9 april, 12:29
Kazernes, opslagplaatsen en oefenterreinen dingen om dezelfde aannemers, ingenieurs en installateurs die ook nodig zijn voor bijvoorbeeld woningbouw.
Ga naar het nieuws-archief
1
0
0
0
Voor een optimale gebruikservaring plaatst Architectenweb functionele cookies. Wat de verschillende cookies precies doen leggen we uit in een
overzicht
. Cookies van social media kun je optioneel
aanzetten
.
Akkoord
Instellingen
Annuleren
OK
Sluiten
Doorgaan
Inloggen
Maak een gratis persoonlijk account aan
Feedback
Feedback
Wij horen graag jouw feedback. Laat je reactie achter en eventueel jouw e-mail adres.
Reactie
Verstuur