Projecten
Producten
Bedrijven
Vacatures
Agenda
Awards
Podcasts
more_horiz
Videos
Magazine
Favorieten
Profiel
Uitloggen
Abonneer je nu op onze nieuwsbrieven!
Abonneren
Nee, bedankt
Ja, denk met me mee rond de
materialisering van mijn project
Copyright: Thijs Wolzak
Copyright: Thijs Wolzak
Copyright: Thijs Wolzak
Copyright: Thijs Wolzak
Copyright: Thijs Wolzak
Copyright: Thijs Wolzak
Copyright: Thijs Wolzak
Copyright: Thijs Wolzak
Copyright: Thijs Wolzak
Copyright: Thijs Wolzak
Copyright: Thijs Wolzak
Copyright: Thijs Wolzak
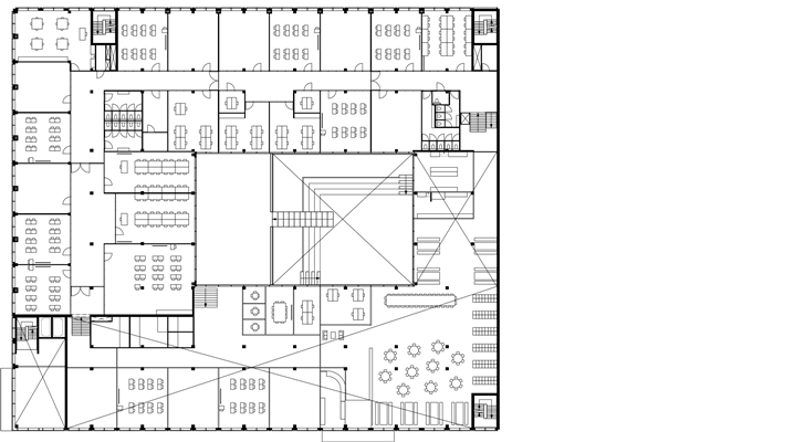
Copyright: Begande grond. Moke Architecten
Copyright: Eerste verdieping. Moke Architecten
Copyright: Tweede verdieping. Moke Architecten
Copyright: Zuidgevel. Moke Architecten
Copyright: Noordgevel. Moke Architecten
Copyright: Westgevel. Moke Architecten
Copyright: Doorsnede. Moke Architecten
Copyright: Situatie. Moke Architecten
Wonen en leren op voormalige NDSM-werf
1 november 2016, 15:09
Op het NDSM-terrein in Amsterdam-Noord is onderwijs- en wooncluster NieuwDok opgeleverd. Het gebouw, dat onder andere 380 studentenwoningen omvat, is ontworpen door
Moke Architecten
.
In de gebiedsvisie voor de herbestemming van het voormalige NDSM-terrein heeft de gemeente Amsterdam steeds de wens gehad wonen te mengen met andere functies. De gemeente wilde bijvoorbeeld het gebied voorzien van maatschappelijke en onderwijsfuncties zoals een ROC.
Programma
De realisatie van NieuwDok geeft een invulling aan deze behoefte en komt tegelijkertijd tegemoet aan de vraag naar kwalitatief goede studentenhuisvesting. Dit nieuwe onderwijs- en wooncluster biedt in totaal 20.000 m² BVO, verdeeld over zeven lagen.
De eerste twee lagen van het gebouw bieden ruimte aan een school van ROC TOP. Daarboven liggen 380 studentenwoningen, verdeeld over vijf bouwlagen. De studio’s, variërend van 23 tot 27 m², zijn uitgerust met een eigen keuken, douche en toilet. De studenten kunnen daarnaast gebruik maken van een wasserette en een gezamenlijke buitenruimte in de patio van het gebouw.
Glazen gevels
Moke Architecten heeft het gebouw ontworpen met een duidelijke architectonische tweedeling. De plint bestaat uit hoge betonnen cassettes met het profiel naar buiten, gecombineerd met grote glaspartijen. De gevel van de etages erboven is opgebouwd uit individuele, in diepte variërende cassettes.
De cassettes staan in een lichte hoek, met de pui richting het uitzicht en de gesloten kant naar de geluidsluwe zijde. Via de onderzijde en de zijkant wordt geventileerd, terwijl het glas een geluidsgevel vormt. Tezamen vormen de cassettes een subtiel reliëf, legt Moke Architecten uit.
De buitenruimte ligt centraal in het blok. Dit hof is ingetogen gematerialiseerd met een grote rol voor bamboe en steen. Het hof is intiem op de begane grond en wordt trapsgewijs naar boven steeds groter.
Ontwikkeling
NieuwDok is ontwikkeld door Amsterdam Waterfront (bestaande uit Biesterbos en Reggeborgh). Eigenaar is IC Netherlands en huurder is DUWO. Het gebouw is 1 september opgeleverd; Moke Architecten presenteert nu de foto’s van het project.
Trefwoorden
schoolgebouw
studentenhuisvesting
studentenwoningen
amsterdam
ndsm-terrein
amsterdam-noord
school
roc
moke architecten
Best gelezen
1
AM en Amvest zoeken architecten voor herontwikkeling Draka-terrein
dinsdag, 19 mei
2
Woningbouwproject KAAP langs het IJ in Amsterdam voltooid
dinsdag, 19 mei
3
Renovatie station Leeuwarden door Movares afgerond
woensdag, 20 mei
4
Dam & Partners ontwerpt multifunctioneel gebouw in Schinkelhaven
dinsdag, 19 mei
5
Utrechtse flats gerenoveerd volgens 'chassis-carrosseriemethode'
donderdag, 21 mei
Gerelateerde nieuwsberichten
Winkel- en wooncomplex De Gaard in Utrecht uitgebreid en opgefrist
13 juli 2020
Gevarieerde architectuur voor grootschalige woongebouw
19 augustus 2019
Bouw project Binnendok op NDSM-werf gaat van start
10 maart 2021
Bouw Pontkade Fase 3 op NDSM-terrein gestart
18 februari 2020
Tijdelijk kunstenaarsdorp op NDSM-werf krijgt vorm
9 december 2019
Loods met kantoor voor jachtbouwer NDSM-werf
14 juni 2018
Bouw Het Dok op NDSM-terrein dit jaar van start
10 januari 2018
Een chalet, maar dan heel anders
23 oktober 2017
Studentenhuisvesting in centrum Rotterdam
26 juni 2017
309 starterswoningen op de NDSM-werf
15 juni 2017
Nieuw studentencomplex voor Utrecht Overvecht
1 juni 2017
Studententoren op oud KPN-terrein Utrecht
1 mei 2017
Nieuwe studententoren voor DUWO in Den Haag
29 maart 2017
Zevenhonderd woningen voor NDSM-werf
7 maart 2017
Schoolgebouw als rood accent in de wijk
31 mei 2016
Moke Architecten wint prijsvraag HIC IJmuiden
16 december 2015
Grote bouwprojecten Amsterdam van start
18 juni 2015
Winkel- en wooncomplex De Gaard in Utrecht uitgebreid en opgefrist
13 juli 2020
Gevarieerde architectuur voor grootschalige woongebouw
19 augustus 2019
Bouw project Binnendok op NDSM-werf gaat van start
10 maart 2021
Bouw Pontkade Fase 3 op NDSM-terrein gestart
18 februari 2020
Tijdelijk kunstenaarsdorp op NDSM-werf krijgt vorm
9 december 2019
Loods met kantoor voor jachtbouwer NDSM-werf
14 juni 2018
Bouw Het Dok op NDSM-terrein dit jaar van start
10 januari 2018
Een chalet, maar dan heel anders
23 oktober 2017
Studentenhuisvesting in centrum Rotterdam
26 juni 2017
309 starterswoningen op de NDSM-werf
15 juni 2017
Nieuw studentencomplex voor Utrecht Overvecht
1 juni 2017
Studententoren op oud KPN-terrein Utrecht
1 mei 2017
Nieuwe studententoren voor DUWO in Den Haag
29 maart 2017
Zevenhonderd woningen voor NDSM-werf
7 maart 2017
Schoolgebouw als rood accent in de wijk
31 mei 2016
Moke Architecten wint prijsvraag HIC IJmuiden
16 december 2015
Grote bouwprojecten Amsterdam van start
18 juni 2015
Toon alles
Andere nieuwsberichten
SOME architects presenteert resultaten van onderzoek naar woonwensen 55-plussers
22 mei, 4:09
Publicatie ‘Woontitanen’ biedt inspiratie en handvatten om kloof tussen vraag en aanbod in woningaanbod voor 55-plussers te dichten.
In beeld: inschuiven dakdeel van 2,4 miljoen kilo over Vivaldipassage
22 mei, 2:43
Bij station Amsterdam Zuid vond afgelopen week een bijzondere inschuifoperatie plaats. Ten oosten van het station werd een nieuw dakdeel met een gewicht van 2,4 miljoen kilo over de toekomstige Vivalipassage geschoven.
Brug van hergebruikte materialen over Papaverkanaal in Buiksloterham
22 mei, 1:15
Knipscheer Infra en Rademacher / De Vries Architecten hebben de aanbesteding gewonnen voor een brug van hergebruikte materialen in de Amsterdamse wijk Buiksloterham.
OZ transformeert kantoorgebouw achter voormalig hoofdkantoor Shell tot Ypsilon Park
22 mei, 10:41
OZ transformeert een kantoorgebouw uit de jaren zeventig aan de Wassenaarseweg in Den Haag tot een woongebouw. Ypsilon Park bestaat uit 79 appartementen en penthouses, die in grootte variëren van 75 tot 280 vierkante meter.
Amsterdam wil woningbezitters weren uit sociale huurwoning
22 mei, 12:23
Het stadsbestuur wil daarmee duidelijk maken dat het onwenselijk is dat huizenbezitters sociale huurwoningen bezet houden.
Mogelijk minder ruimte nodig voor uitbreidingsplannen Moerdijk
22 mei, 9:47
Het dorp Moerdijk zou in dat geval kunnen blijven bestaan, aldus de gemeente.
Museum Rotterdam ontvangt sleutels van Citykerk Het Steiger
21 mei, 3:01
Citykerk Het Steiger, een wederopbouwmonument in de Rotterdamse binnenstad, ondergaat in de komende jaren een transformatie naar onderkomen voor Museum Rotterdam, alsook naar woon- en kantoorruimte.
Naturalis: Nederlandse natuur verbetert, maar niet snel genoeg
21 mei, 1:50
Het gaat beter met de natuur in Nederland, maar niet snel genoeg om aan afspraken te voldoen.
Bouw van flexwoningen valt tegen, ziet Rekenkamer
21 mei, 9:50
De 948 miljoen euro die sinds 2021 opzij is gezet om meer flexwoningen te bouwen, is pas deels uitgegeven.
Binnenhof al bij voorbaat te klein voor alle organisaties
20 mei, 2:47
Nog voordat de verbouwing van het Binnenhof klaar is, is het complex te klein voor alle organisaties die erin moeten.
Ga naar het nieuws-archief
1
0
0
0
Voor een optimale gebruikservaring plaatst Architectenweb functionele cookies. Wat de verschillende cookies precies doen leggen we uit in een
overzicht
. Cookies van social media kun je optioneel
aanzetten
.
Akkoord
Instellingen
Annuleren
OK
Sluiten
Doorgaan
Inloggen
Maak een gratis persoonlijk account aan
Feedback
Feedback
Wij horen graag jouw feedback. Laat je reactie achter en eventueel jouw e-mail adres.
Reactie
Verstuur