Abonneer je nu op onze nieuwsbrieven!
Abonneren
Nee, bedankt
Ja, denk met me mee rond de
materialisering van mijn project
Producten
Koningsdriehoek geeft nieuw elan aan de binnenstad van Den Helder
Copyright: René de Wit
zicht op Koningsdriehoek vanuit het Stadspark van West 8 aan de Prins Hendriklaan
Copyright: René de Wit
aan de Prins Hendriklaan sluit Koningsdriehoek aan op historische bebouwing
Copyright: René de Wit
hoogwaardige materialisering geeft tevens kwaliteit aan de openbare ruimte
Copyright: René de Wit
vier grondgebonden koopwoningen, de specifieke schoorsteen markeert de Koningstraat
Copyright: René de Wit
het ritme en de heldere vormgeving stralen eenheid en harmonie uit
Copyright: René de Wit
dichterbij ontvouwt zich een dynamisch gevelbeeld met rijke details
Copyright: René de Wit
Koningsdriehoek markeert een nieuwe tijjd
Copyright: René de Wit
de stadskroon heeft een fraaie beëindiging met geglazuurde stenen in witte en groene tinten
Copyright: René de Wit
de op alle niveaus kwalitatieve materialisering van de toren straalt af op de openbare ruimte
Copyright: René de Wit
de open hoek markeert op vriendelijke wijze de hexagonale grondvorm van de toren
Copyright: René de Wit
het gevelbeeld aan Prins Hendriklaan is pandsgewijs met aansluiting op historische bebouwing
Copyright: René de Wit
de entree voor de sociale huurappartementen is genereus vormgegeven
Copyright: René de Wit
historische beelden vormen de inspiratiebron van de nieuwe architectuur
Copyright: HILBERINKBOSCH architecten
situatie
Copyright: HILBERINKBOSCH architecten
plattegronden
Copyright: HILBERINKBOSCH architecten
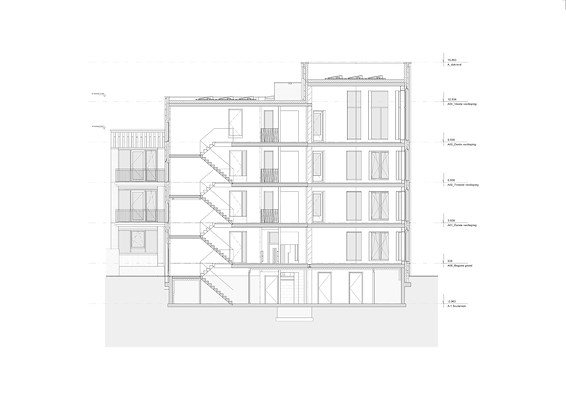
doorsnede
Copyright: HILBERINKBOSCH architecten
ProducttagsAANUIT

Koningsdriehoek, sociaal plan met een stadskroon

25 juni 2025
Het centrum van Den Helder is afgelopen decennia in verval geraakt. Winkels staan leeg, woningen erboven verkrotten en er is overlast van drugsgebruik en prostitutie. Hierdoor komt er minder winkelend publiek naar de stad en staan de voorzieningen onder druk. Den Helder moet zich opnieuw uitvinden. In het nieuwe masterplan van West 8 wordt een grootscheepse vernieuwing van het centrum voorgesteld. Het plan Koningsdriehoek, ontworpen door HILBERINKBOSCH architecten, vormt hierin een belangrijke schakel.

Het masterplan van West 8 bestaat uit een centrale as die de het station met de zee verbindt. Deze as, vormgegeven als stadspark, wordt begrensd door de Prins Hendriklaan. Daar waar deze laan en de Koningstraat bij elkaar komen, vormt zich een driehoekig plein. Het plan Koningsdriehoek, gelegen tussen deze straten, sluit in maat en schaal aan op de aangrenzende historische bebouwing. Kleinschalig en fijnzinnig vormen de grondgebonden woningen de entree naar de Koningstraat, gemarkeerd met een eigenwijs vormgegeven schoorsteen.

De Prins Hendriklaan wordt geaccentueerd met een stevige hexagonale toren. Deze is gemetseld in een donkere steen en verfijnd met een groen geglazuurde baksteen. De toren heeft een bijzondere kroonlijst vol van groen en wit geglazuurd metselwerk, een stadskroon. In analogie met het verleden is er een chique plint-lijf-kroon thematiek voor de gevels toegepast. Kijkend vanaf de zeedijk vormt het plan Koningsdriehoek een belangrijk accent, gemarkeerd door de stralende stadskroon.

Het woonprogramma is opgebouwd uit een diversiteit aan woningtypen: een pand met vier koopwoningen en een appartementengebouw met daarin zeven sociale huurwoningen gecombineerd met een hoogwaardige architectonische beeldtaal vol van gevelplasticiteit en materialiteit.

De grondgebonden woningen bestaan uit drie bouwlagen met meerdere slaapkamers en hebben een verhoogde plint, een entree trap, extra hoge verdiepingshoogte op de begane grond, een stadskap en een tuin met achterom.

De appartementen worden gekenmerkt door specifieke woningplattegronden; hexagonaal met royale loggia’s in de toren, taps toelopend met een ruim inpandig balkon aan het stadspark. De ontsluiting van de appartementen vindt plaats middels een fraaie hoge hal en een interne corridor met veel daglicht. Onder het gebouw, op het compacte plot, zijn de bergingen geplaatst. Door de royale gevelopeningen hebben alle appartementen weidse uitzichten over het Stadspark en het omliggende groen.

Koningsdriehoek voegt op verschillende niveaus toekomstwaarde aan de stad. Als onderdeel van de grootschalige stadstransformatie voegt het complex een diversiteit aan woningtypen toe om daarmee verschillende groepen aan de stad te kunnen binden. Op stedenbouwkundig niveau heelt ze de oude straatwand van de Prins Hendriklaan en voegt ze in analogie met het verleden een pandsgewijze structuur toe, passend in maat en schaal met de locatie. Op architectonisch niveau voegt ze een rijke baksteen architectuur toe, met locatie specifieke elementen waardoor het verleden zich met het heden vervlecht. De toepassing van verhoogde plinten, een specifieke schoorsteen, genereus vormgegeven entrees, verbijzonderde dakranden en kroonlijsten zijn een moderne vertaling van het historische architectonische beeld. Een spel van herkenning en verrassing maakt op verschillende schaalniveaus nieuwe hedendaagse kwaliteiten, waarmee waarde wordt toegevoegd aan de stad.

Eerbied voor het verleden van de plek Ã©n het maken van hedendaagse kwaliteiten vormde de grote ambitie van deze opgave. Dit met het verval van de stad nog alom zichtbaar in de directe omgeving van het plan, gekoppeld aan het collectieve geheugen van een verloren kapitaalkrachtige stad. Het plan ontvouwt zich tot een ruimtelijk ontwerp dat recht doet aan het verleden. Tegelijkertijd voegt het vele nieuwe kwaliteiten toe. Een gelaagd spel van herkenbaarheid en uniciteit maakt Koningsdriehoek tot een bijzondere schakel in de transformatie van Den Helder.


Stel jezelf kort voor! Dan weet het betreffende bedrijf wie hun model gedownload heeft.
Wil je niet bij elke download jouw gegevens in hoeven voeren?
Klik dan hier om in te loggen.

Heb je nog geen account? Maak dan hier een gratis account aan.
Voornaam
Achternaam
E-mailadres
Downloaden
Wanneer je modellen downloadt op Architectenweb.nl worden relevante gegevens van jou – zoals jouw naam en e-mailadres – met het betreffende bedrijf gedeeld. Meer hierover lees je in ons privacybeleid.

Locatie

Neem contact op met HILBERINKBOSCH architecten

Je bent momenteel niet ingelogd. Hierdoor is het alleen mogelijk om meer informatie per e-mail op te vragen. Wil je liever gebeld worden of documentatie per post ontvangen? Klik dan hier om in te loggen.
Heb je nog geen account? Maak dan hier een gratis account aan.
Voornaam
Achternaam
E-mailadres
Opmerkingen
Bij iedere aanvraag worden relevante gegevens van jou gedeeld met het betreffende bedrijf. Meer hierover lees je in ons privacybeleid.
Ja, denk met me mee rond de
materialisering van mijn project

Meer projecten van HILBERINKBOSCH architecten

HILBERINKBOSCH architecten
HILBERINKBOSCH architecten
HILBERINKBOSCH architecten
HILBERINKBOSCH architecten
HILBERINKBOSCH architecten
HILBERINKBOSCH architecten
HILBERINKBOSCH architecten
HILBERINKBOSCH architecten
HILBERINKBOSCH architecten
HILBERINKBOSCH architecten
HILBERINKBOSCH architecten
HILBERINKBOSCH architecten
HILBERINKBOSCH architecten
HILBERINKBOSCH architecten
HILBERINKBOSCH architecten
HILBERINKBOSCH architecten
HILBERINKBOSCH architecten
HILBERINKBOSCH architecten
HILBERINKBOSCH architecten
HILBERINKBOSCH architecten
HILBERINKBOSCH architecten
HILBERINKBOSCH architecten
HILBERINKBOSCH architecten
HILBERINKBOSCH architecten
HILBERINKBOSCH architecten
HILBERINKBOSCH architecten
HILBERINKBOSCH architecten
HILBERINKBOSCH architecten
HILBERINKBOSCH architecten
HILBERINKBOSCH architecten
HILBERINKBOSCH architecten
HILBERINKBOSCH architecten
HILBERINKBOSCH architecten
HILBERINKBOSCH architecten
HILBERINKBOSCH architecten
HILBERINKBOSCH architecten
HILBERINKBOSCH architecten
HILBERINKBOSCH architecten
HILBERINKBOSCH architecten
HILBERINKBOSCH architecten
HILBERINKBOSCH architecten
Toon alles
ATAG Nederland
KUBUS | Specialist in Archicad
SAPA
Reynaers Aluminium Nederland
Jansen
SAB-profiel bv
Aliplast Aluminium Systems
Kingspan Light & Air
ALUCOBOND®
Caparol
Tarkett BV
Kawneer
Grohe Nederland B.V.
Malaysian Timber Council
OCS | Office Cabling Systems
Swisspearl Nederland
Forster Nederland N.V.
VELUX Commercial Benelux B.V.
Sempergreen
Houthandel van Dam
Aluprof Nederland BV
QbiQ Wall Systems
Forbo Flooring
Schüco Nederland
Cedral
Sto Isoned bv
Triflex bv
Gorter Luiken BV
wienerberger
DUCO Ventilation & Sun Control
BEWI IsoBouw
ROCKWOOL B.V.
Mview+
Rockfon (ROCKWOOL B.V.)
Gira Nederland B.V.
Kingspan Geïsoleerde Panelen
GEZE Benelux  B.V.
Renson
Metaglas Groep
ABB | Busch-Jaeger
Jung | Hateha B.V.
Knauf B.V.
Saint-Gobain Glass Benelux
Faay Vianen B.V.
objectflor
Boon Edam Nederland B.V.
Hunter Douglas Architectural
VOLA Nederland BV
Forbo Eurocol Nederland B.V.
EQUITONE gevelpanelen
Holonite B.V.
Tata Steel Colorcoat®
Architectenweb
Over ons
Contact

© 2002 - 2026 Architectenweb BV / Voorwaarden / Privacy / Disclaimer / Sitemap
Annuleren
OK
Sluiten
Doorgaan
Inloggen
Maak een gratis persoonlijk account aan