Projecten
Producten
Bedrijven
Vacatures
Agenda
Awards
Podcasts
more_horiz
Videos
Magazine
Thema's
Favorieten
Profiel
Uitloggen
Producten
Copyright: René de Wit
geschakelde woningen
Copyright: René de Wit
geschakelde woningen
Copyright: René de Wit
appartementengebouw
Copyright: René de Wit
appartementengebouw
Copyright: René de Wit
entree appartementengebouw
Copyright: René de Wit
rijwoningen
Copyright: René de Wit
rijwoningen
Copyright: René de Wit
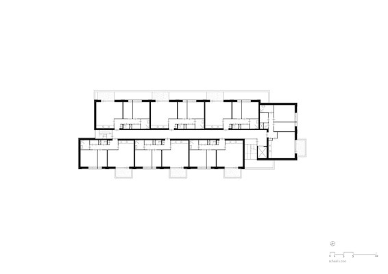
geschakelde woningen begane grond
Copyright: HILBERINKBOSCH architecten
appartementengebouw begane grond
Copyright: HILBERINKBOSCH architecten
appartementengebouw 1e verdieping
Copyright: HILBERINKBOSCH architecten
Producttags
AAN
UIT
Boschveld Oost
25 oktober 2023
0
0
0
0
In het hart van de wijk Boschveld stond vroeger de naoorlogse parochiekerk compleet met sacristie, pastorie en ommuurde hof. In de 70-er jaren van de vorige eeuw is het schip van de kerk gesloopt en vervangen door een buurtschool. Door de bouw van een nieuwe school met buurthuis komt de locatie vrij voor woningbouw.
De voormalige pastorie en de sacristie worden in het plan geïntegreerd en vormen samen met twee blokken nieuwe woningen en een nieuwe ommuurde hof waarin geparkeerd wordt. Het appartementengebouw met sociale huurwoningen zien we als de nieuwe kerk en wordt letterlijk het hoogtepunt in de wijk Boschveld. Het complex wordt als één geheel vormgegeven in een sobere metselwerk architectuur met enkele in het oog springende details van op hun kant gemetselde stenen. De gebruikte baksteen is een hedendaagse interpretatie van het oorspronkelijke metselwerk en zorgt er in warme kleurtoon voor dat het complex een nieuw, stralend middelpunt in de wijk is geworden.
(de genoemde getallen voor bruto/netto m2 en m3 betreffen het appartmentengebouw)
Stel jezelf kort voor! Dan weet het betreffende bedrijf wie hun model gedownload heeft.
Wil je niet bij elke download jouw gegevens in hoeven voeren?
Klik dan hier om in te loggen
.
Heb je nog geen account?
Maak dan hier een gratis account aan
.
Voornaam
Achternaam
E-mailadres
Downloaden
Wanneer je modellen downloadt op Architectenweb.nl worden relevante gegevens van jou – zoals jouw naam en e-mailadres – met het betreffende bedrijf gedeeld. Meer hierover lees je in ons
privacybeleid
.
Locatie
Trefwoorden
's-hertogenbosch
boschveld
rijwoningen
sociale woningbouw
geschakelde woningen
nieuwbouw
appartementengebouw
HILBERINKBOSCH architecten
Neem contact op
Projectdata
Staat van realisatie
Voltooid
Start ontwerpproces
2012
Start bouw
2020
Oplevering
2022
Ingebruikname
2022
Plaats
's-Hertogenbosch
Meewerkende partijen
Architect
HILBERINKBOSCH architecten
Projectarchitect
Joost Kolk
Ontwerpteam
Annemariken Hilberink, Geert Bosch, Jaap Janssen, Rolf van Boxmeer, Joost Kolk, Jurre Mattheeuwse
Opdrachtgever
Brabant Wonen, Van Wanrooij Projectontwikkeling
Aannemer
Bouwbedrijf Van Wanrooij
Constructeur
Bekendam Adviesbureau voor bouwconstructies
Fotograaf
Rene de Wit
Stedenbouwkundige
Gemeente 's-Hertogenbosch
Leveranciers
Bakstenen
Steenfabriek Engels
Neem contact op met
HILBERINKBOSCH architecten
Je bent momenteel niet ingelogd. Hierdoor is het alleen mogelijk om meer informatie per e-mail op te vragen. Wil je liever gebeld worden of documentatie per post ontvangen?
Klik dan hier om in te loggen
.
Heb je nog geen account?
Maak dan hier een gratis account aan
.
Voornaam
Achternaam
E-mailadres
Opmerkingen
Bij iedere aanvraag worden relevante gegevens van jou gedeeld met het betreffende bedrijf. Meer hierover lees je in ons
privacybeleid
.
Ja, denk met me mee rond de
materialisering van mijn project
Meer projecten van HILBERINKBOSCH architecten
Koningsdriehoek, sociaal plan met een stadskroon
HILBERINKBOSCH architecten
Wonen op de Peelrandbreuk
HILBERINKBOSCH architecten
Laakse Tuinen
HILBERINKBOSCH architecten
De Buurtkamer
HILBERINKBOSCH architecten
Vredeoord is een veilige omgeving
HILBERINKBOSCH architecten
Schaapskooi
HILBERINKBOSCH architecten
Rondom de zes dennen
HILBERINKBOSCH architecten
De Groene Loper, wonen boven de A2
HILBERINKBOSCH architecten
Isabellapoort, appartementengebouwen Fort Isabella
HILBERINKBOSCH architecten
Lakenveld Land van Winkel
HILBERINKBOSCH architecten
Beeldbuizenfabriek, woonwijk op Strijp R
HILBERINKBOSCH architecten
Spiegelvilla in Gasthuiskwartier
HILBERINKBOSCH architecten
Upstairs in het Paleiskwartier
HILBERINKBOSCH architecten
Sociale woningbouw Orthen-Links
HILBERINKBOSCH architecten
Duinvilla op de Utrechtse Heuvelrug
HILBERINKBOSCH architecten
Beethovenlaan
HILBERINKBOSCH architecten
restauratie en uitbreiding Huize Vreeburg
HILBERINKBOSCH architecten
Villa Algarve
HILBERINKBOSCH architecten
Maaskanterf Dordrecht
HILBERINKBOSCH architecten
Uitbreiding Lithoijen
HILBERINKBOSCH architecten
76 woningen op de kop van de Muntel
HILBERINKBOSCH architecten
Een meter boven maaiveld
HILBERINKBOSCH architecten
39 woningen De Boemerang
HILBERINKBOSCH architecten
Veghels Buiten
HILBERINKBOSCH architecten
Woonhuis Empel
HILBERINKBOSCH architecten
Negenenveertig woningen, uitbreiding fase III, Empel
HILBERINKBOSCH architecten
Bosvilla
HILBERINKBOSCH architecten
Dijkwoning
HILBERINKBOSCH architecten
Interieur reclamebureau
HILBERINKBOSCH architecten
Uitbreiding Helenaveen
HILBERINKBOSCH architecten
Landgoed de Schuitvaart
HILBERINKBOSCH architecten
Verbouwing langgevelboerderij (woning)
HILBERINKBOSCH architecten
Verbouwing langgevelboerderij (kantoor)
HILBERINKBOSCH architecten
Uitbreiding woonhuis
HILBERINKBOSCH architecten
Achter de kerk
HILBERINKBOSCH architecten
84 woningen, De Groote Wielen
HILBERINKBOSCH architecten
Negendertig woningen, De Boemerang
HILBERINKBOSCH architecten
Zorgtuin
HILBERINKBOSCH architecten
Schuurwoning en Skybox
HILBERINKBOSCH architecten
Licht & Ruimtelijkheid
HILBERINKBOSCH architecten
achter de kerk
HILBERINKBOSCH architecten
interieur reclameburo
HILBERINKBOSCH architecten
De keus van de koper
HILBERINKBOSCH architecten
Sociaal plan
HILBERINKBOSCH architecten
Boerenerf
HILBERINKBOSCH architecten
Zesentwintig woningen in Hulzebraak te Schijndel
HILBERINKBOSCH architecten
Twaalf appartementen
HILBERINKBOSCH architecten
Woonhuis MES
HILBERINKBOSCH architecten
Koningsdriehoek, sociaal plan met een stadskroon
HILBERINKBOSCH architecten
Wonen op de Peelrandbreuk
HILBERINKBOSCH architecten
Laakse Tuinen
HILBERINKBOSCH architecten
De Buurtkamer
HILBERINKBOSCH architecten
Vredeoord is een veilige omgeving
HILBERINKBOSCH architecten
Schaapskooi
HILBERINKBOSCH architecten
Rondom de zes dennen
HILBERINKBOSCH architecten
De Groene Loper, wonen boven de A2
HILBERINKBOSCH architecten
Isabellapoort, appartementengebouwen Fort Isabella
HILBERINKBOSCH architecten
Lakenveld Land van Winkel
HILBERINKBOSCH architecten
Beeldbuizenfabriek, woonwijk op Strijp R
HILBERINKBOSCH architecten
Spiegelvilla in Gasthuiskwartier
HILBERINKBOSCH architecten
Upstairs in het Paleiskwartier
HILBERINKBOSCH architecten
Sociale woningbouw Orthen-Links
HILBERINKBOSCH architecten
Duinvilla op de Utrechtse Heuvelrug
HILBERINKBOSCH architecten
Beethovenlaan
HILBERINKBOSCH architecten
restauratie en uitbreiding Huize Vreeburg
HILBERINKBOSCH architecten
Villa Algarve
HILBERINKBOSCH architecten
Maaskanterf Dordrecht
HILBERINKBOSCH architecten
Uitbreiding Lithoijen
HILBERINKBOSCH architecten
76 woningen op de kop van de Muntel
HILBERINKBOSCH architecten
Een meter boven maaiveld
HILBERINKBOSCH architecten
39 woningen De Boemerang
HILBERINKBOSCH architecten
Veghels Buiten
HILBERINKBOSCH architecten
Woonhuis Empel
HILBERINKBOSCH architecten
Negenenveertig woningen, uitbreiding fase III, Empel
HILBERINKBOSCH architecten
Bosvilla
HILBERINKBOSCH architecten
Dijkwoning
HILBERINKBOSCH architecten
Interieur reclamebureau
HILBERINKBOSCH architecten
Uitbreiding Helenaveen
HILBERINKBOSCH architecten
Landgoed de Schuitvaart
HILBERINKBOSCH architecten
Verbouwing langgevelboerderij (woning)
HILBERINKBOSCH architecten
Verbouwing langgevelboerderij (kantoor)
HILBERINKBOSCH architecten
Uitbreiding woonhuis
HILBERINKBOSCH architecten
Achter de kerk
HILBERINKBOSCH architecten
84 woningen, De Groote Wielen
HILBERINKBOSCH architecten
Negendertig woningen, De Boemerang
HILBERINKBOSCH architecten
Zorgtuin
HILBERINKBOSCH architecten
Schuurwoning en Skybox
HILBERINKBOSCH architecten
Licht & Ruimtelijkheid
HILBERINKBOSCH architecten
achter de kerk
HILBERINKBOSCH architecten
interieur reclameburo
HILBERINKBOSCH architecten
De keus van de koper
HILBERINKBOSCH architecten
Sociaal plan
HILBERINKBOSCH architecten
Boerenerf
HILBERINKBOSCH architecten
Zesentwintig woningen in Hulzebraak te Schijndel
HILBERINKBOSCH architecten
Twaalf appartementen
HILBERINKBOSCH architecten
Woonhuis MES
HILBERINKBOSCH architecten
Toon alles
Andere Projecten
Verlichting fietsenstalling Koopgoot Rotterdam
Loerakker led line
Efficiënt afvaltransport in ziekenhuis St. Jansdal
Stansz
Emco entreematten in museale architectuur
EMCO Benelux B.V.
Duurzame zwembadroosters voor zwemcentrum De Welle
EMCO Benelux B.V.
Gorter dakluiken op Spaarnwoude Park Hotel
Gorter Luiken BV
Veilige daktoegang nieuwbouw Emmapark
Gorter Luiken BV
Houten huis in de polder - WaxedWood Gold Color
Foreco Houtproducten
Ottho Amsterdam - geluidwerende balkonbeglazing
Solarlux Nederland B.V.
Groningse baksteenarchitectuur met Clickbrick Pure
wienerberger
Duurzame transformatie met groene gevel in Utrecht
Sempergreen
Low Carbon isolatieglas van Vandaglas voor Kavel F
Vandaglas b.v.
BDO kantoor Breda
ULMA Architectural Solutions
Ga naar het projecten-overzicht
Voor een optimale gebruikservaring plaatst Architectenweb functionele cookies. Wat de verschillende cookies precies doen leggen we uit in een
overzicht
. Cookies van social media kun je optioneel
aanzetten
.
Akkoord
Instellingen
Annuleren
OK
Sluiten
Doorgaan
Inloggen
Maak een gratis persoonlijk account aan
Feedback
Feedback
Wij horen graag jouw feedback. Laat je reactie achter en eventueel jouw e-mail adres.
Reactie
Verstuur