Projecten
Producten
Bedrijven
Vacatures
Agenda
Awards
Podcasts
more_horiz
Videos
Magazine
Thema's
Favorieten
Profiel
Uitloggen
Abonneer je nu op onze nieuwsbrieven!
Abonneren
Nee, bedankt
Ja, denk met me mee rond de
materialisering van mijn project
Producten
gelegen aan een dorpslint tussen bos en veld
Copyright: René de Wit
de werkelijke grootte van de woning is niet zichtbaar vanaf de weg
Copyright: René de Wit
Copyright: René de Wit
robuust metselwerk, schoonwerk beton en houten elementen geven de villa een ei
Copyright: René de Wit
de zes dennen (Pinus sylvestris) zijn hoger dan de andere bomen op het terrein
Copyright: René de Wit
de bakstenen worden met schors van de dennenbomen in de hand, uitgezocht op kleur en textuur
Copyright: René de Wit
de werkelijke grootte van de woning is niet zichtbaar vanaf de weg
Copyright: René de Wit
er veel inspanning verricht om de dennen te behouden
Copyright: René de Wit
zwembad en woonhuis omringen de dennenbomen die een markante positie innemen
Copyright: René de Wit
Copyright: René de Wit
Copyright: René de Wit
Copyright: René de Wit
de bakstenen worden met schors van de dennenbomen in de hand, uitgezocht op kleur en textuur
Copyright: René de Wit
Copyright: René de Wit
Copyright: René de Wit
de lichtstraat zorgt voor een zee aan daglicht binnen
Copyright: René de Wit
situering
Copyright: HILBERINKBOSCH architecten
doorsnede
Copyright: HILBERINKBOSCH architecten
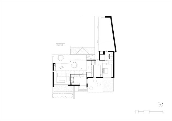
begane grond
souterrain
Producttags
AAN
UIT
Rondom de zes dennen
25 oktober 2023
0
0
0
0
Aan een slingerend dorpslint in het Brabantse buitengebied, waar boerderijen en akkers zich afwisselen met bospercelen, wordt op een kleine akker grenzend tegen de bosrand, een nieuwe woning gebouwd. Het terrein ligt dicht tegen de doorgaande weg en heeft een vrij uitzicht over het open akkergebied aan de overzijde van de weg. De achtertuin strekt zich diep uit in het aangrenzende bos van het natuurgebied de Maashorst. Zes grote grove dennen in het gras van de tuin vormen de voorpost van het achterliggende dennenbos.
Rondom deze zes dennen worden de belangrijkste woonfuncties gelegd. De woonkamer, eetkamer en keuken richten zich op de tuin en de avondzon en worden opgetild ten opzichte van de tuin. Een ruim terras op hetzelfde hoge niveau verbindt, met een paar treden, het wonen met de tuin.
Aan de voorzijde van de woning wordt op maaiveldniveau de hoofdslaapkamer gesitueerd. Een kleine patio voor de slaapkamer zorgt voor meer privacy en filtert het ochtendlicht. Grenzend aan de slaapkamer ligt een vleugel met een wellness: een badkamer met sauna en het zwembad. De vleugel steekt de tuin in, waardoor je vanuit het zwembad zicht hebt op de prachtige dennen. Een daklicht boven de douche haalt ook hier het buiten naar binnen.
Onder de woning bevindt zich een souterrain met vier (slaap)kamers. Twee verdiepte patio’s zorgen ervoor dat er natuurlijk licht in deze kamers valt en dat de twee kamers aan de achterzijde ook zicht op de tuin hebben.
De gevels van de woning zijn gesloten naar de straatzijde maar open naar de tuinzijde, waar ze gericht zijn op bosrand en avondzon. Passend in de sfeer van het dorpslint is de woning voorzien van een kapvolume. Deze kap is asymmetrisch: steil aan de zuidwestzijde en volledig bedekt met zonnepanelen die naadloos op elkaar aansluiten. Aan de noordoostkant is de kap flauwer en wordt een grote lichtstraat gemaakt. Binnen zorgt dit voor een prachtige ruimtelijkheid en een stortvloed aan daglicht.
De karakteristieke bakstenen, die ook incidenteel in het interieur terug komen, worden met een stuk schors van de dennenbomen in de hand, uitgezocht op kleur en textuur. Zo wordt ook met de materialisatie van robuust metselwerk, schoonwerk beton en houten elementen een eigentijdse verbinding gezocht met de omgeving.
Stel jezelf kort voor! Dan weet het betreffende bedrijf wie hun model gedownload heeft.
Wil je niet bij elke download jouw gegevens in hoeven voeren?
Klik dan hier om in te loggen
.
Heb je nog geen account?
Maak dan hier een gratis account aan
.
Voornaam
Achternaam
E-mailadres
Downloaden
Wanneer je modellen downloadt op Architectenweb.nl worden relevante gegevens van jou – zoals jouw naam en e-mailadres – met het betreffende bedrijf gedeeld. Meer hierover lees je in ons
privacybeleid
.
Locatie
Trefwoorden
dorpslint
nieuwbouw
zonnepanelen
dennen
schoonwerk beton
natuurgebied
villa
HILBERINKBOSCH architecten
Neem contact op
Projectdata
Staat van realisatie
Voltooid
Start ontwerpproces
2015
Start bouw
2016
Oplevering
2018
Ingebruikname
2018
Plaats
Zeeland
Bruto m
2
404
Netto m
2
330
m
3
1340
Meewerkende partijen
Architect
HILBERINKBOSCH architecten
Interieurarchitect
HILBERINKBOSCH architecten
Projectarchitect
Joost Kolk
Ontwerpteam
Annemariken Hilberink, Geert Bosch, Joost Kolk, Jaap Janssen, Frenske Wijnen
Opdrachtgever
particulier
Aannemer
Cornelissen
Fotograaf
Rene de Wit
Interieurontwerper
Annemariken Hilberink
Leveranciers
Interieurbouwer
Twans
Zwembad
Zwedak
Lichtstraat
Brakel Atmos
Bakstenen
Petersen Tegl
Neem contact op met
HILBERINKBOSCH architecten
Je bent momenteel niet ingelogd. Hierdoor is het alleen mogelijk om meer informatie per e-mail op te vragen. Wil je liever gebeld worden of documentatie per post ontvangen?
Klik dan hier om in te loggen
.
Heb je nog geen account?
Maak dan hier een gratis account aan
.
Voornaam
Achternaam
E-mailadres
Opmerkingen
Bij iedere aanvraag worden relevante gegevens van jou gedeeld met het betreffende bedrijf. Meer hierover lees je in ons
privacybeleid
.
Ja, denk met me mee rond de
materialisering van mijn project
Meer projecten van HILBERINKBOSCH architecten
Koningsdriehoek, sociaal plan met een stadskroon
HILBERINKBOSCH architecten
Wonen op de Peelrandbreuk
HILBERINKBOSCH architecten
Laakse Tuinen
HILBERINKBOSCH architecten
De Buurtkamer
HILBERINKBOSCH architecten
Vredeoord is een veilige omgeving
HILBERINKBOSCH architecten
Schaapskooi
HILBERINKBOSCH architecten
De Groene Loper, wonen boven de A2
HILBERINKBOSCH architecten
Isabellapoort, appartementengebouwen Fort Isabella
HILBERINKBOSCH architecten
Boschveld Oost
HILBERINKBOSCH architecten
Lakenveld Land van Winkel
HILBERINKBOSCH architecten
Beeldbuizenfabriek, woonwijk op Strijp R
HILBERINKBOSCH architecten
Spiegelvilla in Gasthuiskwartier
HILBERINKBOSCH architecten
Upstairs in het Paleiskwartier
HILBERINKBOSCH architecten
Sociale woningbouw Orthen-Links
HILBERINKBOSCH architecten
Duinvilla op de Utrechtse Heuvelrug
HILBERINKBOSCH architecten
Beethovenlaan
HILBERINKBOSCH architecten
restauratie en uitbreiding Huize Vreeburg
HILBERINKBOSCH architecten
Villa Algarve
HILBERINKBOSCH architecten
Maaskanterf Dordrecht
HILBERINKBOSCH architecten
Uitbreiding Lithoijen
HILBERINKBOSCH architecten
76 woningen op de kop van de Muntel
HILBERINKBOSCH architecten
Een meter boven maaiveld
HILBERINKBOSCH architecten
39 woningen De Boemerang
HILBERINKBOSCH architecten
Veghels Buiten
HILBERINKBOSCH architecten
Woonhuis Empel
HILBERINKBOSCH architecten
Negenenveertig woningen, uitbreiding fase III, Empel
HILBERINKBOSCH architecten
Bosvilla
HILBERINKBOSCH architecten
Dijkwoning
HILBERINKBOSCH architecten
Interieur reclamebureau
HILBERINKBOSCH architecten
Uitbreiding Helenaveen
HILBERINKBOSCH architecten
Landgoed de Schuitvaart
HILBERINKBOSCH architecten
Verbouwing langgevelboerderij (woning)
HILBERINKBOSCH architecten
Verbouwing langgevelboerderij (kantoor)
HILBERINKBOSCH architecten
Uitbreiding woonhuis
HILBERINKBOSCH architecten
Achter de kerk
HILBERINKBOSCH architecten
84 woningen, De Groote Wielen
HILBERINKBOSCH architecten
Negendertig woningen, De Boemerang
HILBERINKBOSCH architecten
Zorgtuin
HILBERINKBOSCH architecten
Schuurwoning en Skybox
HILBERINKBOSCH architecten
Licht & Ruimtelijkheid
HILBERINKBOSCH architecten
achter de kerk
HILBERINKBOSCH architecten
interieur reclameburo
HILBERINKBOSCH architecten
De keus van de koper
HILBERINKBOSCH architecten
Sociaal plan
HILBERINKBOSCH architecten
Boerenerf
HILBERINKBOSCH architecten
Zesentwintig woningen in Hulzebraak te Schijndel
HILBERINKBOSCH architecten
Twaalf appartementen
HILBERINKBOSCH architecten
Woonhuis MES
HILBERINKBOSCH architecten
Koningsdriehoek, sociaal plan met een stadskroon
HILBERINKBOSCH architecten
Wonen op de Peelrandbreuk
HILBERINKBOSCH architecten
Laakse Tuinen
HILBERINKBOSCH architecten
De Buurtkamer
HILBERINKBOSCH architecten
Vredeoord is een veilige omgeving
HILBERINKBOSCH architecten
Schaapskooi
HILBERINKBOSCH architecten
De Groene Loper, wonen boven de A2
HILBERINKBOSCH architecten
Isabellapoort, appartementengebouwen Fort Isabella
HILBERINKBOSCH architecten
Boschveld Oost
HILBERINKBOSCH architecten
Lakenveld Land van Winkel
HILBERINKBOSCH architecten
Beeldbuizenfabriek, woonwijk op Strijp R
HILBERINKBOSCH architecten
Spiegelvilla in Gasthuiskwartier
HILBERINKBOSCH architecten
Upstairs in het Paleiskwartier
HILBERINKBOSCH architecten
Sociale woningbouw Orthen-Links
HILBERINKBOSCH architecten
Duinvilla op de Utrechtse Heuvelrug
HILBERINKBOSCH architecten
Beethovenlaan
HILBERINKBOSCH architecten
restauratie en uitbreiding Huize Vreeburg
HILBERINKBOSCH architecten
Villa Algarve
HILBERINKBOSCH architecten
Maaskanterf Dordrecht
HILBERINKBOSCH architecten
Uitbreiding Lithoijen
HILBERINKBOSCH architecten
76 woningen op de kop van de Muntel
HILBERINKBOSCH architecten
Een meter boven maaiveld
HILBERINKBOSCH architecten
39 woningen De Boemerang
HILBERINKBOSCH architecten
Veghels Buiten
HILBERINKBOSCH architecten
Woonhuis Empel
HILBERINKBOSCH architecten
Negenenveertig woningen, uitbreiding fase III, Empel
HILBERINKBOSCH architecten
Bosvilla
HILBERINKBOSCH architecten
Dijkwoning
HILBERINKBOSCH architecten
Interieur reclamebureau
HILBERINKBOSCH architecten
Uitbreiding Helenaveen
HILBERINKBOSCH architecten
Landgoed de Schuitvaart
HILBERINKBOSCH architecten
Verbouwing langgevelboerderij (woning)
HILBERINKBOSCH architecten
Verbouwing langgevelboerderij (kantoor)
HILBERINKBOSCH architecten
Uitbreiding woonhuis
HILBERINKBOSCH architecten
Achter de kerk
HILBERINKBOSCH architecten
84 woningen, De Groote Wielen
HILBERINKBOSCH architecten
Negendertig woningen, De Boemerang
HILBERINKBOSCH architecten
Zorgtuin
HILBERINKBOSCH architecten
Schuurwoning en Skybox
HILBERINKBOSCH architecten
Licht & Ruimtelijkheid
HILBERINKBOSCH architecten
achter de kerk
HILBERINKBOSCH architecten
interieur reclameburo
HILBERINKBOSCH architecten
De keus van de koper
HILBERINKBOSCH architecten
Sociaal plan
HILBERINKBOSCH architecten
Boerenerf
HILBERINKBOSCH architecten
Zesentwintig woningen in Hulzebraak te Schijndel
HILBERINKBOSCH architecten
Twaalf appartementen
HILBERINKBOSCH architecten
Woonhuis MES
HILBERINKBOSCH architecten
Toon alles
Andere Projecten
Beverode-oost - Dieren
Loko Architecten bv
Hotel Catalonia in San Sebastián, Spanje
ULMA Architectural Solutions
Wonen als in een vrijstaand huis, Wiesbaden
objectflor
Isala Meppel
Dupral B.V.
Windsor Park te Gouda
WEBO
New Brooklyn – Almere Poort
VBI
Gorter op Hof van Maasdam
Gorter Luiken BV
Nieuwbouw 430 woningen, mét Gorter
Gorter Luiken BV
Verbouwing Veluwse Boerderij
AL architecten BNA-BNI
Woningen Viladomat in Barcelona, Spanje
ULMA Architectural Solutions
Antwerpen Kievit
HOSPER landschapsarchitectuur
Frigo-Trans GmbH Mezzaninevloer voor logistiek
Nolte Mezzanine
Ga naar het projecten-overzicht
Voor een optimale gebruikservaring plaatst Architectenweb functionele cookies. Wat de verschillende cookies precies doen leggen we uit in een
overzicht
. Cookies van social media kun je optioneel
aanzetten
.
Akkoord
Instellingen
Annuleren
OK
Sluiten
Doorgaan
Inloggen
Maak een gratis persoonlijk account aan
Feedback
Feedback
Wij horen graag jouw feedback. Laat je reactie achter en eventueel jouw e-mail adres.
Reactie
Verstuur