Projecten
Producten
Bedrijven
Vacatures
Agenda
Awards
Podcasts
more_horiz
Videos
Magazine
Favorieten
Profiel
Uitloggen
Abonneer je nu op onze nieuwsbrieven!
Abonneren
Nee, bedankt
Ja, denk met me mee rond de
materialisering van mijn project
Producten
Het Hooghout
Copyright: Luuk Kramer
Het Hooghout
Copyright: Luuk Kramer
Het Hooghout
Copyright: Luuk Kramer
Het Hooghout
Copyright: Luuk Kramer
Het Hooghout, doorsnede
Copyright: ANA architecten
Het Hooghout, gevel
Copyright: ANA architecten
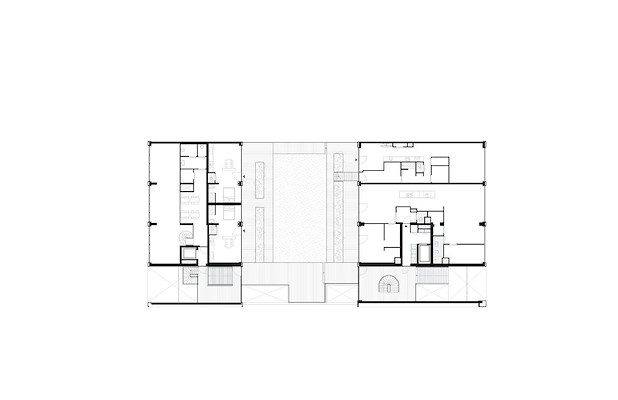
Het Hooghout, plattegrond bg
Copyright: ANA architecten
Het Hooghout, plattegrond 1e verdieping
Copyright: ANA architecten
Het Hooghout, plattegrond 6e verdieping
Copyright: ANA architecten
Het Hooghout, plattegrond 8e verdieping
Copyright: ANA architecten
Het Hooghout, bouwmassa
Copyright: ANA architecten
Het Hooghout, Open Building
Copyright: ANA architecten
Het Hooghout, programma
Copyright: ANA architecten
Producttags
AAN
UIT
Ruimte voor verbinding in Het Hooghout
30 juni 2021
1
0
0
0
Het Hooghout is een collectief woongebouw, met een commerciële ruimte en een stallinggarage. Het is in collectief particulier opdrachtgeverschap ontwikkeld door bouwgroep Het Hooghout in Amsterdam-Noord. De twintig woningen zijn allemaal uniek ontworpen voor de bewoners.
De sfeer van Het Hooghout is robuust, opgewassen tegen de ruige omgeving van een voormalig haventerrein in transitie. De sfeer is tegelijkertijd ook warm, een plek om prettig te wonen, om je thuis te voelen, binnen en buiten. Het Hooghout staat voor synergie; het geheel is meer dan de som der delen. Het Hooghout biedt zowel ruimte voor persoonlijke wensen van de gebruikers, als voor collectiviteit en gezamenlijke ontmoetingsplekken.
De locatie
De ligging van Het Hooghout is in het transformatiegebied van de Buiksloterham in Amsterdam-Noord. Dit voormalige industrieterrein wordt getransformeerd tot een hippe en aantrekkelijke woonbuurt. Het gebouw vormt een verbinding tussen twee straten: de Ridderspoorweg en de Boterbloemstraat. De hoofdentree ligt aan de Ridderspoorweg, maar het hoofdvolume aan de Boterbloemstraat. Beide volumes worden met elkaar verbonden door een binnenstraat. Vanuit de binnenstraat worden de afzonderlijke delen van het complex ontsloten. Tussen de twee delen is een groene binnentuin voor de bewoners. De binnentuin en de gezamenlijke doorgang door het gebouw dragen bij aan verbondenheid en ruimte voor ontmoeting tussen de verschillende bewoners en gebruikers van het gebouw.
Flexibel en toekomstbestendig
Bouwgroep Het Hooghout bestaat uit een zeer diverse groep mensen. Om de uiteenlopende wensen van de toekomstige bewoners te faciliteren is Het Hooghout ontworpen als een flexibel casco. Door de ontsluiting en de installaties strategisch te plaatsen en een helder onderscheid te maken tussen casco en inbouw is flexibiliteit en vrijheid ontstaan in de grootte en indeling van de woningen. Deze Open Building-constructie zorgt voor een flexibele indeling van het gebouw in de toekomst. De flexibiliteit maakte het mogelijk om voor elke doelgroep een passende woning te ontwerpen: jong, oud, alleenstaanden en gezinnen. Het kleinste appartement is 50 m2 en het grootste appartement is 150 m2. De commerciële ruimte bestaat uit tien short stay-appartementen van 30 tot 50 m2 en een ruimte voor lichte horeca.
Open Building
De constructie is gebaseerd op het Open Building-principe. Dit maakt van de woontoren een toekomstbestendig gebouw. De indeling van de woningen kan ook in de toekomst worden aangepast aan de wensen van de gebruikers. In de verre toekomst kunnen ook de woningscheidende wanden verwijderd worden, omdat die niet dragend zijn. Daarna kan er een nieuwe indeling van het gebouw gemaakt worden. Het gebouw heeft een extra hoge isolatiewaarde van vloeren, gevels en daken. Dit zorgt voor minimaal energieverlies. De gevel bestaat uit hernieuwbaar houten materiaal.
Proces
De bouwgroep Het Hooghout bestaat uit de bewoners van de twintig woningen aan de Boterbloemstraat en de eigenaar van het commerciële gedeelte aan de Ridderspoorweg. De bouwgroep leidde zelf de ontwikkeling van het kavel, dit deden zij met behulp van ingehuurde adviseurs die het proces begeleidden. Het ontwerpproces begon met het presenteren van de eerste plannen aan de ALV. Vervolgens zijn we met de bouwcommissie, bestaande uit drie leden van de bouwgroep, aan de slag gegaan. Met de commissie was wekelijks intensief contact en afstemming. Voor het ontwerp van de commerciële ruimten hadden we één-op-één-contact met de vertegenwoordiger van dit bouwdeel.
Het flexibele casco van het gebouw biedt de ruimte om samen met de bewoners te bekijken wie welk voor soort woning, van welke grootte en op welke plek in het pand zou willen hebben. Op basis van deze informatie maakte ANA een voorstel voor de indeling van het pand. Dit voorstel bespraken we in de ALV van de bouwgroep. Op deze manier besloten we gezamenlijk hoe de posities en de groottes van de woningen eruit zouden zien.
Enquete
Voor het ontwerp van de woningen kregen alle leden een enquête toegestuurd. Hierin werden zij bevraagd over hun woonwensen: wat is je huishoudenssamenstelling, hoeveel badkamers zou je willen hebben, hoe ziet een doordeweekse dag eruit, hoe ziet je zondag eruit en hoe zie je jezelf graag leven in Het Hooghout? Op deze manier kwamen we niet alleen achter de praktische informatie, maar we kregen ook een beeld van de leefstijl van de bewoners. Bewoners konden bijvoorbeeld aangeven of zij het belangrijk vonden om een grote keuken, wel of geen bad en ruimte voor een home-cinema te hebben. ANA maakte per woning een voorbeeldschets, deze werd besproken, aangepast en nogmaals besproken totdat er een definitief ontwerp uitkwam. Ten slotte werkte ANA de ontwerpen verder technisch uit.
De binnentuin
Tussen de twee torens bevindt zich de binnentuin. Dit is de ontmoetingsplek voor bewoners. De tuin is niet publiek toegankelijk. Kinderen kunnen in de binnentuin veilig spelen en volwassen kunnen elkaar ontmoeten. Dit is ook de plek waar de short stay-bewoners in contact kunnen komen met de bewoners van de appartementen. Zo voelen ook zij zich sneller thuis in Het Hooghout.
Een groot gedeelte van de binnentuin krijgt een grondpakket voor beplanting. Bovendien zijn er bakken met extra grond zodat er bomen kunnen groeien. Bij het ontwerp van de tuin zit ook een gemeenschappelijke kas, waar bewoners samen een moestuin kunnen organiseren. De binnentuin draagt bij aan duurzaamheidsambities. Het is een oase van rust binnen de hoge stedelijke dichtheid van de Buiksloterham.
Download brochures
Het Hooghout
Brochure
Het Hooghout
Brochure
Stel jezelf kort voor! Dan weet het betreffende bedrijf wie hun brochure gedownload heeft.
Wil je niet bij elke download jouw gegevens in hoeven voeren?
Klik dan hier om in te loggen
. Heb je nog geen account?
Maak dan hier een gratis account aan
.
Voornaam
Achternaam
E-mailadres
Downloaden
Wanneer je brochures downloadt op Architectenweb.nl worden relevante gegevens van jou – zoals jouw naam en e-mailadres – met het betreffende bedrijf gedeeld. Meer hierover lees je in ons
privacybeleid
.
Wanneer je brochures downloadt op Architectenweb.nl worden relevante gegevens van jou – zoals jouw naam en e-mailadres – met het betreffende bedrijf gedeeld. Meer hierover lees je in ons
privacybeleid
.
Brochure
Stel jezelf kort voor! Dan weet het betreffende bedrijf wie hun model gedownload heeft.
Wil je niet bij elke download jouw gegevens in hoeven voeren?
Klik dan hier om in te loggen
.
Heb je nog geen account?
Maak dan hier een gratis account aan
.
Voornaam
Achternaam
E-mailadres
Downloaden
Wanneer je modellen downloadt op Architectenweb.nl worden relevante gegevens van jou – zoals jouw naam en e-mailadres – met het betreffende bedrijf gedeeld. Meer hierover lees je in ons
privacybeleid
.
Locatie
Trefwoorden
cpo
open building
open bouwen
hout
mixed use
woongebouw
amsterdam
hotel
horeca
verbinding
short stay
ANA architecten
Download brochures (2)
Neem contact op
Projectdata
Staat van realisatie
Voltooid
Start ontwerpproces
2016
Start bouw
2019
Oplevering
2021
Ingebruikname
2021
Plaats
Amsterdam
Bruto m
2
3600
Meewerkende partijen
Architect
ANA architecten
Projectarchitect
Marcel van der Lubbe, Jannie Vinke
Ontwerpteam
Bas Hoevenaars, Maarten Vermeulen, Joeri van wijk, Jarno van Iwaarde
Opdrachtgever
CPO Het Hooghout
Aannemer
Lokhorst
Constructeur
Z&L
Adviseurs installaties E & W
Nieman
Fotograaf
Luuk Kramer
Leveranciers
Overig
Luuk Kramer
Neem contact op met
ANA architecten
Je bent momenteel niet ingelogd. Hierdoor is het alleen mogelijk om meer informatie per e-mail op te vragen. Wil je liever gebeld worden of documentatie per post ontvangen?
Klik dan hier om in te loggen
.
Heb je nog geen account?
Maak dan hier een gratis account aan
.
Voornaam
Achternaam
E-mailadres
Opmerkingen
Bij iedere aanvraag worden relevante gegevens van jou gedeeld met het betreffende bedrijf. Meer hierover lees je in ons
privacybeleid
.
Ja, denk met me mee rond de
materialisering van mijn project
Meer projecten van ANA architecten
Merwede – Bloom
ANA architecten
Kop Sloot: de hedendaagse tuinstad
ANA architecten
Robin Wood
ANA architecten
De Nieuwe Defensie: wonen langs het Merwedekanaal
ANA architecten
Woongebouw De Zevenster
ANA architecten
Levensloopbestendig wonen in de Indische buurt
ANA architecten
The Family
ANA architecten
Het SchetsBlok
ANA architecten
Woonschip De Johanna
ANA architecten
Duurzame houtlofts in Buiksloterham
ANA architecten
Merwede – Bloom
ANA architecten
Kop Sloot: de hedendaagse tuinstad
ANA architecten
Robin Wood
ANA architecten
De Nieuwe Defensie: wonen langs het Merwedekanaal
ANA architecten
Woongebouw De Zevenster
ANA architecten
Levensloopbestendig wonen in de Indische buurt
ANA architecten
The Family
ANA architecten
Het SchetsBlok
ANA architecten
Woonschip De Johanna
ANA architecten
Duurzame houtlofts in Buiksloterham
ANA architecten
Toon alles
Andere Projecten
Kliniek San Juan de Dios in Madrid
ULMA Architectural Solutions
Canopy House
Malaysian Timber Council
Vliesgevel screens Netceed kantoorgebouw
Renson
Kantoorinterieur Greenflux Amsterdam
Bureau Fraai
Nieuwbouw Oostvaarders krijgt Gorter op het dak
Gorter Luiken BV
CPO Vondelstaete Amersfoort: Passief Wonen
Sto Isoned bv
Nieuwbouw kinderdagverblijf Baakenhafen Hamburg
Sempergreen
BOW showroom in Amsterdam!
BOW Systems
Beroepsopleidingscampus Moers
objectflor
Combineer architectuur van nu met een veilig dak
Gorter Luiken BV
Circulair, Platowood Fraké zwemgebouw - Ons Buiten
Platowood
MKC Azalea – Amsterdam
VBI
Ga naar het projecten-overzicht
Voor een optimale gebruikservaring plaatst Architectenweb functionele cookies. Wat de verschillende cookies precies doen leggen we uit in een
overzicht
. Cookies van social media kun je optioneel
aanzetten
.
Akkoord
Instellingen
Annuleren
OK
Sluiten
Doorgaan
Inloggen
Maak een gratis persoonlijk account aan
Feedback
Feedback
Wij horen graag jouw feedback. Laat je reactie achter en eventueel jouw e-mail adres.
Reactie
Verstuur