Projecten
Producten
Bedrijven
Vacatures
Agenda
Awards
Podcasts
more_horiz
Videos
Magazine
Thema's
Favorieten
Profiel
Uitloggen
Abonneer je nu op onze nieuwsbrieven!
Abonneren
Nee, bedankt
Ja, denk met me mee rond de
materialisering van mijn project
Producten
Avondbeeld vanaf Spuiplein
Copyright: Ossip van Duivenbode
Foyer
Copyright: Katja Effting
Spuiplein
Copyright: Ossip van Duivenbode
Tussenruimte
Copyright: Katja Effting
Theaterzaal
Copyright: Katja Effting
Foyer eerste verdieping
Copyright: Ossip van Duivenbode
Concertzaal
Copyright: Katja Effting
Kunstenplein Begane Grond
Copyright: Ossip van Duivenbodee
Copyright: Katja Effting
De Concertzaal
Copyright: Katja Effting
Concertzaal - zicht vanaf achter het orkest
Copyright: Katja Effting
Concertzaal
Copyright: NOAHH
Conservatoriumzaal
Copyright: Jan Richard Kikkert
Studio Amare
Copyright: Jan Richard Kikkert
Muziekstudio Koninklijk Conservatorium
Copyright: Katja Effting
Stadskantine
Copyright: Katja Effting
Verborgen 'wormgat'-route naar de green room van het NDT
Copyright: Katja Effting
Turfmarkt
Copyright: Ossip van Duivenbode
Turfmarkt - route tussen Den Haag CS en Spui
Copyright: Ossip van Duivenbode
Lampen voor de artiestenfoyer, gemaakt door Noahh
Copyright: Katja Effting
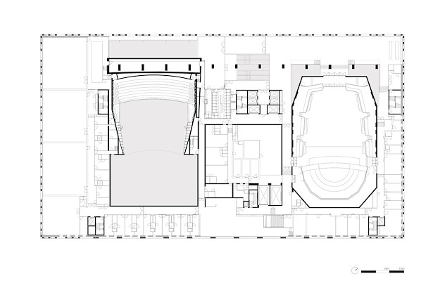
Langsdoorsnede
Copyright: NOAHH | Network Oriented Architecture
Doorsnede DD over Theaterzaal
Copyright: NOAHH | Network Oriented Architecture
Doorsnede BB over Concertzaal
Copyright: NOAHH | Network Oriented Architecture
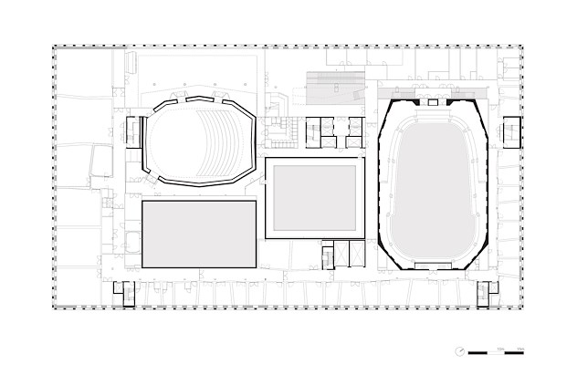
Plattegrond Begane Grond
Copyright: NOAHH | Network Oriented Architecture
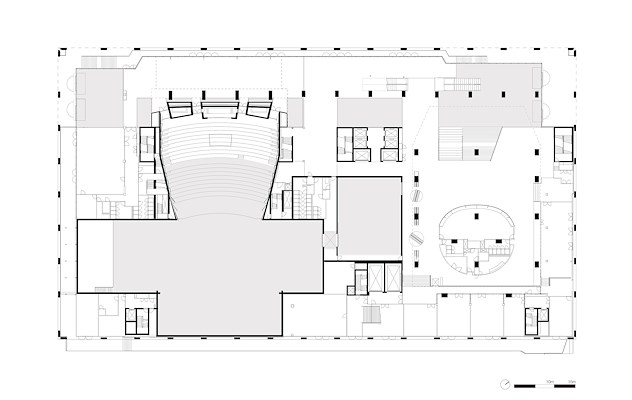
Plattegrond 1e Verdieping
Copyright: NOAHH | Network Oriented Architecture
Plattegrond 2e Verdieping
Copyright: NOAHH | Network Oriented Architecture
Plattegrond 3e Verdieping
Copyright: NOAHH | Network Oriented Architecture
Plattegrond 4e Verdieping
Copyright: NOAHH | Network Oriented Architecture
Plattegrond 6e Verdieping - Conservatorium
Copyright: NOAHH | Network Oriented Architecture
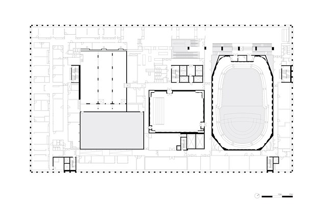
Situatietekening
Copyright: NOAHH | Network Oriented Architecture
Producttags
AAN
UIT
Amare huis van de podiumkunsten
13 maart 2019
1
0
0
0
Amare is hét nieuwe cultuurgebouw in Den Haag:
een huis voor podiumkunsten, creatieve ontwikkeling, internationaal excellente programmering en congressen. Deze markante en eigenzinnige architectonische blikvanger is in opdracht van de gemeente Den Haag ontworpen door NOAHH i.s.m. JCAU en NL Architects.
De combinatie van professionele artiesten en studenten samen in één gebouw is uniek. Die creatieve synergie is voelbaar in het hele gebouw, én daarbuiten.
Een groot deel van Amare is publiek toegankelijk en het gebouw biedt ongekend veel mogelijkheden in gebruik.
Een blikvanger met internationale allure
Amare
is het nieuwe onderkomen voor Stichting Amare (voormalig Stichting Dans- en Muziekcentrum Den Haag), het Nederlands Dans Theater (NDT), het Residentieorkest en het Koninklijk Conservatorium.
Amare
is gebouwd op de locatie van het oude
L
ucent Danstheate
r en de Dr. Anton Philipszaal.
Amare
is stedenbouwkundig optimaal ingepast en vormt de ziel van het culturele hart van Den Haag waar ook het Theater aan het Spui, het Filmhuis, de Nieuwe Kerk, de Openbare Bibliotheek en het Atrium van het Stadhuis deel van uitmaken. Het vormt de voltooiing van de Haagse Loper die van het Centraal Station naar Spuiplein loopt.
Amare
is een cultuurgebouw met internationale allure, uitnodigend voor bezoekers en inwoners, een creatieve broedplaats voor de gebruikers: een verrijking voor Den Haag.
Stedelijke continuiteit
Amare
heeft een grote meerwaarde voor de levendigheid en het veelzijdige karakter van het centrum. Het is een gebouw waar 24/7 activiteiten kunnen plaatsvinden. Ook zonder kaartje kan je in
Amare
terecht voor gewoon een kop koffie, een yogales of een bezoek aan de ‘markt’ op het
Kunstenplein
of het kindertheater op
Park één
.
De onderste lagen van het gebouw vormen een doorwaadbare en gastvrije passage waar iedereen zich vrij doorheen kan bewegen. Er is niet één formele entree maar een groot entreegebied met pleinen en straten.
Amare
toont zich naar alle kanten en laat zich bekijken vanuit alle richtingen: het oude centrum, het bestuurscentrum, het zakenkwartier, het woongebied én de Rivierenbuurt. De talloze verbindingen met al deze richtingen zorgen ervoor dat de omgeving actief wordt betrokken bij het gebouw.
Amare
is een stedelijk ensemble dat door haar alzijdigheid de beleving van deze plek in Den Haag intensiveert en de aanhechting met de binnenstad en omliggende buurten verbetert.
Een stad met grote gebouwen en geheime steegjes
Amare
is eigenlijk een stad van grote gebouwen, met daar tussen straten, stegen en pleinen. Naast de grote zalen zijn er vele kleinere studio’s, prachtige ruimtes waar je niet alleen kunt oefenen, maar ook een concertje of een optreden kunt geven. Uniek aan
Amare
is dat professionals en studenten samen in één gebouw zitten. Onderweg naar hun muzieklokaal passeren de studenten van het Koninklijk Conservatorium de
Concertzaal,
de
Amare Studio
of het
Danstheater.
Hier kunnen ze de professionals van het Residentieorkest of het Nederlands Dans Theater (NDT) zien oefenen of optreden.
Amare
brengt gebruikers en bezoekers op verschillende manieren bij elkaar. Interne verbindingen tussen de domeinen van het Koninklijk Conservatorium, het Residentieorkest en NDT maken spontane interactie mogelijk. Zo hebben de dansers van het NDT hun eigen
Green Room
van waaruit zij kunnen kijken naar het publiek dat binnenstroomt.
Een sierlijk en compact gebouw
Het compacte gebouw heeft een ingetogen maar zelfverzekerd ontwerp met een beeldbepalende, ritmische gevel. De vanzelfsprekende continuïteit van het stedelijk weefsel is gerealiseerd door de gevel te openen ‘als een serie theatergordijnen’, met brede doorgangen van acht tot tien meter. In de sierlijke vrijstaande gevel is de tektoniek, het ‘dragen’, manifest gemaakt. De constructie vormt in de kroon een elegant weefsel dat het gebouw omspant. De organisch vormgegeven boomtak-structuur is samengesteld uit geprefabriceerde betonnen elementen De verticale ramen van de muziekstudio’s en kantoorruimten daar achter lopen van vloer tot plafond. Daardoor is er goed visueel contact met de straat en wordt buiten zichtbaar wat zich binnen afspeelt.
Publiek interieur
Het interieur kent een opeenvolgende reeks van ontmoetingsruimten die op de verdiepingen wordt voortgezet in een reeks karakteristieke foyers. De begane grond en bel-etage zijn publiek toegankelijk. Vides, trappen en roltrappen verbinden de publieke foyers met de vier grote zalen die zich in het interieur visueel sterk manifesteren. In het interieur komen verschillende werelden samen, als in een ‘multiversum’. Dat er meerdere architecten bij de uitwerking betrokken waren, versterkt dit effect nog extra. Talloze vides en trappen verbinden de verschillende werelden met elkaar. Daarnaast zijn er diverse ongedefinieerde tussenruimten die de gebruikers zelf kunnen toe-eigenen.
Doordat de foyers langs de gevel aan de Turfmarkt liggen, verlevendigen zij met grote glasopeningen de Haagse Loper in de avonduren. Ook de
Stadskantine
op de derde verdiepingspeelt een belangrijke rol in het interieur. Als een dorpsplein verbindt deze kantine de foyers en de verschillende domeinen met elkaar. Met een eigen, haast mediterrane, identiteit vormt deze ontmoetingsruimte voor artiesten, studenten en bezoekers het hart van het gebouw.
Akoestiek van wereldklasse
De typologie van
Amare
gaat uit van een plaatsing van grote zalen naast en over elkaar, omgeven door een ring van muziekstudio’s en lesruimten. De zalen worden niet gestapeld maar naast elkaar geplaatst met eigen draagconstructies en funderingen, zodat geluidsoverdracht uitgesloten wordt.
Amare
heeft een akoestiek van wereldklasse, met dank aan Federico Cruz Barney van Studio DAP Parijs. Het antracietzwarte interieur van het
Danstheater
refereert aan de oude
Lucent Danszaal.
De vele beweegbare wandpanelen zorgen voor een uitstekende variabele akoestiek voor dans, spraak en opera. De
Concertzaal
heeft een klassieke hoofdopzet. Bijzonder zijn de betonnen wandafwerkingen en goudkleurige schuifpanelen om de akoestiek te kunnen regelen. Het metalen plafond maakt de zaal heel modern. De
Conservatoriumzaal
is in basis van beton. Houten lamellen en dubbel gekromde betonnen balustrades zorgen hier voor de juiste geluidverstrooiing. De
Amare Studio
, ook de repetitiezaal van het Residentieorkest, is de meest intieme zaal.
Identiteiten
Amare
huisvest door een rijke afwisseling in materiaal en kleur verschillende werelden in één gebouw. Elke zaal heeft aan de buitenzijde een bijzondere herkenbare afwerking. Zo is de afwerking van het
Danstheater
van bamboe, is de
Concertzaal
omhult door een goudkleurige metaalplaat en is de
Conservatorium zaal
gehuld in bruut beton. Rondom de zalen bevinden zich foyers die in sfeer aansluiten bij de zaal: de Concertzaalfoyers kenmerken zich door Escher-achtige zwart stalen trappen en goudgekleurde metalen wandbekleding en witte kolommen. De
Danstheaterfoyer
heeft een bamboe houten schil over de hele hoogte van de zaal met zwart spiegelglazen kolommen. De
Club 4,
foyer van het conservatorium
,
heeft een zwart stalen interieur en bar die past bij de bruut betonnen gevel met zwart stalen entreeportalen van de
Conservatoriumzaal
.
Iedere gebruiker heeft zijn eigen domein: een plek met een eigen identiteit. Door de domeinen dicht bij elkaar te plaatsen, ontstaat creatieve synergie. De interactie tussen domeinen en verdiepingen wordt versterkt door de aanwezigheid van vides en patio’s. Het gebouw biedt veel ruimte en ongedefinieerde ‘tussenruimten’ die de gebruikers en artiesten zelf kunnen toe-eigenen.
Toonbeeld van duurzaamheid
Duurzaamheid vraagt niet alleen om een kwalitatief hoogwaardig gebouw voor deze tijd, maar ook voor de toekomst.
Amare
heeft een grote flexibiliteit om toekomstige ontwikkelingen op te vangen. Doordat dragende binnenwanden zijn vermeden, zijn de vloervelden volledig vrij in te delen. Wijzigingen kunnen worden uitgevoerd zonder dat er constructieve ingrepen noodzakelijk zijn.
Amare
heeft een BREEAM Excellent certificaat behaald, waarbij technische en energetische duurzaamheid net zo belangrijk is als tevredenheid, kwaliteit en gebruiksvriendelijkheid. Het dak is volledig voorzien van PV panelen. Bijzonder is het hergebruik van de bestaande ondergrondse parkeergarages. Naast de toekomstwaarde, en voortbouwen op wat er al is, is
Amare
een ‘inclusief gebouw’: een gebouw dat voor iedereen toegankelijk is en waarin tussen de takken van de gevels letterlijk vogelnestkasten en vleermuizenholen zijn gerealiseerd.
De ontmoetingsplek van Den Haag
Directeur van Amare Jan Zoet: 'Uiteindelijk moet het gebouw en het plein ervoor dé ontmoetingsplek van Den Haag worden'. Amare wenste een gebouw waarin iedereen welkom is en wordt uitgenodigd om mee te doen. Geen plek van enkel zenden, maar ook van interactie en co-creatie. Met niet alleen professionals op het podium, maar waar ook amateurs kunnen meespelen. Een gebouw met ruimte voor spontane performances, bijzondere programmering en interactie tussen de verschillende gebruikers. En dat is gelukt.
Stel jezelf kort voor! Dan weet het betreffende bedrijf wie hun model gedownload heeft.
Wil je niet bij elke download jouw gegevens in hoeven voeren?
Klik dan hier om in te loggen
.
Heb je nog geen account?
Maak dan hier een gratis account aan
.
Voornaam
Achternaam
E-mailadres
Downloaden
Wanneer je modellen downloadt op Architectenweb.nl worden relevante gegevens van jou – zoals jouw naam en e-mailadres – met het betreffende bedrijf gedeeld. Meer hierover lees je in ons
privacybeleid
.
Locatie
Trefwoorden
patrickfransen
networkorientedarchitecture
cultuur
nlarchitects
noahh
architectuur
cultureelgebouw
denhaag
occ
breeam excellent
theater
jcau
conservatorium
concertzaal
NOAHH | Network Oriented Architecture
Neem contact op
Projectdata
Staat van realisatie
Voltooid
Start ontwerpproces
2014
Start bouw
2017
Oplevering
2021
Ingebruikname
2021
Plaats
Den Haag
Bruto m
2
54000
Meewerkende partijen
Architect
NOAHH | Network Oriented Architecture
, JCAU Architects & Urbanists,
NL Architects
Interieurarchitect
NOAHH | Network Oriented Architecture
, JCAU Architects & Urbanists, Brunn Ontwerp, Studio Aziz Bekkaoui
Projectarchitect
Patrick Fransen
Opdrachtgever
Bouwcombinatie Cadanz,
Gemeente Den Haag
Aannemer
Bouwcombinatie Cadanz
Constructeur
Aronsohn raadgevende ingenieurs B.V.
Adviseurs installaties E & W
Ingenieursburo Linssen B.V.
Fotograaf
Katja Effting, ©Ossip Van Duivenbode
Leveranciers
Automatisch sluiten van deuren bij brandmelding
dormakaba Nederland B.V.
Interieurbouw
Gielissen Interiors & Exhibitions, Harryvan Interieurbouw
Gevelbekleding
Hi-Con Nederland
Tourniquets
Boon Edam Nederland B.V.
Theaterstoelen
Mobelli Contract Seating
Bekleding concertzaal
Metadecor
Aluminium kozijnsystemen, Vliesgevels
Kawneer
gevelkolommen
Westo Prefab Beton Systemen
Houten vloeren
Finesse Parketvloeren B.V.
Neem contact op met
NOAHH | Network Oriented Architecture
Je bent momenteel niet ingelogd. Hierdoor is het alleen mogelijk om meer informatie per e-mail op te vragen. Wil je liever gebeld worden of documentatie per post ontvangen?
Klik dan hier om in te loggen
.
Heb je nog geen account?
Maak dan hier een gratis account aan
.
Voornaam
Achternaam
E-mailadres
Opmerkingen
Bij iedere aanvraag worden relevante gegevens van jou gedeeld met het betreffende bedrijf. Meer hierover lees je in ons
privacybeleid
.
Ja, denk met me mee rond de
materialisering van mijn project
Meer projecten van NOAHH | Network Oriented Architecture
Transformer Theater aan de Parade 's Hertogenbosch
NOAHH | Network Oriented Architecture
Het Nieuwe Theater aan de Parade, 's-Hertogenbosch
NOAHH | Network Oriented Architecture
Villa Vaartjes, Almere Oosterwold
NOAHH | Network Oriented Architecture
Transformatie monumentale stolpboerderij
NOAHH | Network Oriented Architecture
Nieuwe Foodhal Schalkwijk
NOAHH | Network Oriented Architecture
Dorpshart Zwartewaal
NOAHH | Network Oriented Architecture
Natuur-inclusieve school campus CSG Reggesteyn
NOAHH | Network Oriented Architecture
Nieuwbouw MFC BS Rockanje
NOAHH | Network Oriented Architecture
Circulaire nieuwbouw Christelijk Lyceum Veenendaal
NOAHH | Network Oriented Architecture
Nieuwbouw Zwembad Den Ekkerman
NOAHH | Network Oriented Architecture
Nieuwbouw School MFA 'Onderdak'
NOAHH | Network Oriented Architecture
Het Nieuwe Theater aan de Parade, 's-Hertogenbosch
NOAHH | Network Oriented Architecture
Belvédère Appartementen
NOAHH | Network Oriented Architecture
TivoliVredenburg
NOAHH | Network Oriented Architecture
Transformatie en Renovatie ESTEC Zone A
NOAHH | Network Oriented Architecture
Licht Verdicht
NOAHH | Network Oriented Architecture
MFC Doelum, Renkum
NOAHH | Network Oriented Architecture
Transformer Theater aan de Parade 's Hertogenbosch
NOAHH | Network Oriented Architecture
Het Nieuwe Theater aan de Parade, 's-Hertogenbosch
NOAHH | Network Oriented Architecture
Villa Vaartjes, Almere Oosterwold
NOAHH | Network Oriented Architecture
Transformatie monumentale stolpboerderij
NOAHH | Network Oriented Architecture
Nieuwe Foodhal Schalkwijk
NOAHH | Network Oriented Architecture
Dorpshart Zwartewaal
NOAHH | Network Oriented Architecture
Natuur-inclusieve school campus CSG Reggesteyn
NOAHH | Network Oriented Architecture
Nieuwbouw MFC BS Rockanje
NOAHH | Network Oriented Architecture
Circulaire nieuwbouw Christelijk Lyceum Veenendaal
NOAHH | Network Oriented Architecture
Nieuwbouw Zwembad Den Ekkerman
NOAHH | Network Oriented Architecture
Nieuwbouw School MFA 'Onderdak'
NOAHH | Network Oriented Architecture
Het Nieuwe Theater aan de Parade, 's-Hertogenbosch
NOAHH | Network Oriented Architecture
Belvédère Appartementen
NOAHH | Network Oriented Architecture
TivoliVredenburg
NOAHH | Network Oriented Architecture
Transformatie en Renovatie ESTEC Zone A
NOAHH | Network Oriented Architecture
Licht Verdicht
NOAHH | Network Oriented Architecture
MFC Doelum, Renkum
NOAHH | Network Oriented Architecture
Toon alles
Gerelateerde producten
RT 72 Reflex
Cradle to Cradle gecertificeerd aluminium raam- en deursysteem
Kawneer
Inbraakwerende Entreeoplossingen
Boon Edam Nederland B.V.
MD Designperforatie Gevelbekleding
Gegarandeerd een unieke en spraakmakende uitstraling met jouw gevel
Metadecor
dormakaba TS 99 FL vrijloopdeurdranger
100% veilig met een unieke vrijloopfunctie
dormakaba Nederland B.V.
AA 100
Aluminium vliesgevel
Kawneer
RT 72 Reflex
Cradle to Cradle gecertificeerd aluminium raam- en deursysteem
Kawneer
Inbraakwerende Entreeoplossingen
Boon Edam Nederland B.V.
MD Designperforatie Gevelbekleding
Gegarandeerd een unieke en spraakmakende uitstraling met jouw gevel
Metadecor
dormakaba TS 99 FL vrijloopdeurdranger
100% veilig met een unieke vrijloopfunctie
dormakaba Nederland B.V.
AA 100
Aluminium vliesgevel
Kawneer
Toon alles
Andere Projecten
Phoenix Contact
VBI
Six Degrees Café
Malaysian Timber Council
Multifunctioneel gebouw met aluminium vliesgevel
Aliplast Aluminium Systems
De Nieuwe Meent
Time to Access
Gevelsteen vormt monumentaal ontwerp
Steenbakkerij Vande Moortel
Opvallende rondschuifdeuren in Gare de Mons
GEZE Benelux B.V.
Twee woningconcepten, één samenhangend straatbeeld
Innoblox
Flexibel bedrijfsgebouw met modulaire kantoorunit
Buro De Haan
BDO kantoor Breda
ULMA Architectural Solutions
Campus Sportief Besteed Groep — Wubben.Chan
Wubben.Chan architecten
Toegangscontrole op een dynamisch terrein
Heras
Biobased bouwen naast Natura 2000-gebied
KUBUS | Specialist in Archicad
Ga naar het projecten-overzicht
Voor een optimale gebruikservaring plaatst Architectenweb functionele cookies. Wat de verschillende cookies precies doen leggen we uit in een
overzicht
. Cookies van social media kun je optioneel
aanzetten
.
Akkoord
Instellingen
Annuleren
OK
Sluiten
Doorgaan
Inloggen
Maak een gratis persoonlijk account aan
Feedback
Feedback
Wij horen graag jouw feedback. Laat je reactie achter en eventueel jouw e-mail adres.
Reactie
Verstuur