Projecten
Producten
Bedrijven
Vacatures
Agenda
Awards
Podcasts
more_horiz
Videos
Magazine
Favorieten
Profiel
Uitloggen
Abonneer je nu op onze nieuwsbrieven!
Abonneren
Nee, bedankt
Ja, denk met me mee rond de
materialisering van mijn project
Producten
Daglicht vormt het karakter van het interieur middels de typische Veenendaalse sheddaken.
Copyright: Katja Effting
Leerlandschappen in het sociale hart van de school: elkaar ontmoeten en inspireren.
Copyright: Katja Effting
Het atrium is dé plek waar leerlingen eigen werk tentoon kunnen stellen.
Copyright: Katja Effting
Informele, veilige werkplekken in het leerlandschap.
Copyright: Katja Effting
Diverse formele, informele en stille werkplekken.
Copyright: Katja Effting
De Science laboratoria zijn ontworpen in harmonie met het petrolkleurige leerlandschap.
Copyright: Katja Effting
De houten volumes hebben een hoge akoestische kwaliteit.
Copyright: Katja Effting
Het atrium is dé plek waar leerlingen geïnspireerd worden.
Copyright: Katja Effting
Transformatie monofunctioneel onderwijs naar een driedimensionaal leerlandschap.
Copyright: Katja Effting
Het monumentale kunstwerk van Hedda Buijs siert in nieuwe toestand de entree.
Copyright: Katja Effting
Het Christelijk Lyceum Veenendaal anno 1968.
Copyright: NOAHH | Network Oriented Architecture
Het oude gebouw leeft voort in het nieuwe: de rigide structuur van het oorspronkelijke gebouw vormt.
Copyright: Katja Effting
Doorsnede A
Copyright: NOAHH | Network Oriented Architecture
Doorsnede B
Copyright: NOAHH | Network Oriented Architecture
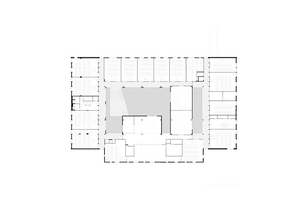
Begane grond
Copyright: NOAHH | Network Oriented Architecture
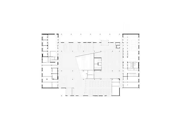
Eerste verdieping
Copyright: NOAHH | Network Oriented Architecture
Tweede verdieping
Copyright: NOAHH | Network Oriented Architecture
Situatietekening
Copyright: NOAHH | Network Oriented Architecture
Sociaal hart van CLV: het verbinden van bestaande gebouwstructuren.
Copyright: NOAHH | Network Oriented Architecture
Producttags
AAN
UIT
Circulaire nieuwbouw Christelijk Lyceum Veenendaal
29 juni 2020
2
0
0
0
Bouwen voor de toekomst, met respect voor het verleden! Onder dat motto is het Christelijk Lyceum Veenendaal (CLV) verduurzaamd, gerenoveerd en deels vervangen door (ver)nieuwbouw. Op de locatie waar ruim vijftig jaar geleden het CLV haar deuren opende, werd afgelopen november een prachtige, toekomstgerichte én (bijna) energie-neutrale school opgeleverd. Het multifunctionele leerlandschap vormt het karakter van de school. Voor het interieur werkte
NOAHH | Network Oriented Architecture
met
EX Interiors
samen.
Circulariteit en identiteit centraal
Het bestaande CLV had een inefficiënte indeling met lange gangen en klaslokalen aan één zij. De gangen waren als flessenhalzen en veroorzaakten opstopping. Het gebouw was technisch en functioneel verouderd en qua indeling, energieverbruik en binnenklimaat aan vervanging toe. Wij hebben ervoor gekozen om zo veel mogelijk van de herkenbare, oude betonconstructie van het bestaande hoofdgebouw uit 1968 te behouden en te transformeren naar een compact, duurzaam en toekomstgericht schoolgebouw, dat gevormd wordt door een drie-laags volume met een atrium als sociaal hart. Het oude karakter van de school blijft voelbaar in het nieuwe gebouw. Met de zorgvuldige positionering ten opzichte van waardevol en historisch groen wordt de identiteit van de campus en de aansluiting op de buurt en de Kerkewijk versterkt.
Leerlandschappen en sociaal hart
Het schoolgebouw is letterlijk en figuurlijk opengewerkt, waardoor er tussen de bestaande flanken een atrium is ontstaan met veel daglicht dat binnenvalt middels de ooit veel in Veenendaal voorkomende industriële sheddaken. Ingeklemd tussen deze twee bestaande flanken is een sociaal hart gemaakt waar de dynamiek van zowel het hedendaagse en de toekomstige vorm van onderwijs tot uiting komt in het gebruik. Op deze wijze transformeerden wij de monofunctionele onderwijsplekken naar een driedimensionaal leerlandschap. De leeromgeving richt zich niet langer op activiteiten in maar op de gebruikers en biedt een plek waar leerlingen geïnspireerd worden. Zo biedt het leerlandschap verschillende informele werkplekken en zijn ook de trappen breed inzetbaar ten behoeve van voorstellingen of als verlengstuk van de aula. Elk leergebied sluit aan op een leerplein horend bij een vakgroep; dit biedt mogelijkheden voor diverse vormen van cursorisch, projectmatig en contextrijk onderwijs.
Ruimte voor talent en ontwikkeling
Het atrium van de school is de plek waar leerlingen geïnspireerd worden: het is dé plek waar de verschillende leergebieden, zoals bijvoorbeeld de praktijkruimten van Kunst & Cultuur en Science, een duidelijk eigen identiteit krijgen en waar het onderwijs zichtbaar wordt. Boven de trap zweven met hout beklede imposante volumes met grote etalages waar leerlingen hun werk kunnen tentoonstellen. De modecreaties die eerder in een hoekje stonden te verstoffen krijgen nu een plek in het hart van de school. Dit inspireert de leerlingen en biedt ruimte voor talent en ontwikkeling. Tevens fungeert CLV als voorbeeld voor leerlingen, om na te denken over hoe je op toekomstgerichte wijze kunt bouwen.
Verbindende omgeving
Tijdens het ontwerpen hebben wij onderzoek gedaan naar hoe de petrol-kleurige, multifunctionele trap meer kan zijn dan alleen een functionele verbinder. Dit resulteerde in een fraaie, beeldbepalende sculpturale beweging die ook de mogelijkheid gaf om de open gangen en leerpleinen met elkaar te vervlechten. Een verbindende omgeving waar leerlingen samen kunnen komen bij de projecttafels, kunnen ontspannen, maar ook in een treincoupé kunnen kruipen om te leren voor een toets. Voor het interieur is gekozen voor een warm, natuurlijk en rustig kleurenpalet dat aansluit bij de identiteit van de school.
Duurzaam hergebruik
Circulariteit en duurzaam hergebruik van materialen stonden centraal in het ontwerp-, sloop- en bouwproces. Hieraan gaven we in de eerste plaats invulling door het bestaande te behouden: van het gesloopte deel is zo veel mogelijk hergebruikt. Zo’n 44 procent van de oude betonconstructie is opgenomen in het gebouw, en het overige beton is vermalen tot granulaat en ingezet voor de nieuwbouw. Het gebouw is door deze combinatie van oud en nieuw in opzet veel compacter, beter gepositioneerd en georiënteerd, en energetisch duurzamer.
Het nieuwe schoolgebouw van het Christelijk Lyceum Veenendaal is een bijna energieneutraal gebouw (BENG), FRIS* en duurzaam. Tevens is de school gasloos en op het dak liggen zonnepanelen. Dit leidt tot een CO2-reductie van 50 tot 60%. Naast een lage energiebehoefte is er in het ontwerp ook extra aandacht uitgegaan naar het creëren van gunstige vormfactoren zodat de energiebehoefte omlaag gaat en het realiseren van een gezond binnenmilieu.
Respect voor het verleden
Wij vinden het belangrijk om de bestaande en bijzondere kwaliteiten van architectuur te behouden en te koesteren. Een respectvolle omgang met het oude gebouw van het Christelijk Lyceum Veenendaal ligt daarmee in het verlengde van onze toekomstgerichte ambitie. Wij beschouwen de school als een maatschappelijk gebouw waar het goede voorbeeld gegeven moet worden; een fijne plek waar verbinding centraal staat. Daarom vertelt het gebouw een belangrijk verhaal door respectvol en liefdevol om te gaan met wat al bestaat, waarbij het eigen karakter van de school voelbaar blijft.
Naast het directe hergebruik van de betonconstructie en hergebruik van betonpuin op de locatie zelf, zijn er uit de sloop allerlei zaken elders, al dan niet eerst bewerkt, hergebruikt. Mooie voorbeelden zijn de staalconstructie van het dak, houten balklagen, de graffitipanelen op de gevel, en de gordijnen waarvan men hangmatten heeft kunnen maken. Een deel van het granulaat dat overbleef na verpulvering van de betonnen delen waar geen asbest in zat, is gebruikt om een grote parkeerplaats van een nieuw bedrijfspand in de buurt een stevige basis te geven.
Kunst krijgt tweede leven
Ook de kunst uit het oorspronkelijke CLV krijgt een tweede leven. Het monumentale kunstwerk van Hedda Buijs dat vijftig jaar als reliëf in een muur van het Christelijk Lyceum Veenendaal heeft gezeten, siert in nieuwe toestand de entree. Omdat de school deels gesloopt werd, dreigde het werk te verdwijnen. Hedda Buijs heeft samen met CLV-rector-bestuurder Willem de Vos en NOAHH ervoor gezorgd dat het kunstwerk intern een nieuwe plek krijgt. De Vos: “Het was een koud kunstje geweest om het werk met één pennestreek tot de container te veroordelen. Maar dat past niet in onze visie op nieuw bouwen.” Het abstract-expressionistische mozaïek van zwarte leisteenstroken en kleurig glaskeramiek is bij de hoofdingang van de school een tweede leven begonnen.
CLV bouwt aan de toekomst!
Als opdrachtgever neemt het CLV een proactieve, educatieve rol in het bouwproces, waarbij kennisdeling over circulariteit integraal onderdeel wordt van het onderwijs, en tevens het potentieel van duurzaam ontwerpen als dé basis voor een succesvolle leeromgeving aantoont. Door haar leerlingen in een vroegtijdig stadium, in o.a. het vak NWO, al bij de duurzaamheidsgedachte die ten grondslag ligt aan het ontwerp te betrekken, worden leerlingen gestimuleerd om na te denken over hoe je met (groene) energie en hergebruik kunt omgaan. Middels informatie nieuwsberichten en updates zijn ouders, leerlingen en buurtbewoners op de hoogte gehouden via
www.clvbouwt.nl
. In onder andere het vak NWO (Natuurwetenschappelijk Onderzoek) werd door de leerlingen onderzoek gedaan naar de verschillende facetten van duurzaamheid, zoals groene energie, afvalverwerking, hergebruik, materiaaltoepassingen en energieverbruik. Actuele thema’s die ook in de nieuwbouw terugkomen.
Stel jezelf kort voor! Dan weet het betreffende bedrijf wie hun model gedownload heeft.
Wil je niet bij elke download jouw gegevens in hoeven voeren?
Klik dan hier om in te loggen
.
Heb je nog geen account?
Maak dan hier een gratis account aan
.
Voornaam
Achternaam
E-mailadres
Downloaden
Wanneer je modellen downloadt op Architectenweb.nl worden relevante gegevens van jou – zoals jouw naam en e-mailadres – met het betreffende bedrijf gedeeld. Meer hierover lees je in ons
privacybeleid
.
Locatie
Trefwoorden
duurzaam
ex interiors
hevo
clv
identiteit
pieters bouwtechniek
noahh
noahh | network oriented architecture
middelbare school
innax
zri
circulair
transformatie
scholenbouw
hergebruik
NOAHH | Network Oriented Architecture
Neem contact op
Projectdata
Staat van realisatie
Voltooid
Start ontwerpproces
2018
Start bouw
2019
Oplevering
2020
Ingebruikname
2020
Plaats
Veenendaal
Kosten
8258000
Bruto m
2
6575
Netto m
2
6087
Meewerkende partijen
Architect
NOAHH | Network Oriented Architecture
Interieurarchitect
NOAHH | Network Oriented Architecture
,
Ex Interiors
Projectarchitect
Patrick Fransen, Loes Thijssen, Odette Ex (Interieurarchitect)
Ontwerpteam
Geert Mol, Bawar Tanay, Xabier Larrinaga, Bilal Karaburun, Barbara Busslinger, Elisa Zampogna, Ilse Bakker, Alena Ulasava, Paulina Kapczynska, Magdalena Nalepa, Alicja Malek, Caterina Debidda, Eleonora Gaudini, Blaz Solar, Daan van Westen
Opdrachtgever
HEVO
Aannemer
Burgland Bouw B.V.
Constructeur
Pieters Bouwtechniek Utrecht B.V.
Fotograaf
Katja Effting
Interieurontwerper
Marco de Rover, Hetty Keiren, Aaltsje Venema, Rob Kwak
Projectmanagement
HEVO
Adviseur bouwfysica
ZRI
Adviseur installaties E
INNAX
Adviseur akoestiek
ZRI
Interieurbouwer
Harryvan Interieurbouw
Installateur
ITN Installatietechniek B.V. Ede, Verstappen van Amelsvoort Nuland
Leveranciers
Overig
VELUX Nederland B.V.
,
Rockpanel
, Reijnaers, Shiluvit, Bruynzeel Wandafwerking, Katja Effting,
Bolidt Kunststoftoepassing B.V.
, Stobich, Schellekens & Schellekens B.V.,
nora® by Interface
, Gispen, Koninklijke Mosa
Overig
Kedge Safety Systems BV
Neem contact op met
NOAHH | Network Oriented Architecture
Je bent momenteel niet ingelogd. Hierdoor is het alleen mogelijk om meer informatie per e-mail op te vragen. Wil je liever gebeld worden of documentatie per post ontvangen?
Klik dan hier om in te loggen
.
Heb je nog geen account?
Maak dan hier een gratis account aan
.
Voornaam
Achternaam
E-mailadres
Opmerkingen
Bij iedere aanvraag worden relevante gegevens van jou gedeeld met het betreffende bedrijf. Meer hierover lees je in ons
privacybeleid
.
Ja, denk met me mee rond de
materialisering van mijn project
Meer projecten van NOAHH | Network Oriented Architecture
Transformer Theater aan de Parade 's Hertogenbosch
NOAHH | Network Oriented Architecture
Het Nieuwe Theater aan de Parade, 's-Hertogenbosch
NOAHH | Network Oriented Architecture
Villa Vaartjes, Almere Oosterwold
NOAHH | Network Oriented Architecture
Transformatie monumentale stolpboerderij
NOAHH | Network Oriented Architecture
Nieuwe Foodhal Schalkwijk
NOAHH | Network Oriented Architecture
Dorpshart Zwartewaal
NOAHH | Network Oriented Architecture
Natuur-inclusieve school campus CSG Reggesteyn
NOAHH | Network Oriented Architecture
Nieuwbouw MFC BS Rockanje
NOAHH | Network Oriented Architecture
Nieuwbouw Zwembad Den Ekkerman
NOAHH | Network Oriented Architecture
Nieuwbouw School MFA 'Onderdak'
NOAHH | Network Oriented Architecture
Het Nieuwe Theater aan de Parade, 's-Hertogenbosch
NOAHH | Network Oriented Architecture
Belvédère Appartementen
NOAHH | Network Oriented Architecture
TivoliVredenburg
NOAHH | Network Oriented Architecture
Transformatie en Renovatie ESTEC Zone A
NOAHH | Network Oriented Architecture
Amare huis van de podiumkunsten
NOAHH | Network Oriented Architecture
Licht Verdicht
NOAHH | Network Oriented Architecture
MFC Doelum, Renkum
NOAHH | Network Oriented Architecture
Transformer Theater aan de Parade 's Hertogenbosch
NOAHH | Network Oriented Architecture
Het Nieuwe Theater aan de Parade, 's-Hertogenbosch
NOAHH | Network Oriented Architecture
Villa Vaartjes, Almere Oosterwold
NOAHH | Network Oriented Architecture
Transformatie monumentale stolpboerderij
NOAHH | Network Oriented Architecture
Nieuwe Foodhal Schalkwijk
NOAHH | Network Oriented Architecture
Dorpshart Zwartewaal
NOAHH | Network Oriented Architecture
Natuur-inclusieve school campus CSG Reggesteyn
NOAHH | Network Oriented Architecture
Nieuwbouw MFC BS Rockanje
NOAHH | Network Oriented Architecture
Nieuwbouw Zwembad Den Ekkerman
NOAHH | Network Oriented Architecture
Nieuwbouw School MFA 'Onderdak'
NOAHH | Network Oriented Architecture
Het Nieuwe Theater aan de Parade, 's-Hertogenbosch
NOAHH | Network Oriented Architecture
Belvédère Appartementen
NOAHH | Network Oriented Architecture
TivoliVredenburg
NOAHH | Network Oriented Architecture
Transformatie en Renovatie ESTEC Zone A
NOAHH | Network Oriented Architecture
Amare huis van de podiumkunsten
NOAHH | Network Oriented Architecture
Licht Verdicht
NOAHH | Network Oriented Architecture
MFC Doelum, Renkum
NOAHH | Network Oriented Architecture
Toon alles
Andere Projecten
De stad van Aedes: waar werken wonen wordt
Tétris Design & Build
Nieuwbouw Residentie ZICHT Venlo
Knauf Insulation
Light House
Studioninedots
Nieuwbouw Slingeland Ziekenhuis Doetinchem
Knauf Insulation
Fraké Noir gevelbekleding op sanitairgebouw
Houthandel van Dam
The Family Delft
Houthandel van Dam
Houtlook lamellen voor aantrekkelijke nieuwbouw
Renson
De Toerist in Breda
DUCO Ventilation & Sun Control
Solarlux vouwwanden - Zuidkade Scheveningen
Solarlux Nederland B.V.
Multifunctioneel gebouw met aluminium vliesgevel
Aliplast Aluminium Systems
Van gesloten gevel naar transparant visitekaartje
Rockpanel
Den Hartogh Basecamp (Video)
Schüco Nederland
Ga naar het projecten-overzicht
Voor een optimale gebruikservaring plaatst Architectenweb functionele cookies. Wat de verschillende cookies precies doen leggen we uit in een
overzicht
. Cookies van social media kun je optioneel
aanzetten
.
Akkoord
Instellingen
Annuleren
OK
Sluiten
Doorgaan
Inloggen
Maak een gratis persoonlijk account aan
Feedback
Feedback
Wij horen graag jouw feedback. Laat je reactie achter en eventueel jouw e-mail adres.
Reactie
Verstuur