Projecten
Producten
Bedrijven
Vacatures
Agenda
Awards
Podcasts
more_horiz
Videos
Magazine
Favorieten
Profiel
Uitloggen
Abonneer je nu op onze nieuwsbrieven!
Abonneren
Nee, bedankt
Ja, denk met me mee rond de
materialisering van mijn project
Copyright: Studio AAAN
Copyright: Studio AAAN
Copyright: Studio AAAN
Copyright: Studio AAAN
Situatie
Copyright: Studio AAAN
Schets
Copyright: Studio AAAN
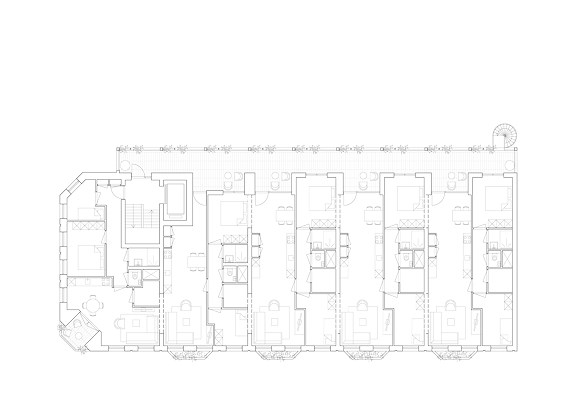
Begane grond
Copyright: Studio AAAN
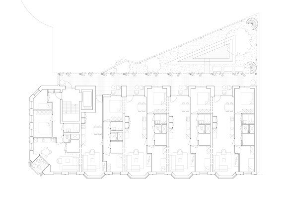
Eerste verdieping
Copyright: Studio AAAN
Tweede verdieping
Copyright: Studio AAAN
Derde verdieping
Copyright: Studio AAAN
Maquette
Copyright: Studio AAAN
Studio AAAN zoekt met Hillehuis aansluiting bij architectuur Beijerlandselaan
3 april, 15:52
Naar verwachting wordt na de bouwvak gestart met de bouw van het Hillehuis in Rotterdam-Zuid. Het gebouw aan de Beijerlandselaan in de wijk Hillesluis bestaat uit vijftien appartementen boven een commerciële plint. In het ontwerp zoekt
Studio AAAN
aansluiting met de architectuur uit de jaren 1920 in de directe omgeving.
De komst van het Hillehuis, dat is ingesloten tussen winkelpanden roodbakstenen winkelpanden en het markante gele Colosseumgebouw, vormt onderdeel van een kwalitatieve opwaardering van de Beijerlandselaan. Het gebouw rust op een plint met transparante winkeletalages, ingekaderd door kolommen en borstweringen in een lichtgrijze steen. Herhalende erkers geven het middendeel een verticale geleding en worden uitgevoerd in metselwerk.
Een reeks identieke gevelopeningen op de bovenste laag vormt de horizontale bekroning van het gebouw. Op de hoek met de Groningerstraat zorgen gemetselde balkons voor een plastische verbijzondering van de massa. Expressief metselwerk accentueert dakrand, bijzondere hoek en erkers. Al deze ontwerpkeuzes moeten het gebouw een uitgesproken eigen identiteit geven, die het Hillehuis als een ‘ondeelbare eenheid’ markeert, meldt Studio AAAN.
In het ontwerp is tevens ingezet op sociale en technische duurzaamheid. Het sociale hart van het gebouw wordt gevormd door een collectieve daktuin op de eerste verdieping. Deze groene buitenruimte speelt samen met intensieve groendaken ook een belangrijke rol in de waterberging, waarbij 43.000 liter water opgeslagen kan worden.
Het gebouw bevat twaalf doorzonappartementen met leefruimtes aan zowel de straatzijde als aan de daktuin. Erkers en Franse balkons vormen een connectie met de straat, private buitenruimtes aan de galerijzijde bieden uitzicht op het binnenterrein. De drie hoekappartementen beschikken over ruime woonkamers en beschutte hoekbalkons met zicht op het naastgelegen gebouw waarin zich ooit de Colosseumbioscoop bevond.
Trefwoorden
woningbouw
appartementengebouw
rotterdam-zuid
hillesluis
studio aaan
feijenoord
Locatie
Best gelezen
1
AM en Amvest zoeken architecten voor herontwikkeling Draka-terrein
dinsdag, 19 mei
2
Woningbouwproject KAAP langs het IJ in Amsterdam voltooid
dinsdag, 19 mei
3
Renovatie station Leeuwarden door Movares afgerond
woensdag, 20 mei
4
Dam & Partners ontwerpt multifunctioneel gebouw in Schinkelhaven
dinsdag, 19 mei
5
Tien nominaties voor NRP Gulden Feniks 2026
vrijdag, 15 mei
Gerelateerde nieuwsberichten
Luxe appartementengebouw naast klooster Etten-Leur door Studio AAAN klaar
19 maart
Woonblok Malieklos in Rotterdam-Zuid opgeleverd
24 maart 2022
De Kuil bouwt voort op karakter Afrikaanderwijk en voegt iets nieuws toe
22 april
Rotterdam vertaalt omgevingsvisie naar concrete keuzes en fasering
25 februari
Negentiende-eeuwse woningen in Feijenoord gered door er kluswoningen van te maken
4 mei
Woningbouwprogramma in Rotterdamse Tweebosbuurt aangepast naar meer betaalbaar
4 februari 2025
Sportcentrum op scharnierpunt in Rotterdam-Zuid opent zijn deuren
21 augustus 2024
Politieteam Feijenoord krijgt nieuwe thuisbasis op Rotterdam-Zuid
9 juli 2024
Raad Rotterdam stemt in met nieuwe stadsbrug op Oostflank
2 januari 2024
Woontoren De Piek naar ontwerp van KCAP voltooid
16 januari
Luxe appartementengebouw naast klooster Etten-Leur door Studio AAAN klaar
19 maart
Woonblok Malieklos in Rotterdam-Zuid opgeleverd
24 maart 2022
De Kuil bouwt voort op karakter Afrikaanderwijk en voegt iets nieuws toe
22 april
Rotterdam vertaalt omgevingsvisie naar concrete keuzes en fasering
25 februari
Negentiende-eeuwse woningen in Feijenoord gered door er kluswoningen van te maken
4 mei
Woningbouwprogramma in Rotterdamse Tweebosbuurt aangepast naar meer betaalbaar
4 februari 2025
Sportcentrum op scharnierpunt in Rotterdam-Zuid opent zijn deuren
21 augustus 2024
Politieteam Feijenoord krijgt nieuwe thuisbasis op Rotterdam-Zuid
9 juli 2024
Raad Rotterdam stemt in met nieuwe stadsbrug op Oostflank
2 januari 2024
Woontoren De Piek naar ontwerp van KCAP voltooid
16 januari
Toon alles
Andere nieuwsberichten
Bouw gestart van Sluisbuurt 1b ontworpen door Powerhouse Company en Beyond Space
Gisteren, 16:39
Aan het toekomstige Waterplein in de Amsterdamse Sluisbuurt, op kavel 1b, verrijst momenteel een woongebouw met 182 sociale huurwoningen en 45 middeldure huurwoningen. In het ontwerp is sterk ingezet om het stimuleren van onderlinge ontmoeting.
WRK Architecten gebruikt boom als centraal thema in interieurontwerp
Gisteren, 16:15
Voor het interieur van ICTRecht in Amsterdam heeft WRK Architecten modulaire meubels ontworpen die in de toekomst eenvoudig op een andere plek of zelfs in een ander gebouw opnieuw gebruikt kunnen worden.
Rotterdam Architectuur Maand maakt programma bekend
Gisteren, 14:36
De organisatie van de RA Maand heeft het programma van het evenement bekendgemaakt. De Test Site Materialenwerf fungeert dit jeer als festvalhart van het evenement.
Utrechtse flats gerenoveerd volgens 'chassis-carrosseriemethode'
Gisteren, 12:25
In de Utrechtse wijk Overvecht zijn in de flat Stroys de laatste 374 van in totaal 1800 woningen gerenoveerd. Vijf gebouwen werden onder handen genomen door DOOR architecten.
Mogelijk minder ruimte nodig voor uitbreidingsplannen Moerdijk
29 minuten geleden
Het dorp Moerdijk zou in dat geval kunnen blijven bestaan, aldus de gemeente.
Museum Rotterdam ontvangt sleutels van Citykerk Het Steiger
Gisteren, 15:01
Citykerk Het Steiger, een wederopbouwmonument in de Rotterdamse binnenstad, ondergaat in de komende jaren een transformatie naar onderkomen voor Museum Rotterdam, alsook naar woon- en kantoorruimte.
Naturalis: Nederlandse natuur verbetert, maar niet snel genoeg
Gisteren, 13:50
Het gaat beter met de natuur in Nederland, maar niet snel genoeg om aan afspraken te voldoen.
Bouw van flexwoningen valt tegen, ziet Rekenkamer
Gisteren, 09:50
De 948 miljoen euro die sinds 2021 opzij is gezet om meer flexwoningen te bouwen, is pas deels uitgegeven.
Binnenhof al bij voorbaat te klein voor alle organisaties
20 mei, 2:47
Nog voordat de verbouwing van het Binnenhof klaar is, is het complex te klein voor alle organisaties die erin moeten.
Inschrijving Stadsbouwprijs Amersfoort 2026 gestart
20 mei, 1:29
Tot en met dinsdag 30 juni 18.00 uur kunnen projecten worden aangeleverd die in de afgelopen twee jaar binnen de gemeentegrenzen van de Keistad zijn gerealiseerd.
Ga naar het nieuws-archief
Ronnie Weessies
Redacteur
1
0
0
0
Voor een optimale gebruikservaring plaatst Architectenweb functionele cookies. Wat de verschillende cookies precies doen leggen we uit in een
overzicht
. Cookies van social media kun je optioneel
aanzetten
.
Akkoord
Instellingen
Annuleren
OK
Sluiten
Doorgaan
Inloggen
Maak een gratis persoonlijk account aan
Feedback
Feedback
Wij horen graag jouw feedback. Laat je reactie achter en eventueel jouw e-mail adres.
Reactie
Verstuur