Projecten
Producten
Bedrijven
Vacatures
Agenda
Awards
Podcasts
more_horiz
Videos
Magazine
Favorieten
Profiel
Uitloggen
Abonneer je nu op onze nieuwsbrieven!
Abonneren
Nee, bedankt
Ja, denk met me mee rond de
materialisering van mijn project
Copyright: Sebastian van Damme
Copyright: Sebastian van Damme
Copyright: Sebastian van Damme
Copyright: Sebastian van Damme
Copyright: Sebastian van Damme
Copyright: Sebastian van Damme
Copyright: Sebastian van Damme
Copyright: Sebastian van Damme
Copyright: Sebastian van Damme
Copyright: Sebastian van Damme
Copyright: Sebastian van Damme
Copyright: Sebastian van Damme
Copyright: Sebastian van Damme
Copyright: Sebastian van Damme
Copyright: Studio AAAN
Situatie
Copyright: Studio AAAN
Doorsnede
Copyright: Studio AAAN
Kelder
Copyright: Studio AAAN
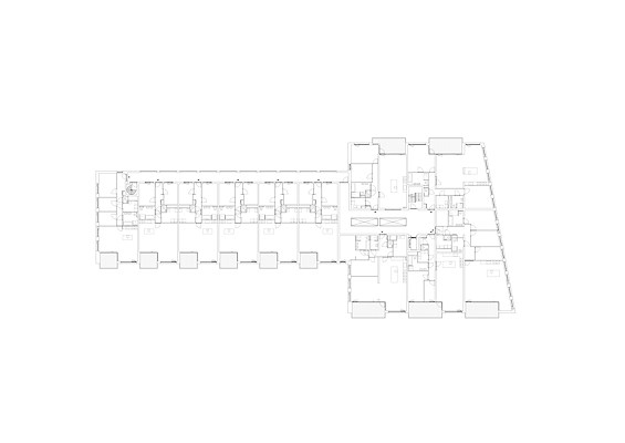
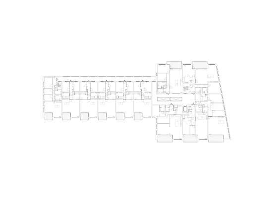
Begane grond
Copyright: Studio AAAN
Eerste verdieping
Copyright: Studio AAAN
Tweede verdieping
Copyright: Studio AAAN
Derde verdieping
Copyright: Studio AAAN
Luxe appartementengebouw naast klooster Etten-Leur door Studio AAAN klaar
19 maart, 10:50
Bij klooster ’t Withof in Etten-Leur is afgelopen jaar woongebouw De Hoogschout opgeleverd. Het door
Studio AAAN
ontworpen complex bestaat uit veertig ruime appartementen, met een omvang die varieert van negentig tot tweehonderd vierkante meter.
In het ontwerp probeerde het bureau zowel een harmonieus ensemble met het klooster te creëren als een eigentijdse toevoeging aan de historische bebouwingsrij langs de Bisschopsmolenstraat te realiseren.
Met de strenge rastergevel toont het gebouw zich aan de straat als een eenduidige massa, terwijl de gebouwvorm, als een inversie, naar de zijkanten juist de groene tussenruimte kadreert. Hier opent het grid zich met grote gevelopeningen en balkons. De eenvoud van de architectuurtaal is voor deze opgave een instrument om gebouw, landschap en de historische architectuur met elkaar te verbinden, meldt Studio AAAN.
De appartementen, die onder meer zijn gericht op empty nesters, hebben galerijen en balkons als buitenruimtes. De woningen op de bovenste laag zijn teruggelegen, waardoor deze over ruime dakterrassen beschikken.
De ruimte rond het vier lagen tellende gebouw, dat bovenop een parkeergarage is gerealiseerd, is groen ingericht naar een ontwerp van
MAAK.space
. Opdrachtgever en bouwer van het project is
Nederlandse Bouw Unie
.
Trefwoorden
studio aaan
etten-leur
maak.space
woongebouw
klooster
nederlandse bouw unie
Locatie
Best gelezen
1
Anterieure overeenkomst voor bouw woontoren The Four in Eindhoven
donderdag, 16 april
2
Architecten voor restauratie en herbestemming Rivièrahal gekozen
donderdag, 16 april
3
De ondergrondse strijd om een duurzamere stad
donderdag, 16 april
4
Nominaties Rotterdam Architectuurprijs 2026 bekend
maandag, 20 april
5
Jury maakt shortlist Prix de Rome Architectuur 2026 bekend
donderdag, 16 april
Gerelateerde nieuwsberichten
Studio AAAN zoekt met Hillehuis aansluiting bij architectuur Beijerlandselaan
3 april
Terrein voormalig internaat Etten-Leur getransformeerd tot woongebied
24 juni 2024
Winkelcentrum Etten-Leur kan veranderen in buurt met gemengd programma
26 maart 2024
Theater en cultuurcentrum De Nobelaer in Etten-Leur opgeleverd
28 november 2022
Buurtje met 54 woningen langs Kralingse Zoom opgeleverd
28 september 2023
Woongebouw aan Wantij door Studio AAAN opgeleverd
12 juni 2023
Studio AAAN realiseert 'terpwoning' in polderlandschap nabij Rotterdam
22 maart 2023
Compact woonensemble met binnenhof op smalle kavel in Oostenburg
5 december 2022
Studio AAAN zoekt met Hillehuis aansluiting bij architectuur Beijerlandselaan
3 april
Terrein voormalig internaat Etten-Leur getransformeerd tot woongebied
24 juni 2024
Winkelcentrum Etten-Leur kan veranderen in buurt met gemengd programma
26 maart 2024
Theater en cultuurcentrum De Nobelaer in Etten-Leur opgeleverd
28 november 2022
Buurtje met 54 woningen langs Kralingse Zoom opgeleverd
28 september 2023
Woongebouw aan Wantij door Studio AAAN opgeleverd
12 juni 2023
Studio AAAN realiseert 'terpwoning' in polderlandschap nabij Rotterdam
22 maart 2023
Compact woonensemble met binnenhof op smalle kavel in Oostenburg
5 december 2022
Toon alles
Andere nieuwsberichten
De Kuil bouwt voort op karakter Afrikaanderwijk en voegt iets nieuws toe
2 uur geleden
In Rotterdam-Zuid is afgelopen jaar woningbouwproject De Kuil opgeleverd. Verdeeld over meerdere gebouwen zijn in totaal 232 woningen in verschillende typologieën gerealiseerd.
Rotterdam zoekt ontwerper voor permanente Luchtsingel
4 uur geleden
Daartoe is de gemeente woensdag een openbare selectie gestart. Door de selectie laagdrempelig te houden, hoopt de gemeente kans te geven aan ontwerptalent.
KAW viert jubileum met investering in concrete projecten
Vandaag, 09:00
Het bureau viert zijn 50-jarig bestaan en viert dat met een investering in nieuwe, betaalbare woningen binnen bestaand vastgoed.
Twaalf lessen rond het ontwerpen van autovrije buurten
Gisteren, 16:30
Half april organiseerde Architectenweb in samenwerking met BURA en MerwedeLab in Pakhuis de Zwijger een drukbezocht symposium rond het ontwerpen van autovrije buurten. Twaalf lessen.
Ontwerpwedstrijd voor nieuwe 'jas' Utrechtse elektriciteitshuisjes
1 uur geleden
In Utrecht worden de komende vijftien jaar zo’n achthonderd elektriciteitshuisjes geplaatst.
Provincies willen snel crisisaanpak voor overvol stroomnet
4 uur geleden
Het Interprovinciaal Overleg (IPO) roept de regering onder meer op meer geld uit te trekken voor warmtenetten en waterstof om de gevolgen van netcongestie beter op te vangen.
Synchroon en BPD ontwikkelen meer dan vierhonderd woningen in Sloterdijk I
Vandaag, 10:14
Team V architectuur is aangesteld voor het ontwerp, in de uitwerking van de plannen worden waarschijnlijk nog andere architecten bij het project betrokken.
Onvoltooid attractiepark Rotterdam geveild voor 6,5 miljoen euro
Gisteren, 13:54
Ondernemer Hennie van der Most heeft meer dan tien jaar gewerkt aan de bouw van het park aan de Doklaan in Rotterdam.
'Amsterdamse RAI gaat binnen paar weken in de verkoop'
Gisteren, 10:50
De nieuwe aandeelhouder moet de portemonnee trekken voor de bouw van woningen en kantoren op het RAI-terrein, meldt het FD.
Minister wil Lelystad Airport openen in oktober 2027
20 april, 12:24
Het vliegveld heeft nog geen natuurvergunning, maar Vincent Karremans werkt ‘parallel’ aan de andere zaken die nog moeten worden geregeld voordat vakantievluchten vanuit Flevoland kunnen beginnen.
Ga naar het nieuws-archief
0
0
0
0
Voor een optimale gebruikservaring plaatst Architectenweb functionele cookies. Wat de verschillende cookies precies doen leggen we uit in een
overzicht
. Cookies van social media kun je optioneel
aanzetten
.
Akkoord
Instellingen
Annuleren
OK
Sluiten
Doorgaan
Inloggen
Maak een gratis persoonlijk account aan
Feedback
Feedback
Wij horen graag jouw feedback. Laat je reactie achter en eventueel jouw e-mail adres.
Reactie
Verstuur