Projecten
Producten
Bedrijven
Vacatures
Agenda
Awards
Podcasts
more_horiz
Videos
Magazine
Favorieten
Profiel
Uitloggen
Abonneer je nu op onze nieuwsbrieven!
Abonneren
Nee, bedankt
Ja, denk met me mee rond de
materialisering van mijn project
Copyright: Robin van Gameren
Copyright: Robin van Gameren
Copyright: Robin van Gameren
Copyright: Bureau LUX architectuur en advies
Copyright: Robin van Gameren
Copyright: Robin van Gameren
Copyright: Robin van Gameren
Copyright: Robin van Gameren
Copyright: Robin van Gameren
Copyright: Robin van Gameren
Copyright: Robin van Gameren
Copyright: Robin van Gameren
Copyright: Robin van Gameren
Copyright: Robin van Gameren
Copyright: Robin van Gameren
Copyright: Robin van Gameren
Copyright: Robin van Gameren
Copyright: Robin van Gameren
Bureau LUX ontwerpt villa tussen de bomen van een bos
4 april 2025, 9:20
Aan de rand van de Veluwe, in de gemeente Vaassen, heeft
Bureau LUX architectuur en advies
een villa ontworpen die zich tussen de bomen nestelt. Doordat de bosgrond tot aan de woning doorloopt, heb je binnen echt het gevoel middenin het bos te wonen.
“De woning ligt op een open plek in een stil bosgebied en het was de nadrukkelijke wens van de bewoners om het bos zo veel mogelijk intact te laten”, vertelt architect Henk Duijzer van Bureau LUX. “Daarom loopt de bosgrond ongestoord door tot tegen de woning en is ingezet op een optimale beleving van de natuur. Daarbij bieden de omringende bomen ook schaduw en beschutting.”
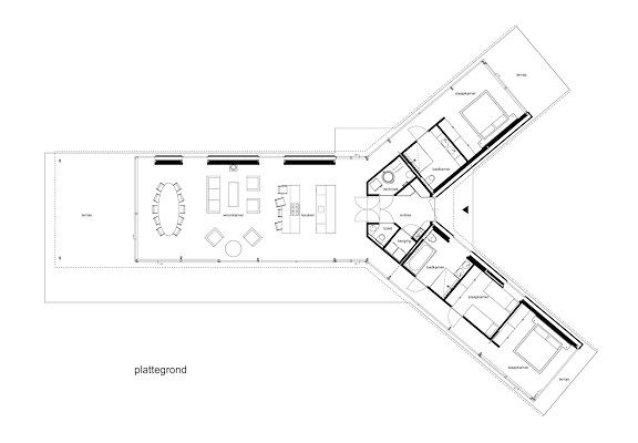
De villa heeft een Y-vormige plattegrond waardoor de oriëntatie op het bos en op de zon overal anders is. “Hoewel de plattegrond een duidelijke symmetrie-as heeft, met de voordeur tussen de twee korte poten van de Y, heeft deze as door het verschil in ontwerp en uitvoering van de gevels geen dwingend karakter”, omschrijft de architect. “De volledig in glas en aluminium uitgevoerde zuidgevel omarmt de open plek in het bos aan die zijde; de gevels aan de noordzijde zijn meer gesloten en waarborgen de privacy ten opzichte van het zandpad en de plek waar bezoekers hun auto kunnen parkeren.”
Het volume van de woning is als het ware gevangen tussen van de bosgrond opgetilde terrassen en daarboven hangende plafonds. De terrassen zijn bekleed met keramische tegels, het plafond is afgewerkt met hout. “Deze materialen lopen door van binnen naar buiten, wat de ervaring versterkt dat je hier midden in het bos woont”, licht Henk Duijzer toe. “De dakrand is uitgevoerd als een rondlopend staalprofiel.”
De dichte delen van de gevels zijn uitgevoerd in grove keien, zowel aan de buitenzijde als aan de binnenzijde. Die materialisering komt overal terug, van de woonkamer tot in de slaapkamers en zelfs de badkamers.
“De bewoners vroegen ons om een bungalow te ontwerpen met veel glas, en dus uitzicht, en met referenties naar mid-century modern”, verklaart de architect. “Een uitgangspunt dat wij van harte hebben omarmd en wat ook in de inrichting van de woning zijn uitwerking heeft gekregen.” Die inrichting heeft Bureau LUX in nauwe samenwerking met de bewoners samengesteld en ontworpen.
Trefwoorden
bos
villa
bureau lux architectuur en advies
vaassen
bureau lux
bungalow
Best gelezen
1
Architect Cees Dam op 93-jarige leeftijd overleden
dinsdag, 14 april
2
Powerhouse Company wint aanbesteding voor verbouwing Vista College Maastricht
dinsdag, 14 april
3
Tien bureaus geselecteerd voor tweede ronde nieuwbouw De Meervaart
woensdag, 15 april
4
Anterieure overeenkomst voor bouw woontoren The Four in Eindhoven
donderdag, 16 april
5
Voormalig hoofdkantoor Ferro in M4H verbouwd tot bedrijfsverzamelgebouw
woensdag, 15 april
Gerelateerde nieuwsberichten
Villa in bos draait om beleving van de omgeving
30 september 2024
Een houten villa genesteld in het bos
21 november 2024
Een villa verweven met het groen
5 maart 2025
Maarten van Kesteren architecten transformeert een jaren 60-villa tot passiefwoning
12 februari 2025
Team Tonbo pakt door met House in the Fields
16 februari
Lab-S verbouwt jaren 30-villa in relatie met natuur
13 januari 2025
Een landhuis op de donk
23 januari 2025
Een villa in de polder met mediterrane uitstraling
8 oktober 2024
Splitlevel-villa in Schoorl ingebed in landschap met duinhellingen
7 oktober 2024
Serge Schoemaker verbouwt vrijstaande villa in Tienhoven
19 september 2024
Natrufied Architecture realiseert opvallende biobased woning met lokaal hout
12 juni 2025
Geborgen wonen achter een filtermuur
26 juni 2024
Villa op Terschelling die zich opricht uit de duinen
17 mei 2024
Een woonhuis met vrij zicht op de es
26 mei 2025
Lange, horizontale lijn verbindt twee delen vakantiewoning Bretagne
14 mei 2024
NOAHH presenteert opgeleverde Villa Vaartjes in Almere Oosterwold
23 april 2024
Een sereen samenspel van villa’s in een groen landschap
17 april 2024
Kruisvormige villa op bosrijke kavel in Dinxperlo
28 maart 2024
Villa in bos draait om beleving van de omgeving
30 september 2024
Een houten villa genesteld in het bos
21 november 2024
Een villa verweven met het groen
5 maart 2025
Maarten van Kesteren architecten transformeert een jaren 60-villa tot passiefwoning
12 februari 2025
Team Tonbo pakt door met House in the Fields
16 februari
Lab-S verbouwt jaren 30-villa in relatie met natuur
13 januari 2025
Een landhuis op de donk
23 januari 2025
Een villa in de polder met mediterrane uitstraling
8 oktober 2024
Splitlevel-villa in Schoorl ingebed in landschap met duinhellingen
7 oktober 2024
Serge Schoemaker verbouwt vrijstaande villa in Tienhoven
19 september 2024
Natrufied Architecture realiseert opvallende biobased woning met lokaal hout
12 juni 2025
Geborgen wonen achter een filtermuur
26 juni 2024
Villa op Terschelling die zich opricht uit de duinen
17 mei 2024
Een woonhuis met vrij zicht op de es
26 mei 2025
Lange, horizontale lijn verbindt twee delen vakantiewoning Bretagne
14 mei 2024
NOAHH presenteert opgeleverde Villa Vaartjes in Almere Oosterwold
23 april 2024
Een sereen samenspel van villa’s in een groen landschap
17 april 2024
Kruisvormige villa op bosrijke kavel in Dinxperlo
28 maart 2024
Toon alles
Andere nieuwsberichten
LEVS publiceert duurzaamheidsanalyse eigen projecten
Gisteren, 14:45
Met de Rapportage Duurzaamheid 2021–2025 heeft het bureau 43 projecten uit de afgelopen vijf jaar getoetst aan de Paris Proof normen.
Nominaties Rotterdam Architectuurprijs 2026 bekend
Gisteren, 09:00
Zowel de jury als het publiek heeft de keuze uit tien projecten, die zijn geselecteerd uit 36 inzendingen. De winnaars worden op 12 juni bekendgemaakt in het Nhow Hotel in Rotterdam.
Wie verdient dit jaar de prijs voor Architect van het Jaar?
Gisteren, 09:00
Welke architect, of collectief van architecten, heeft dit jaar de grootste bijdrage geleverd aan de ontwikkeling van de architectuur in Nederland? Stuur jouw suggestie, met een beknopte motivatie, uiterlijk 15 mei 2026 op naar Architectenweb.
OMA gebruikt bestaand gebouw als canvas bij renovatie Edo-Tokyo Museum
17 april, 3:55
Na een renovatie van bijna vier jaar is het Edo-Tokyo Museum in de Japanse hoofdstad Tokio heropend. OMA nam het uit 1993 stammende gebouw, dat is ontworpen door de Metabolist Kiyonori Kikutake, onder handen.
Minister wil Lelystad Airport openen in oktober 2027
Gisteren, 12:24
Het vliegveld heeft nog geen natuurvergunning, maar Vincent Karremans werkt ‘parallel’ aan de andere zaken die nog moeten worden geregeld voordat vakantievluchten vanuit Flevoland kunnen beginnen.
Boekholt wil minder strenge huurwet, hogere huren mogelijk
Gisteren, 10:15
Verhuurders moeten meer kunnen vragen voor dure huurhuizen, nieuwbouw en huizen zonder tuin of balkon.
Woningbouwzaken krijgen langer voorrang bij Raad van State
17 april, 4:49
Om het huizentekort tegen te gaan, blijft de Raad van State woningbouwzaken met voorrang behandelen.
Inspectie positief over verbetering sociale veiligheid TU Delft
17 april, 11:36
De TU Delft heeft aanzienlijke stappen gezet om de sociale veiligheid voor medewerkers te verbeteren.
NVM vreest minder nieuwbouw door veranderende voorrang stroomnet
17 april, 9:23
Bouwers kunnen, door onzekerheid over welke projecten straks nog maatschappelijke prioriteit krijgen in een bepaalde regio, besluiten om minder nieuwe huizen te bouwen.
Architecten voor restauratie en herbestemming Rivièrahal gekozen
16 april, 12:00
Voor de grootscheepse restauratie en herbestemming van de Rivièrahal in de Rotterdamse Diergaarde Blijdorp zijn Mecanoo en BiermanHenket geselecteerd.
Ga naar het nieuws-archief
2
0
0
0
Voor een optimale gebruikservaring plaatst Architectenweb functionele cookies. Wat de verschillende cookies precies doen leggen we uit in een
overzicht
. Cookies van social media kun je optioneel
aanzetten
.
Akkoord
Instellingen
Annuleren
OK
Sluiten
Doorgaan
Inloggen
Maak een gratis persoonlijk account aan
Feedback
Feedback
Wij horen graag jouw feedback. Laat je reactie achter en eventueel jouw e-mail adres.
Reactie
Verstuur