Projecten
Producten
Bedrijven
Vacatures
Agenda
Awards
Podcasts
more_horiz
Videos
Magazine
Favorieten
Profiel
Uitloggen
Abonneer je nu op onze nieuwsbrieven!
Abonneren
Nee, bedankt
Ja, denk met me mee rond de
materialisering van mijn project
House in the Fields, Team Tonbo
Copyright: René de Wit
House in the Fields, Team Tonbo
Copyright: René de Wit
House in the Fields, Team Tonbo
Copyright: René de Wit
House in the Fields, Team Tonbo
Copyright: René de Wit
House in the Fields, Team Tonbo
Copyright: René de Wit
House in the Fields, Team Tonbo
Copyright: René de Wit
House in the Fields, Team Tonbo
Copyright: René de Wit
House in the Fields, Team Tonbo
Copyright: René de Wit
House in the Fields, Team Tonbo
Copyright: René de Wit
House in the Fields, Team Tonbo
Copyright: René de Wit
House in the Fields, Team Tonbo
Copyright: René de Wit
House in the Fields, Team Tonbo
Copyright: René de Wit
House in the Fields, Team Tonbo
Copyright: René de Wit
House in the Fields, Team Tonbo
Copyright: René de Wit
House in the Fields, Team Tonbo
Copyright: René de Wit
Fumi Hoshino en Ruud Visser, Team Tonbo
Copyright: Team Tonbo
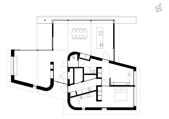
House in the Fields, Team Tonbo, plattegrond
Copyright: Team Tonbo
Team Tonbo pakt door met House in the Fields
16 februari, 15:45
Na 15 jaar gewerkt te hebben onder de naam RV Architectuur gaat het bureau verder als
Team Tonbo
. Het nieuwe project House in the Fields zet de verandering luister bij.
Architecten Ruud Visser (NL) en Fumi Hoshino (JP) vormen nu gezamenlijk het kleine bureau. De nieuwe naam is ontleend aan het Japanse woord voor libelle. Tonbo geeft aan zich als een libelle door het ontwerp- en bouwproces te willen bewegen. Daarbij worden, onder andere, wendbaarheid en snelheid als kenmerkende eigenschappen genoemd.
Tonbo wil ontwerpen en bouwen verder als een continu proces aangaan, niet als losstaande fases. Deze werkwijze moet volgens Visser en Hoshino leiden tot avontuurlijke, onverwachte en poëtische architectuur.
Proeve
Het nieuwe project House in the Fields is direct een proeve van de ambities en beoogde werkwijze van het bureau. Het vertrekpunt voor het ontwerp was een bijzondere locatie. Op de kavel stonden voorheen schuren en stallen die bij een boerderij hoorden. De locatie bood een vrij uitzicht over de omringende weilanden en een bos.
Het ontwerp van Tonbo maakt dankbaar gebruik van dat weidse uitzicht. Wandelend door het huis moet zich steeds een ander panorama openbaren. Zo is naar een 360-graden beleving van het landschap gestreefd.
Drie volumes
De woning heeft een zo compact mogelijk karakter gekregen. Vooral omdat de opdrachtgevers niet groter wilden bouwen dan de ruimte die zij nodig achtten te hebben. Het programma is verdeeld over drie volumes: wonen, slapen en eten. Voor elk volume werd een kenmerkend materiaal en karakter gekozen. Bij de woonkamer vormt gerecyclede baksteen het onderscheidende materiaal. Bij de slaapvertrekken zijn het verticale houten delen en bij de eetkamer annex keuken is het glas.
Ruimtelijke ervaring
De drie volumes worden verbonden door een groot, geknikt dak. Dat is als een deken over het geheel gedrapeerd. Op een aantal punten steekt het dak ver voorbij de volumes. Op die punten ontstaan zo ambigue ruimtes die zowel binnen als buiten kunnen zijn. Het dak varieert in hoogte waarmee de ruimtelijke ervaring verder wordt bepaald. Bij de veranda en de eettafel is dak 2,2 meter hoog, terwijl de nok in de woonkamer tot 4,7 meter reikt.
De architecten hopen dat deze hoogteverschillen, in combinatie met de weidse uitzichten over het landschap een steeds wisselende ervaring van ruimte zullen oproepen. De gekromde wanden in het huis begeleiden de beoogde beweging door het huis en de wisselende beleving van het landschap nog verder. Tonbo zegt nadrukkelijk geprobeerd te hebben om het huis en landschap naar elkaar toe te plooien.
Op maat
Alle materialen, kleuren, kasten en andere details zijn in nauw overleg met de opdrachtgevers ontworpen. Zo is, bijvoorbeeld, een lange, lage kast in de eetkamer, die tevens dienstdoet als zitbank, voortgezet in een baktenen muur buiten die in het verlengde ervan ligt.
De grote raampartijen in de woonkamer bieden een uitstekend zicht op het rurale landschap, alsmede op zon die aan deze zijde van het woonhuis ondergaat. Een klein rond raam biedt vanaf de zitbank juist weer zicht op gasten, koeriers of buren die voor de deur staan. Een verder opvallend detail is een toilet met twee ingangen.
Trefwoorden
rv architectuur
woonhuis
team tonbo
jonkman en de jong architecten
landschap
villa
Best gelezen
1
Architect Cees Dam op 93-jarige leeftijd overleden
dinsdag, 14 april
2
Powerhouse Company wint aanbesteding voor verbouwing Vista College Maastricht
dinsdag, 14 april
3
Tien bureaus geselecteerd voor tweede ronde nieuwbouw De Meervaart
woensdag, 15 april
4
Voormalig hoofdkantoor Ferro in M4H verbouwd tot bedrijfsverzamelgebouw
woensdag, 15 april
5
Anterieure overeenkomst voor bouw woontoren The Four in Eindhoven
donderdag, 16 april
Gerelateerde nieuwsberichten
WillemsenU zinkt villa af in landschap
11 november 2025
Wenink Holtkamp Architecten borduurt met Villa R voort op context
28 oktober 2025
Studio Entr ontwerpt interieur van villa in Oss
3 oktober 2025
Een woonhuis met vrij zicht op de es
26 mei 2025
Bureau LUX ontwerpt villa tussen de bomen van een bos
4 april 2025
Een villa verweven met het groen
5 maart 2025
Een houten villa genesteld in het bos
21 november 2024
WillemsenU zinkt villa af in landschap
11 november 2025
Wenink Holtkamp Architecten borduurt met Villa R voort op context
28 oktober 2025
Studio Entr ontwerpt interieur van villa in Oss
3 oktober 2025
Een woonhuis met vrij zicht op de es
26 mei 2025
Bureau LUX ontwerpt villa tussen de bomen van een bos
4 april 2025
Een villa verweven met het groen
5 maart 2025
Een houten villa genesteld in het bos
21 november 2024
Toon alles
Andere nieuwsberichten
OMA gebruikt bestaand gebouw als canvas bij renovatie Edo-Tokyo Museum
17 april, 3:55
Na een renovatie van bijna vier jaar is het Edo-Tokyo Museum in de Japanse hoofdstad Tokio heropend. OMA nam het uit 1993 stammende gebouw, dat is ontworpen door de Metabolist Kiyonori Kikutake, onder handen.
Winnaars verkiezing Beste Bossche Gebouw 2020–2025 bekend
17 april, 2:16
De vakjury en het publiek wezen elk in drie categorieën een winnaar aan. Daarnaast kende vakjury nog een wildcard toe aan een project.
Appartementengebouwen door MIX architectuur vormen sluitstuk Noorderhaven Zutphen
17 april, 12:29
In de nieuwe buurt Noorderhaven in Zutphen zijn drie appartementengebouwen naar ontwerp van MIX architectuur opgeleverd. De gebouwen met in totaal tachtig woningen vormen het sluitstuk van de gebiedsontwikkeling.
EUmies Award naar renovatie congrescentrum in Charleroi en tijdelijke ruimtes Sloveens theater
17 april, 10:54
Donderdag zijn de winnaars van de EUmies Award 2026 bekendgemaakt. De renovatie van het congrescentrum Charleroi Palais des Expositions won in de belangrijkste categorie architectuur.
Woningbouwzaken krijgen langer voorrang bij Raad van State
17 april, 4:49
Om het huizentekort tegen te gaan, blijft de Raad van State woningbouwzaken met voorrang behandelen.
Inspectie positief over verbetering sociale veiligheid TU Delft
17 april, 11:36
De TU Delft heeft aanzienlijke stappen gezet om de sociale veiligheid voor medewerkers te verbeteren.
NVM vreest minder nieuwbouw door veranderende voorrang stroomnet
17 april, 9:23
Bouwers kunnen, door onzekerheid over welke projecten straks nog maatschappelijke prioriteit krijgen in een bepaalde regio, besluiten om minder nieuwe huizen te bouwen.
Architecten voor restauratie en herbestemming Rivièrahal gekozen
16 april, 12:00
Voor de grootscheepse restauratie en herbestemming van de Rivièrahal in de Rotterdamse Diergaarde Blijdorp zijn Mecanoo en BiermanHenket geselecteerd.
Bewoners aardbevingsgebied Groningen blijven kritisch op herstel
16 april, 10:34
Door de complexiteit en onzekerheid van het jarenlange proces ervaren mensen stress en frustratie.
ING: optoppen en splitsen van woningen steeds minder haalbaar
15 april, 1:22
Het kabinet-Jetten gaat naar verwachting het doel van 15.000 extra woningen per jaar uit verbouwingen niet halen, stelt ING.
Ga naar het nieuws-archief
2
0
0
0
Voor een optimale gebruikservaring plaatst Architectenweb functionele cookies. Wat de verschillende cookies precies doen leggen we uit in een
overzicht
. Cookies van social media kun je optioneel
aanzetten
.
Akkoord
Instellingen
Annuleren
OK
Sluiten
Doorgaan
Inloggen
Maak een gratis persoonlijk account aan
Feedback
Feedback
Wij horen graag jouw feedback. Laat je reactie achter en eventueel jouw e-mail adres.
Reactie
Verstuur