Projecten
Producten
Bedrijven
Vacatures
Agenda
Awards
Podcasts
more_horiz
Videos
Magazine
Favorieten
Profiel
Uitloggen
Abonneer je nu op onze nieuwsbrieven!
Abonneren
Nee, bedankt
Ja, denk met me mee rond de
materialisering van mijn project
Copyright: Auke van der Weide
Copyright: Auke van der Weide
Copyright: Auke van der Weide
Copyright: Auke van der Weide
Copyright: Auke van der Weide
Copyright: Auke van der Weide
Copyright: Auke van der Weide
Langsdoorsnede
Copyright: Architectenbureau Vincenth Schreurs
Dwarsdoorsnede
Copyright: Architectenbureau Vincenth Schreurs
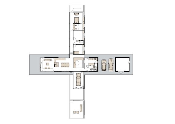
Begane grond
Copyright: Architectenbureau Vincenth Schreurs
Verdieping
Copyright: Architectenbureau Vincenth Schreurs
Detail
Copyright: Architectenbureau Vincenth Schreurs
Kruisvormige villa op bosrijke kavel in Dinxperlo
28 maart 2024, 13:09
Voor een particuliere opdrachtgever in Dinxperlo heeft
Architectenbureau Vincenth Schreurs
een kruisvormige woning ontworpen. Het Kruishuis bestaat uit een langwerpig hoofdvolume met een zadeldak, waar een lager volume doorheen is gestoken. Dankzij deze opzet genieten de bewoners overal in de villa zicht op de groene omgeving.
De kavel waarop Het Kruishuis is gerealiseerd staat op de plek van een voormalige boerderij aan de rand van Dinxperlo, waar enkele woningen binnen ‘groene kamers’ worden gebouwd. De bewoners van Het Kruishuis hebben een groter perceel aangekocht in een ‘boskamer’, waardoor de woning verscholen ligt in een bosrijke plek en de bewoners nog meer van het groen genieten.
Geïnspireerd door Villa Rotonda van Palladio, maar ook omdat het volledige programma op de begane grond moest worden gehuisvest, heeft de architect de villa een kruisvormige plattegrond gegeven. Het woonprogramma bevindt zich in het hoofdvolume, de slaapkamers zijn ondergebracht in het daardoor heen gestoken tweede langwerpige volume. Het laatstgenoemde bouwdeel ligt veertig centimeter verzonken in de grond en is voorzien van een groendak.
Stalen gevelbekleding
De woning is gebouwd van hout, maar heeft een stalen gevelbekleding. De groenachtige kleur van dit materiaal verandert onder invloed van het zonlicht en mengt goed met het omringende groen, verklaart Vincenth Schreurs. Daarnaast reflecteert het vele glas in de gevel het aanwezige groen, zodat de woning zoveel mogelijk opgaat in de omgeving.
Binnen is het CLT overal in het zicht gelaten, als een warme tegenhanger van het glas, staal en het eveneens gebruikte beton. De CLT-plafonds lopen op verschillende plekken van binnen naar buiten door, alleen onderbroken door een glaspui. Lange zichtlijnen geven vanuit bijna iedere plek in de woning zicht op buiten, meldt de architect.
Buitenruimtes met eigen sfeer
Binnen de vier ‘armen’ van de woningen zijn verschillende buitenruimtes met ieder een eigen sfeer gerealiseerd, van schaduwrijk bos aan de noordkant tot een wilde kruidenbeplanting met veel zon aan de zuidkant. Deze kwartieren zijn ingericht met hulp van tuinarchitect Esselink uit De Heurne. In en rond de villa ervaren de bewoners de verandering van de seizoenen. Bovendien zorgen de bomen en ander groen voor schaduwwerking en verkoeling.
Het Kruishuis behoort tot
de genomineerden voor BNA Beste Gebouw van het Jaar 2024
.
Trefwoorden
villa
vincenth schreurs
dinxperlo
woning
architectenbureau vincenth schreurs
Best gelezen
1
Parkeerplein naast Tilburgse schouwburg maakt plaats voor multifunctionele gebouwen
woensdag, 13 mei
2
Kunsthal BRUSK in Brugge opent officieel zijn deuren
vrijdag, 8 mei
3
Neprom-prijs 2026 toegekend aan De Groene Loper Maastricht
maandag, 11 mei
4
Woningbouwproject Switi trekt 'verloren strook' alsnog bij de omgeving
maandag, 11 mei
5
Vandersalm Architecten herinterpreteert historisch erf bij Zwolse stadsboerderij
maandag, 11 mei
Gerelateerde nieuwsberichten
Nominaties BNA Beste Gebouw van het Jaar 2024 bekend
18 maart 2024
Woning gaat op in de bosrand
17 november 2015
Geborgen wonen achter een filtermuur
26 juni 2024
Splitlevel-villa in Schoorl ingebed in landschap met duinhellingen
7 oktober 2024
Huis met twee huisjes
10 september 2024
Een sereen samenspel van villa’s in een groen landschap
17 april 2024
Een villa in de polder met mediterrane uitstraling
8 oktober 2024
Een landhuis op de donk
23 januari 2025
Lab-S verbouwt jaren 30-villa in relatie met natuur
13 januari 2025
Bureau LUX ontwerpt villa tussen de bomen van een bos
4 april 2025
Maarten van Kesteren architecten transformeert een jaren 60-villa tot passiefwoning
12 februari 2025
Een houten villa genesteld in het bos
21 november 2024
Natrufied Architecture realiseert opvallende biobased woning met lokaal hout
12 juni 2025
Beschut wonen in een coulissenlandschap
28 maart 2025
Nominaties BNA Beste Gebouw van het Jaar 2024 bekend
18 maart 2024
Woning gaat op in de bosrand
17 november 2015
Geborgen wonen achter een filtermuur
26 juni 2024
Splitlevel-villa in Schoorl ingebed in landschap met duinhellingen
7 oktober 2024
Huis met twee huisjes
10 september 2024
Een sereen samenspel van villa’s in een groen landschap
17 april 2024
Een villa in de polder met mediterrane uitstraling
8 oktober 2024
Een landhuis op de donk
23 januari 2025
Lab-S verbouwt jaren 30-villa in relatie met natuur
13 januari 2025
Bureau LUX ontwerpt villa tussen de bomen van een bos
4 april 2025
Maarten van Kesteren architecten transformeert een jaren 60-villa tot passiefwoning
12 februari 2025
Een houten villa genesteld in het bos
21 november 2024
Natrufied Architecture realiseert opvallende biobased woning met lokaal hout
12 juni 2025
Beschut wonen in een coulissenlandschap
28 maart 2025
Toon alles
Andere nieuwsberichten
Vijf finalisten voor Heuvelinkprijs 2026
13 mei, 3:06
De finalisten voor de Heuvelinkprijs 2026 zijn bekend. Vijf projecten komen in aanmerking voor deze editie van de tweejaarlijkse Arnhemse nieuwbouwprijs.
Parkeerplein naast Tilburgse schouwburg maakt plaats voor multifunctionele gebouwen
13 mei, 11:57
Een samenwerkingsverband van HilberinkBosch architecten, Werkstatt en Orange Architects heeft de architectenselectie voor de herontwikkeling van het Louis Bouwmeesterplein in Tilburg gewonnen.
'Zwevend huis' naar ontwerp van Benthem Crouwel in Amersfoortse wijk
13 mei, 10:54
De woning bestaat uit een open plint met daarbovenop een gesloten volume met een leisteengevel, dat reageert op de traditionele zadeldaken in de buurt.
Nog drie dagen om jouw suggestie voor de Architect van het Jaar 2026 in te sturen
13 mei, 9:00
Welke architect, of collectief van architecten, heeft dit jaar de grootste bijdrage geleverd aan de ontwikkeling van de architectuur in Nederland? Stuur jouw suggestie uiterlijk 15 mei 2026 op naar Architectenweb.
Consortium met RxDomi en TU/e ontwikkelt netbewuste woning
13 mei, 2:56
In het project CoLiBRIE ontwikkelt een consortium, met onder meer RxDomi en TU/e, een nieuw type woning die comfortabel, duurzaam en betaalbaar is, zonder het energienet extra te belasten.
Minimaal half miljard extra nodig voor verbreding A27
13 mei, 1:38
Op het traject van 47 kilometer moeten extra rijbanen komen om de dagelijkse files te verlichten. Ook worden bruggen vervangen.
RVO constateert laagste groei windenergie op land in jaren
13 mei, 10:02
De uitbreiding van windenergie op land in Nederland is op een historisch laag niveau.
Alsemgeest Design & Build en Ferm Architecten gaan verder als één bureau
12 mei, 1:42
De bureaus blijven voorlopig naast elkaar bestaan, waarbij Nico Alsemgeest (68) zich langzaam zal terugtrekken.
Onderzoek: Nederlander wil verduurzamen, maar vindt het duur
12 mei, 12:26
Een kleine meerderheid van de Nederlanders wil graag verduurzamen, maar bij een groot gedeelte komt het daar niet van.
Geld voor eigen sociale initiatieven bewoners aardbevingsgebied
12 mei, 10:33
het geld komt uit het potje van ‘Nij Begun’, het grootschalige programma van het Rijk om de economie en sociale ontwikkeling in het noorden te verbeteren.
Ga naar het nieuws-archief
Ronnie Weessies
Redacteur
4
0
0
0
Voor een optimale gebruikservaring plaatst Architectenweb functionele cookies. Wat de verschillende cookies precies doen leggen we uit in een
overzicht
. Cookies van social media kun je optioneel
aanzetten
.
Akkoord
Instellingen
Annuleren
OK
Sluiten
Doorgaan
Inloggen
Maak een gratis persoonlijk account aan
Feedback
Feedback
Wij horen graag jouw feedback. Laat je reactie achter en eventueel jouw e-mail adres.
Reactie
Verstuur