Projecten
Producten
Bedrijven
Vacatures
Agenda
Awards
Podcasts
more_horiz
Videos
Magazine
Thema's
Favorieten
Profiel
Uitloggen
Nieuw
Populair
Toon alles
Architectenweb magazine #14
Architectenweb magazine #13
Publieke gebouwen
Architectenweb magazine #12
Kantoren
Architectenweb magazine #11
Scholen
Architectenweb magazine #10
Zorg
Architectenweb magazine #14
Architectenweb magazine #10
Zorg
Architectenweb magazine #12
Kantoren
Architectenweb magazine #13
Publieke gebouwen
Architectenweb magazine #6
Transformatie en Renovatie
Om direct naar je favorieten te kunnen gaan is het nodig om eerst in te loggen.
Nieuw
Architectenweb Awards 2025
Architectenweb Awards 2024
Architectenweb Awards 2023
Architectenweb Awards 2022
Architectenweb Awards 2021
Architectenweb Awards 2020
Architectenweb Awards 2019
Architectenweb Awards 2018
Om direct naar je favorieten te kunnen gaan is het nodig om eerst in te loggen.
Nieuw
Populair
Favorieten
Toon alles
Vakwerk Architecten
Nominatie voor de prijs voor Architect van het Jaar 2025
Sanne van Manen
Nominatie voor de prijs voor Architect van het Jaar 2025
KSA
Nominatie voor de prijs voor Architect van het Jaar 2025
KRFT
Nominatie voor de prijs voor Architect van het Jaar 2025
Joost Ector
Nominatie voor de prijs voor Architect van het Jaar 2025
Prijsuitreiking Architectenweb Awards 2024
Impressie van een feestelijke avond
Martens, Willems & Humblé Architecten
Nominatie voor de prijs voor Architect van het Jaar 2024
Uitreiking van Architectenweb Awards 2020
Impressie van de prijsuitreiking via Zoom
De Zwarte Hond
Nominatie voor de prijs voor Architect van het Jaar 2024
Avond met De Zwarte Hond
Symposium
Om direct naar je favorieten te kunnen gaan is het nodig om eerst in te loggen.
Nieuw
Populair
Categorieën
Favorieten
Toon alles
ST1centrum
Dé specialist op het gebied van gevelstenen en dakpannen met showrooms in Amsterdam en Meppel
Studio Massimo
Architecture & Nature
Brandpreventie Academy BV
HoutPro+
Cay Circulaire Keukens
Circulaire keukens en pantry's
Studio Kirsten Reith
Interieurontwerp
Interior & Co
Studio175
Interieuradvies in regio Utrecht
Orange Automatic Doors
Cay Circulaire Keukens
Circulaire keukens en pantry's
Studio Kirsten Reith
Interieurontwerp
Brandpreventie Academy BV
Architecten
Architectuur
Mobiliteit en infrastructuur
Stedenbouw en landschapsarchitectuur
Leveranciers
Gevels
Daken
Ramen en deuren
Trappen, liften en balustrades
Binnenwanden
Vloeren
Plafonds
Verlichting
Sanitair
Projectinrichting
Installaties
Constructies
Buitenruimte
Software
Adviseurs
Bestekschrijvers
Bouwmanagement
Installatie adviseurs E
Bouwfysica
Calculators
Installatie adviseurs G/W
Bouwkundig tekenwerk
Constructeurs
Lichtadviseurs
Adviseur beveiliging
Juristen
Intermediairs, Payrolling
Aannemers
Overig
Presentatie
Instellingen / onderwijs
Overig
Om direct naar je favorieten te kunnen gaan is het nodig om eerst in te loggen.
Nieuw
Populair
Favorieten
Toon alles
Gesprek met Stephan Sliepenbeek over hoogbouw in Amstel III
Gesprek met Ellen van Bueren over gebiedsontwikkeling en hoogbouw
Gesprek met Ma Yansong over ontwerpen die emotie oproepen
Gesprek met Paul de Ruiter over innovatieve en duurzame hoogbouw
Gesprek met Pi de Bruijn over zijn ontwerpen voor de Tweede Kamer toen en nu
Gesprek met Ellen van Bueren over gebiedsontwikkeling en hoogbouw
Gesprek met Oresti Sarafopoulos over het ontwerpen van een kantoorgebouw met bijna geen installaties
Gesprek met Stijn Steenbakkers over verdichting en hoogbouw in Eindhoven
Gesprek met Pi de Bruijn over zijn ontwerpen voor de Tweede Kamer toen en nu
Gesprek met Paul de Ruiter over innovatieve en duurzame hoogbouw
Om direct naar je favorieten te kunnen gaan is het nodig om eerst in te loggen.
Nieuw
Populair
Categorieën
Favorieten
Toon alles
Smart Lighting voor kantoorcampus Tripolis Park
700 modulaire lichtstraten gebruikt Icône kantoor
Buitenzonwering Cartesius Solo
RVS Staalkabelnetten voor Parel in de Polder
Duurzame modernisering met EcoBrick gevelstenen
Boekweitkamp, Den Haag
Villa van Hout
Exclusieve wooneenheden
CPO Heuvelrug
De Grote Zwaan, Nijmegen
Architectuur
Woningbouw
Zorg
Hotels
Restaurants en café’s
Winkels
Sportgebouwen
Culturele gebouwen
Overheidsgebouwen
Scholen
Kantoren
Bedrijfsgebouwen
Paviljoens en kunst
Overig
Mobiliteit en infrastructuur
Trein- en metrostations
Luchthavens
Busstations
Parkeergarages
Fietsparkeren
Wegen
Bruggen
Water
Energie
Tankstations en laadstations
Waterzuivering en afvalverwerking
Overig
Stedenbouw en landschapsarchitectuur
Regionale visies
Gebiedsvisies
Plannen stedelijk weefsel
Amusementsparken en dierentuinen
Lichtontwerpen
Openbare ruimte
Pleinen
Parken
Tuinen
Speelplaatsen
Uitkijktorens
Overige (bijv. begraafplaatsen)
Om direct naar je favorieten te kunnen gaan is het nodig om eerst in te loggen.
Nieuw
Populair
Categorieën
Favorieten
Toon alles
DINrail Zigbee dimmer
Centrale dimoplossing voor slimme verlichting
De nieuwe Gira G1.
Sneller. Groter. Sterker.
HomeComfort
Create your ambiance in a touch
Next Generation USB C opladers
De Next Generation USB C opladers: snel, compact and efficiënt
D31TDV- en D31TDH IP-video deurintercom systemen
Innovatie voor appartementencomplexen en grote gebouwen
StoTherm Wood: cementvrij gevelsysteem met houtvezelisolatie
Biobased gevelisolatie met natuurlijke prestaties
Akoestisch kussen.
Ervaar de ultime natuurlijke oplossing voor akoestiek problemen.
Lumiglaze – Het vlakglas van VELUX Commercial
Een nieuw tijdperk in daglichtontwerp – minimalistisch, functioneel en klaar voor de toekomst.
Knauf MaxSpace
Minder wand, méér ruimte. Het ideale profiel voor meer winst per m²
Veelzijdig straatmeubilair
Van openbare ruimte naar (be)leefomgeving
Gevels
Gevelbekleding
Vliesgevels
Zonwering buiten
Isolatie
Gevelconstructies
Signing
Overig
Daken
Dakafwerkingen
Dakisolatie
Dakconstructies
Dakranden, dakgoten en HWA's
Dakramen
Lichtkoepels
Lichtstraten
Schoorstenen
Overig
Dakluiken
Ramen en deuren
Raam- en deursystemen / kozijnen
Vliesgevels
Hang- en sluitwerk
Beveiliging en luiken
Dorpels en vensterbanken
Lateien
Roosters
Glas
Dakramen
Dakkoepels
Lichtstraten
Zonwering buiten
Zonwering binnen
Buitendeuren
Binnendeuren
Postvakken en brievenbussen
Overig
Dakluiken
Trappen, liften en balustrades
Trappen
Roltrappen
Liften
Balustrades en hekwerken
Galerijen
Binnenwanden
Binnenwanden
Wandafwerking
Vloeren
Constructieve vloeren
Verhoogde vloeren
Vloerafwerkingen
Overig
Plafonds
Tegels
Lineair
Grill
Open en roosters
Naadloos
Eilanden en baffles
Plafondafwerkingen
Ophangsystemen
Overig
Klimaatplafonds
Verlichting
Binnenverlichting
Buitenverlichting
Sanitair
Kranen en douchesets
Wastafels
Douchewanden en douchebakken
Baden
Waterclosets
Accessoires
Overig
Projectinrichting
Stoelen
Banken
Tafels
Kasten
Balies
Vrijstaande wanden
Keukens
Accessoires
Overig
Cabines
Interieurbeplanting
Stoffering
Installaties
Verwarming, koeling en ventilatie
Elektrotechnische installaties
Schakelmateriaal
Domotica
Deurcommunicatie
Beveiliging
Liften
Onderhoudsinstallaties
Overig
Brandbeveiliging
Constructies
Draagconstructies
Funderingen en kelders
Overig
Brandbeveiliging
Buitenruimte
Bestratingen en verhardingen
Afwateringen
Terreinafscheidingen en geluidsschermen
Buitenmeubilair
Fietsparkeren
Terrassen
Terrasoverkappingen
Bruggen
Accessoires
Overig
Beplanting
Sport- en speeltoestellen
Software
Tekenen 2D
Modelleren 3D / BIM
Visualisatie / rendering
Parametrisch ontwerpen
Bouwfysica
Draagconstructie
Overig
Virtual Reality
Cloudoplossingen
Om direct naar je favorieten te kunnen gaan is het nodig om eerst in te loggen.
Nieuw
Populair
Favorieten
Toon alles
Prefab beurs - 7 t/m 9 oktober 2025
Brabanthallen 's-Hertogenbosch
Boekpresentatie en panelgesprek met Floor Milikowsky
Prins Hendrikkade 600, 1011 VX Amsterdam
Architects Table ’25: Lunch & Inspiratie in HAUT Amsterdam
ATAG LIVE – HAUT gebouw, Spaklerweg 10F, 1096 BA Amsterdam (tegenover metrostation Spaklerweg)
'Iwan Baan – Momentum of Light' Fotografie in Burkina Faso
Hoflaan 26, 1861 CR, Bergen
Ontdek Archicad 29!
Online
Ontdek de unieke features van Architect@Work Amsterdam
De Kromhouthal, Gedempt Hamerkanaal 231, Amsterdam
Prefab beurs - 7 t/m 9 oktober 2025
Brabanthallen 's-Hertogenbosch
Architects Table ’25: Lunch & Inspiratie in HAUT Amsterdam
ATAG LIVE – HAUT gebouw, Spaklerweg 10F, 1096 BA Amsterdam (tegenover metrostation Spaklerweg)
DigiBouw 2025 – hét event voor digitalisering in de bouwsector
Expozaal van het Beatrixgebouw in Utrecht
Boekpresentatie en panelgesprek met Floor Milikowsky
Prins Hendrikkade 600, 1011 VX Amsterdam
Om direct naar je favorieten te kunnen gaan is het nodig om eerst in te loggen.
Nieuw
Toon alles
Design
Duurzaamheid
Gevel
Infrastructuur
Interieur
Kantoren
Leisure
Openbare ruimte
Publieke gebouwen
Scholen
Transformatie en Renovatie
Woningbouw
Zorg
Om direct naar je favorieten te kunnen gaan is het nodig om eerst in te loggen.
Nieuw
Populair
Toon alles
Gezocht: technisch tekenaar
Medior Architect
Assistent Ontwerper (Junior Architect)
Ervaren Bouwkundig Tekenaar
9graden architectuur Amersfoort zoekt een bouwkundig modelleur
SVP zoekt bureauondersteuner
Junior Architect (NL/EN)
De Academie van Bouwkunst Amsterdam zoekt twee onderzoekers voor lectoraat
Site Practice zoekt medior architect met 4-6 jaar ervaring (Amsterdam)
Architect
Junior Ontwerper
Studio Nauta zoekt projectleider
Om direct naar je favorieten te kunnen gaan is het nodig om eerst in te loggen.
Copyright: Stijn Poelstra
Copyright: Stijn Poelstra
Copyright: Stijn Poelstra
Copyright: Stijn Poelstra
Copyright: Stijn Poelstra
Copyright: Stijn Poelstra
Copyright: Stijn Poelstra
Copyright: Stijn Poelstra
Copyright: Stijn Poelstra
Copyright: Stijn Poelstra
Copyright: Stijn Poelstra
Copyright: Stijn Poelstra
Copyright: Stijn Poelstra
Copyright: Stijn Poelstra
Copyright: Stijn Poelstra
Copyright: Stijn Poelstra
Copyright: Stijn Poelstra
Copyright: Stijn Poelstra
Copyright: Stijn Poelstra
Copyright: Stijn Poelstra
Copyright: Stijn Poelstra
Copyright: Stijn Poelstra
Tijdens de bouw
Copyright: Zecc Architecten
Tijdens de bouw
Copyright: Zecc Architecten
Situatie
Copyright: Zecc Architecten
Doorsnede
Copyright: Zecc Architecten
Doorsnede
Copyright: Zecc Architecten
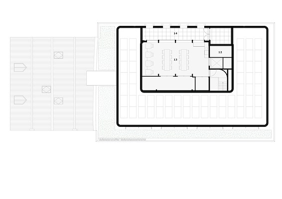
Begane grond
Copyright: Zecc Architecten
Eerste verdieping
Copyright: Zecc Architecten
Tweede verdieping
Copyright: Zecc Architecten
Gemeentehuis Renswoude gerenoveerd en uitgebreid met nieuwbouw van CLT
17 juli 2023, 15:26
Dit jaar is het vernieuwde gemeentehuis van het Utrechtse Renswoude opgeleverd. Naar ontwerp van
Zecc Architecten
is de rijksmonumentale oudbouw uit 1651 gerestaureerd en verbonden met een nieuw volume. De tweelaagse nieuwbouw is geconstrueerd van CLT en heeft een keramische gevel van demontabele steenstrips met een groen glazuur uit afvalstromen van de glasindustrie.
De nieuwbouw is verrezen op de plek van een van de latere aanbouwen van het rijksmonument, dat ooit is gebouwd als pastorie. Beide bouwdelen zijn verbonden door een nieuwe publieksentree, die tevens toegang biedt tot zowel het monument als de nieuwbouw. De entree is ontworpen als een transparante ‘wandelgang’. De klinkers van het pad dat ervoor ligt is doorgetrokken naar binnen, wat ook geldt voor de gevelafwerking van de naastgelegen bouwdelen.
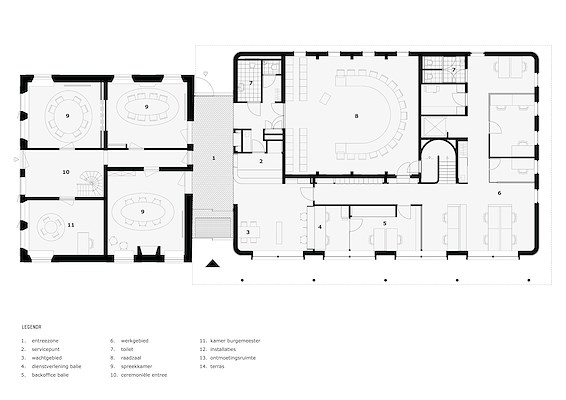
In de nieuwbouw zijn de raadszaal, publieksbalies en werkplekken voor de gemeenteambtenaren ondergebracht. Het monumentale deel biedt plek aan onder meer de trouwzaal, spreekkamers en burgemeesterskamer. In de materialisatie en uitstraling van de nieuwbouw wordt op verschillende manieren gerefereerd aan het monument. Zo verwijst de CLT-constructie, die binnen op meerdere plekken zichtbaar is, naar de houten kap op de verdieping van de oudbouw.
Het interieur van de nieuwbouw heeft een lichte uitstraling, die wordt versterkt door de grote ramen. Er is gekozen voor een lichtgrijze vloerbedekking, wanden bestaan uit zachte kleurvlakken die volgens Zecc Architecten ‘het informele, levendige en persoonlijke karakter van de gemeente en haar dienstverlening’ benadrukken en bijdragen aan de oriëntatie door het gebouw.
De nieuwbouw is in korte tijd hoofdzakelijk gebouwd met CLT, aangevuld met houtskeletbouw. Het glazuur van de keramische steenstrips bevat componenten uit de afvalverbrandingsovens van huisvuil en bestaat grotendeels uit gerecycled glas. Dit glas is afkomstig uit de glasbak op de hoek van de straat.
Monument
In het monument zijn de latere toevoegingen verwijderd en is waar mogelijk verduurzaamd, door middel van isolatie, voorzetramen en een nieuw installatieprincipe. In de toegangshal is de oorspronkelijke groene kleurstelling van plafonds en balken teruggebracht en aangevuld met lichte tinten en ‘warme’ accenten.
Een van de belangrijkste ontwerpkeuzes was het verplaatsen van het parkeren naar de achterzijde van het gebouw, meldt Zecc Architecten. Hierdoor kon het voorterrein groen worden ingericht en sluit deze beter aan op het bos aan de overkant van de straat. Het groen loopt over in de met sedum bedekte luifel, de groene gevel van de nieuwbouw en de groene accenten binnen. Door het verplaatsen van het parkeren is ook de verkeersveiligheid verbeterd.
Zecc Architecten won de prijsvraag voor de renovatie en uitbreiding van het gemeentehuis in 2020.
Trefwoorden
renswoude
uitbreiding
renovatie
gemeentehuis
zecc architecten
Locatie
Best gelezen
1
Plan Spot belooft Lelystad bruisend centrumgebied
vrijdag, 3 oktober
2
‘NDSM-werf en Buiksloterham zijn júÃst inspirerende voorbeelden voor de stad van morgen’
vrijdag, 3 oktober
3
Nominaties Publiek gebouw van het Jaar 2025 bekend
woensdag, 8 oktober
4
Realisatieovereenkomst voor hoogbouwcomplex De Sax op Wilhelminapier getekend
maandag, 6 oktober
5
We verdienen betere pers
dinsdag, 7 oktober
Gerelateerde nieuwsberichten
Zecc architecten ontwerpt gemeentehuis Renswoude
24 april 2020
Eerste woongebouw in Utrechtse wijk Cartesius opgeleverd
16 mei 2023
Nationale Watertorenprijs 2022 naar transformatie van Zecc
1 mei 2023
Nieuwe woontoren voor Almere Duin naar ontwerp Zecc
26 januari 2023
Exclusieve woning over zes verdiepingen in een watertoren
12 december 2022
Zecc Architecten werkt in een zelf ontworpen en ontwikkeld gebouw
3 februari
Rietveldprijs 2022 toegekend aan parkontwerp Catharijnesingel
21 november 2022
Woningbouwproject Het Eiland in Meerstad opgeleverd
10 augustus 2022
Hoogwaardig blok met sociale huurwoningen voor Leidsche Rijn Centrum
22 september 2023
Video: Stijn Poelstra filmt Post Utrecht
21 juni 2022
Zecc, Jasper Smits en Lindeloof ontwerpen woonblok bij oude scheepswerf Krimpen aan den IJssel
19 mei 2022
Transformatie De Vasim tot multifunctioneel gebouw afgerond
20 december 2023
Zecc Architecten presenteert ontwerp voor renovatie De Vasim
29 november 2021
Kade Noord in Zutphen door KCAP en Zecc Architecten afgerond
2 november 2021
Binckhorst krijgt 36 meter hoog woongebouw in CLT
2 september 2024
Transformatie van Defensie-Eiland in Woerden afgerond
17 september 2021
Zecc Architecten presenteert tijdelijke huisvesting Tweede Kamer
2 september 2021
Kinderdagverblijf met duurzaam karakter en natuurlijke uitstraling
13 februari
Brandwerendste lijm bij CLT is minst gezond
2 december 2024
Zecc architecten ontwerpt gemeentehuis Renswoude
24 april 2020
Eerste woongebouw in Utrechtse wijk Cartesius opgeleverd
16 mei 2023
Nationale Watertorenprijs 2022 naar transformatie van Zecc
1 mei 2023
Nieuwe woontoren voor Almere Duin naar ontwerp Zecc
26 januari 2023
Exclusieve woning over zes verdiepingen in een watertoren
12 december 2022
Zecc Architecten werkt in een zelf ontworpen en ontwikkeld gebouw
3 februari
Rietveldprijs 2022 toegekend aan parkontwerp Catharijnesingel
21 november 2022
Woningbouwproject Het Eiland in Meerstad opgeleverd
10 augustus 2022
Hoogwaardig blok met sociale huurwoningen voor Leidsche Rijn Centrum
22 september 2023
Video: Stijn Poelstra filmt Post Utrecht
21 juni 2022
Zecc, Jasper Smits en Lindeloof ontwerpen woonblok bij oude scheepswerf Krimpen aan den IJssel
19 mei 2022
Transformatie De Vasim tot multifunctioneel gebouw afgerond
20 december 2023
Zecc Architecten presenteert ontwerp voor renovatie De Vasim
29 november 2021
Kade Noord in Zutphen door KCAP en Zecc Architecten afgerond
2 november 2021
Binckhorst krijgt 36 meter hoog woongebouw in CLT
2 september 2024
Transformatie van Defensie-Eiland in Woerden afgerond
17 september 2021
Zecc Architecten presenteert tijdelijke huisvesting Tweede Kamer
2 september 2021
Kinderdagverblijf met duurzaam karakter en natuurlijke uitstraling
13 februari
Brandwerendste lijm bij CLT is minst gezond
2 december 2024
Toon alles
Andere nieuwsberichten
ECHO Urban Design en Studio RAP maken winnend ontwerp voor herontwikkeling in Vlissingen
46 minuten geleden
Met de aanbesteding voor een nieuw wooncomplex krijgt de herontwikkeling van het historische Touwslagerij-terrein verder vorm.
Geschiedenis van kleurrijke wijk in Dublin inspireert concrete voor interieurontwerp Liberties House
2 uur geleden
In Dublin is het door concrete ontworpen interieur van co-livingproject The Liberties opgeleverd. Het project bestaat uit 371 kleine appartementen en open ontmoetingsruimtes voor de bewoners.
Flat Amsterdam-Noord 'aangekopt' met 53 seniorenwoningen
Vandaag, 11:36
In Amsterdam-Noord is afgelopen jaar een bestaande flat uitgebreid met 53 woningen. Naar ontwerp van Vanschagen Architecten is de naoorlogse portiekflat ‘aangekopt’ in de hoeken, zodat daar nieuwe woningen konden worden gerealiseerd.
Nog twee dagen om jouw stem uit te brengen voor de Architect van het Jaar 2025!
Vandaag, 09:00
De nominaties voor de prijs voor Architect van het Jaar 2025 zijn: Joost Ector, KSA, KRFT, Sanne van Manen en Vakwerk Architecten. Bekijk nu de video’s waarin de genomineerden zich voorstellen en breng jouw stem uit!
Noord-Holland moet afronding natuurnetwerk weer jaren opschuiven
4 uur geleden
Volgens Noord-Holland is ‘de grootste en meest complexe opgave’ om grond beschikbaar te krijgen.
Onderzoek: over tien jaar zijn veel bestaande middenhuurwoningen verkocht
Vandaag, 10:22
Tegelijkertijd komen er weer nieuwgebouwde middenhuurwoningen bij, staat in een rapport dat in opdracht van het kabinet is uitgevoerd.
Do Janne Vermeulen verzorgt Rietveldlezing 2025
Gisteren, 11:28
De medeoprichter en directeur van Team V Architectuur spreekt op 13 november over de (houten) stad van morgen.
Eneco onderzoekt verkoop warmtenetten om nieuwe wet
Gisteren, 10:41
Door een eerder dit jaar aangenomen wet is het voor het bedrijf onzeker of investeringen zich nog terugverdienen.
Uitwerking van plannen voor Nedersaksenlijn kan beginnen
7 oktober, 12:17
Maandag is het startsein gegeven voor de eerste onderzoeken die uiteindelijk moeten leiden tot de spoorlijn die Groningen en Twente met elkaar verbindt.
Mona Keijzer lonkt naar investeerders op vastgoedbeurs in München
7 oktober, 10:02
"We moeten 1,6 miljoen woningen bouwen. Daarvoor hebben we buitenlandse investeerders nodig", stelt de demissionair minister.
Ga naar het nieuws-archief
Ronnie Weessies
Redacteur
1
0
0
0
Voor een optimale gebruikservaring plaatst Architectenweb functionele cookies. Wat de verschillende cookies precies doen leggen we uit in een
overzicht
. Cookies van social media kun je optioneel
aanzetten
.
Akkoord
Instellingen
Annuleren
OK
Sluiten
Doorgaan
Inloggen
Maak een gratis persoonlijk account aan
Feedback
Feedback
Wij horen graag jouw feedback. Laat je reactie achter en eventueel jouw e-mail adres.
Reactie
Verstuur