Projecten
Producten
Bedrijven
Vacatures
Agenda
Awards
Podcasts
more_horiz
Videos
Magazine
Thema's
Favorieten
Profiel
Uitloggen
Abonneer je nu op onze nieuwsbrieven!
Abonneren
Nee, bedankt
Ja, denk met me mee rond de
materialisering van mijn project
Copyright: René de Wit
Copyright: René de Wit
Copyright: René de Wit
Copyright: René de Wit
Copyright: René de Wit
Copyright: René de Wit
Copyright: René de Wit
Copyright: René de Wit
Copyright: René de Wit
Copyright: René de Wit
Copyright: René de Wit
Copyright: René de Wit
Copyright: René de Wit
Copyright: René de Wit
Copyright: René de Wit
Copyright: René de Wit
Copyright: René de Wit
Copyright: René de Wit
Het gebouw voor de transformatie
Copyright: Grosfeld Bekkers van der Velde architecten
Concept
Copyright: Grosfeld Bekkers van der Velde architecten
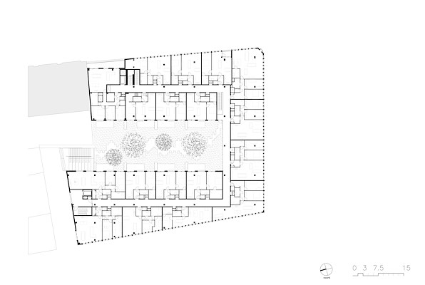
Begane grond
Copyright: Grosfeld Bekkers van der Velde architecten
Eerste verdieping
Copyright: Grosfeld Bekkers van der Velde architecten
Tweede verdieping
Copyright: Grosfeld Bekkers van der Velde architecten
Derde verdieping
Copyright: Grosfeld Bekkers van der Velde architecten
Kelder
Copyright: Grosfeld Bekkers van der Velde architecten
Doorsnede
Copyright: Grosfeld Bekkers van der Velde architecten
Gevels
Copyright: Grosfeld Bekkers van der Velde architecten
Situatie
Copyright: Grosfeld Bekkers van der Velde architecten
Woningen in een voormalig warenhuis
15 september 2022, 13:17
Een oud warenhuis van V&D in de historische binnenstad van Bergen op Zoom is naar ontwerp van Grosfeld Bekkers van der Velde architecten getransformeerd naar woongebouw. Het bureau verkoos herbestemming boven sloop vanwege de bijzondere cultuurhistorische waarde en de stedenbouwkundige verankering van het gebouw.
Op de plek waar aan het einde van de Tweede Wereldoorlog een verdwaalde bom het kantongerechtsgebouw verwoestte, opende in 1952 een nieuw, groot warenhuis. Het pand kenmerkt zich door zijn schaal, robuuste structuur en gesloten, sobere uitstraling.
Ondanks dat ze in het collectieve geheugen van de stad zijn opgenomen, worden dit soort gebouwen niet altijd op waarde geschat, stelt Pascal Grosfeld, projectverantwoordelijke bij deze transformatie. “De cultuurhistorische waarde van het gebouw was voor ons de aanleiding het te behouden en de introverte verschijningsvorm met zijn robuuste constructie te gebruiken in een nieuw concept voor een woongebouw.”
Nu biedt het voormalige V&D-complex ruimte aan commerciële ruimten in de plint en woonruimten op de twee verdiepingen daarboven. Naast de 27 stadsappartementen in het bestaande gebouw voegde het architectenbureau nog negen appartementen op het dak toe. In het souterrain is een parkeergarage gerealiseerd. Als verwijzing naar de oorsprong van het pand heet het nieuwe woongebouw ANNO52.
Ingrepen
Om de herbestemming tot woongebouw mogelijk te maken heeft Grosfeld Bekkers van der Velde een aantal ingrepen gedaan. aan de oostzijde is een aanbouw van latere datum gesloopt en aan de westzijde is de oude lift verwijderd. Met een insnede binnen het gesloten bouwblok heeft het architectenbureau een binnenterrein gecreëerd.
Deze gemeenschappelijke binnentuin vormt een luwte in de stedelijke omgeving en zorgt voor daglicht en ruimte in het hart van het gebouw brengt. Een corridor ontsluit de stadsappartementen, georiënteerd op de stad en op de binnentuin.
Het architectenbureau heeft de toegevoegde dakappartementen niet de wijkende gevellijnen laten volgen. Ze staan iets teruggeplaatst, waarmee, in de woorden van het bureau “een nieuwe, op zich staande wereld bovenop het bestaande” is gecreëerd. Een plek die zich onttrekt aan het rumoer van de stad en er toch bij betrokken blijft.
Constructie en gevel
De oude constructie van het gebouw is zichtbaar gebleven in de appartementen in de vorm van de plattegronden. Kolommen, balken en vloeren kruisen nieuwe wanden en ruimten, waardoor oud en nieuw afzonderlijk afleesbaar zijn. De oude verdiepingshoogte van 4 meter geeft de woningen een bijzonder karakter. De installaties zijn veelal in het zicht gehouden.
Het gesloten karakter van de oorspronkelijke gevel is vervangen door een heldere structuur van gemetselde penanten, kolommen en horizontale banden. Door het ritme van penanten sluit de gevel zich vanuit verschillende perspectieven en herinnert zo toch aan het voormalige gevelbeeld. De plint is, als voorheen, transparant en geschikt voor commerciële of publieke functies.
Trefwoorden
transformatie
herbestemming
bergen op zoom
woningbouw
appartementengebouw
warenhuis
grosfeld bekkers van der velde architecten
Locatie
Best gelezen
1
De Urbanisten schetst perspectief voor vitale en aantrekkelijke Rotterdamse binnenstad
vrijdag, 13 maart
2
Nominaties Amsterdamse Architectuurprijs 2026 bekend
vrijdag, 13 maart
3
Studio Vinke en Loos van Vliet ontwerpen blok met woningen in haven Lelystad
vrijdag, 13 maart
4
Houten Stelthuis van Woonpioniers is aardbevings- en klimaatbestendig
woensdag, 18 maart
5
BureauVanEig verbetert uitstraling Haagse rijtjeswoningen bij verduurzaming
dinsdag, 17 maart
Gerelateerde nieuwsberichten
Grosfeld Bekkers van der Velde wint selectie clubgebouw Roelofarendsveen
27 november 2023
Oosterhout stap dichter bij nieuwe stadswijk Voltkwartier
31 januari 2023
Ensemble van villa's in bosrijke achtertuin van Bredase kantoorvilla
28 februari 2024
Grosfeld Bekkers van der Velde ontwerpt ‘grensoverschrijdend’ cultureel centrum in Baarle
12 maart 2025
Een woonhuis met vrij zicht op de es
26 mei 2025
Compacter schoolgebouw in Klein-Zundert maakt veel groener schoolplein mogelijk
25 november 2025
Basisschool in Gilze heeft zones met verschillende dynamiek
13 oktober 2021
Woonhuis G meandert over de kavel
17 februari 2021
Grosfeld Bekkers van der Velde ontwerpt horecapaviljoen Helmond
6 januari 2020
Woonhuis als langwerpig element op bosrijke kavel
22 maart 2019
Nieuwe partner en naamgever voor Grosfeld Bekkers van der Velde Architecten
2 januari 2019
Woongebouw als 'bergdorp' op parkeergarage Amstelveen
25 november 2020
Oud distributiepand V&D getransformeerd tot woongebouw
1 mei 2020
V&D-complex tussen Rokin en Kalverstraat door Office Winhov ontrafeld
11 december 2019
Nieuwe bestemming voor voormalig V&D-pand Groningen
4 november 2019
BFAS+ moderniseert voormalige V&D-pand Alkmaar
18 maart 2019
Dok architecten presenteert ontwerp Wal Kwartier Oss
26 november 2018
V&D-complex Rokin krijgt oude karakter terug
23 juni 2017
Grosfeld Bekkers van der Velde wint selectie clubgebouw Roelofarendsveen
27 november 2023
Oosterhout stap dichter bij nieuwe stadswijk Voltkwartier
31 januari 2023
Ensemble van villa's in bosrijke achtertuin van Bredase kantoorvilla
28 februari 2024
Grosfeld Bekkers van der Velde ontwerpt ‘grensoverschrijdend’ cultureel centrum in Baarle
12 maart 2025
Een woonhuis met vrij zicht op de es
26 mei 2025
Compacter schoolgebouw in Klein-Zundert maakt veel groener schoolplein mogelijk
25 november 2025
Basisschool in Gilze heeft zones met verschillende dynamiek
13 oktober 2021
Woonhuis G meandert over de kavel
17 februari 2021
Grosfeld Bekkers van der Velde ontwerpt horecapaviljoen Helmond
6 januari 2020
Woonhuis als langwerpig element op bosrijke kavel
22 maart 2019
Nieuwe partner en naamgever voor Grosfeld Bekkers van der Velde Architecten
2 januari 2019
Woongebouw als 'bergdorp' op parkeergarage Amstelveen
25 november 2020
Oud distributiepand V&D getransformeerd tot woongebouw
1 mei 2020
V&D-complex tussen Rokin en Kalverstraat door Office Winhov ontrafeld
11 december 2019
Nieuwe bestemming voor voormalig V&D-pand Groningen
4 november 2019
BFAS+ moderniseert voormalige V&D-pand Alkmaar
18 maart 2019
Dok architecten presenteert ontwerp Wal Kwartier Oss
26 november 2018
V&D-complex Rokin krijgt oude karakter terug
23 juni 2017
Toon alles
Andere nieuwsberichten
Projecten gezocht voor vijfde Adriaan Dessingprijs
Gisteren, 14:42
De tweejaarlijkse architectuurprijs vestigt de aandacht op bijzondere, gerealiseerde plannen in de Zuid-Hollandse gemeenten Westland en Midden-Delfland. Het kan gaan om nieuwbouw, restauratie of landschappelijke projecten.
Nora Prins en Floor Marree versterken directie ECHO
Gisteren, 12:24
Met de uitbreiding verstevigt ECHO naar eigen zeggen de aansturing van zowel het ontwerpbureau als de adviespraktijk voor gebiedsontwikkeling.
Luxe appartementengebouw naast klooster Etten-Leur door Studio AAAN klaar
Gisteren, 10:50
Bij klooster ’t Withof in Etten-Leur is afgelopen jaar woongebouw De Hoogschout opgeleverd. Het door Studio AAAN ontworpen complex bestaat uit veertig ruime appartementen.
Hogeschool InHolland realiseert nieuw hoofdgebouw op campus Alkmaar
18 maart, 3:38
Het gebouw, dat is ontworpen door BRTArchitecten, moet een plek worden waar studenten, docenten en andere betrokkenen samenkomen om te leren, onderzoeken en samenwerken. Spil in het ontwerp vormt een doorlopende verbindende ruimte.
Provincie schrapt beoogde locaties windturbines in Groene Hart
Gisteren, 13:35
De provincie had twaalf plekken op het oog, maar dat leidde tot maatschappelijk en politiek verzet.
Staten Utrecht willen netcongestie versneld aanpakken
Gisteren, 09:44
De fracties wezen op de noodzaak van het zo snel mogelijk realiseren van een hoogspanningsstation dat essentieel is voor het opsplitsen van het elektriciteitsnetwerk tussen de Flevopolder, Gelderland en Utrecht.
Rotterdam wil woningbouw versnellen met pilot ‘Ontwikkelaar aan Zet’
18 maart, 4:33
De gemeente Rotterdam start een pilot waarbij projectontwikkelaars een grotere rol krijgen bij de voorbereiding van woningbouwprojecten.
Veel meer financieringsaanvragen Warmtefonds om hogere gasprijzen
18 maart, 2:31
De gestegen gasprijzen zorgen ervoor dat veel meer huiseigenaren financiering aanvragen voor het energiezuiniger maken van hun woning.
Grondprijs voor landbouwgrond loopt op tot bijna een ton
18 maart, 9:36
Ook overheden en andere partijen zoeken naar grond voor onder meer woningbouw, natuur en infrastructuur.
ANWB: betrek bewoners beter bij parkeerplannen in de wijk
17 maart, 2:00
Bewoners vinden naast parkeerruimte groen en leefbaarheid in hun wijk ook belangrijk, stelt de organisatie.
Ga naar het nieuws-archief
Robert Muis
Redacteur
1
0
0
0
Voor een optimale gebruikservaring plaatst Architectenweb functionele cookies. Wat de verschillende cookies precies doen leggen we uit in een
overzicht
. Cookies van social media kun je optioneel
aanzetten
.
Akkoord
Instellingen
Annuleren
OK
Sluiten
Doorgaan
Inloggen
Maak een gratis persoonlijk account aan
Feedback
Feedback
Wij horen graag jouw feedback. Laat je reactie achter en eventueel jouw e-mail adres.
Reactie
Verstuur