Projecten
Producten
Bedrijven
Vacatures
Agenda
Awards
Podcasts
more_horiz
Videos
Magazine
Thema's
Favorieten
Profiel
Uitloggen
Abonneer je nu op onze nieuwsbrieven!
Abonneren
Nee, bedankt
Ja, denk met me mee rond de
materialisering van mijn project
Copyright: Kees Hummel
Copyright: Kees Hummel
Copyright: Kees Hummel
Copyright: Kees Hummel
Inspiratie
Copyright: Damast architects
Copyright: Kees Hummel
Copyright: Kees Hummel
Copyright: Kees Hummel
Copyright: Kees Hummel
Copyright: Damast architects
Copyright: Damast architects
Fijnzinnig gedetailleerde winkelgevels voor De Pijp
25 augustus 2022, 11:02
Aan de Ferdinand Bolstraat in Amsterdam zijn een aantal winkelpanden en een magazijn ingrijpend vernieuwd. De fijnzinnig gedetailleerde winkelgevels, die
Damast architects
hiervoor heeft ontworpen, zijn geïnspireerd op de patronen van het glas-in-lood dat hier ooit te vinden was.
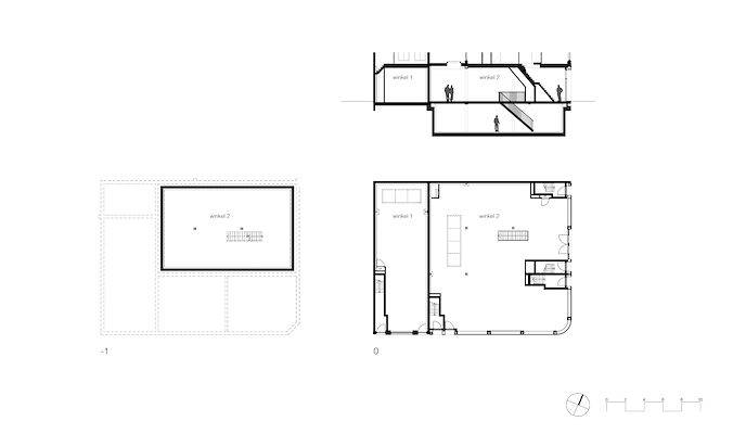
Op de hoek van de Ferdinand Bolstraat en de Eerste Jan van der Heijdenstraat in de binnenstad van Amsterdam zijn door de Kroonenberg Groep enkele negentiende-eeuwse winkelpanden en een magazijn ingrijpend herontwikkeld, samengevoegd en uitgebreid. Door een herverdeling ontstond er één grote winkelruimte op de hoek van de winkelstraat over drie beuken. Het magazijn aan de Eerste Jan van der Heijdenstraat werd getransformeerd tot een kleinere winkelruimte. De nieuwe winkels zijn voorzien van een kelder en kregen nieuwe, uitnodigende gevels naar ontwerp van Damast architects.
Negentiende-eeuwse gevelritmiek in eigentijds jasje
Na vele verbouwingen in de afgelopen honderd jaar waren de oorspronkelijke winkelgevels hier geheel verdwenen. “We hebben de karakteristieke gevelritmiek en vormentaal van de negentiende-eeuwse gevels subtiel teruggebracht”, vertelt architect Daniël Peters van Damast architects. “Tijdens archiefstudie ontdekten we een geometrisch patroon in de oorspronkelijke glas-in-lood bovenlichten. Dat patroon hebben we verwerkt in de stalen gevelcassettes en zelfs doorgevoerd tot in het kleinste detail van de deurgrepen. Door te putten uit verborgen verhalen maken we de beleving van de stad veelzijdiger en interessanter.”
De winkelplint strekt zich als een strak, horizontaal element uit over meerdere panden. Diepe portieken accentueren het negentiende-eeuwse ritme van winkelpuien en toegangen van de winkels en de bovenwoningen. “Daarbij zorgt de schaduwwerking van de gevelcassettes voor een rijk en geraffineerd beeld met ragfijne belijningen”, vertelt Daniël verder. “De winkelruiten zijn gevat in custom made kozijnen met een aanzicht van slechts twee centimeter.”
Stalen portaalconstructie
Hoge ambities vragen om de grenzen op te zoeken van het maakbare. Om een zo transparant mogelijke gevel te maken met grote winkelruiten is een stalen portaalconstructie aangebracht over de volle lengte van de gevels. De constructeur heeft voor het project speciale, tijdelijke stalen stutvoorzieningen ontworpen. Zo kon zoveel mogelijk hoogte worden gemaakt zonder de bewoners van de bovenwoningen tot last te zijn. Het resultaat is een moderne, aantrekkelijke winkelruimte met een hoog plafond.
Trefwoorden
damast architects
amsterdam
winkelgevel
kroonenberg groep
daniël peters
de pijp
ferdinand bolstraat
winkelpanden
winkel
Best gelezen
1
MVSA Architects en Powerhouse Company ontwerpen dubbele woontoren bij Den Haag Centraal
maandag, 30 maart
2
Schiphol maakt nieuwe 'huisarchitecten' bekend
donderdag, 26 maart
3
Amsterdam wil hiphopcentrum realiseren in stadsdeel Zuidoost
vrijdag, 27 maart
4
Jan Knikker vertrekt bij MVRDV
maandag, 30 maart
5
Menselijk contact, licht en lucht staan centraal bij appartementencomplex van SO-IL
donderdag, 26 maart
Gerelateerde nieuwsberichten
Ruwbouwmaterialen bepalen sfeer interieur van bouwbedrijf
18 november 2020
Kantoorgebouw in Buitenveldert knipoogt naar Algemeen Uitbreidingsplan
26 juni 2023
Damast architects ontwerpt Waterwachters voor nieuwe woonwijk Nieuwegein
3 december 2019
Nieuwe interieurs stadsdeelkantoor weerspiegelen karakter 'Noord'
30 april 2020
Het Palenhuis gekozen als tijdelijk kunstwerk voor Sluisbuurt
7 oktober 2020
Glanzende en gestroomlijnde warmtecentrale voor Hengelo
2 december 2019
Transformatie en nieuwbouw door ZZDP levert 77 woningen op in De Pijp
3 april 2023
Sjoerd Soeters en Joep Mollink bundelen krachten
15 januari 2019
Ruwbouwmaterialen bepalen sfeer interieur van bouwbedrijf
18 november 2020
Kantoorgebouw in Buitenveldert knipoogt naar Algemeen Uitbreidingsplan
26 juni 2023
Damast architects ontwerpt Waterwachters voor nieuwe woonwijk Nieuwegein
3 december 2019
Nieuwe interieurs stadsdeelkantoor weerspiegelen karakter 'Noord'
30 april 2020
Het Palenhuis gekozen als tijdelijk kunstwerk voor Sluisbuurt
7 oktober 2020
Glanzende en gestroomlijnde warmtecentrale voor Hengelo
2 december 2019
Transformatie en nieuwbouw door ZZDP levert 77 woningen op in De Pijp
3 april 2023
Sjoerd Soeters en Joep Mollink bundelen krachten
15 januari 2019
Toon alles
Andere nieuwsberichten
Voormalige verffabriek in Overschie omgevormd tot buurt met 125 woningen
28 minuten geleden
Op de plek van een voormalige verffabriek aan de Schansweg in Rotterdam worden 125 woningen gerealiseerd. Ook biedt het plan ruimte voor achthonderd tot duizend vierkante meter aan bedrijfsruimte.
Woningbouwproject Nieuw Zuid in Hilversum voltooid
1 uur geleden
Op de plek van het voormalige zorgcomplex Zuiderheide zijn vijf appartementengebouwen voor verschillende doelgroepen gerealiseerd, naar ontwerp van verschillende architectenbureaus.
BURA publiceert resultaten ontwerpend onderzoek Marineterrein Amsterdam
3 uur geleden
Onder de titel Postgroei Marineterrein deed BURA onderzoek naar de contouren van een proeftuin voor sociaal-economische innovatie.
'Materialenwerf' in M4H vormt festivalhart Rotterdam Architectuur Maand
31 maart, 2:05
Op 3 juni opent het flexibel opgezette bouwwerk in M4H, waar gebruikte bouwmaterialen worden verzameld, bewerkt en opnieuw ingezet. Gedurende de hele maand juni wordt er getest hoe een circulaire stad eruit kan zien, meldt AIR Rotterdam.
Amsterdam krijgt dertig meter hoge Self Storage Tower naar ontwerp dedato
2 uur geleden
Minerva Development heeft de onherroepelijke bouwvergunning voor een dertig meter hoge ‘Self Storage Tower’ in het Amsterdamse Westpoortgebied.
Prijzen van nieuwbouwkavels verder gestegen
4 uur geleden
De prijzen van nieuwbouwkavels zijn in het vierde kwartaal met gemiddeld 15,3 procent gestegen vergeleken met een jaar eerder.
Kamer: onderhoud en veiligheid voorop bij keuzes infrastructuur
Vandaag, 09:32
Onderhoud en veiligheid moeten volgens de Tweede Kamer vooropstaan bij pijnlijke keuzes die het kabinet gaat maken over infrastructuur.
Michael Braungart luistert vijftienjarig jubileum Cradle to Cradle Café op
31 maart, 11:27
Op dinsdag 14 april organiseert het Cradle to Cradle Café een speciaal jubileumfestival in Utrecht ter gelegenheid van zijn vijftienjarig bestaan.
PBL: politieke keuzes nodig voor aanpassing klimaatverandering
31 maart, 10:23
Een verstandige keuze is alvast om alles klimaatadaptief aan te pakken, aldus het Planbureau voor de Leefomgeving.
OM vervolgt oud-werknemers Strukton na Saudische omkopingskwestie
30 maart, 4:52
Eerder werd al bekend dat het bouwbedrijf voor tien miljoen euro heeft geschikt in de corruptiezaak.
Ga naar het nieuws-archief
3
0
0
0
Voor een optimale gebruikservaring plaatst Architectenweb functionele cookies. Wat de verschillende cookies precies doen leggen we uit in een
overzicht
. Cookies van social media kun je optioneel
aanzetten
.
Akkoord
Instellingen
Annuleren
OK
Sluiten
Doorgaan
Inloggen
Maak een gratis persoonlijk account aan
Feedback
Feedback
Wij horen graag jouw feedback. Laat je reactie achter en eventueel jouw e-mail adres.
Reactie
Verstuur