Projecten
Producten
Bedrijven
Vacatures
Agenda
Awards
Podcasts
more_horiz
Videos
Magazine
Favorieten
Profiel
Uitloggen
Abonneer je nu op onze nieuwsbrieven!
Abonneren
Nee, bedankt
Ja, denk met me mee rond de
materialisering van mijn project
Copyright: Kees Hummel
Copyright: Kees Hummel
Copyright: Kees Hummel
Copyright: Kees Hummel
Copyright: Kees Hummel
Copyright: Kees Hummel
Copyright: Kees Hummel / Damast Architects
Copyright: Damast Architects
Copyright: Damast Architects
Kantoorgebouw in Buitenveldert knipoogt naar Algemeen Uitbreidingsplan
26 juni 2023, 13:42
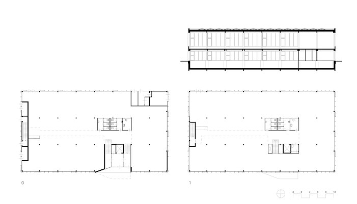
In de Amsterdamse wijk Buitenveldert is onlangs kantoorgebouw Rooswijck 5 opgeleverd. Op de bestaande souterrainvloer van een voormalig bedrijfsverzamelgebouw is een pand van twee lagen verrezen, dat grotendeels is opgetrokken uit CLT.
Damast Architects
is verantwoordelijk voor het ontwerp van het gebouw.
Het 1.280 vierkante meter omvattend gebouw bestaat uit twee extra hoge en flexibel indeelbare verdiepingen, die ruimte bieden aan kantoren en andere bedrijfsfuncties. Beide verdiepingen fungeren zelfstandig en delen een entreepartij, die herkenbaar is aan de met houten latten beklede luifel en wand die naar binnen doorloopt.
Het bestaande bedrijfsverzamelgebouw op Rooswijck 5 voldeed niet meer aan de eisen van deze tijd. Vastgoedeigenaar Kroonenberg Groep besloot daarom nieuw te bouwen boven het bestaande betonnen souterrain, met prefab gelamineerde houten balken, kolommen en vloeren. Daarnaast zijn verhoogde computervloeren op stalen vijzels toegepast, zodat er volop ruimte is voor installaties.
Zwarte aluminium gevelpanelen
De kenmerkende ritmische gebouwstructuren van Buitenveldert vormden de inspiratiebron voor het gevelontwerp, meldt Damast Architects. Er zijn zwarte aluminium gevelpanelen en vinnen toegepast, geperforeerde panelen maskeren de achtergelegen draairamen. In de geperforeerde panelen is tevens de isometrie van het Algemeen Uitbreidingsplan zichtbaar, waar Buitenveldert deel van uitmaakt.
Het energiezuinige pand heeft een gasloze luchtbehandelingsinstallatie die het gebouw verwarmt en verkoelt. Zonnepanelen op het dak leveren er de energiebehoefte voor.
Trefwoorden
amsterdam
kantoren
damast architects
clt
kantoorgebouw
buitenveldert
Locatie
Best gelezen
1
Genomineerden BNA Beste Gebouw van het Jaar 2026 bekend
dinsdag, 28 april
2
Architectenweb symposium: samenwerken op kantoor
dinsdag, 28 april
3
Bouwvergunning voor torens MVRDV op Tour & Taxis-terrein Brussel
donderdag, 30 april
4
MVRDV en Diamond Schmitt ontwerpen tweede gebouw voor universiteit Toronto
dinsdag, 28 april
5
Groosman heeft 'eigen' Coolse Poort in centrum Rotterdam gerenoveerd
woensdag, 29 april
Gerelateerde nieuwsberichten
Facelift maakt kantoorgebouw in Buitenveldert veel transparanter
22 november 2023
Een golvende mijlpaal in Amsterdam Buitenveldert
20 december 2022
Fijnzinnig gedetailleerde winkelgevels voor De Pijp
25 augustus 2022
Kantoorpand in Buitenveldert verbouwd en uitgebreid door Dam & Partners Architecten
24 oktober 2024
'Dit is het moment om een visie te ontwikkelen voor vernieuwing van Buitenveldert’
20 december 2023
Ruwbouwmaterialen bepalen sfeer interieur van bouwbedrijf
18 november 2020
'Europaboulevard biedt ruimte voor duizend tot tweeduizend woningen'
28 februari 2024
Het Palenhuis gekozen als tijdelijk kunstwerk voor Sluisbuurt
7 oktober 2020
Nieuwe interieurs stadsdeelkantoor weerspiegelen karakter 'Noord'
30 april 2020
Damast architects ontwerpt Waterwachters voor nieuwe woonwijk Nieuwegein
3 december 2019
Glanzende en gestroomlijnde warmtecentrale voor Hengelo
2 december 2019
Binckhorst krijgt 36 meter hoog woongebouw in CLT
2 september 2024
Kinderdagverblijf met duurzaam karakter en natuurlijke uitstraling
13 februari 2025
Brandwerendste lijm bij CLT is minst gezond
2 december 2024
Facelift maakt kantoorgebouw in Buitenveldert veel transparanter
22 november 2023
Een golvende mijlpaal in Amsterdam Buitenveldert
20 december 2022
Fijnzinnig gedetailleerde winkelgevels voor De Pijp
25 augustus 2022
Kantoorpand in Buitenveldert verbouwd en uitgebreid door Dam & Partners Architecten
24 oktober 2024
'Dit is het moment om een visie te ontwikkelen voor vernieuwing van Buitenveldert’
20 december 2023
Ruwbouwmaterialen bepalen sfeer interieur van bouwbedrijf
18 november 2020
'Europaboulevard biedt ruimte voor duizend tot tweeduizend woningen'
28 februari 2024
Het Palenhuis gekozen als tijdelijk kunstwerk voor Sluisbuurt
7 oktober 2020
Nieuwe interieurs stadsdeelkantoor weerspiegelen karakter 'Noord'
30 april 2020
Damast architects ontwerpt Waterwachters voor nieuwe woonwijk Nieuwegein
3 december 2019
Glanzende en gestroomlijnde warmtecentrale voor Hengelo
2 december 2019
Binckhorst krijgt 36 meter hoog woongebouw in CLT
2 september 2024
Kinderdagverblijf met duurzaam karakter en natuurlijke uitstraling
13 februari 2025
Brandwerendste lijm bij CLT is minst gezond
2 december 2024
Toon alles
Andere nieuwsberichten
'Stuttende' en contrasterende installatie voor Besiendershuis Nijmegen
Gisteren, 15:52
Bij het Besiendershuis in Nijmegen is afgelopen maand een door Frank Havermans ontworpen kunstinstallatie geopend. Het bouwwerk is gerealiseerd ter viering van het vijfhonderdjarig jubileum van het bijzondere huis in het centrum van de Keizerstad.
Specht architectuur en stedenbouw toont met meergeneratiehofje alledaagse woongemeenschappelijkheid
Gisteren, 14:25
Het meergeneratiehofje met sociale huurwoningen in Stedum is een bijdrage aan de zoektocht naar alledaagse gemeenschappelijkheid in het wonen in Nederland.
Mobiliteitshub van gerecycled tropisch hardhout voor Tholen
Gisteren, 11:41
In het Zeeuwse Tholen is een mobiliteitshub naar ontwerp van RO&AD Architecten opgeleverd. Het gebouw, dat is geheel is gemaakt van gerecycled tropisch hardhout, fungeert als knooppunt voor bussen en fietsers.
Kleurrijke textielinstallatie van Simone Post voor entreegebied Centraal Museum
Gisteren, 09:05
Voor Patchwork Post heeft ontwerper Simone Post objecten en kunstwerken uit de museumcollectie vertaald naar diverse werken in textiel.
Verzet natuurorganisaties tegen stroomkabel via Schiermonnikoog
Gisteren, 16:39
Negen natuurorganisaties maken zich grote zorgen over het plan om stroom van een nieuw windpark op de Noordzee via Schiermonnikoog aan land te brengen.
ING: huizenprijzen stijgen dit jaar niet verder door hoger aanbod
Gisteren, 13:03
Na jaren van groei is het voor het eerst in lange tijd dat een bank verwacht dat de huizenmarkt niet verder groeit.
TenneT mag datacenteraansluiting uitstellen om vol stroomnet
Gisteren, 10:11
Een projectontwikkelaar van een datacenter bij Schiphol klaagde hierover en spande een kort geding aan.
Brabant investeert 1,4 miljoen in waterfilter in Vlaanderen
30 april, 3:51
Het fosfaatfilter moet vervuild grondwater op een natuurlijke manier zuiveren voordat het naar het Nederlandse natuurgebied de Groote Meer bij Ossendrecht stroomt.
Rli: klimaat, vervuiling en groei bedreigen beschikbaarheid drinkwater
30 april, 12:20
De beschikbaarheid van drinkwater staat ernstig onder druk, waarschuwt de Raad voor de leefomgeving en infrastructuur.
ABN AMRO: huurwetaanpassingen stoppen uittocht beleggers niet
30 april, 9:04
Volgens de onderzoekers onderschat woonminister Boekholt de negatieve effecten van het huidige fiscale beleid.
Ga naar het nieuws-archief
Ronnie Weessies
Redacteur
0
0
0
0
Voor een optimale gebruikservaring plaatst Architectenweb functionele cookies. Wat de verschillende cookies precies doen leggen we uit in een
overzicht
. Cookies van social media kun je optioneel
aanzetten
.
Akkoord
Instellingen
Annuleren
OK
Sluiten
Doorgaan
Inloggen
Maak een gratis persoonlijk account aan
Feedback
Feedback
Wij horen graag jouw feedback. Laat je reactie achter en eventueel jouw e-mail adres.
Reactie
Verstuur