Projecten
Producten
Bedrijven
Vacatures
Agenda
Awards
Podcasts
more_horiz
Videos
Magazine
Thema's
Favorieten
Profiel
Uitloggen
Abonneer je nu op onze nieuwsbrieven!
Abonneren
Nee, bedankt
Ja, denk met me mee rond de
materialisering van mijn project
Copyright: Marcel van der Burg
Copyright: Marcel van der Burg
Copyright: Marcel van der Burg
Copyright: Marcel van der Burg
Copyright: Marcel van der Burg
Copyright: Marcel van der Burg
Copyright: Marcel van der Burg
Copyright: Marcel van der Burg
Copyright: Marcel van der Burg
Copyright: Marcel van der Burg
Copyright: Marcel van der Burg
Copyright: Marcel van der Burg
Copyright: Marcel van der Burg
Copyright: Marcel van der Burg
Copyright: Marcel van der Burg
Copyright: Marcel van der Burg
Copyright: Marcel van der Burg
Copyright: Marcel van der Burg
Copyright: Marcel van der Burg
Noordgevel
Copyright: Proof of the Sum
Zuidgevel
Copyright: Proof of the Sum
Oost- en westgevel
Copyright: Proof of the Sum
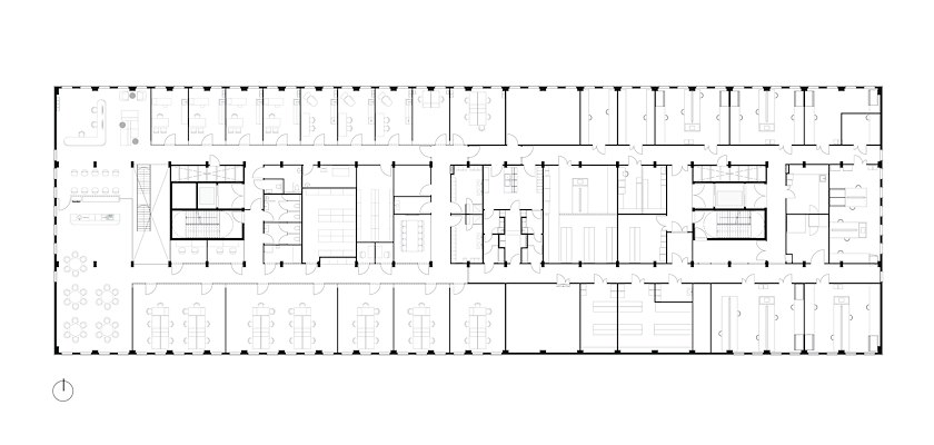
Begane grond
Copyright: Proof of the Sum
Eerste verdieping
Copyright: Proof of the Sum
Tweede verdieping
Copyright: Proof of the Sum
Derde verdieping
Copyright: Proof of the Sum
Vierde verdieping
Copyright: Proof of the Sum
Snel gerealiseerd Vaccinopolis Antwerpen officieel geopend
25 maart 2022, 14:25
Op Campus De Drie Eiken in Antwerpen is vrijdag gebouw Vaccinopolis geopend. In het pand, dat is ontworpen en gebouwd door een consortium met
Proof of the Sum
als architect daarin, zullen vaccins tegen verschillende ziektes worden getest en verbeterd. Onder druk van de coronapandemie is het gebouw in een tijd van slechts twintig maanden ontworpen en gerealiseerd.
Normaal duurt het vier tot vijf jaar om een pand als Vaccinopolis te realiseren, maar een consortium met de bijpassende naam IMM/Unity wist dat veel sneller voor elkaar te krijgen. Dat was mogelijk dankzij een door het consortium gepatenteerd en in eigen beheer ontwikkeld bouwsysteem dat voor de draagstructuur wordt gebruikt.
Binnen het in eigen beheer geproduceerde C-fast-bouwsysteem zijn slanke prefab kolommen en voorgespannen vloerplaten snel en efficiënt gestapeld zonder doorhangende balken. Dit biedt zowel hoge bouwsnelheid, flexibele indeelbaarheid als hoge installatie-vrijheid boven de plafonds, zo laat het consortium weten.
Vaccinopolis is ontworpen als een compact volume met een spiegelende gevel, die het gebouw een hightech-uitstraling geeft en het pand tegelijkertijd laat opgaan in de omgeving doordat de gevel deze weerspiegelt. De plint heeft een donkerder uitstraling, in het open middendeel is ruimte voor parkeerplaatsen.
Verblijven
In Vaccinopolis zullen onderzoekers, laboranten, proefpersonen en externe partijen korte of langere tijd zullen werken en verblijven. Op de begane grond bevinden zich naast de parkeerplekken ook de entree en publieke vergaderruimtes. Op de eerste verdieping zijn onder meer de laboratoria en kantoren gelegen, terwijl de tweede verdieping plaats biedt aan slaapkamers en leef- en ontspanningsruimtes voor de deelnemers aan de tests. Het gebouw heeft verder een dakterras.
In contrast met de hightech-uitstraling van de buitenzijde wordt het interieur gekenmerkt door een zachtere materialisatie en grijs-roze kleurstelling. De verblijfsruimtes voor de proefpersonen hebben daarnaast een losse inrichting, wat de sfeer verder moet veraangenamen. De opstelling van de meubels biedt privacy aan de testpersoon en het royale venster vormt een aangename rustplek in de kamer, laat Proof of the Sum weten.
Design, Build & Maintain
Vaccinopolis is gerealiseerd volgens de Design, Build & Maintain-methode. Het consortium bestond naast Proof of the Sum uit Exilab, Abstract Architecten, burO Groen en Establis (ontwerp), Jansen Building Group, Jansen Cleanrooms en Cordeel (zij waren verantwoordelijk voor de bouw).
https://vimeo.com/691700872
Trefwoorden
corona
zorg
vaccinopolis
antwerpen
proof of the sum
Locatie
Best gelezen
1
MVSA Architects en Powerhouse Company ontwerpen dubbele woontoren bij Den Haag Centraal
maandag, 30 maart
2
Architectenweb symposium: ontwerpen van autovrije buurten
woensdag, 25 maart
3
Schiphol maakt nieuwe 'huisarchitecten' bekend
donderdag, 26 maart
4
Amsterdam wil hiphopcentrum realiseren in stadsdeel Zuidoost
vrijdag, 27 maart
5
Studioninedots ontwerpt zelfbouwwoning als landschap van gestapelde doosjes
woensdag, 25 maart
Gerelateerde nieuwsberichten
Farmaceutisch bedrijfsverzamelgebouw op Pivot-campus Oss geopend
20 september 2024
Grootste openbaar laadpunt voor elektrisch vrachtvervoer geopend in Antwerpen
17 september 2024
Daniel Libeskind ontwerpt vernieuwde Boerentoren in Antwerpen
23 november 2022
Team met Office Winhov en HUB ontwerpt Collectie Centrum Antwerpen
24 september 2024
Wageningen Campus krijgt verzamelgebouw met houten constructie
30 april 2024
Antwerpen op zoek naar architect voor nieuw te bouwen Collectie Centrum
14 juli 2023
Bovenbouw Architectuur en Christ & Gantenbein zijn ontwerpteam voor nieuwe M HKA
27 februari 2025
Universiteit Antwerpen bouwt nieuw hart voor Campus Drie Eiken
8 december 2022
Glazen wand verbindt woontorens langs Antwerpse Ring
30 augustus 2022
Hoofdkantoor Gouweloos gerenoveerd door Proof of the Sum
16 september 2021
Hoofdkantoor Verwol heringericht door Proof of the Sum
30 maart 2021
Proof of the Sum ontwerpt mee aan Vaccinopolis Antwerpen
7 oktober 2020
Twee nieuwe gebouwen van Proof of the Sum voor Pivot Park Oss
15 september 2020
Bedrijfsverzamelgebouw Plus Ultra II opgeleverd
25 mei 2020
Wethoudersvleugel Stadhuis Alkmaar gerenoveerd door Proof of the sum
19 juli 2019
Wageningen UR bouwt nieuw bedrijfsverzamelgebouw
31 mei 2019
Proof of the Sum ontwerpt 'accelerator' voor wetenschapspark
1 februari 2019
Team met Proof of the Sum ontwerpt universiteitsgebouw Leuven
25 oktober 2018
Ingrijpend verbouwd Stadskantoor Alkmaar faciliteert nieuw organisatiemodel
27 augustus 2018
Farmaceutisch bedrijfsverzamelgebouw op Pivot-campus Oss geopend
20 september 2024
Grootste openbaar laadpunt voor elektrisch vrachtvervoer geopend in Antwerpen
17 september 2024
Daniel Libeskind ontwerpt vernieuwde Boerentoren in Antwerpen
23 november 2022
Team met Office Winhov en HUB ontwerpt Collectie Centrum Antwerpen
24 september 2024
Wageningen Campus krijgt verzamelgebouw met houten constructie
30 april 2024
Antwerpen op zoek naar architect voor nieuw te bouwen Collectie Centrum
14 juli 2023
Bovenbouw Architectuur en Christ & Gantenbein zijn ontwerpteam voor nieuwe M HKA
27 februari 2025
Universiteit Antwerpen bouwt nieuw hart voor Campus Drie Eiken
8 december 2022
Glazen wand verbindt woontorens langs Antwerpse Ring
30 augustus 2022
Hoofdkantoor Gouweloos gerenoveerd door Proof of the Sum
16 september 2021
Hoofdkantoor Verwol heringericht door Proof of the Sum
30 maart 2021
Proof of the Sum ontwerpt mee aan Vaccinopolis Antwerpen
7 oktober 2020
Twee nieuwe gebouwen van Proof of the Sum voor Pivot Park Oss
15 september 2020
Bedrijfsverzamelgebouw Plus Ultra II opgeleverd
25 mei 2020
Wethoudersvleugel Stadhuis Alkmaar gerenoveerd door Proof of the sum
19 juli 2019
Wageningen UR bouwt nieuw bedrijfsverzamelgebouw
31 mei 2019
Proof of the Sum ontwerpt 'accelerator' voor wetenschapspark
1 februari 2019
Team met Proof of the Sum ontwerpt universiteitsgebouw Leuven
25 oktober 2018
Ingrijpend verbouwd Stadskantoor Alkmaar faciliteert nieuw organisatiemodel
27 augustus 2018
Toon alles
Andere nieuwsberichten
'Materialenwerf' in M4H vormt festivalhart Rotterdam Architectuur Maand
Gisteren, 14:05
Op 3 juni opent het flexibel opgezette bouwwerk in M4H, waar gebruikte bouwmaterialen worden verzameld, bewerkt en opnieuw ingezet. Gedurende de hele maand juni wordt er getest hoe een circulaire stad eruit kan zien, meldt AIR Rotterdam.
Concrete vertaalt ideeën van culinaire chefs naar interieur
Gisteren, 12:15
In de Amsterdamse Noorderstraat heeft Concrete het interieur van het nieuwe restaurant Amice ontworpen.
Gebouw wooncoöperatie krijgt gevel van hergebruikte ventilatiekanalen
30 maart, 4:04
Naar verwachting wordt begin volgend jaar gestart met de bouw van een woongebouw voor wooncoöperatie De Bonte Hulst in Amsterdam-Noord. Het gebouw in Buiksloterham is ontworpen door bureau SLA.
Jan Knikker vertrekt bij MVRDV
30 maart, 2:46
Knikker, die sinds 2016 partner was bij MVRDV, heeft een belangrijke rol gespeeld bij de professionalisering van de pr- en acquisitieactiviteiten van MVRDV en de mede daaruit volgende groei van het bureau.
Michael Braungart luistert vijftienjarig jubileum Cradle to Cradle Café op
Gisteren, 11:27
Op dinsdag 14 april organiseert het Cradle to Cradle Café een speciaal jubileumfestival in Utrecht ter gelegenheid van zijn vijftienjarig bestaan.
PBL: politieke keuzes nodig voor aanpassing klimaatverandering
Gisteren, 10:23
Een verstandige keuze is alvast om alles klimaatadaptief aan te pakken, aldus het Planbureau voor de Leefomgeving.
OM vervolgt oud-werknemers Strukton na Saudische omkopingskwestie
30 maart, 4:52
Eerder werd al bekend dat het bouwbedrijf voor tien miljoen euro heeft geschikt in de corruptiezaak.
Duitsland trekt acht miljard uit voor extra klimaatmaatregelen
30 maart, 10:59
Het geld is onder andere bedoeld voor de bouw van extra windmolens en subsidies voor de aanschaf van elektrische auto's.
‘Transformatie en optoppen levert tienduizenden woningen en klimaatwinst op’
27 maart, 11:53
Woningbouw vergt veel grondstoffen, maar de Wetenschappelijke Klimaatraad ziet veel mogelijkheden om het anders aan te pakken.
Zeeuwse Staten willen inspraak inwoners op groeiplan provincie
27 maart, 9:30
Meerdere Statenfracties in de provincie Zeeland hebben opgeroepen de inwoners op een goede wijze te betrekken bij het uitwerken van de strategische agenda 2050.
Ga naar het nieuws-archief
Ronnie Weessies
Redacteur
0
0
0
0
Voor een optimale gebruikservaring plaatst Architectenweb functionele cookies. Wat de verschillende cookies precies doen leggen we uit in een
overzicht
. Cookies van social media kun je optioneel
aanzetten
.
Akkoord
Instellingen
Annuleren
OK
Sluiten
Doorgaan
Inloggen
Maak een gratis persoonlijk account aan
Feedback
Feedback
Wij horen graag jouw feedback. Laat je reactie achter en eventueel jouw e-mail adres.
Reactie
Verstuur