Projecten
Producten
Bedrijven
Vacatures
Agenda
Awards
Podcasts
more_horiz
Videos
Magazine
Favorieten
Profiel
Uitloggen
Abonneer je nu op onze nieuwsbrieven!
Abonneren
Nee, bedankt
Ja, denk met me mee rond de
materialisering van mijn project
Copyright: Theo Kupers Architecten
Copyright: Theo Kupers Architecten
Copyright: Theo Kupers Architecten
Copyright: Theo Kupers Architecten
Copyright: Theo Kupers Architecten
Copyright: Theo Kupers Architecten
Schets
Copyright: Theo Kupers Architecten
Symmetrie met accenten kenmerkt Sportzaal Sportlaan naar ontwerp Theo Kupers Architecten
22 februari 2022, 10:09
In opdracht van de gemeente Maassluis heeft
Theo Kupers Architecten
een sportzaal voor de lokale basketball-vereniging en het Reviuslyceum ontworpen. De interne organisatie van het gebouw is functioneel en efficiënt; de verschijningsvorm speelt met symmetrie en asymmetrie.
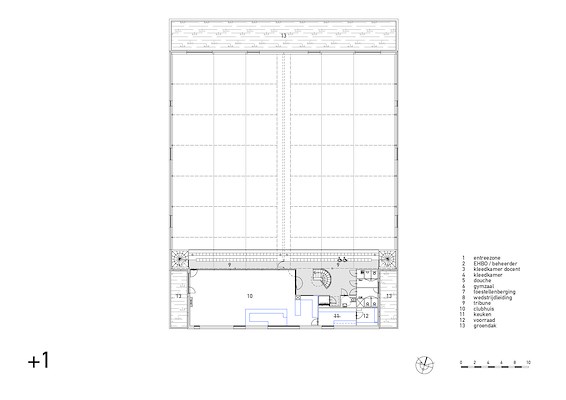
Het nieuwe gebouw Sportzaal Sportlaan biedt plaats aan twee zalen en een clubhuis voor basketball-vereniging Green Eagles. Naast thuisbasis voor de basketball-vereniging dient het gebouw in de eerste plaats voor het bewegingsonderwijs van het Reviuslyceum; ook andere gebruikers kunnen de sportzalen benutten. Het gebouw biedt een oppervlakte van circa 1.960 m
2
bvo.
Sporters en bezoekers
De sportzaal is een vrijstaand gebouw met de voorgevel en hoofdentree op de Sportlaan georiënteerd. Het ontwerp speelt met de aspecten symmetrie en asymmetrie. In de kern is het gebouw georganiseerd rond twee identieke zalen met elk twee identieke kleed- en doucheruimten.
Bij binnenkomst zijn de sportzalen direct zichtbaar door grote glazen puien. Sporters en toeschouwers volgen vanaf hier verschillende routes. Een opvallende centrale trap voert naar het clubhuis en de tribunes op de verdieping. De ‘Green Eagles Basketbar’ is als een adelaarsnest strategisch geplaatst, aldus het architectenbureau.
Streng en speels
De hoofdentree , die vanaf verschillende kanten benaderbaar is, is centraal in de gevel gepositioneerd. De technische installaties zijn, afgeschermd uit het zicht, op het dak geplaatst, waarbij de eveneens centrale positie het silhouet van het gebouw versterkt en de hoofdentree al op afstand ‘voelbaar’ maakt, legt Theo Kupers Architecten uit.
Dit hoogteaccent wordt zichtbaar voorzien van nestkasten voor vleermuizen en verschillende vogelsoorten. Een aantal asymmetrisch geplaatste elementen doorbreekt de streng symmetrische hoofdopzet, om zo het gebouw ook een speels karakter te verlenen. Nagenoeg het hele dak wordt voorzien van zonnepanelen.
Het gebouw is ontworpen met een robuuste plint in prefab beton. Daarboven krijgt het pand een gevelbekleding van houten delen met een duidelijke nerf. De terugliggende hoeken worden voorzien van groene gevels en een groendak. De zalen ontvangen daglicht; daarom zijn er in alle gevels openingen.
Openbare ruimte
De realisatie van Sportzaal Sportlaan wordt aangegrepen om ook de ruimte rondom het gebouw te herinrichten. Dit maakt deel uit van het ontwerp door Theo Kupers Architecten. Ook hier nemen aandacht voor duurzaamheid, biodiversiteit en de wateropgave een belangrijke plek in. Het voorterrein wordt een groen, veilig en overzichtelijk entreegebied.
Gemeente Maassluis meldt dat er extra parkeerplaatsen komen, maar ook een fietspad en een stalling bij de sporthal om het gebruik van de fiets te stimuleren. Bij het ontwerp van het sportgebouw en de omgeving zijn buurtbewoners betrokken, aldus de gemeente.
Trefwoorden
sportzaal
sportgebouw
maassluis
openbare ruimte
theo kupers architecten
Locatie
Best gelezen
1
Architect Cees Dam op 93-jarige leeftijd overleden
dinsdag, 14 april
2
Powerhouse Company wint aanbesteding voor verbouwing Vista College Maastricht
dinsdag, 14 april
3
Tien bureaus geselecteerd voor tweede ronde nieuwbouw De Meervaart
woensdag, 15 april
4
Voormalig hoofdkantoor Ferro in M4H verbouwd tot bedrijfsverzamelgebouw
woensdag, 15 april
5
Anterieure overeenkomst voor bouw woontoren The Four in Eindhoven
donderdag, 16 april
Gerelateerde nieuwsberichten
Woonzorggebouw door Simone Drost en Theo Kupers ingepast in naoorlogse tuinwijk
11 juli 2023
Campus voor bijzonder onderwijs biedt veiligheid en verbinding
23 september 2021
Ontwerp van Theo Kupers Architecten verankert schoolgebouw in de wijk
30 september 2024
Twee leerconcepten in een schoolgebouw
25 augustus 2015
Uitbreiding voor een kinderopvang in prefab houten modules
19 november 2024
ZJA en Archiles winnen prijsvragen voor sportcomplexen in België
7 januari 2022
Bouw gymzaal in Heijplaat Rotterdam gestart
3 juni 2021
Lichtstad Architecten ontwerpt circulaire sporthal in Muiden
13 januari 2021
Nieuw sportpark en clubhuis AFC in gebruik genomen
6 september 2021
Team met VenhoevenCS en B2Ai wint competitie Piscine de Blocry
31 mei 2021
Olympisch zwemstadion als investering in de toekomst
17 september 2020
Nieuw ‘Huis op Zuid’ combineert sport en wonen in een gebouw
16 september 2020
VenhoevenCS geselecteerd voor sportgebouw Erasmus Universiteit
11 oktober 2019
AGS Architects ontwerpt duurzaam sportgebouw met dynamische lijnen
7 november 2018
Sporthal Bredius in Muiden gerealiseerd met circulaire visie
20 juli 2023
Sportgebouw met begaanbare daken voor Centre Court Kerkrade
6 februari 2018
VU Sportcentrum Uilenstede opgewaardeerd
22 november 2017
Nieuw Revius Lyceum in Doorn is een onderwijslandgoed
12 december 2017
Woonzorggebouw door Simone Drost en Theo Kupers ingepast in naoorlogse tuinwijk
11 juli 2023
Campus voor bijzonder onderwijs biedt veiligheid en verbinding
23 september 2021
Ontwerp van Theo Kupers Architecten verankert schoolgebouw in de wijk
30 september 2024
Twee leerconcepten in een schoolgebouw
25 augustus 2015
Uitbreiding voor een kinderopvang in prefab houten modules
19 november 2024
ZJA en Archiles winnen prijsvragen voor sportcomplexen in België
7 januari 2022
Bouw gymzaal in Heijplaat Rotterdam gestart
3 juni 2021
Lichtstad Architecten ontwerpt circulaire sporthal in Muiden
13 januari 2021
Nieuw sportpark en clubhuis AFC in gebruik genomen
6 september 2021
Team met VenhoevenCS en B2Ai wint competitie Piscine de Blocry
31 mei 2021
Olympisch zwemstadion als investering in de toekomst
17 september 2020
Nieuw ‘Huis op Zuid’ combineert sport en wonen in een gebouw
16 september 2020
VenhoevenCS geselecteerd voor sportgebouw Erasmus Universiteit
11 oktober 2019
AGS Architects ontwerpt duurzaam sportgebouw met dynamische lijnen
7 november 2018
Sporthal Bredius in Muiden gerealiseerd met circulaire visie
20 juli 2023
Sportgebouw met begaanbare daken voor Centre Court Kerkrade
6 februari 2018
VU Sportcentrum Uilenstede opgewaardeerd
22 november 2017
Nieuw Revius Lyceum in Doorn is een onderwijslandgoed
12 december 2017
Toon alles
Andere nieuwsberichten
OMA gebruikt bestaand gebouw als canvas bij renovatie Edo-Tokyo Museum
17 april, 3:55
Na een renovatie van bijna vier jaar is het Edo-Tokyo Museum in de Japanse hoofdstad Tokio heropend. OMA nam het uit 1993 stammende gebouw, dat is ontworpen door de Metabolist Kiyonori Kikutake, onder handen.
Winnaars verkiezing Beste Bossche Gebouw 2020–2025 bekend
17 april, 2:16
De vakjury en het publiek wezen elk in drie categorieën een winnaar aan. Daarnaast kende vakjury nog een wildcard toe aan een project.
Appartementengebouwen door MIX architectuur vormen sluitstuk Noorderhaven Zutphen
17 april, 12:29
In de nieuwe buurt Noorderhaven in Zutphen zijn drie appartementengebouwen naar ontwerp van MIX architectuur opgeleverd. De gebouwen met in totaal tachtig woningen vormen het sluitstuk van de gebiedsontwikkeling.
EUmies Award naar renovatie congrescentrum in Charleroi en tijdelijke ruimtes Sloveens theater
17 april, 10:54
Donderdag zijn de winnaars van de EUmies Award 2026 bekendgemaakt. De renovatie van het congrescentrum Charleroi Palais des Expositions won in de belangrijkste categorie architectuur.
Woningbouwzaken krijgen langer voorrang bij Raad van State
17 april, 4:49
Om het huizentekort tegen te gaan, blijft de Raad van State woningbouwzaken met voorrang behandelen.
Inspectie positief over verbetering sociale veiligheid TU Delft
17 april, 11:36
De TU Delft heeft aanzienlijke stappen gezet om de sociale veiligheid voor medewerkers te verbeteren.
NVM vreest minder nieuwbouw door veranderende voorrang stroomnet
17 april, 9:23
Bouwers kunnen, door onzekerheid over welke projecten straks nog maatschappelijke prioriteit krijgen in een bepaalde regio, besluiten om minder nieuwe huizen te bouwen.
Architecten voor restauratie en herbestemming Rivièrahal gekozen
16 april, 12:00
Voor de grootscheepse restauratie en herbestemming van de Rivièrahal in de Rotterdamse Diergaarde Blijdorp zijn Mecanoo en BiermanHenket geselecteerd.
Bewoners aardbevingsgebied Groningen blijven kritisch op herstel
16 april, 10:34
Door de complexiteit en onzekerheid van het jarenlange proces ervaren mensen stress en frustratie.
ING: optoppen en splitsen van woningen steeds minder haalbaar
15 april, 1:22
Het kabinet-Jetten gaat naar verwachting het doel van 15.000 extra woningen per jaar uit verbouwingen niet halen, stelt ING.
Ga naar het nieuws-archief
Robert Muis
Redacteur
0
0
0
0
Voor een optimale gebruikservaring plaatst Architectenweb functionele cookies. Wat de verschillende cookies precies doen leggen we uit in een
overzicht
. Cookies van social media kun je optioneel
aanzetten
.
Akkoord
Instellingen
Annuleren
OK
Sluiten
Doorgaan
Inloggen
Maak een gratis persoonlijk account aan
Feedback
Feedback
Wij horen graag jouw feedback. Laat je reactie achter en eventueel jouw e-mail adres.
Reactie
Verstuur