Bosvilla H in Eindhoven vóór renovatie
Copyright: Wenink Holtkamp Architecten
Bosvilla H in Eindhoven vóór renovatie
Copyright: Wenink Holtkamp Architecten
Bosvilla H in Eindhoven vóór renovatie
Copyright: Wenink Holtkamp Architecten
Bosvilla H in Eindhoven
Copyright: Tim van der Velde
Bosvilla H in Eindhoven
Copyright: Tim van der Velde
Bosvilla H in Eindhoven
Copyright: Tim van der Velde
Bosvilla H in Eindhoven
Copyright: Tim van der Velde
Bosvilla H in Eindhoven
Copyright: Tim van der Velde
Bosvilla H in Eindhoven
Copyright: Tim van der Velde
Bosvilla H in Eindhoven
Copyright: Tim van der Velde
Begane grond vóór renovatie
Copyright: Wenink Holtkamp Architecten
Begane grond na renovatie
Copyright: Wenink Holtkamp Architecten
Eerste verdieping vóór renovatie
Copyright: Wenink Holtkamp Architecten
Eerste verdieping vóór renovatie
Copyright: Wenink Holtkamp Architecten
Villa DB in Geldrop vóór renovatie
Copyright: Wenink Holtkamp Architecten
Villa DB in Geldrop vóór renovatie
Copyright: Wenink Holtkamp Architecten
Villa DB in Geldrop vóór renovatie
Copyright: Wenink Holtkamp Architecten
Villa DB in Geldrop
Copyright: Tim van der Velde
Villa DB in Geldrop
Copyright: Tim van der Velde
Villa DB in Geldrop
Copyright: Tim van der Velde
Villa DB in Geldrop
Copyright: Tim van der Velde
Villa DB in Geldrop
Copyright: Tim van der Velde
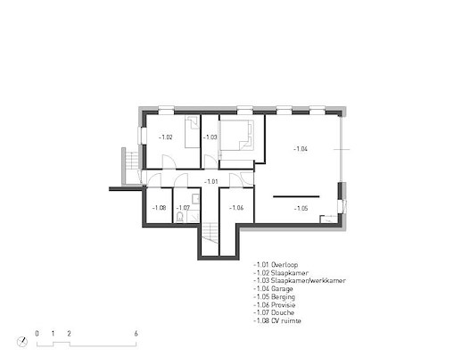
Kelderverdieping na renovatie
Copyright: Wenink Holtkamp Architecten
Begane grond na renovatie
Copyright: Wenink Holtkamp Architecten
Hoe je als architect ook een stap terug kunt zetten en in plaats van nieuwbouw voor renovatie kunt kiezen
Bijzonder duurzame nieuwbouw is helemaal niet zo duurzaam als er eerst iets voor gesloopt moet worden, constateren de partners van Wenink Holtkamp Architecten. Grootschalige renovatie kan veel duurzamer zijn, iets dat ze onlangs in het ontwerp van twee villa's hebben kunnen laten zien.
Ferdy Holtkamp en Jan-Peter Wenink
Bij ons op het architectenbureau ligt dagelijks het Eindhovens Dagblad op tafel. Het is opvallend hoe vaak het in de opiniestukken gaat over projecten die nog gebouwd moeten worden en of de (duurzame) uitgangspunten van deze projecten wel deugen. Architect, denk aan het klimaat! Architect, ga niet uit van ‘alles kan’, maar van ‘wat is nog mogelijk’.1 Opiniestukken die we met interesse lezen; al zijn we het er niet altijd mee eens – de architect wordt vaak de rol van eenzame beslisser in het bouwproces toebedeeld – maar ze houden je scherp. De architect wordt op meerdere vlakken kritisch benaderd, waarbij de discussie gelukkig verder gaat dan of
een project mooi of lelijk is.

Het valt niet te ontkennen dat elke architect (uitzonderingen daargelaten) een grote dadendrang heeft; je wilt iets moois en goeds achterlaten, je wilt mensen laten genieten en ervaren wat uit jouw gedachten is ontstaan. Dat was in ieder geval onze reden om architectuur te gaan studeren. Het voelt daarom soms bijna tegennatuurlijk, zeker als er voldoende budget voor de architectuur is, om onze rol in een project juist beperkt te houden, ook al vraagt het project daar wel om. Je kunt wel een project ontwerpen dat vriendelijk is voor het milieu en het klimaat, als je er een gebouw voor moet slopen, dan ben je nog steeds niet werkelijk duurzaam bezig. Om vriendelijk voor het milieu en het klimaat te kunnen handelen gaan we in ons bureau daarom steeds vaker uit van ‘wat is nog mogelijk’ en niet meer van ‘alles kan’.

Onlangs hebben we twee projecten afgerond die deze benadering goed illustreren. Het gaat om twee villa’s, op verschillende locaties, waar we, samen met de opdrachtgever, niet voor sloop en nieuwbouw hebben gekozen, maar voor een grootschalige renovatie. De betreffende renovaties hebben ervoor gezorgd dat bestaande ruimtelijk kwaliteiten zijn versterkt en dat waar nodig kwaliteit is toegevoegd. Door het ontwerp van een nieuwe, duurzame schil hebben de bewoners het gevoel in een nieuwbouwhuis te wonen. Onderhuids hebben we veel van de oude woningen overeind kunnen houden. Ons antwoord op de vraag ‘wat is nog mogelijk’ voor deze locaties beschrijven we hieronder kort per project.
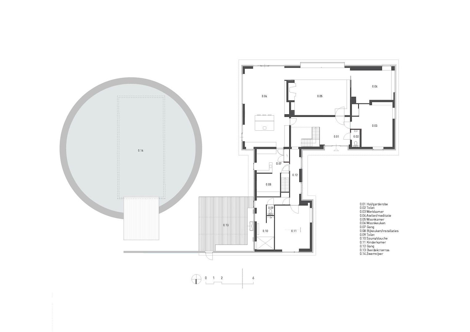
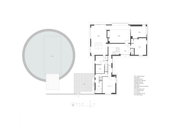
Bosvilla H in Eindhoven
Bij de bosvilla is niet alleen ingezet op het zo veel mogelijk behouden van het huis, maar ook op het behoud van de atmosfeer ervan en een stukje nostalgie. De (schoon)vader van één van de nieuwe bewoners zwom als kind in de op het terrein gelegen ven en speelde met vriendjes in het bos. Als in de verte de huisklok werd geluid, was het tijd om terug te komen na
ar huis. Die huisklok is behouden en wordt nu weer op dezelfde manier gebruikt. Dat is iets wat het hele huis kenmerkt, het is een ontmoeting tussen traditie en moderniteit.

Bij de totstandkoming van het ontwerp zijn de kernkwaliteiten van de woning behouden, maar zijn deze kwaliteiten aangescherpt en uitgebreid op basis van de wensen van de nieuwe bewoners. Waar de woning zich vroeger vooral richtte op het relatief kleine voorste deel van de kavel, die in totaal negen hectare groot is, is deze nu alzijdig georiënteerd en is de bosbeleving geoptimaliseerd. Dit werd mogelijk door een aantal gesloten volumes aan de achterzijde van het huis te verwijderen en een nieuw volume toe te voegen dat in lijn ligt met de dakrichting van het hoofdvolume. Zo ontstaat een symbiose van verschillende volumes die zich samen helder verankeren in het landschap.

Architectuur, interieurarchitectuur en landschapsontwerp zijn dankzij een nauwe samenwerking tussen de verschillende disciplines op elkaar afgestemd. Vanuit elke leefruimte kan nu het groen van het bos en de tuin worden ervaren, waarbij de natuurlijke materialen van het interieur op subtiele wijze overvloeien in het kleurenpallet van de omgeving.
Voor
Na
Tekeningen
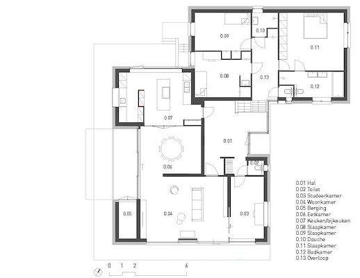
Villa DB in Geldrop
Deze woning is gelegen op een royaal kavel in een zeer groene en ruim opgezette wijk in Geldrop. De oorspronkelijke villa dateert uit 1971 en had voldoende kwaliteit om voor renovatie te kiezen: de plat
tegronden waren helder van opzet en de buitenzijde van de woning bestond uit een bijzonder lijnenspel van gevels en dakvlakken. De uitstraling van de woning was echter gedateerd, evenals het lage energielabel, ook was veel achterstallig onderhoud.

Het ontwerp kent een aantal uitgangspunten: alle functies en ruimtes binnen een rustige en eenduidig vormgegeven schil vatten; en het creëren van een continue ruimte om openheid en licht in het huis te brengen, waarbij de relatie tussen binnen en buiten wordt versterkt zodat de groenbeleving nog meer onderdeel wordt van het wonen. In het ontwerp komt dit het beste tot uitdrukking op de plek waar de eetkamer en het terras elkaar ontmoeten en het lichte interieur via een gevelvullende snede naar buiten doorloopt.

Als gevelbekleding is gekozen voor fijn bezaagd, verduurzaamd, zwart vurenhout dat enerzijds een natuurlijke uitstraling heeft maar anderzijds ook sterk contrasteert met de groene omgeving. Het huis is zo ingetogen, de tuin zorgt voor alle kleuren. Achter het zwarte hout bevindt zich een dik pakket van isolatie en het zwarte dak is volledig voorzien van zonnepanelen. Zo is op basis van de bestaande woning een op alle vlakken duurzaam huis gerealiseerd.
Voor
Na
Tekeningen
1 Opiniestuk in Eindhovens Dagblad door Ronald Rovers, februari 2021

Gerelateerde nieuwsberichten

Andere nieuwsberichten

Kraaijvanger Architects aan de slag met renovatie Station Zuidplein

24 december, 9:00

Concrete ontwerpt woongebouw in Philadelphia met gevelkunst door tattoo-artist Henk Schiffmacher

23 december, 12:00

Rotterdamse Academie van Bouwkunst stelt twee curatoren aan om thematische lijnen te ontwikkelen

22 december, 11:20

Den Haag ziet ruimte voor meer woningen in gebied Laakhavens-Hollands Spoor

19 december, 3:15

Fijne feestdagen en een gelukkig, gezond en succesvol 2026!

24 december, 1:00

Provincie Zuid-Holland: stroom van zee via Hoek van Holland naar Rotterdamse haven

23 december, 5:00

DNR geactualiseerd naar hedendaagse praktijk

19 december, 4:03

Inschrijving voor tiende editie Architectuurprijs Nijmegen geopend

19 december, 1:17

Tweede Kamer schuift aanpassing huurwet door naar nieuw kabinet

19 december, 9:13

Faillissement V&D laat nog altijd sporen na in winkelgebieden

18 december, 12:03
ATAG Nederland
KUBUS | Specialist in BIM-software
SAPA
Reynaers Aluminium Nederland
Jansen
SAB-profiel bv
Aliplast Aluminium Systems
Kingspan Light & Air
Hagemeister GmbH & Co. KG
ALUCOBOND®
Tarkett BV
Kawneer
Grohe Nederland B.V.
Malaysian Timber Council
OCS | Office Cabling Systems
Swisspearl Nederland
Forster Nederland N.V.
VELUX Commercial Benelux B.V.
Sempergreen
Houthandel van Dam
Aluprof Nederland BV
QbiQ Wall Systems
Forbo Flooring
Schüco Nederland
Cedral
Sto Isoned bv
Triflex bv
Gorter Luiken BV
wienerberger
Knauf Insulation
DUCO Ventilation & Sun Control
BEWI IsoBouw
Mview+
Rockfon (ROCKWOOL B.V.)
Gira Nederland B.V.
Kingspan Geïsoleerde Panelen
GEZE Benelux  B.V.
Renson
Metaglas Groep
ABB | Busch-Jaeger
Jung | Hateha B.V.
Knauf B.V.
Saint-Gobain Glass Benelux
Faay Vianen B.V.
objectflor
Boon Edam Nederland B.V.
Hunter Douglas Architectural
VOLA Nederland BV
Forbo Eurocol Nederland B.V.
EQUITONE gevelpanelen
Holonite B.V.
AXOR + hansgrohe
Tata Steel Colorcoat®
Architectenweb
Over ons
Contact

© 2002 - 2025 Architectenweb BV / Voorwaarden / Privacy / Disclaimer / Sitemap
Annuleren
OK
Sluiten
Doorgaan
Inloggen
Maak een gratis persoonlijk account aan