Projecten
Producten
Bedrijven
Vacatures
Agenda
Awards
Podcasts
more_horiz
Videos
Magazine
Favorieten
Profiel
Uitloggen
Abonneer je nu op onze nieuwsbrieven!
Abonneren
Nee, bedankt
Ja, denk met me mee rond de
materialisering van mijn project
De Maasbode, gezien vanaf de Schiedamsesingel
Copyright: van Bergen Kolpa architecten
De Maasbode, vogelperspectief
Copyright: van Bergen Kolpa architecten
Buitenruimte
Copyright: van Bergen Kolpa architecten
Buitenruimte
Copyright: van Bergen Kolpa architecten
Binnenstraat
Copyright: van Bergen Kolpa architecten
Interieur
Copyright: van Bergen Kolpa architecten
Plint
Copyright: van Bergen Kolpa architecten
Plint met entreestraat
Copyright: van Bergen Kolpa architecten
Programma
Copyright: van Bergen Kolpa architecten
Stedenbouw
Copyright: van Bergen Kolpa architecten
Doorsnede
Copyright: van Bergen Kolpa architecten
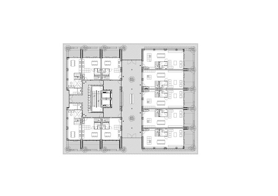
Plattegrond gezinswoningen
Copyright: van Bergen Kolpa architecten
Toren in centrum Rotterdam als een woonerf op hoogte
10 mei 2021, 12:02
In de Rotterdamse wijk Cool komt de zeventig meter hoge woontoren De Maasbode. Het door
van Bergen Kolpa architecten
ontworpen woongebouw is met name gericht op gezinnen die in de stad willen wonen, maar de sociale context van een woonstraat in een buitenwijk zoeken.
De locatie voor De Maasbode bevindt zich op een hoek tussen de William Bootslaan en de Schiedamse Vest, nabij het Witte de Withkwartier. De plek ligt op de overgang van het uitgaansgebied en een gemengde woonwijk met scholen, kerken en een speelplein.
Voor gezinnen die in de stad willen wonen, met veel voorzieningen om de hoek, is de locatie van het woongebouw aantrekkelijk. Tegelijkertijd kiezen veel gezinnen voor buitenwijken omdat een te grote schaal en de anonimiteit in de binnenstad niet de sociale context bieden waarin ze hun kinderen willen laten opgroeien.
Sociale lagen
Met het ontwerp van De Maasbode heeft van Bergen Kolpa architecten daarvoor een oplossing willen bieden. Het bureau heeft de omgeving waarin het gezinsleven zich afspeelt en de schaal van een woonstraat als uitgangspunten genomen voor een gebouwontwerp met verschillende ‘sociale lagen’.
De Maasbode biedt ruimte aan 94 woningen. “Op de schaal van de toren is de entreestraat de eerste sociale laag”, legt het architectenbureau uit. Op de fiets of te voet komen bewoners allereerst in een ‘binnenstraat’, waar de kinderen ook veilig kunnen spelen. Hier komt men elkaar tegen op weg naar de fietsenstalling, de post, de winkels of de parkeergarage.
De tweede sociale laag is de woonstraat, waaraan elf gezinswoningen staan. Dit zijn drielaagse woningen, zoals ze ook in de buitenwijken staan, legt van Bergen Kolpa architecten uit. De scheiding tussen de woning en de straat is transparant; door grote ramen kunnen bewoners zwaaien naar de buren als ze langslopen of de buurkinderen zien spelen op straat.
Gezinsleven
“De derde sociale laag is de woning zelf”, leggen de architecten uit. “Niet voor niets is het traditionele huis voor gezinnen al decennialang populair. Dit type huizen kent een vanzelfsprekende scheiding tussen collectieve ruimten en privévertrekken.
Van Bergen Kolpa architecten van laag naar hoog de overgang van gezins- naar privéruimten georganiseerd. Op de begane grond liggen de woonkamer en keuken, op de verdieping bevindt zich een werkkamer of speelkamer en op de tweede verdieping liggen de slaapkamers, de meest persoonlijke ruimten.
Aan de achterkant van de woning bevindt zich een terras met tuinbank, plantenbak en een boom. Alle achtertuinen zijn met elkaar verbonden via een achterpad; kinderen kunnen altijd via de informele achterzijden van huis naar huis lopen, leggen de architecten uit.
Woningtypen
De Maasbode biedt niet alleen woonruimte voor gezinnen. Op de bel-etage liggen studio’s voor jongeren. Daarboven, ‘in de luwte van de stad’, bevinden zich de serie trapsgewijs oplopende gezinswoningen. Deze zijn voorzien van riante buitenruimten op de zon, aldus de architecten.
Op de hogere verdiepingen zijn loftwoningen gesitueerd en bovenin liggen tweelaagse penthouses met panoramisch uitzicht over de stad. De plint biedt ruimte aan stedelijke voorzieningen zoals een espressobar en galeries, waarmee het gebouw ook aansluit bij het aanbod en de sfeer van het nabijgelegen Witte de Withkwartier.
Bewust wonen
Een belangrijk deel van de identiteit van De Maasbode is niet alleen het sociale en het gezinsleven, maar ook het ‘bewuste’ wonen, leggen de architecten uit. Dat uit zich in de oriëntatie op groen en het (gemeenschappelijk) gebruik van natuurlijke bronnen, zoals zonne-energie, luchtcirculatie door de straatjes, warmte-uitwisseling en het gebruik van regenwater voor de in het gebouw opgenomen bomen. Parkeren is ondergronds opgelost.
In totaal biedt het project een oppervlakte van 23.000 m
2
. Van Bergen Kolpa architecten heeft de woontoren ontworpen in opdracht van BPD Ontwikkeling, regio Zuid-West. Naar verwachting vindt de oplevering in 2022 plaats.
Trefwoorden
woontoren
rotterdam
van bergen kolpa architecten
woningbouw
hoogbouw
gezinswoning
Locatie
Best gelezen
1
Architect Cees Dam op 93-jarige leeftijd overleden
dinsdag, 14 april
2
Powerhouse Company wint aanbesteding voor verbouwing Vista College Maastricht
dinsdag, 14 april
3
Tien bureaus geselecteerd voor tweede ronde nieuwbouw De Meervaart
woensdag, 15 april
4
Voormalig hoofdkantoor Ferro in M4H verbouwd tot bedrijfsverzamelgebouw
woensdag, 15 april
5
Anterieure overeenkomst voor bouw woontoren The Four in Eindhoven
donderdag, 16 april
Gerelateerde nieuwsberichten
Van Bergen Kolpa en Meta winnen met Groente Paleis
23 maart 2016
Zes lessen rond ‘Gestapeld wonen voor gezinnen’
27 juni 2022
Rotterdam wil achthonderd woningen bouwen aan westzijde Piekstraat
3 mei 2021
Van Bergen Kolpa levert verticale boerderij in Beijing op
6 maart 2024
Plan voor woon-werkgebouw in M4H-gebied Rotterdam
3 mei 2021
Herbestemming pand maakt verbinding tussen centrum Rotterdam en Oude Westen
29 april 2021
Woongebouw door van Bergen Kolpa vormt nieuwe markering langs bocht Rotte
10 maart
Van Bergen Kolpa architecten levert innovatiecentrum voor metropolitane tuinbouw in Hengshui op
4 september 2025
Green Good Design Award voor Sawa
26 april 2021
Sculpturale woonblokken van Orange Architects in Rietzoom Rotterdam
22 april 2021
Woning in Almere Duin ontworpen als houten sculptuur in het bos
2 februari 2024
MoederscheimMoonen ontwerpt woningen met pergola voor nieuwe Parkbuurt
20 april 2021
Bouw eerste woningen Nieuw Kralingen start eind dit jaar
16 april 2021
Heringerichte Coolsingel officieel geopend
12 april 2021
Rotterdam bouwt groot onderwijscomplex op Zuid
9 april 2021
V8 Architects presenteert bouwfoto’s 150 meter hoge Cooltoren
8 april 2021
Little C – informeel en stedelijk wonen aan de Coolhaven
7 april 2021
Rotterdams bureau ontwerpt pure en krachtige toren voor Malta
6 april 2021
Machinistenhof is gevarieerd en samenhangend bouwblok van SPEE architecten
6 april 2021
Team Crossing Keileweg mag fabriekscomplex M4H-gebied herontwikkelen
31 maart 2021
Kraaijvanger ontwerpt woongebouw op plek kantoorpand Blaak 333
23 maart 2021
Nieuwe woontoren bij Rotterdams winkelcentrum Alexandrium
16 maart 2021
Bouw woontorens Clubhouse Boompjes gaat van start
17 februari 2021
2021 in tien podcasts door Daan Roggeveen
30 december 2021
Powerhouse Company ontwerpt houten woongebouw in Pendrecht
11 februari 2021
Nederlands-Thais onderzoek naar wateradaptatie
23 januari 2013
Ontwerpers herontwikkeling GGD-cluster Baankwartier Rotterdam bekend
6 februari 2023
Cooltoren Rotterdam na 4,5 jaar bouwen opgeleverd
11 januari 2023
Architectenweb symposium: gestapeld wonen voor gezinnen
1 juni 2022
Agrotopia – publiek toegankelijke kas voor onderzoek naar stedelijke voedselproductie
25 januari 2022
Vijf ontwerpteams maken schetsontwerp Centrale Bibliotheek Rotterdam
4 november 2021
Van Bergen Kolpa en Meta winnen met Groente Paleis
23 maart 2016
Zes lessen rond ‘Gestapeld wonen voor gezinnen’
27 juni 2022
Rotterdam wil achthonderd woningen bouwen aan westzijde Piekstraat
3 mei 2021
Van Bergen Kolpa levert verticale boerderij in Beijing op
6 maart 2024
Plan voor woon-werkgebouw in M4H-gebied Rotterdam
3 mei 2021
Herbestemming pand maakt verbinding tussen centrum Rotterdam en Oude Westen
29 april 2021
Woongebouw door van Bergen Kolpa vormt nieuwe markering langs bocht Rotte
10 maart
Van Bergen Kolpa architecten levert innovatiecentrum voor metropolitane tuinbouw in Hengshui op
4 september 2025
Green Good Design Award voor Sawa
26 april 2021
Sculpturale woonblokken van Orange Architects in Rietzoom Rotterdam
22 april 2021
Woning in Almere Duin ontworpen als houten sculptuur in het bos
2 februari 2024
MoederscheimMoonen ontwerpt woningen met pergola voor nieuwe Parkbuurt
20 april 2021
Bouw eerste woningen Nieuw Kralingen start eind dit jaar
16 april 2021
Heringerichte Coolsingel officieel geopend
12 april 2021
Rotterdam bouwt groot onderwijscomplex op Zuid
9 april 2021
V8 Architects presenteert bouwfoto’s 150 meter hoge Cooltoren
8 april 2021
Little C – informeel en stedelijk wonen aan de Coolhaven
7 april 2021
Rotterdams bureau ontwerpt pure en krachtige toren voor Malta
6 april 2021
Machinistenhof is gevarieerd en samenhangend bouwblok van SPEE architecten
6 april 2021
Team Crossing Keileweg mag fabriekscomplex M4H-gebied herontwikkelen
31 maart 2021
Kraaijvanger ontwerpt woongebouw op plek kantoorpand Blaak 333
23 maart 2021
Nieuwe woontoren bij Rotterdams winkelcentrum Alexandrium
16 maart 2021
Bouw woontorens Clubhouse Boompjes gaat van start
17 februari 2021
2021 in tien podcasts door Daan Roggeveen
30 december 2021
Powerhouse Company ontwerpt houten woongebouw in Pendrecht
11 februari 2021
Nederlands-Thais onderzoek naar wateradaptatie
23 januari 2013
Ontwerpers herontwikkeling GGD-cluster Baankwartier Rotterdam bekend
6 februari 2023
Cooltoren Rotterdam na 4,5 jaar bouwen opgeleverd
11 januari 2023
Architectenweb symposium: gestapeld wonen voor gezinnen
1 juni 2022
Agrotopia – publiek toegankelijke kas voor onderzoek naar stedelijke voedselproductie
25 januari 2022
Vijf ontwerpteams maken schetsontwerp Centrale Bibliotheek Rotterdam
4 november 2021
Toon alles
Gerelateerde podcasts
Toren van Babel
Gesprek met Caro van de Venne over hoogbouw en de openbare ruimte
8 april 2021
Toren van Babel
Gesprek met Erik Faber over stedelijke verdichting door hoogbouw
14 oktober 2021
Gerelateerde video's
Gestapeld wonen voor gezinnen
Symposium
Andere nieuwsberichten
OMA gebruikt bestaand gebouw als canvas bij renovatie Edo-Tokyo Museum
17 april, 3:55
Na een renovatie van bijna vier jaar is het Edo-Tokyo Museum in de Japanse hoofdstad Tokio heropend. OMA nam het uit 1993 stammende gebouw, dat is ontworpen door de Metabolist Kiyonori Kikutake, onder handen.
Winnaars verkiezing Beste Bossche Gebouw 2020–2025 bekend
17 april, 2:16
De vakjury en het publiek wezen elk in drie categorieën een winnaar aan. Daarnaast kende vakjury nog een wildcard toe aan een project.
Appartementengebouwen door MIX architectuur vormen sluitstuk Noorderhaven Zutphen
17 april, 12:29
In de nieuwe buurt Noorderhaven in Zutphen zijn drie appartementengebouwen naar ontwerp van MIX architectuur opgeleverd. De gebouwen met in totaal tachtig woningen vormen het sluitstuk van de gebiedsontwikkeling.
EUmies Award naar renovatie congrescentrum in Charleroi en tijdelijke ruimtes Sloveens theater
17 april, 10:54
Donderdag zijn de winnaars van de EUmies Award 2026 bekendgemaakt. De renovatie van het congrescentrum Charleroi Palais des Expositions won in de belangrijkste categorie architectuur.
Woningbouwzaken krijgen langer voorrang bij Raad van State
17 april, 4:49
Om het huizentekort tegen te gaan, blijft de Raad van State woningbouwzaken met voorrang behandelen.
Inspectie positief over verbetering sociale veiligheid TU Delft
17 april, 11:36
De TU Delft heeft aanzienlijke stappen gezet om de sociale veiligheid voor medewerkers te verbeteren.
NVM vreest minder nieuwbouw door veranderende voorrang stroomnet
17 april, 9:23
Bouwers kunnen, door onzekerheid over welke projecten straks nog maatschappelijke prioriteit krijgen in een bepaalde regio, besluiten om minder nieuwe huizen te bouwen.
Architecten voor restauratie en herbestemming Rivièrahal gekozen
16 april, 12:00
Voor de grootscheepse restauratie en herbestemming van de Rivièrahal in de Rotterdamse Diergaarde Blijdorp zijn Mecanoo en BiermanHenket geselecteerd.
Bewoners aardbevingsgebied Groningen blijven kritisch op herstel
16 april, 10:34
Door de complexiteit en onzekerheid van het jarenlange proces ervaren mensen stress en frustratie.
ING: optoppen en splitsen van woningen steeds minder haalbaar
15 april, 1:22
Het kabinet-Jetten gaat naar verwachting het doel van 15.000 extra woningen per jaar uit verbouwingen niet halen, stelt ING.
Ga naar het nieuws-archief
Robert Muis
Redacteur
4
0
0
0
Voor een optimale gebruikservaring plaatst Architectenweb functionele cookies. Wat de verschillende cookies precies doen leggen we uit in een
overzicht
. Cookies van social media kun je optioneel
aanzetten
.
Akkoord
Instellingen
Annuleren
OK
Sluiten
Doorgaan
Inloggen
Maak een gratis persoonlijk account aan
Feedback
Feedback
Wij horen graag jouw feedback. Laat je reactie achter en eventueel jouw e-mail adres.
Reactie
Verstuur