Projecten
Producten
Bedrijven
Vacatures
Agenda
Awards
Podcasts
more_horiz
Videos
Magazine
Thema's
Favorieten
Profiel
Uitloggen
Abonneer je nu op onze nieuwsbrieven!
Abonneren
Nee, bedankt
Ja, denk met me mee rond de
materialisering van mijn project
Copyright: Team 4 Architecten
Copyright: Team 4 Architecten
Copyright: Team 4 Architecten
Copyright: Team 4 Architecten
'Zwarte Doos' in Groningen wordt woongebouw voor studenten
12 juni 2020, 11:08
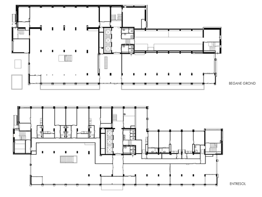
Het voormalige kantoorgebouw van de sociale dienst in Groningen wordt getransformeerd tot een studentenhuisvesting. In het pand aan de Eendrachtskade, dat bekend staat als de Zwarte Doos, komen driehonderd zelfstandige woningen en een multifunctionele ruimte van 1.500 vierkante meter. Dankzij de toevoeging van champagnekleurige aluminium penanten en kozijnen krijgt het gebouw deels een nieuwe kleur.
Team 4 Architecten
heeft nu het ontwerp voor de transformatie gepresenteerd, nadat het gebouw vorig jaar was aangekocht door de Belgische studentenhuisvester Xior. De Zwarte Doos is gebouwd in 1976, naar een ontwerp van bureau Van Linge en Kleinjan, en heeft tot 2013 gefungeerd als het kantoor van de sociale dienst.
In de nieuwe situatie worden de karakteristieke gevelelementen van zwart grindbeton grotendeels behouden, behalve in de hoeken, zodat daar woningen met een overhoeks uitzicht kunnen worden gerealiseerd. Alle kozijnen en gevelpanelen worden vervangen door champagnekleurige varianten. De penanten geven de gevel bovendien extra plasticiteit en introduceren een kleinschaliger ritme dat beter past bij het nieuwe woonprogramma, meldt Team 4 Architecten.
In het ontwerp wordt nadrukkelijk de aansluiting met de omgeving gezocht, vooral op straatniveau. Door de plint in dezelfde lijn te plaatsen van de naastliggende bebouwing, willen de architecten een evenwichtiger straatbeeld creëren. Ook krijgt het gebouw meer ingangen, omwille van een opener karakter en meer levendigheid op straat.
Alle parkeerplaatsen worden op het half verdiepte parkeerterrein aan de achtergelegen Witte de Withstraat gerealiseerd. Erboven komt een nieuw blok met appartementen, die direct toegankelijk zijn vanaf de parkeerplaatsen. De appartementen zijn verdeeld over twee woonlagen, waarvan de eerste woonlaag is uitgevoerd als beletage. Alle voordeuren liggen aan straatzijde.
Aan de straatzijde heeft elk appartement bovendien een ruim balkon, op het zuiden gericht, meldt Team 4 Architecten voorts. De gevels van deze appartementen zoeken in schaal, materialisatie en detaillering aansluiting bij de naastgelegen woningbouw uit de jaren dertig - en qua kleurstelling en strakke vormgeving bij de Zwarte Doos, zo verklaart het architectenbureau.
De bouwwerkzaamheden zijn inmiddels begonnen, laat Team 4 Architecten weten. In het eerste kwartaal van 2021 vindt de oplevering plaats. De ontwikkeling ligt in handen van
DubbeLL
.
Trefwoorden
studentenhuisvesting
dubell
groningen
transformatie
studentenwoningen
team 4 architecten
Locatie
Best gelezen
1
PSV presenteert plannen voor uitbreiding Philips Stadion
vrijdag, 20 maart
2
Luxe appartementengebouw naast klooster Etten-Leur door Studio AAAN klaar
donderdag, 19 maart
3
Houten Stelthuis van Woonpioniers is aardbevings- en klimaatbestendig
woensdag, 18 maart
4
BureauVanEig verbetert uitstraling Haagse rijtjeswoningen bij verduurzaming
dinsdag, 17 maart
5
KAAN Architecten en De Zwarte Hond winnen tender voor Area 19 TU Eindhoven
vrijdag, 20 maart
Gerelateerde nieuwsberichten
Wauwhaus biedt studentenhuisvesting in voormalig kantoorpand
10 september 2020
Woningen in monumentaal schoolensemble in Meppel
3 augustus 2020
Bouw markthal met appartementen in binnenstad Groningen gestart
12 januari 2021
Team 4 Architecten neemt bureau Rik Lagerwaard over
3 april 2020
Team 4 ontwerpt woningbouwproject Helperkade Groningen
27 maart 2020
Aardbevingsbestendig kindcentrum voor Gronings dorp
28 maart 2019
Team 4 en D/Dock mogen MartiniPlaza verbouwen
12 oktober 2018
CPO-project met NOM-woningen in duurzame wijk voor Groningen
26 mei 2020
Studenten bezien Groningen vanuit woontoren met 'schilderijgevel'
8 mei 2020
Oud distributiepand V&D getransformeerd tot woongebouw
1 mei 2020
Gespiegelde blokken voor sociale en particuliere huur
30 maart 2020
Tijdelijke en remontabele wijk De Loskade geopend
9 oktober 2019
Woongebouw Woldringlocatie in Groningen opgeleverd
19 november 2019
Beeldessay – van Groninger Museum tot Groninger Forum – 25 jaar architectuur
3 juli 2020
Woontoren De Helix in Groningen geeft uitdrukking aan jonge bewoners
13 augustus 2020
Groningen bouwt nieuwe wijk langs Eemskanaal
11 september 2020
'Prijzen-hattrick' in thuisstad voor Forum Groningen
22 september 2020
Nieuwe buurt op voormalig ALO-terrein Groningen
26 maart 2021
Transformatie Zwarte Doos Groningen tot woongebouw afgerond
31 januari 2022
Wauwhaus biedt studentenhuisvesting in voormalig kantoorpand
10 september 2020
Woningen in monumentaal schoolensemble in Meppel
3 augustus 2020
Bouw markthal met appartementen in binnenstad Groningen gestart
12 januari 2021
Team 4 Architecten neemt bureau Rik Lagerwaard over
3 april 2020
Team 4 ontwerpt woningbouwproject Helperkade Groningen
27 maart 2020
Aardbevingsbestendig kindcentrum voor Gronings dorp
28 maart 2019
Team 4 en D/Dock mogen MartiniPlaza verbouwen
12 oktober 2018
CPO-project met NOM-woningen in duurzame wijk voor Groningen
26 mei 2020
Studenten bezien Groningen vanuit woontoren met 'schilderijgevel'
8 mei 2020
Oud distributiepand V&D getransformeerd tot woongebouw
1 mei 2020
Gespiegelde blokken voor sociale en particuliere huur
30 maart 2020
Tijdelijke en remontabele wijk De Loskade geopend
9 oktober 2019
Woongebouw Woldringlocatie in Groningen opgeleverd
19 november 2019
Beeldessay – van Groninger Museum tot Groninger Forum – 25 jaar architectuur
3 juli 2020
Woontoren De Helix in Groningen geeft uitdrukking aan jonge bewoners
13 augustus 2020
Groningen bouwt nieuwe wijk langs Eemskanaal
11 september 2020
'Prijzen-hattrick' in thuisstad voor Forum Groningen
22 september 2020
Nieuwe buurt op voormalig ALO-terrein Groningen
26 maart 2021
Transformatie Zwarte Doos Groningen tot woongebouw afgerond
31 januari 2022
Toon alles
Andere nieuwsberichten
Vernieuwde Welstandsnota Rotterdam staat in teken van Omgevingswet, duurzaamheid en gebruiksgemak
1 uur geleden
De Rotterdamse Welstandsnota uit 2012 is geactualiseerd. Daarbij waren nieuwe inzichten en regelgeving, alsmede het gebruiksgemak voor gemeente en aanvragers bepalend.
PSV presenteert plannen voor uitbreiding Philips Stadion
20 maart, 3:37
De Eindhovense club wil de capaciteit van zijn onderkomen opschroeven met maximaal 25.000 bezoekers. Om dit te bewerkstelligen, komt er een nieuwe schil rond het stadion waarin een derde ring is opgenomen.
Rijkswaterstaat staakt renovatie markante houten Krùsrak-brug in Sneek
20 maart, 11:32
Tijdens de renovatie werd duidelijk dat de constructieve veiligheid van de brug niet langer kan worden verzekerd, laat RWS weten. De uit 2008 stammende Krúsrak-brug over de rijksweg 7 is ontworpen door Onix en Archterbosch Architecten.
KAAN Architecten en De Zwarte Hond winnen tender voor Area 19 TU Eindhoven
20 maart, 10:35
De opdracht omvat het ontwerp van een nieuw onderzoeks- en onderwijsgebouw en de stedenbouwkundige ontwikkeling van een nieuw campusgebied.
Boekholt schrapt wet die voorrang statushouders stopt
46 minuten geleden
De minister werkt aan een alternatieve wet, die pas in werking treedt als er genoeg mogelijkheden zijn om statushouders aan een huis te helpen.
Friesland brengt duizenden karakteristieke boerderijen in kaart
20 maart, 2:16
Door alle informatie over de voor het landschap kenmerkende gebouwen op één plek te brengen, moet het makkelijker worden om ze te behouden.
ING: bijna de helft van de huiseigenaren stelt verduurzaming uit
20 maart, 12:18
De meeste mensen vinden dat de overheid te weinig doet om dit te stimuleren.
Rekenkamer kraakt resultaten EU-innovatiefonds voor verduurzaming
20 maart, 9:25
Het Innovatiefonds van de Europese Unie levert veel minder resultaat op dan verwacht op het gebied van verduurzaming en innovatie.
Provincie schrapt beoogde locaties windturbines in Groene Hart
19 maart, 1:35
De provincie had twaalf plekken op het oog, maar dat leidde tot maatschappelijk en politiek verzet.
Staten Utrecht willen netcongestie versneld aanpakken
19 maart, 9:44
De fracties wezen op de noodzaak van het zo snel mogelijk realiseren van een hoogspanningsstation dat essentieel is voor het opsplitsen van het elektriciteitsnetwerk tussen de Flevopolder, Gelderland en Utrecht.
Ga naar het nieuws-archief
Ronnie Weessies
Redacteur
0
0
0
0
Voor een optimale gebruikservaring plaatst Architectenweb functionele cookies. Wat de verschillende cookies precies doen leggen we uit in een
overzicht
. Cookies van social media kun je optioneel
aanzetten
.
Akkoord
Instellingen
Annuleren
OK
Sluiten
Doorgaan
Inloggen
Maak een gratis persoonlijk account aan
Feedback
Feedback
Wij horen graag jouw feedback. Laat je reactie achter en eventueel jouw e-mail adres.
Reactie
Verstuur